brunch

1.10 56평 뷰티 인사이드/논산

PART1. 기본을 지켜 집을 짓다

by 이동혁 건축가
KakaoTalk_20200521_090546896.jpg

제목 : 우리는 전원주택을 짓습니다

-홈트리오 완공 주택 30채의 이야기-


저자 : 이동혁, 임성재, 정다운


HC051-2588r.jpg

제목 : 우리는 전원주택을 짓습니다

부제 : 홈트리오 완공 주택 30채의 이야기


PART 1. 기본을 지켜 집을 짓다

1.10 56평 뷰티 인사이드/논산

0.메인 HC069-6627(하늘수정b).jpg

POINT.1

볼륨감 있는 외관 디자인을 만들고자 하였습니다. 단층 주택의 한계라고 한다면 바로 볼륨감과 디자인일 텐데요. 2층 주택처럼 위, 아래로의 규모감이 없기 때문에 상대적으로 빈약해 보일 수밖에 없습니다. 특히 모던 스타일의 건물들처럼 지붕이 없고 평지붕으로 마감을 한다면(?). 네, 그냥 시골집처럼 될 확률이 매우 높습니다. 그래서 2층 주택보다 단층 주택을 디자인할 때 더 많은 노력을 기울입니다. 많은 시간 투자해서 이상한 집 만들 수는 없으니까요. 이번 주택에서는 좌, 우로 넓게 펼치는 공간 구성과 'ㅅ'로 꺾이는 거실 부분, 그리고 지붕 경사도를 많이 들어 올려서 지붕면이 많이 보일 수 있게 집 외관을 디자인하였습니다. 단층으로서의 한계점을 매스와 지붕의 느낌으로 보완했다고 생각하시면 쉬울 것 같아요.


POINT.2

'단층 주택에서 할 수 있는 모든 것을 다했다.'라고 이야기할 수 있겠네요. 56평을 1개 층만으로 공간을 구성한다는 것. 어찌 보면 건축가로서는 행운을 만난 것과 같습니다. 일단 땅이 만족해야 하고, 건축주님의 니즈가 단층으로 하는 것으로 충족되어 있어야 가능한 것이거든요. 2층 주택은 많이 설계하지만, 단층으로만 대형 평수의 주택을 설계한다는 것은 생각 이상으로 만나기 어렵거든요. 현관의 위치와 방의 위치, 그리고 주방과 취미공간까지. 평면을 보신다면 얼마나 많은 요소와 공간들이 들어갔는지 한눈에 아실 수 있을 거예요.


POINT.3

최적의 조망을 위해 꺾은 거실 공간이 이 집의 포인트라고 할 수 있습니다. 단순 디자인 때문에 이렇게 구성한 것은 아닙니다. 거실에서의 정면 부분과 좌측 부분에 이 땅에서 볼 수 있는 최고의 조망 환경이 있었거든요. 이번 주택을 지은 땅의 뒤에는 산이 감싸 안고 있고, 앞으로는 탁 트인 평지가 존재하는 곳이었습니다. 거실에 앉아 최고의 각도로 주변 환경을 이 집 안에서 볼 수 있게 하고 싶었습니다. 거실에는 당연히 티브이가 있어야 한다는 고정관념을 깨고 큰 통창을 거실 전면부에 계획했습니다. 하루 24시간, 그리고 사계절을 모두 거실에 앉아 즐길 수 있다는 것. 어떤가요 상상만으로도 행복해지지 않나요?


SPEC

공법 : 경량목구조

설계, 시공 : 홈트리오(주) / 상담문의 : 1522-4279

ARTIST : 건축가 정다운, 임성재, 이동혁

홈페이지 : http://hometrio.kr/

지붕마감재 : 아스팔트슁글 / 외벽 마감재 : 파벽돌(고벽돌st) / 포인트자재 : 파벽돌

실내벽마감재 : 실크벽지 / 실내바닥마감재 : 이건 강마루

창호재 : 이건 알루미늄 3중 시스템창호

건축면적 : 183.49㎡(1층 : 183.49㎡)

예상 총 건축비 : 401,000,000원(부가세 포함, 산재보험료 포함 / 설계비, 인허가비, 구조계산 설계비 별도)

설계비 : 14,000,000원(부가세 포함) / 인허가비 : 5,600,000원(부가세 포함)

구조계산 설계비 : 5,600,000원(부가세 포함) / 인테리어 설계비 : 8,400,000원(부가세 포함)

*건축비 외 부대비용 : 대지구입비, 가구(싱크대, 신발장, 붙박이장), 기반시설 인입(수도, 전기, 가스 등), 토목공사, 조경비 등


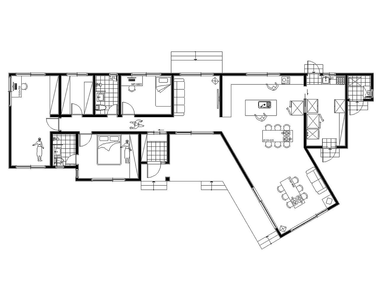
Floor Plan

1층.jpg 1층 평면도

<외관>

0.메인 HC069-6627(하늘수정b).jpg
HC069-6474(b).jpg
HC069-6491(b).jpg
HC069-6501(b).jpg
HC069-6507(b).jpg
HC069-6508(b).jpg
HC069-6509(b).jpg
HC069-6513(b).jpg
HC069-6518(b).jpg
HC069-6525(b).jpg
HC069-6528(b).jpg

<거실>

HC069-6531(b).jpg
HC069-6532(b).jpg
HC069-6536(b).jpg
HC069-6538(b).jpg
HC069-6541(b).jpg
HC069-6543(b).jpg
HC069-6566(b).jpg
HC069-6569(b).jpg
HC069-6572(b).jpg
HC069-6574(b).jpg
HC069-6578(b).jpg
HC069-6613(b).jpg
HC069-6614(b).jpg

<주방>

HC069-6535(b).jpg
HC069-6544(b).jpg
HC069-6546(b).jpg
HC069-6548(b).jpg
HC069-6551(b).jpg
HC069-6552(b).jpg
HC069-6555(b).jpg

<다용도실>

HC069-6556(b).jpg
HC069-6558(b).jpg
HC069-6563(b).jpg
HC069-6565(b).jpg

<화장실>

HC069-6607(b).jpg
HC069-6611(b).jpg

<방 1>

HC069-6591(b).jpg
HC069-6592(b).jpg

<방 2>

HC069-6582(b).jpg
HC069-6583(b).jpg
HC069-6586(b).jpg
HC069-6587(b).jpg
HC069-6589(b).jpg
HC069-6619(b).jpg
HC069-6620(b).jpg
HC069-6623(b).jpg
HC069-6625(b).jpg

<안방>

HC069-6598(b).jpg
HC069-6599(b).jpg
HC069-6601(b).jpg

<안방 화장실>

HC069-6604(b).jpg
HC069-6605(b).jpg

<건축가 사진>

HC069(phone)-01.jpg (좌측부터) 정다운 건축가, 임성재 건축가, 이동혁 건축가

이동혁 건축가 : 클래식의 감성과 모던의 간결함을 더하면? 건축 설계의 자유로움을 마음껏 펼쳐낼 수 있었던 프로젝트. 일반 주택 생각하시면 놀라실 거예요. 깔끔한 외관 디자인 속에 자유로운 공간 구성이 숨겨져 있거든요. 단층 주택 디자인을 할 때 너무 주의해야 할 점을 하나 꼽으라면, 촌스러운 느낌이 안 나고 어색한 느낌이 안 나도록 하는 것을 꼽을 것 같습니다. 2층 주택은 매스의 볼륨감 때문에 정말 잘못하지 않는다면 무난한 디자인으로 완성이 자연스럽게 됩니다. 하지만 단층은 수직 볼륨감이 상대적으로 떨어지기 때문에 자칫 잘못했다가는 80년대 시골집의 느낌처럼 디자인되고 마는데요. 더 길게 말 안 해도 지방에 있는 이상한 집들을 많이 보셨죠? 새집인데 헌 집처럼 보이는... 네, 그거 맞아요. 단층 주택 생각하고 계신가요? 핵심은 현 트렌드에 맞는 디자인이라는 것. 촌스럽게 짓지 마세요. 이상하게 짓지 마세요. 짓고 나서 후회한답니다.


정다운 건축가 : 내부 공간을 구성할 때 정말 자유로운 설계를 진행한 것 같습니다. 56평이라는 넓은 공간을 플랫 하게 계획할 수 있다니. 어찌 보면 건축가로서의 복인 것 같습니다. 아파트와는 다른 느낌이 드는 공간을 하나 꼽으라면 복도를 선택할 거예요. 갤러리형 구성이라고 하는데, 아파트처럼 거실로 들어가 각 공간으로 퍼지는 것이 아닌 긴 복도를 통해 각 공간으로 동선이 연결되면 그 자체만으로도 새로운 느낌의 집이라 인지됩니다. 익숙한 공간이 아닌 처음 보고 체험하는 공간. 그러한 공간에서 산다는 것만으로도 새로운 느낌의 라이프를 느끼시게 될 거예요. 큰 평수 대비 방의 개수가 적습니다. 이유는 하나예요. 공용공간에 압도적으로 많은 공간을 할애해 시각적 개방감을 극대화하도록 유도하였거든요.


임성재 건축가 : 이번 주택에서 사용한 외장재는 고벽돌 스타일의 파벽돌입니다. 어떤 분이 그러더라고요. 파벽돌은 가벼워 보여서 싫다고. 이거 본인 바보라고 이야기하는 것과 같습니다. 벽돌을 얇게 켜서 만들기도 하는 것이 파벽돌입니다. 무조건 가짜로 만든 벽돌이 파벽돌은 아니에요. 옛날에는 가짜 티가 많이 났지만 최근에는 많이 기술이 발전되었어요. 그리고 싼 것들만 봐서 그렇지 수입 벽돌들은 전혀 저렴해 보이지 않습니다. 오히려 국산 벽돌보다 비싼 것들도 수두룩합니다. 붙일 거냐 쌓을 거냐의 차이이며, 이 둘을 결정하는 것은 디자인보다는 '비용'입니다. 조적 방식의 쌓는 형태는 자재비도 비싸지만 시공비도 더 비쌉니다. 무조건 파벽돌을 외면할 것이 아니라 예산이 부족하다면 충분히 고려해도 괜찮다는 것을 이야기드리고 싶어요.


※모든 저작권은 홈트리오(주)에게 있습니다. 최근 무단으로 디자인과 설계 평면도를 복제해 마치 본인들이 한 것인 듯 홍보하는 업체들이 있는데 법적 책임을 물을 수 있다는 점 고지드립니다.

홈트리오 조직 계열도.jpg
프로필 통합본.jpg (좌측부터) 이동혁 건축가, 정다운 건축가, 임성재 건축가

[집이라는 본질적인 가치에 집중하다.]

Architecture Team : 홈트리오(주)

대표번호 : 1522-4279

홈페이지 : http://hometrio.kr/

KakaoTalk_20191210_164551850.jpg
KakaoTalk_20200521_090546896.jpg
img.jpg


keyword