1.9 50평 모던의 아름다움을 수놓다/순천

PART1. 기본을 지켜 집을 짓다

by 이동혁 건축가
KakaoTalk_20200521_090546896.jpg

제목 : 우리는 전원주택을 짓습니다

-홈트리오 완공 주택 30채의 이야기-


저자 : 이동혁, 임성재, 정다운


HC051-2588r.jpg

제목 : 우리는 전원주택을 짓습니다

부제 : 홈트리오 완공 주택 30채의 이야기


PART 1. 기본을 지켜 집을 짓다

1.9 50평 모던의 아름다움을 수놓다/순천

0.메인 HC072-7582(b).jpg

POINT.1

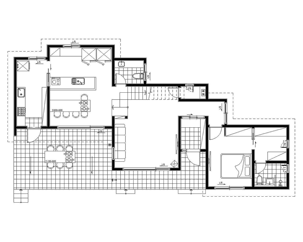
여자의 로망을 실현한 주방 공간. 거실보다 주방을 더 넓게 설계했습니다. 스킵플로어를 활용해 단차를 주고, 그 자체로 독특한 공간적 분위기를 자아내고자 하였습니다. 주방 공간과 식당 공간을 충분히 확보해 주었으며, 좌측으로 보조주방까지 마련해주어 그릇 및 주방집기들을 보조주방 쪽으로 수납이 가능하도록 했습니다. 50평형에서 만들 수 있는 모든 것을 이 주방에 넣었다고 해도 과언이 아닐 것 같네요.


POINT.2

순천의 랜드마크를 짓는다는 목표 하에 진행되었던 프로젝트입니다. 가성비 있는 건축비를 맞추기 위해 많은 노력을 기울였으며, 그 결과 이번 주택이 탄생한 것 같습니다. 홈트리오의 색이 잘 묻어나는 목조 공법에 박공지붕, 그리고 확실한 지붕 경사도와 처마까지. 깨끗한 감성과 정갈한 느낌까지. 전국에 저희 홈트리오의 주택 스타일이 점점 늘어나는 것 같습니다. 홈트리오 그 자체의 스타일. 비 안 새고 따뜻한 집. 거기에 젊은 주택 트렌드 감성까지. 순천의 랜드마크 완성된 것 같나요?


POINT.3

좌, 우로 넓게 펼친 평면 구성이 독특하다는 생각을 가지실 것입니다. 땅이 좁은 곳에서는 이렇게 구성하기 어렵습니다. 건축주님의 땅이 충분하였기 때문에 땅의 뒷면 경계면을 따라 최대한 펼쳐지는 평면을 구성할 수 있었습니다. 이렇게 펼치는 설계를 했을 때 장점은 모든 실이 균일한 채광과 조도를 받을 수 있다는 것에 있습니다. 항상 따뜻한 기운이 감돌고, 긍정적인 분위기가 집 안에 머물게 됩니다. 음지보다는 양지가 무조건 좋습니다. 해가 들어가야 집에 따뜻한 기운이 감돌게 됩니다. 그리고 남향의 창들을 크게 구성해주어 자연채광이 원활할 수 있도록 계획했습니다.


SPEC

공법 : 경량목구조

설계, 시공 : 홈트리오(주) / 상담문의 : 1522-4279

ARTIST : 건축가 정다운, 임성재, 이동혁

홈페이지 : http://hometrio.kr/

지붕마감재 : 리얼징크 / 외벽 마감재 : 모노롱타일 / 포인트자재 : 모노롱타일

실내벽마감재 : 도장마감, 실크벽지 / 실내바닥마감재 : 포세린타일, 이건 강마루

창호재 : 이건 알루미늄 3중 시스템창호

건축면적 : 163.73㎡(1층 : 108.27㎡, 2층 : 55.46㎡)

예상 총 건축비 : 439,000,000원(부가세 포함, 산재보험료 포함 / 설계비, 인허가비, 구조계산 설계비 별도)

설계비 : 12,500,000원(부가세 포함) / 인허가비 : 5,000,000원(부가세 포함)

구조계산 설계비 : 5,000,000원(부가세 포함) / 인테리어 설계비 : 7,500,000원(부가세 포함)

*건축비 외 부대비용 : 대지구입비, 가구(싱크대, 신발장, 붙박이장), 기반시설 인입(수도, 전기, 가스 등), 토목공사, 조경비 등


Floor Plan

1층.jpg 1층 평면도
2층.jpg 2층 평면도

<외관>

0.메인 HC072-7582(b).jpg
HC072-7280(b).jpg
HC072-7282(b).jpg
HC072-7285(b).jpg
HC072-7291(b).jpg
HC072-7296(b).jpg
HC072-7298(b).jpg
HC072-7300(b).jpg
HC072-7305(b).jpg
HC072-7311(b).jpg
HC072-7313(b).jpg
HC072-7317(b).jpg
HC072-7353(b).jpg
HC072-7354(b).jpg
HC072-7566(b).jpg
HC072-7567(b).jpg
HC072-drone-0258(b).jpg

<현관>

HC072-7356(b).jpg
HC072-7360(b).jpg
HC072-7363(b).jpg
HC072-7367(b).jpg
HC072-7369(b).jpg
HC072-7371(b).jpg
HC072-7373(b).jpg
HC072-7376(b).jpg
HC072-7377(b).jpg
HC072-7381(b).jpg
HC072-7384(b).jpg

<거실>

HC072-7385(b).jpg
HC072-7388(b).jpg
HC072-7389(b).jpg
HC072-7391(b).jpg
HC072-7394(b).jpg
HC072-7399(b).jpg
HC072-7402(b).jpg
HC072-7403(b).jpg
HC072-7405(b).jpg
HC072-7408.jpg
HC072-7409(b).jpg
HC072-7411(b).jpg
HC072-7413(b).jpg
HC072-7415(b).jpg
HC072-7417(b).jpg
HC072-7419(b).jpg
HC072-7422(b).jpg
HC072-7454(b).jpg
HC072-7560(b).jpg
HC072-7562(b).jpg
HC072-7563(b).jpg
HC072-7565(b).jpg

<주방>

HC072-7456(b).jpg
HC072-7458(b).jpg
HC072-7460(b).jpg
HC072-7463(b).jpg
HC072-7464(b).jpg
HC072-7467(b).jpg
HC072-7468(b).jpg
HC072-7471(b).jpg
HC072-7472(b).jpg
HC072-7475(b).jpg
HC072-7498(b).jpg
HC072-7561(b).jpg
HC072-7564(b).jpg

<다용도실>

HC072-7480(b).jpg
HC072-7481(b).jpg
HC072-7483(b).jpg

<1층 화장실>

HC072-7486(b).jpg
HC072-7487(b).jpg
HC072-7488(b).jpg
HC072-7489(b).jpg
HC072-7490(b).jpg
HC072-7492(b).jpg
HC072-7493(b).jpg
HC072-7495(b).jpg
HC072-7496(b).jpg

<1층 안방>

HC072-7424(b).jpg
HC072-7425(b).jpg
HC072-7426(b).jpg
HC072-7429(b).jpg

<1층 안방 드레스룸>

HC072-7430(b).jpg
HC072-7433(b).jpg
HC072-7435(b).jpg
HC072-7437(b).jpg

<안방 화장실>

HC072-7439(b).jpg
HC072-7440(b).jpg
HC072-7444(b).jpg
HC072-7445(b).jpg
HC072-7446(b).jpg
HC072-7447(b).jpg
HC072-7448(b).jpg
HC072-7449(b).jpg
HC072-7452(b).jpg

<계단실>

HC072-7499(b).jpg
HC072-7502(b).jpg
HC072-7554(b).jpg
HC072-7556(b).jpg
HC072-7557(b).jpg
HC072-7558(b).jpg

<2층 거실>

HC072-7503(b).jpg
HC072-7506(b).jpg
HC072-7507(b).jpg
HC072-7509(b).jpg
HC072-7510(b).jpg
HC072-7512(b).jpg

<2층 방1>

HC072-7515(b).jpg
HC072-7516(b).jpg
HC072-7518(b).jpg
HC072-7521(b).jpg
HC072-7523(b).jpg
HC072-7524(b).jpg

<2층 방2>

HC072-7525(b).jpg
HC072-7528(b).jpg
HC072-7529(b).jpg

<2층 방3>

HC072-7532(b).jpg
HC072-7533(b).jpg
HC072-7535(b).jpg
HC072-7538(b).jpg
HC072-7539(b).jpg
HC072-7553(b).jpg

<2층 화장실>

HC072-7540(b).jpg
HC072-7541(b).jpg
HC072-7542(b).jpg
HC072-7543(b).jpg
HC072-7544(b).jpg
HC072-7545(b).jpg
HC072-7546(b).jpg
HC072-7547(b).jpg
HC072-7548(b).jpg
HC072-7549(b).jpg
HC072-7550(b).jpg

<건축가 사진>

HC071-대표님수정4(무로고).jpg (좌측부터) 정다운 건축가, 임성재 건축가, 이동혁 건축가


이동혁 건축가 : 가로로 넓게 펼쳐진 형태로 1층 평면을 구성했습니다. 각 공간별 영역성을 정말 뚜렷하게 구분될 수 있는 설계를 진행하였는데요. "일반적인 좁은 택지에서는 구현하기 어려운 평면을 탄생시켰다." 이렇게 이해해 주시면 좋을 것 같아요. 남향의 햇볕과 자연 환기에 가장 뛰어난 평면을 그린다면 이번 주택처럼 오밀조밀 모으는 것이 아닌 넓게 펼치는 설계기법을 적용하는 것이 좋습니다. 현관을 들어왔을 때 시각적인 부분은 오픈시켜주면서 단차와 매스 분절을 통해 자연스럽게 공간이 변화되는 모습을 이번 주택 설계에서 보여주고 싶었습니다. 개성이 엄청 강한 평면이에요. 획일적인 내부 공간이 싫다면 이번 주택처럼 모으는 것이 아닌 펼쳐주는 형태의 설계를 내 집에 적용해 보시길 바랍니다.


정다운 건축가 : 2층은 정말 군더더기 없이 방 3개와 화장실만 배치를 했습니다. 어설프게 거실이나 가족실을 만드는 것이 아닌 오로지 잠을 자고 쉬는 공간으로서 2층을 구성했습니다. 목적성이 명확한 게 좋아요. 이것저것 다 만족시키는 공간을 만들면 결국 건축시공면적이 늘어날 수밖에 없기 때문에 건축비 증감의 결정적 요인이 되죠. 내가 꼭 필요한 공간만, 그리고 추후에 사용할까 말까 하는 공간은 가급적 안 만드는 것이 건축비를 아끼는 지름길이랍니다.


임성재 건축가 : 외벽은 밝은 톤으로, 그리고 지붕은 무게감을 잡아주는 어두운 톤으로. 디자인의 정석과도 같은 디자인 방향성이죠. 옷으로 예를 들자면 상의를 어두운 계열로 입었다면 하의는 밝은 느낌의 색으로 매치해 스타일링의 밸런스를 맞추게 되죠. 집도 마찬가지예요. 너무 한 가지 색으로만 통일해 버린다면 무언가 심심하거나 특색이 없고, 애매한 느낌의 집 디자인으로 탄생하는 경우가 많아요. 외부 디자인에는 색감적인 조화가 엄청 중요합니다. 어떠한 스타일이던 밝음과 어둠이 같이 조화롭게 공존하면서 디자인되어야 한다는 것. 잊지 마세요.


※모든 저작권은 홈트리오(주)에게 있습니다. 최근 무단으로 디자인과 설계 평면도를 복제해 마치 본인들이 한 것인 듯 홍보하는 업체들이 있는데 법적 책임을 물을 수 있다는 점 고지드립니다.

홈트리오 조직 계열도.jpg
프로필 통합본.jpg (좌측부터) 이동혁 건축가, 정다운 건축가, 임성재 건축가

[집이라는 본질적인 가치에 집중하다.]

Architecture Team : 홈트리오(주)

대표번호 : 1522-4279

홈페이지 : http://hometrio.kr/

KakaoTalk_20191210_164551850.jpg
KakaoTalk_20200521_090546896.jpg
img.jpg


keyword