1.8 44평 양양의 풍경을 수놓다/양양

PART1. 기본을 지켜 집을 짓다

by 이동혁 건축가
KakaoTalk_20200521_090546896.jpg

제목 : 우리는 전원주택을 짓습니다

-홈트리오 완공 주택 30채의 이야기-


저자 : 이동혁, 임성재, 정다운


HC051-2588r.jpg

제목 : 우리는 전원주택을 짓습니다

부제 : 홈트리오 완공 주택 30채의 이야기


PART 1. 기본을 지켜 집을 짓다

1.8 44평 양양의 풍경을 수놓다/양양

0.메인 HC060-6300.jpg

POINT.1

단층과 박공지붕의 만남. 2층 주택이 아니라 단층 주택을 디자인할 때 지붕 경사도의 각도를 조금 들어 올려주는 것이 좋습니다. 특별한 이유라기보다는 집 외관의 비율 때문에 그렇습니다. 사람으로 치면 이마와 같은 부위인데요. 어설프게 좁은 것보다는 확실하게 지붕을 보여주는 것이 더 디자인상 좋습니다. 지붕의 누수는 지붕이 꺾이는 부분에서 대부분 발생합니다. 99%의 하자가 거기서 발생한다라고 단언할 수 있습니다. 그래서 박공지붕을 구성할 때 너무 다양하게 꺾이게 하는 것보다 단순하게 구성하는 게 제일 좋습니다. 다만 덜 예쁘기는 하겠죠. 하지만 이것조차도 취향을 탄다고 할 수 있습니다. 저희들은 개인적으로 단순한 느낌을 더 좋아하거든요.


POINT.2

시원하게 구성된 앞마당이 이 집의 매력포인트입니다. 프라이버시 때문에 너무 담장을 높게 치고 답답하게 가두어서 살려고 하시는 분들이 계세요. 물론 개인적 상황들이 모두 존재하겠지만, 저희들은 가급적이면 오픈되고 시원하게 배치 구성해서 가시길 조언드립니다. 전원주택은 애초에 프라이버시가 강할 수 없는 매개체입니다. 탁 트인 개방감을 위해서 사는 공간인데 여기도 막고, 저기도 막아서 프라이버시만을 강조해 집을 짓는다니... 그러면 도시에 있는 아파트에 사는 게 제일 좋아요. 확실하게 보안이 되거든요. 전원주택을 왜 짓게 되었는지에 대한 초심을 잃지 마세요. 집을 설계하다 보면 왜 이 집을 짓게 되었는지 이유를 잃어버리고 헤매시는 분들이 계세요. 어차피 모든 조건을 다 만족시킬 수 없습니다. 내가 이 집을 짓는 가장 큰 이유 하나만을 꼭 지키면서 집을 지어야 한다는 것. 잊지 마세요.


POINT.3

손님을 위한 게스트룸을 마련해 놓았습니다. 독특하죠. 애초에 손님을 맞이할 수 있도록 집을 설계한 거예요. 이 집은 주생활 공간이 아닙니다. 처음부터 세컨드 하우스를 생각해서 집을 지었기 때문에 일반 주택과는 평면 자체가 다릅니다. 게스트룸과 넓은 거실과 주방. 공용공간이라고 하죠. 많은 손님들이 와도 다 수용할 수 있도록 했어요. 그리고 작은 침실이 존재하고, 그 옆으로 악기를 연주할 수 있는 합주실이 따로 존재합니다. 많은 것을 구성하기보다는 선택과 집중을 잘 한 집이라 설명드리고 싶습니다. 정말로 내가 필요로 하는 공간과 목적성이 명확하게 설계된 구성 방식. 세컨드 하우스를 생각하고 계신가요? 그렇다면 이 집처럼 지어야 잘 지은 집이라고 할 수 있을 것입니다.


SPEC

공법 : 경량목구조

설계, 시공 : 홈트리오(주) / 상담문의 : 1522-4279

ARTIST : 건축가 정다운, 임성재, 이동혁

홈페이지 : http://hometrio.kr/

지붕마감재 : 평기와 / 외벽 마감재 : 스타코플렉스 / 포인트자재 : 파벽돌

실내벽마감재 : 실크벽지 / 실내바닥마감재 : 이건 강마루

창호재 : 이건 알루미늄 3중 시스템창호

건축면적 : 143.34㎡(1층 : 143.34㎡)

예상 총 건축비 : 364,000,000원(부가세 포함, 산재보험료 포함 / 설계비, 인허가비, 구조계산 설계비 별도)

설계비 : 11,000,000원(부가세 포함) / 인허가비 : 4,400,000원(부가세 포함)

구조계산 설계비 : 4,400,000원(부가세 포함) / 인테리어 설계비 : 6,600,000원(부가세 포함)

*건축비 외 부대비용 : 대지구입비, 가구(싱크대, 신발장, 붙박이장), 기반시설 인입(수도, 전기, 가스 등), 토목공사, 조경비 등


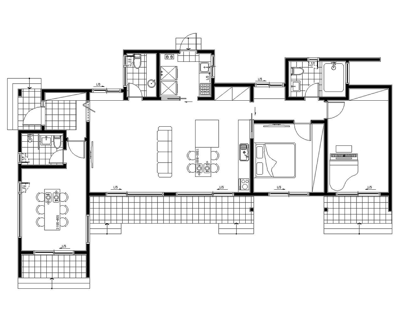
Floor Plan

1층.jpg 1층 평면도

<외관>

0.메인 HC060-6300.jpg
HC060-6114.jpg
HC060-6138.jpg
HC060-6152.jpg
HC060-6154.jpg
HC060-6160.jpg
HC060-6161.jpg
HC060-6179.jpg
HC060-6181.jpg
HC060-6184.jpg
HC060-6186.jpg
HC060-6279.jpg
HC060-6288.jpg
HC060-6293.jpg

<현관>

HC060-6226.jpg
HC060-6227.jpg
HC060-6228.jpg
HC060-6230.jpg
HC060-6233.jpg

<거실>

HC060-6236.jpg
HC060-6238.jpg
HC060-6241.jpg
HC060-6244.jpg
HC060-6246.jpg
HC060-6254.jpg

<주방>

HC060-6248.jpg
HC060-6250.jpg
HC060-6251.jpg
HC060-6255.jpg

<다용도실>

HC060-6258.jpg
HC060-6262.jpg

<화장실>

HC060-6263.jpg
HC060-6267.jpg

<안방>

HC060-6310.jpg
HC060-6312rr.jpg
HC060-6315.jpg
HC060-6316.jpg

<안방 화장실>

HC060-6337rr.jpg
HC060-6343.jpg

<스튜디오>

HC060-6307.jpg
HC060-6320.jpg
HC060-6321.jpg
HC060-6326.jpg
HC060-6329.jpg
HC060-6330.jpg
HC060-6333.jpg

<건축가 사진>

KakaoTalk_20220408_104305650.jpg (좌측부터) 정다운 건축가, 임성재 건축가, 이동혁 건축가


이동혁 건축가 : 기존의 주택과는 '결'을 달리하는 설계 공간 구성으로 진행된 프로젝트입니다. 한국 사람들의 집에 대한 고정관념은 아파트 때문인데요. 평생 아파트 구조에 익숙한 상태로 살아오다 보니 어느 순간 집은 방 3개에 거실 주방 있고, 30평형이면 괜찮은 집이라는 인식에 사로잡히게 되었습니다. 아파트가 틀렸다고 말하는 것은 아닙니다. 현 한국 상황과 시대적 부분에서 아파트는 분명 살기 좋은 최적의 공간 구성임에는 틀림없으니까요. 다만 전원주택을 지을 때에도 아파트처럼 공간 구성하여지어야 할까요? "아니죠!!" 아파트와 똑같이 지을 거면 뭐하러 전원주택을 짓습니까. 시골에도 아파트 있습니다. 그냥 아파트 똑같이 사면되죠. 전원주택은 아파트와는 달리 나만의 공간 구성과 내가 꼭 필요한 부분만을 특징적으로 설계하고 짓는 것입니다. 그러려고 비싼 땅 사서 집 짓는 거예요.

정다운 건축가 : 땅이 넉넉하다면 2층 집을 고집할 이유는 없습니다. 물론 전원주택 하면 2층 집의 로망이 바로 떠오르기는 하지만 단층으로 충분하다면 단층으로 지어도 무방합니다. 2층 집을 지어야 하는 땅들이 있어요. 좁은 면적과 작은 건폐율... 이러한 조건이라면 고민 없이 2층으로 올립니다. 대부분 도심지에 짓는 건물들이겠죠. 하지만 땅이 200평 이상 넘어가고 한적한 시골 동네라면 꼭 2층으로 올리지 않고 단층으로 구성해도 충분히 전원주택의 매력을 느낄 수 있습니다. 내가 바라보고 싶은 곳을 바라볼 수 있게 창을 내고, 창을 열고 나가 걸을 수 있는 데크를 깔고. 오늘 선보인 단층 주택을 보면서 "단층도 이렇게 매력이 있구나.'라는 것을 깨달았으면 좋겠어요.

임성재 건축가 : 기둥을 세우고 지붕을 만들면 그 공간을 '포치'라 부릅니다. 실내 공간은 아니지만 처마 개념으로 지붕이 길게 뻗어 나가기 때문에 생각보다 활용도가 높은 공간이라 할 수 있습니다. 건축비는 목조주택 기준으로 평당 250~300만 원 정도 발생합니다. 일반 시공비보다는 저렴하기 때문에 비가 오더라도 활동할 공간이 필요하신 분들의 경우 이 포치라는 공간을 넓게 설치하기도 합니다. 이번 주택에서는 처마에 더해 포치 공간을 넓게 만들어 주었어요. 비가 올 때 창문을 열고 빗소리를 들어며 힐링 라이프를 즐기는 것. 이것이 행복이 아니고 뭐겠어요.


※모든 저작권은 홈트리오(주)에게 있습니다. 최근 무단으로 디자인과 설계 평면도를 복제해 마치 본인들이 한 것인 듯 홍보하는 업체들이 있는데 법적 책임을 물을 수 있다는 점 고지드립니다.

홈트리오 조직 계열도.jpg
프로필 통합본.jpg (좌측부터) 이동혁 건축가, 정다운 건축가, 임성재 건축가

[집이라는 본질적인 가치에 집중하다.]

Architecture Team : 홈트리오(주)

대표번호 : 1522-4279

홈페이지 : http://hometrio.kr/

KakaoTalk_20191210_164551850.jpg
KakaoTalk_20200521_090546896.jpg
img.jpg


keyword