1.7 43평 전원의 매력을 만끽하다/홍천

PART1. 기본을 지켜 집을 짓다

by 이동혁 건축가
KakaoTalk_20200521_090546896.jpg

제목 : 우리는 전원주택을 짓습니다

-홈트리오 완공 주택 30채의 이야기-


저자 : 이동혁, 임성재, 정다운


HC051-2588r.jpg

제목 : 우리는 전원주택을 짓습니다

부제 : 홈트리오 완공 주택 30채의 이야기


PART 1. 기본을 지켜 집을 짓다

1.7 43평 전원의 매력을 만끽하다/홍천

[크기변환]0.메인 HC032-6282.jpg


POINT.1

입구 쪽에서 보이는 매스를 돋보이게 하기 위해서 집 가운데로 경사가 이루어지는 역구배 외쪽지붕을 구성하였습니다. 누수에 대한 부분만을 고려하면 이렇게 지붕을 구성하면 안 됩니다. 물이 고이거나 들이칠 염려가 있거든요. 하지만 이번 주택에서는 그러한 부분들을 설계 단계에서부터 잡고 보완을 진행했습니다. 지붕에서도 2겹 방수를 진행하고, 코너 부위에 보강을 추가하는 등 특히 하자가 발생할 수 있는 부분들에서 신경을 많이 썼습니다.


POINT.2

주변의 산세가 매우 수려한 곳에 위치한 땅이었습니다. 뒤에는 산, 앞에는 계곡이 흐르는 위치의 땅이었는데요. 이 주변의 매력을 집에 온전히 담아내고자 노력을 했던 것 같습니다. 건축주님께서 '꽃차'를 만들시는 일을 하고 계셔서 이에 따른 전시장과 손님을 맞이할 수 있는 공간들을 같이 설계해 나갔습니다. 또한 외부에서 꽃을 말릴 수 있는 공간까지 다양하게 협의를 진행했습니다. 수려한 자연환경 속에서 마시는 꽃차 한잔의 여유. 집을 완공시키고 마셨던 그 꽃차 한잔이 아직도 생각나네요.


POINT.3

목조주택에서 기본 외장재는 스타코플렉스입니다. 탄성이 있는 재질을 입혀주어야 크랙이 가지 않거든요. 동일한 라인 군에는 테라코트 플렉시텍스 등이 존재할 수 있겠네요. 이름을 들어 아시겠지만 스타코는 브랜드 이름이고요. 플렉스가 탄성이 있다는 것을 단어에 내포하고 있습니다. 테라코트도 마찬가지예요. 테라코트가 브랜드이고 플렉시텍스가 탄성이 있는 제품군이라는 것을 이야기하는 거죠. 목조주택은 철근콘크리트 주택처럼 처음부터 자리를 잡는 구조체가 아닙니다. 평균 3년 정도의 시간을 지나야 완전히 자리를 잡는 공법입니다. 그래서 집이 미세하게 움직이기 때문에 외장재 부분에서 크랙이 가지 않게 하는 것이 매우 중요합니다. 미관상의 문제뿐만 아니라 방수에 대한 부분에도 직결되기 때문에 매우 중요한 부분이라고 할 수 있습니다.


SPEC

공법 : 경량 목구조

설계, 시공 : 홈트리오(주) / 상담문의 : 1522-4279

ARTIST : 건축가 정다운, 임성재, 이동혁

홈페이지 : http://hometrio.kr/

지붕마감재 : 아스팔트슁글 / 외벽 마감재 : 스타코플렉스 / 포인트자재 : 파벽돌

실내벽마감재 : 실크벽지/ 실내바닥마감재 : 이건 강마루

창호재 : 이건 알루미늄 3중 시스템창호

건축면적 : 142.94㎡(1층 : 99.85㎡, 2층 : 43.09㎡)

예상 총 건축비 : 332,900,000원(부가세 포함, 산재보험료 포함 / 설계비, 인허가비, 구조계산 설계비 별도)

설계비 : 10,750,000원(부가세 포함) / 인허가비 : 4,300,000원(부가세 포함)

구조계산 설계비 : 4,300,000원(부가세 포함) / 인테리어 설계비 : 6,450,000원(부가세 포함)

*건축비 외 부대비용 : 대지구입비, 가구(싱크대, 신발장, 붙박이장), 기반시설 인입(수도, 전기, 가스 등), 토목공사, 조경비 등


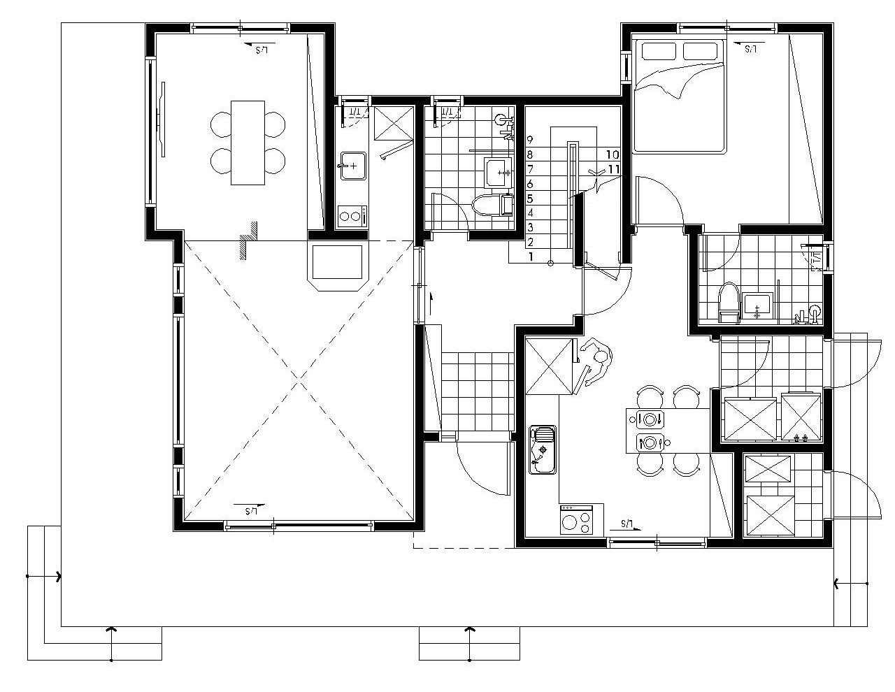
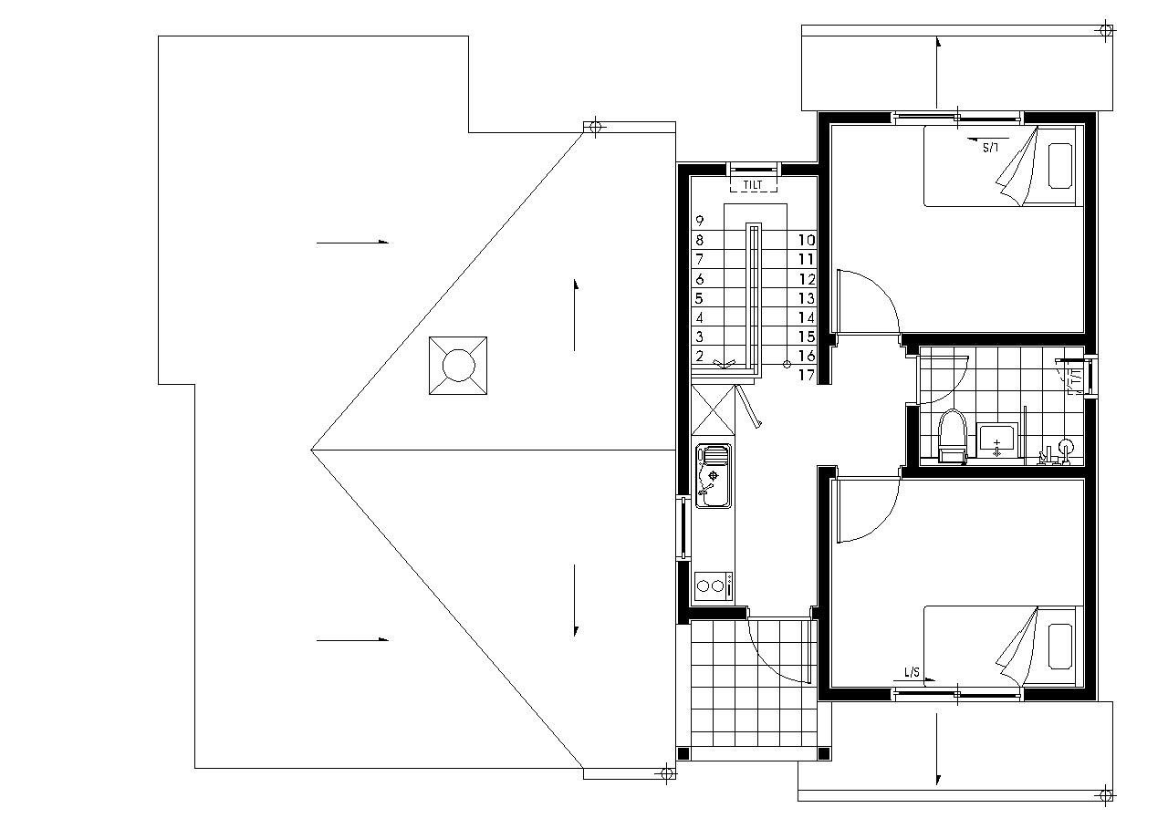
Floor Plan

1층.jpg 1층 평면도
2층.jpg 2층 평면도


<외관>

[크기변환]0.메인 HC032-6282.jpg
HC032-0187.jpg
HC032-6044.jpg
HC032-6053.jpg
HC032-6059.jpg
HC032-6063.jpg
HC032-6071.jpg
HC032-6077.jpg

<현관>

HC032-6171.jpg

<거실>

HC032-6132.jpg
HC032-6133.jpg
HC032-6134.jpg
HC032-6135.jpg
HC032-6136.jpg
HC032-6137.jpg
HC032-6139.jpg
HC032-6140.jpg
HC032-6142.jpg
HC032-6144.jpg
HC032-6146.jpg
HC032-6147.jpg
HC032-6148.jpg
HC032-6158.jpg
HC032-6161.jpg
HC032-6164.jpg
HC032-6165.jpg
HC032-6168.jpg
HC032-6169.jpg

<주방>

HC032-6196.jpg
HC032-6197.jpg
HC032-6202.jpg
HC032-6204.jpg
HC032-6205.jpg
HC032-6206.jpg
HC032-6207.jpg
HC032-6208.jpg
HC032-6209.jpg
HC032-6215.jpg

<다용도실>

HC032-6180.jpg
HC032-6182.jpg

<1층 보조주방>

HC032-6149.jpg
HC032-6151.jpg
HC032-6152.jpg
HC032-6153.jpg
HC032-6157.jpg

<1층 방>

HC032-6217.jpg
HC032-6219.jpg

<화장실 1>

HC032-6173.jpg
HC032-6174.jpg
HC032-6176.jpg
HC032-6177.jpg


<계단실>

HC032-6222.jpg
HC032-6224.jpg
HC032-6226.jpg
HC032-6261.jpg

<2층 주방>

HC032-6228.jpg
HC032-6230.jpg
HC032-6233.jpg
HC032-6256.jpg

<2층 화장실>

HC032-6244.jpg
HC032-6246.jpg
HC032-6251.jpg

<2층 방1>

HC032-6234.jpg
HC032-6235.jpg
HC032-6237.jpg
HC032-6238.jpg

<2층 방2>

HC032-6253.jpg
HC032-6254.jpg
HC032-6255.jpg

<발코니>

HC032-6257.jpg


HC032-6258.jpg
HC032-6259.jpg
HC032-6260.jpg

<건축가 사진>

HC032-6131.jpg (좌측부터) 임성재 건축가, 이동혁 건축가, 정다운 건축가


이동혁 건축가 : 공간을 설계할 때 불편함을 줄일 수 있는 가이드라인은 존재해도 정답은 존재하지 않습니다. 그 이유는 모든 사람들이 살아가는 라이프스타일 자체가 모두 다르기 때문입니다. 활동량도 다를뿐더러 생활상도 완전히 다릅니다. 다른 사람의 집은 항상 말하듯 참고만 하면 되며, 그곳에 너무 빠져서 분석을 하는 것은 생각보다 무의미합니다. 내 마음에 드는 집은 내 땅에 맞게 다시 설계해야지만 완벽하게 내 마음에 드는 집으로 완성되며, 남에 집을 보고 이거는 마음에 안 들고 저것도 이상하고... 백날 말해 무엇하겠습니까. 그 집은 내 집이 아닌데요. 제 말 뜻을 아시겠죠? 그만 남에 집 평가하세요. 이제는 내 집을 설계해야 할 때입니다.


정다운 건축가 : 이번 주택의 평면은 조금 독특합니다. 공간적으로 주방과 거실을 완전히 분리시켰습니다. 개방감 측면에서는 분명 막히는 부분이 존재하지만 영역성으로서 본다면 각 공간의 프라이버시를 완벽하게 지켜주었다고 할 수 있습니다. 이렇게 설계를 하면 사장님과 사모님의 활동 공간이 침해를 받지 않고 각 공간을 사용할 수 있게 됩니다. 또 하나의 장점은 손님이 많은 집의 경우 공간을 통해 분리된 영역성으로 인해 손님을 받더라도 거실을 제외한 나머지 공간은 자연적으로 공간적 차단되는 효과를 누릴 수 있습니다.


임성재 건축가 : 입면을 구성할 때 지붕을 생각보다 많이 신경 씁니다. 지붕을 어떻게 구성하느냐에 따라 집의 스타일이 완전히 바뀌기 때문입니다. 쉽게 말해 사람의 헤어스타일에 따라 분위기가 바뀌는 것처럼 집의 분위기도 달라진다고 생각해주셨으면 합니다. 이번 주택은 전체적인 느낌의 클래식한 느낌으로 진행했지만 너무 단조로운 느낌이 있어 그것을 벗어나기 위해 외쪽 경사지붕을 한쪽 매스에 적용해주어 조금은 개성이 있는 디자인으로 탄생을 시킨 주택입니다. 디자인적인 부분에서는 호불호가 존재할 수 있기에 이 집의 건축주님의 취향에 맞게 설계했다고 생각해주시면 될 것 같습니다.


※모든 저작권은 홈트리오(주)에게 있습니다. 최근 무단으로 디자인과 설계 평면도를 복제해 마치 본인들이 한 것인 듯 홍보하는 업체들이 있는데 법적 책임을 물을 수 있다는 점 고지드립니다.

홈트리오 조직 계열도.jpg
프로필 통합본.jpg (좌측부터) 이동혁 건축가, 정다운 건축가, 임성재 건축가

[집이라는 본질적인 가치에 집중하다.]

Architecture Team : 홈트리오(주)

대표번호 : 1522-4279

홈페이지 : http://hometrio.kr/

KakaoTalk_20191210_164551850.jpg
KakaoTalk_20200521_090546896.jpg
img.jpg


keyword