brunch

2.7 50평 꽃차 한잔의 여운/서산

PART 2. 나만의 개성을 담아 집을 짓다

by 이동혁 건축가
KakaoTalk_20200521_090546896.jpg

제목 : 우리는 전원주택을 짓습니다

-홈트리오 완공 주택 30채의 이야기-


저자 : 이동혁, 임성재, 정다운


HC051-2588r.jpg

제목 : 우리는 전원주택을 짓습니다

부제 : 홈트리오 완공 주택 30채의 이야기


PART 2. 나만의 개성을 담아 집을 짓다

2.7 50평 꽃차 한잔의 여운/서산

0.메인HC041-8090.jpg

POINT.1

처음 보는 실내공간 구성일 거예요. 저희들도 설계하면서도 계속 갸우뚱(?)하면서 설계를 진행했거든요. 저희들이 생각하는 공간 방향성이 있더라도 일단 건축주님의 의견대로 설계를 진행합니다. 왜냐? 저희들이 고정관념이라는 함정에 빠져 있을 수도 있거든요. 추상적인 개념의 집이라고 해서 무조건 배제시키는 것이 아니라 일단 구현을 해 보고자 노력합니다. 건축주님의 생각과 의견이 정답이라 생각하거든요. 이 집은 제가 사는 집이 아니라 건축주님과 가족분들이 사는 집이기 때문에 맞던 틀리던 무조건 건축주님의 주장이 옳다고 생각합니다. 저희들의 몫은 그 추상적인 부분을 가시적으로 확인할 수 있도록 구현시키는 데 있는 것이죠.


POINT.2

'단층도 아름다울 수 있다.'라는 것을 보여준 사례라고 생각합니다. 균형미와 웅장함까지 모두 갖추고 태어난 이번 주택. 개인적으로 정말 마음에 드는 원픽 전원주택이라고 생각합니다. 그림을 그릴 때는 좌, 우 밸런스를 맞추어 그리는 게 그렇게 어렵지 않습니다. 문제는 그것이 건축이라는 분야로 넘어오게 되면 이상하리만치 밸런스 있게 좌, 우를 맞추는 게 너무 어렵습니다. 그 이유는 생각보다 간단한데요. 외부만을 생각하고 그리는 것이 아니라 실내의 공간을 생각하면서 만들어 내야 하는 것이 입면 디자인이기 때문입니다. 외부도 중요하지만 내부는 더 중요하거든요. 디자인이 밸런스 있다고 해서 내부도 좌, 우 똑같이 설계할 수는 없겠죠.


POINT.3

이 집을 논할 때 '균형미의 승리'라는 이야기를 많이 하는데요. 단층 주택이 가지는 한계성을 많이 뛰어넘을 주택이기 때문입니다. 건축주님의 의견과 저희 건축가들의 주장이 잘 맞아떨어져서 이렇게 멋진 집으로 탄생한 것입니다. 추상적이다라는 이야기를 많이 하는데요. 저희들은 집 짓는 일이 업이다 보니 딱 보면 답 바로 나옵니다. 이 땅에는 어떻게 지어야 하고, 어떤 느낌으로 앉혀야 베스트다! 하지만 건축주님들은 감도 안 오시는 경우가 많습니다. 그래서 설계를 하다 보면 서로 다른 방향성을 이야기할 때가 있습니다. 이번 주택은 그러한 과정 없이 정말 궁합이 잘 맞는 것처럼 착착 설계가 진행된 프로젝트였습니다. 결과가 좋을 때는 다 그럴만한 이유가 있다는 것. 믿어주신 건축주님 너무 감사합니다.


SPEC

공법 : 경량목구조

설계, 시공 : 홈트리오(주) / 상담문의 : 1522-4279

ARTIST : 건축가 정다운, 임성재, 이동혁

홈페이지 : http://hometrio.kr/

지붕마감재 : 테릴 평기와 / 외벽 마감재 : 스타코플렉스, 모노롱타일(파벽돌) / 포인트자재 : 모노롱타일(파벽돌)

실내벽마감재 : 실크벽지 / 실내바닥마감재 : 이건 강마루

창호재 : 이건 알루미늄 3중 시스템창호

건축면적 : 167.20㎡(1층 : 167.20㎡)

예상 총 건축비 : 380,900,000원(부가세 포함, 산재보험료 포함 / 설계비, 인허가비, 구조계산 설계비 별도)

설계비 : 12,500,000원(부가세 포함) / 인허가비 : 5,000,000원(부가세 포함)

구조계산 설계비 : 5,000,000원(부가세 포함) / 인테리어 설계비 : 7,500,000원(부가세 포함)

*건축비 외 부대비용 : 대지구입비, 가구(싱크대, 신발장, 붙박이장), 기반시설 인입(수도, 전기, 가스 등), 토목공사, 조경비 등


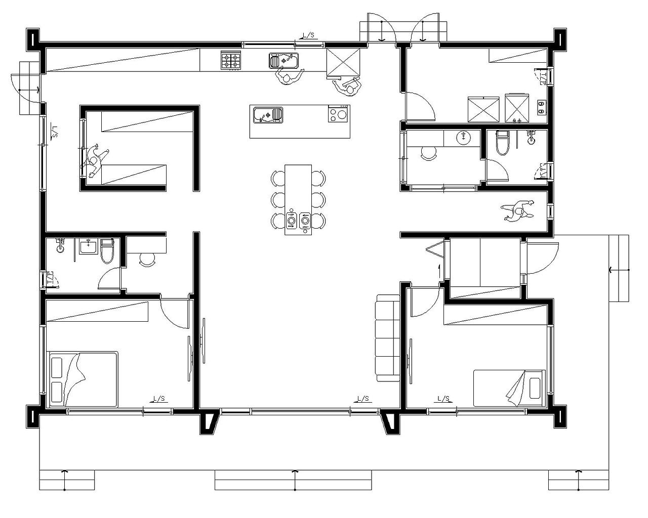
Floor Plan

1층.jpg 1층 평면도


<외관>

0.메인HC041-8090.jpg
HC041-0290.jpg
HC041-0293.jpg
HC041-0294.jpg
HC041-7886.jpg
HC041-7897.jpg
HC041-7900.jpg
HC041-7904.jpg
HC041-7913.jpg
HC041-7915.jpg
HC041-7936.jpg
HC041-8092.jpg

<현관>

HC041-8238.jpg
HC041-8242.jpg
HC041-8246.jpg
HC041-8251.jpg

<거실>

HC041-8061.jpg
HC041-8094.jpg
HC041-8189.jpg
HC041-8191.jpg
HC041-8194.jpg
HC041-8221.jpg
HC041-8253.jpg

<복도>

HC041-7981.jpg
HC041-7986.jpg
HC041-7996.jpg
HC041-8003.jpg
HC041-8016.jpg
HC041-8027.jpg
HC041-8036.jpg
HC041-8045.jpg
HC041-8059.jpg
HC041-8082.jpg
HC041-8103.jpg
HC041-8104.jpg
HC041-8111.jpg
HC041-8140.jpg
HC041-8140r.jpg

<주방>

HC041-7992.jpg
HC041-8009.jpg
HC041-8050.jpg
HC041-8053.jpg
HC041-8115.jpg
HC041-8122.jpg
HC041-8124.jpg
HC041-8126.jpg
HC041-8199.jpg
HC041-8205.jpg
HC041-8206.jpg
HC041-8209.jpg

<보조주방>

HC041-8073.jpg
HC041-8095.jpg
HC041-8129.jpg
HC041-8131.jpg
HC041-8135.jpg

<화장실>

HC041-8075.jpg
HC041-8076.jpg
HC041-8077.jpg
HC041-8079.jpg
HC041-8081.jpg
HC041-8085.jpg

<다용도실>

HC041-8010.jpg
HC041-8012.jpg
HC041-8014.jpg

<안방>

HC041-8148.jpg
HC041-8149.jpg
HC041-8153.jpg
HC041-8157.jpg
HC041-8160.jpg
HC041-8163.jpg
HC041-8167.jpg
HC041-8223.jpg
HC041-8225.jpg

<안방 화장실>

HC041-8171.jpg
HC041-8176.jpg
HC041-8177.jpg
HC041-8185.jpg
HC041-8186.jpg

<방1>

HC041-8229.jpg
HC041-8231.jpg
HC041-8232.jpg

<드레스룸>

HC041-8014.jpg
HC041-8025.jpg
HC041-8096.jpg
HC041-8097.jpg

<건축가 사진>

HC041-7862.jpg (좌측부터) 이동혁 건축가, 임성재 건축가, 정다운 건축가



이동혁 건축가 : 50평이라는 넓은 면적을 단층으로 구성한 거의 유일한 주택 사례이지 않을까 싶습니다. 단순 콤팩트하게 공간을 구성하는 것이 아니라 건축주님의 라이프스타일과 동선의 다양성 부분에서 공간 구성을 시작하였으며, 단순 복도 공간 그 이상의 공간으로 각 영역성을 설계하였습니다. 아마 이렇게 독특한 느낌의 내부 공간을 보시는 것은 처음이시지 않을까 싶습니다.


정다운 건축가 : 거실의 가로폭 사이즈가 목조주택에서 견딜 수 있는 5m 넘어 엄청난 대공간으로 설계가 되었습니다. 구조적 한계를 극복하기 위해 공학용 목재와 H빔 보강 등을 진행하였으며, 그 결과 압도적인 개방감을 느낄 수 있는 원 스페이스의 공용공간이 탄생했습니다. 목조 공법의 부재의 길이는 정해져 있습니다. 무조건 길이를 늘일 것이 아니라 설계 단계에서 꼭 구조검토받은 다음 집을 짓도록 하세요. 옆집은 저렇게 했으니 우리도 해도 된다라는 식으로는 절대로 하면 안 된다는 것. 저희들은 구조검토 및 보강 등을 진행한 후 5m 이상의 공간을 만든 것이니 함부로 따라 하시면 안 됩니다.


임성재 건축가 : 드레스룸 공간이 이 집의 매력 포인트라 할 수 있습니다. 사면이 복도로 감싸져 있고 그 사이에 드레스룸 공간이 존재해 한국식의 느낌보다는 아메리칸 라이프스타일 감성을 듬뿍 담아낸 공간이라 설명드리고 싶습니다. 특색 있는 공간이나 이국적인 느낌의 공간을 만났을 때 우리들이 처음 느끼는 감정은 '공간이 좀 낭비되는 것 같은데?'라는 느낌입니다. 공간을 사용하는 방법이나 라이프스타일이 완전히 다르기 때문에 그 공간을 설계하는 방식도 다른 것이죠. 모든 공간을 미국 스타일로 따라 하기보다는 부분적으로 혼합 적용하면 훨씬 더 재미있는 집을 만들 수 있을 거예요.


※모든 저작권은 홈트리오(주)에게 있습니다. 최근 무단으로 디자인과 설계 평면도를 복제해 마치 본인들이 한 것인 듯 홍보하는 업체들이 있는데 법적 책임을 물을 수 있다는 점 고지드립니다.

홈트리오 조직 계열도.jpg
프로필 통합본.jpg (좌측부터) 이동혁 건축가, 정다운 건축가, 임성재 건축가

[집이라는 본질적인 가치에 집중하다.]

Architecture Team : 홈트리오(주)

대표번호 : 1522-4279

홈페이지 : http://hometrio.kr/

KakaoTalk_20191210_164551850.jpg
KakaoTalk_20200521_090546896.jpg
img.jpg


keyword