brunch

2.8 53평 금산에 핀 꽃 한송이/금산

PART 2. 나만의 개성을 담아 집을 짓다

by 이동혁 건축가
KakaoTalk_20200521_090546896.jpg

제목 : 우리는 전원주택을 짓습니다

-홈트리오 완공 주택 30채의 이야기-


저자 : 이동혁, 임성재, 정다운


HC051-2588r.jpg

제목 : 우리는 전원주택을 짓습니다

부제 : 홈트리오 완공 주택 30채의 이야기


PART 2. 나만의 개성을 담아 집을 짓다

2.8 53평 금산에 핀 꽃 한송이/금산

0.메인 HC071-drone-0245(b).jpg

POINT.1

산이 가지고 있는 고즈넉한 분위기를 집과 연동시키고 싶었습니다. 집짓기 전 땅을 보면 건축가로서 떠오르는 아이디어들이 있는데요. 설계 중간에 바뀌는 경우도 있기는 하지만 대부분 처음의 느낌이 최종안으로서 선택받는 경우가 많습니다. 설계도면을 하나만 그려드리는 것은 아닙니다. 다양한 공간으로서 몇 가지 '안'을 그리며, 그중 건축주님과 협의하여 하나를 선택합니다. 그리고 그 안에서 계속 발전시켜 시공까지 이루어질 실시설계도면을 그리는 것이죠. 이번 의뢰받은 땅을 보았을 때 국내의 느낌보다는 태국의 치앙마이 같은 산속의 휴양지의 느낌을 많이 받았습니다. 그래서 그 분위기를 잘 흡수할 수 있는 집으로 탄생시키고자 노력하였으며, 그 결과가 이번 주택으로 잘 표현된 것 같습니다.


POINT.2

아내를 위한 완벽한 선물입니다. 건축주님께서 아내분 몰래 선물로서 준비한 주택이며, 시공이 시작된 후에야 건축주님 아내분께서 집에 대한 정보를 아시게 되었습니다. 완전 서프라이즈. 감동의 향연이었다는. 집을 설계할 때에도 곳곳에 아내분을 위한 배려들이 계획되었습니다. 남자의 감성보다는 여성의 감성을 담아내 지은 집이라고 생각해 주시면 좋을 것 같습니다. 집들도 성향이 있습니다. 좀 더 여성적인지, 아니면 남성미가 풍기는 집인지. 이번 주택은 완벽히 아내분의 취향과 라이프스타일을 집중 공략해서 지은 집입니다. 여성 취향 저격이라고 해도 과언이 아닐 거라 자부합니다.


POINT.3

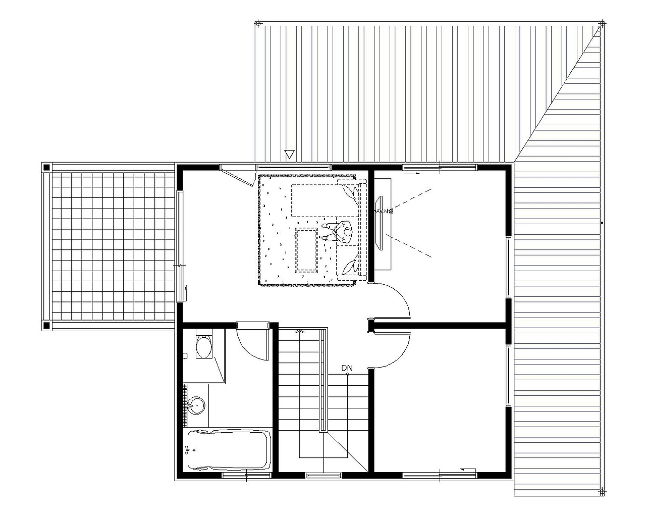
최고의 경치를 조망할 수 있도록 별도의 공간을 마련했습니다. 산 중턱에 앉힌 이번 주택은 사방이 최고의 절경으로 둘러싸인 땅이었습니다. 내부의 인테리어도 중요하지만 최고의 주변 경관을 그냥 방치할 수 없죠. 그래서 확실하게 2층에 지붕형 발코니 공간을 만들어 주었습니다. 음식을 해 먹을 수도 있으며, 가벼운 티 한잔의 여유도 즐길 수 있는 공간입니다. 3면에 폴딩도어를 설치해주어 외부와의 차단을 완벽히 이룰 수 있도록 하였으며, 여름에는 활짝 열어 사용하고 겨울에는 창을 닫아 다목적으로 활용할 수 있는 공간으로서 만들어 냈습니다.


SPEC

공법 : 경량목구조

설계, 시공 : 홈트리오(주) / 상담문의 : 1522-4279

ARTIST : 건축가 정다운, 임성재, 이동혁

홈페이지 : http://hometrio.kr/

지붕마감재 : 아스팔트슁글 / 외벽 마감재 : 스타코플렉스 / 포인트자재 : 파벽돌

실내벽마감재 : 실크벽지 / 실내바닥마감재 : 이건 강마루

창호재 : 이건 알루미늄 3중 시스템창호

건축면적 : 174.99㎡(1층 : 104.37㎡, 2층 : 70.62㎡)

예상 총 건축비 : 414,000,000원(부가세 포함, 산재보험료 포함 / 설계비, 인허가비, 구조계산 설계비 별도)

설계비 : 13,250,000원(부가세 포함) / 인허가비 : 5,300,000원(부가세 포함)

구조계산 설계비 : 5,300,000원(부가세 포함) / 인테리어 설계비 : 7,950,000원(부가세 포함)

*건축비 외 부대비용 : 대지구입비, 가구(싱크대, 신발장, 붙박이장), 기반시설 인입(수도, 전기, 가스 등), 토목공사, 조경비 등


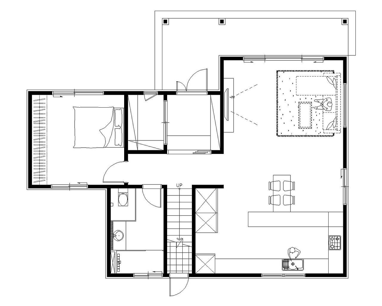
Floor Plan

1.jpg 1층 평면도
2.jpg 2층 평면도

<외관>

0.메인 HC071-drone-0245(b).jpg
HC071-7216(b).jpg
HC071-7219(b).jpg
HC071-7224(b).jpg
HC071-7231(b).jpg
HC071-7233(b).jpg
HC071-7236(b).jpg
HC071-7242(b).jpg
HC071-7244(b).jpg
HC071-7250(b).jpg
HC071-7252(b).jpg
HC071-drone-0248(b).jpg

<현관>

HC071-7153(b).jpg
HC071-7155(b).jpg
HC071-7203(b).jpg
HC071-7208(b).jpg
HC071-7209(b).jpg
HC071-7211(b).jpg
HC071-7211(h).jpg
HC071-7213(b).jpg

<거실>

HC071-7148(b).jpg
HC071-7149(b).jpg
HC071-7152(b).jpg
HC071-7166(b).jpg
HC071-7168(b).jpg
HC071-7171(b).jpg
HC071-7172(b).jpg
HC071-7174(b).jpg
HC071-7177(b).jpg
HC071-7179(b).jpg
HC071-7181(b).jpg

<주방>

HC071-7183(b).jpg
HC071-7185(b).jpg
HC071-7188(b).jpg
HC071-7190(b).jpg
HC071-7192(b).jpg
HC071-7199(b).jpg
HC071-7202(b).jpg

<1층 화장실>

HC071-7159(b).jpg
HC071-7160(b).jpg
HC071-7163(b).jpg
HC071-7164(b).jpg

<1층 방>

HC071-7131(b).jpg
HC071-7134(b).jpg
HC071-7136(b).jpg
HC071-7137(b).jpg
HC071-7140(b).jpg
HC071-7141(b).jpg
HC071-7143(b).jpg
HC071-7145(b).jpg

<계단실>

HC071-7113(b).jpg
HC071-7115(b).jpg
HC071-7116(b).jpg
HC071-7119(b).jpg
HC071-7122(b).jpg
HC071-7123(b).jpg
HC071-7130(b).jpg

<2층 거실>

HC071-7022(b).jpg
HC071-7025(b).jpg
HC071-7027(b).jpg
HC071-7029(b).jpg
HC071-7032(b).jpg
HC071-7034(b).jpg
HC071-7036(b).jpg
HC071-7038(b).jpg
HC071-7039(b).jpg
HC071-7043(b).jpg
HC071-7061(b).jpg

<2층 취미방>

HC071-7046(b).jpg
HC071-7048(b).jpg
HC071-7049(b).jpg
HC071-7051(b).jpg
HC071-7053(b).jpg
HC071-7055(b).jpg
HC071-7058(b).jpg
HC071-7059(b).jpg

<2층 작은방>

HC071-7063(b).jpg
HC071-7066(b).jpg
HC071-7067(b).jpg
HC071-7069(b).jpg
HC071-7071(b).jpg
HC071-7074(b).jpg
HC071-7075(b).jpg
HC071-7078(b).jpg

<2층 발코니>

HC071-7080(b).jpg
HC071-7082(b).jpg
HC071-7083(b).jpg
HC071-7086(b).jpg
HC071-7089(b).jpg
HC071-7091(b).jpg
HC071-7094(b).jpg
HC071-7095(b).jpg
HC071-7098(b).jpg

<2층 화장실>

HC071-7100(b).jpg
HC071-7101(b).jpg
HC071-7104(b).jpg
HC071-7107(b).jpg
HC071-7108(b).jpg
HC071-7110(b).jpg

<건축가 사진>

HC071-대표님수정7(무로고).jpg (좌측부터) 정다운 건축가, 임성재 건축가, 이동혁 건축가


이동혁 건축가 : 포치와 발코니가 확실한 포지션을 가지고 구성되었습니다. 단순 현관 진입이나 2층 바람 쐬기용이 아닌 앉아서 차를 마실 수 있고 활동을 영위할 수 있는 공간으로 설계를 진행하였습니다. 일반적으로 이러한 포치나 발코니를 잘 구성하지 않는 이유는 딱 하나입니다. 바로 '돈'인데요. 공짜가 아닌 건축비가 들어가는 공간이다 보니 초기 기획안에서는 많이 적용하지만 최종 마무리 단계에서는 많이 사라지는 것이 현실입니다. 이번 주택에서는 많은 협의 끝에 이 공간을 죽이지 않고 살렸는데요. 이 공간은 비가 올 때 특히 빛을 발하는 공간이 될 거라 의심치 않습니다.


정다운 건축가 : 지붕을 박공지붕과 모임지붕 두 가지 타입을 혼합 사용하였습니다. 1층에서는 안정감 있는 디자인을, 그리고 2층에서는 깔끔하면서 모던한 느낌을 동시에 느길 수 있게 디자인한 것입니다. 또한 스타코플렉스 톤 변화와 포인트 파벽돌 색상을 두 가지 혼합 사용하면서 건축주님의 취향과 디자인적인 저희들의 의견을 잘 일치시킨 모델이라 할 수 있습니다. 일반적인 집의 느낌이 아니라 유니크함을 만들어내고자 한 설계라 생각해 주시면 될 것 같습니다.


임성재 건축가 : 평면구성을 할 때 답답한 것을 싫어하시는 건축주님의 니즈에 따라 일반 스케일보다 크게 구성을 진행하였습니다. 53평이라는 넓은 실내면적에 비해 평면구성이 단순해 보인다 생각하실 텐데요. 그 이유는 공간 스케일 자체가 크게 크게 구성되었기 때문입니다. 거실과 주방에 사람의 인체 스케일을 배치해 놓았으니 그 기준으로 공간을 보신다면 이 공간이 얼마나 크게 구성되었는지를 쉽게 인지할 수 있을 거예요. 가족들이 모이는 집이기 때문에 거실을 2개 구성했습니다. 가족실이라는 명칭으로 많이 불리는데 이 공간이 있어야 자녀들이 편히 쉬다갈 수 있다는 것은 안 비밀입니다.



※모든 저작권은 홈트리오(주)에게 있습니다. 최근 무단으로 디자인과 설계 평면도를 복제해 마치 본인들이 한 것인 듯 홍보하는 업체들이 있는데 법적 책임을 물을 수 있다는 점 고지드립니다.

홈트리오 조직 계열도.jpg
프로필 통합본.jpg (좌측부터) 이동혁 건축가, 정다운 건축가, 임성재 건축가

[집이라는 본질적인 가치에 집중하다.]

Architecture Team : 홈트리오(주)

대표번호 : 1522-4279

홈페이지 : http://hometrio.kr/

KakaoTalk_20191210_164551850.jpg
KakaoTalk_20200521_090546896.jpg
img.jpg


keyword