brunch

3.9 86평 3대가 같이 사는 집/청라

PART 3. 꿈의 집을 짓다

by 이동혁 건축가
KakaoTalk_20200521_090546896.jpg

제목 : 우리는 전원주택을 짓습니다

-홈트리오 완공 주택 30채의 이야기-


저자 : 이동혁, 임성재, 정다운


HC051-2588r.jpg

제목 : 우리는 전원주택을 짓습니다

부제 : 홈트리오 완공 주택 30채의 이야기


PART 2. 나만의 개성을 담아 집을 짓다

3.9 86평 3대가 같이 사는 집/청라

0.메인 HC033-6517.jpg


POINT.1

부모님 집과 완벽히 분리된 동선으로 설계된 듀플렉스 하우스입니다. 모던 스타일을 기반으로 디자인이 되었으며, 듀플렉스 하우스지만 하나의 단독주택처럼 보일 수 있도록 설계하였습니다. 1층의 일부는 부모님이 거주하고, 나머지 1층과 2층 전체를 자녀세대가 활용할 수 있도록 현관부터 동선을 분리하여 집을 지었습니다. 전면부가 깔끔하게 느껴지는 이유는 현관이 뒤쪽에 있기 때문입니다. 도로가 북쪽에 놓여 있기 때문에 자연스럽게 앞마당과 깔끔한 전면부의 디자인이 탄생할 수 있었습니다.


POINT.2

젊은 감성으로 디자인된 도심형 단독주택입니다. 군더더기 없는 면과 선의 정리로 청라지구의 랜드마크적인 건물이 탄생했습니다. 목조 공법으로 단열성을 잡고 모노롱벽돌과 스타코플렉스의 외장 조합으로 깔끔하면서 세련된 멋을 모던 스타일과 결합시켜 결과물을 만들어 냈습니다. 옛날에는 포인트를 줄 때 색을 넣거나 강렬한 자재들을 활용하여 임팩트를 부여해 주었는데, 최근 트렌드는 있는 듯 없는 듯 자연스럽게 분위기를 자아내는 것에 더 중점이 맞춰지고 있습니다. 또한 창문의 단열성이 높아지면서 창의 크기가 점차 커지고 있기 때문에 별도의 포인트를 넣지 않더라도 창문 자체가 액차처럼 포인트가 될 수 있는 환경이 조성되었다고 할 수 있습니다.


POINT.3

누수의 위험성을 '0'에 맞춘 주택입니다. 옥상면이 없이 모두 지붕을 덮은 집입니다. 외쪽지붕과 박공지붕을 각 매스 별로 혼합 사용하여 입체감과 볼륨감을 극대화시켜주었습니다. 전면부만 보았을 때는 지붕면이 일부를 제외하고는 거의 보이지 않아 평지붕 마감한 것처럼 느껴지지만 실상은 뒤쪽면으로 모두 경사지붕을 배치하고 전면부에는 벽을 올려 집은 커 보이고 물매는 확실하게 뒤로 빼주는 디자인적 기법을 활용했습니다. 이 집이 타 주택보다 커 보이는 이유는 내부 공간을 구성할 때 매스 분절이라는 기법으로 넣고 빼고 하는 부분을 많이 만들어 주었고, 그것이 입면과 연결되면서 볼륨감을 최대치로 상승시켜 주었기 때문입니다. 이렇게 하면 별도의 외장재의 포인트가 없더라도 그 매스 자체로 포인트가 될 수 있기 때문에 외장 포인트 비용을 줄일 수 있다는 장점이 발생합니다.


SPEC

공법 : 경량목구조

설계, 시공 : 홈트리오(주) / 상담문의 : 1522-4279

ARTIST : 건축가 정다운, 임성재, 이동혁

홈페이지 : http://hometrio.kr/

지붕마감재 : 아스팔트슁글 / 외벽 마감재 : 스타코플렉스 / 포인트자재 : 리얼징크, 파벽돌, 세라믹사이딩

실내벽마감재 : 실크벽지/ 실내바닥마감재 : 이건 강마루

창호재 : 이건 알루미늄 3중 시스템창호

건축면적 : 285.16㎡(1층 : 150.85㎡, 2층 : 126.71㎡, 다락 : 7.6㎡)

예상 총 건축비 : 628,800,000원(부가세 포함, 산재보험료 포함 / 설계비, 인허가비, 구조계산 설계비 별도)

설계비 : 21,500,000원(부가세 포함) / 인허가비 : 8,600,000원(부가세 포함)

구조계산 설계비 : 8,600,000원(부가세 포함) / 인테리어 설계비 : 12,900,000원(부가세 포함)

*건축비 외 부대비용 : 대지구입비, 가구(싱크대, 신발장, 붙박이장), 기반시설 인입(수도, 전기, 가스 등), 토목공사, 조경비 등


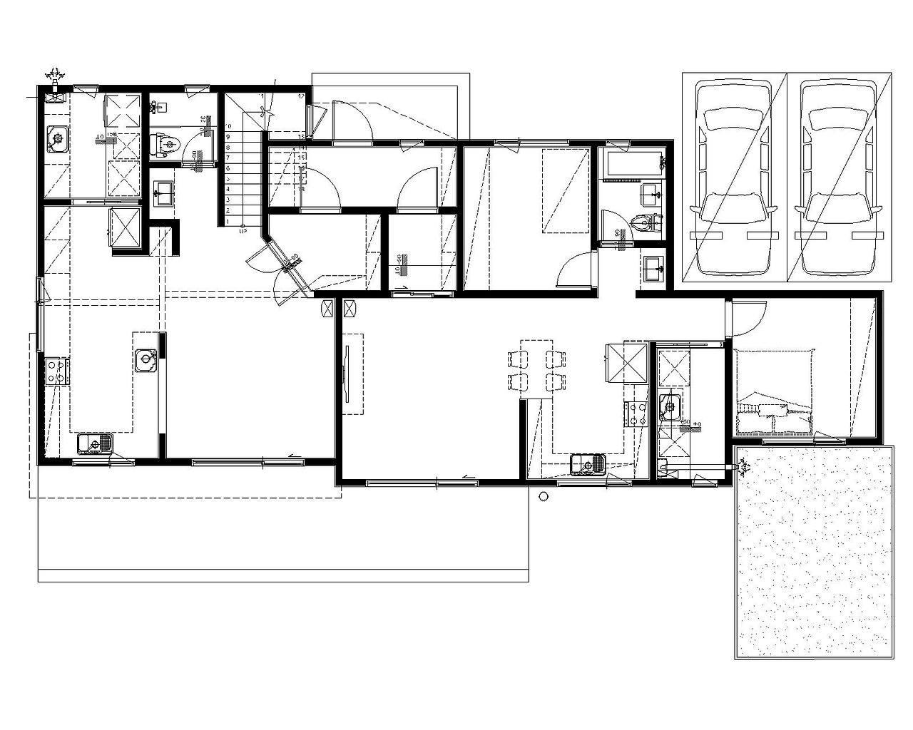
Floor Plan

1층.jpg 1층 평면도
2층.jpg 2층 평면도

<외관>

0.메인 HC033-6517.jpg
HC033-0205.jpg
HC033-0211.jpg
HC033-0213.jpg
HC033-6519.jpg
HC033-6524.jpg

[부모님집]

<현관>

HC033-6460.jpg
HC033-6462.jpg
HC033-6463.jpg

<거실>

HC033-6464.jpg
HC033-6466.jpg
HC033-6467.jpg
HC033-6470.jpg

<주방>

HC033-6471.jpg
HC033-6473.jpg
HC033-6474.jpg

<방1>

HC033-6391.jpg
HC033-6393.jpg
HC033-6394.jpg
HC033-6398.jpg

<드레스룸>

HC033-6408.jpg
HC033-6410.jpg

<안방>

HC033-6480.jpg
HC033-6481.jpg
HC033-6483.jpg
HC033-6484.jpg
HC033-6485.jpg
HC033-6486.jpg
HC033-6487.jpg
HC033-6488.jpg
HC033-6489.jpg
HC033-6490.jpg

<화장실>

HC033-6492.jpg
HC033-6496.jpg
HC033-6498.jpg
HC033-6499.jpg
HC033-6502.jpg

<다용도실>

HC033-6477.jpg
HC033-6478.jpg
HC033-6479.jpg


[아들집]

<현관>

HC033-6329.jpg
HC033-6331.jpg
HC033-6332.jpg
HC033-6333.jpg
HC033-6337.jpg

<거실>

HC033-6342.jpg
HC033-6343.jpg
HC033-6345.jpg
HC033-6346.jpg
HC033-6348.jpg
HC033-6351.jpg
HC033-6363.jpg
HC033-6475.jpg

<주방>

HC033-6353.jpg
HC033-6354.jpg
HC033-6356.jpg
HC033-6358.jpg
HC033-6360.jpg
HC033-6361.jpg
HC033-6372.jpg
HC033-6373.jpg
HC033-6374.jpg
HC033-6375.jpg

<1층 화장실>

HC033-6366.jpg
HC033-6368.jpg
HC033-6399.jpg
HC033-6400.jpg
HC033-6401.jpg
HC033-6403.jpg
HC033-6404.jpg

<계단실>

HC033-6376.jpg
HC033-6378.jpg
HC033-6379.jpg
HC033-6380.jpg
HC033-6424.jpg
HC033-6459.jpg

<2층 거실>

HC033-6382.jpg
HC033-6383.jpg
HC033-6385.jpg
HC033-6387.jpg
HC033-6389.jpg
HC033-6390.jpg
HC033-6412.jpg
HC033-6414.jpg
HC033-6426.jpg
HC033-6433.jpg

<2층 화장실>

HC033-6434.jpg
HC033-6436.jpg
HC033-6438.jpg
HC033-6441.jpg
HC033-6442.jpg
HC033-6444.jpg
HC033-6445.jpg
HC033-6447.jpg
HC033-6448.jpg
HC033-6454.jpg

<2층 방1>

HC033-6416.jpg
HC033-6419.jpg
HC033-6420.jpg
HC033-6422.jpg

<2층 방2>

HC033-6427.jpg
HC033-6428.jpg
HC033-6430.jpg
HC033-6431.jpg

<2층 방3>

HC033-6455.jpg
HC033-6457.jpg
HC033-6458.jpg

<건축가 사진>

HC033-6307.jpg (좌측부터) 이동혁 건축가, 임성재 건축가, 정다운 건축가

이동혁 건축가 : 디자인을 먼저 잡고 평면을 잡는 것이 아닌 내부 공간을 먼저 구성 후 그다음 디자인을 잡는 것이 순서입니다. 원하는 디자인은 공간 설계가 끝난 후 옷을 입히는 단계이며, 디자인에 맞추어 설계가 이루어지지는 않습니다. 그 이유는 간단합니다. 삶은 중심이 되는 공간은 내부 공간 구성과 동선이지 디자인이 아니거든요. 빌딩이나 작품성을 원하시는 건축물의 경우에는 디자인부터 잡기도 하지만 주거에서는 절대로 그렇게 하지 않습니다. 꼭 기억하세요. 내가 살아갈 실내공간 구성이 우선이라는 것을요.


정다운 건축가 : 창문을 전 창 알루미늄 3중 시스템으로 구성한 이후 단열적인 부분과 내구성에 대한 불만은 거의 안 나오고 있어요. 이보다 더 좋은 창은 없다시피 하거든요. 벽체 단열과 창문 단열. 여기서 돈 줄일 생각 마시고 제일 좋은 것으로 하세요. 그래야 10년이 지나도 후회가 없습니다.


임성재 건축가 : 캥거루 주택의 이미지도 많이 변화되고 있습니다. 단순히 다가구로 짓는 느낌이 아닌 하나의 집이지만 내부에서 공간이 구분되는 형태. 그리고 꼭 두 집이 같은 형태로 지어져야 하는 것도 아닙니다. 내 땅에 내 건물을 짓는 만큼 원하시는 공간만큼만 설계하고 지으시면 됩니다. 각 가족의 구성원에 따라 얼마든지 내부 공간 설계가 가능하답니다. 마지막으로 팔 생각하고 집 짓지 마세요. 그냥 건축주님이 처음부터 원하셨던 이상적인 공간으로 설계하세요. 간혹 집 팔 생각으로 가족 구성원과 상관없이 설계하시는 분들이 계신데 분명 후회하십니다. 아셨죠! 단독주택은 아파트가 아님을 기억하셔야 합니다.


※모든 저작권은 홈트리오(주)에게 있습니다. 최근 무단으로 디자인과 설계 평면도를 복제해 마치 본인들이 한 것인 듯 홍보하는 업체들이 있는데 법적 책임을 물을 수 있다는 점 고지드립니다.

홈트리오 조직 계열도.jpg
프로필 통합본.jpg (좌측부터) 이동혁 건축가, 정다운 건축가, 임성재 건축가

[집이라는 본질적인 가치에 집중하다.]

Architecture Team : 홈트리오(주)

대표번호 : 1522-4279

홈페이지 : http://hometrio.kr/

KakaoTalk_20191210_164551850.jpg
KakaoTalk_20200521_090546896.jpg
img.jpg


keyword