3.6 73평 일산 애니아트힐즈-두번째 스토리/일산

PART 3. 꿈의 집을 짓다

by 이동혁 건축가
KakaoTalk_20200521_090546896.jpg

제목 : 우리는 전원주택을 짓습니다

-홈트리오 완공 주택 30채의 이야기-


저자 : 이동혁, 임성재, 정다운


HC051-2588r.jpg

제목 : 우리는 전원주택을 짓습니다

부제 : 홈트리오 완공 주택 30채의 이야기


PART 2. 나만의 개성을 담아 집을 짓다

3.6 73평 일산 애니아트힐즈-두번째 스토리/일산


0.메인 메인컷.jpg


POINT.1

창문이라는 액자를 걸었다. 창문이 포인트가 될 수 있는 건물로 설계를 진행했습니다. 외부의 디자인뿐만 아니라 내부에서 바라보는 조망권 및 채광을 기준으로 픽스 창과 열리는 창을 배치했습니다. 다소 창이 많은 느낌을 받을 것입니다. 실내가 어둡지 않고 항상 밝은 기운으로 감돌기 바라는 건축주님의 요청에 따라 북쪽을 제외한 남쪽에 많은 창을 배치해 주었습니다. 실내에서는 오히려 각 공간별로 창을 배치해 주었기 때문에 낮 동안에는 조명을 켜지 않더라도 항시 밝은 실내 공간을 유지시킬 수 있습니다.


POINT.2

앞마당을 확실히 만들어낸 배치라고 할 수 있습니다. 도심형 택지지구의 경우 땅이 좁고 긴 형태로 구분 지어지기 때문에 어설프게 건물을 배치했다가는 마당 없이 집만 달랑 앉히는 경우들이 종종 있습니다. 전원주택의 매력은 마당입니다. 실내 공간도 매리트가 있어야 하지만 아파트와 차이점을 느끼기 위해서는 무조건 앞마당이 존재를 해야 합니다. 좁은 도심지 땅에서 이 앞마당을 얼마나 확보해 줄 수 있느냐에 따라 땅의 가치가 달라지게 될 것입니다. 이번 주택은 도로가 쪽으로 최소한의 이격거리만 확보한 뒤 바짝 붙였습니다. 그리고 가로로 긴 형태의 공간 배치를 한 후 마당을 최대한 확보할 수 있는 형태로 설계를 진행했습니다. 앞마당이 필요하면 오늘 주택의 배치를 눈여겨 봐주시길 바랍니다.


POINT.3

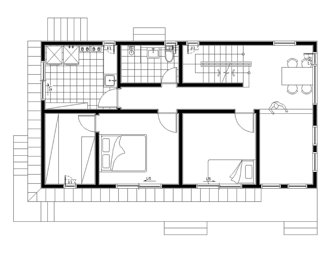
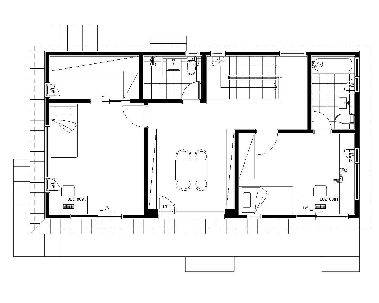
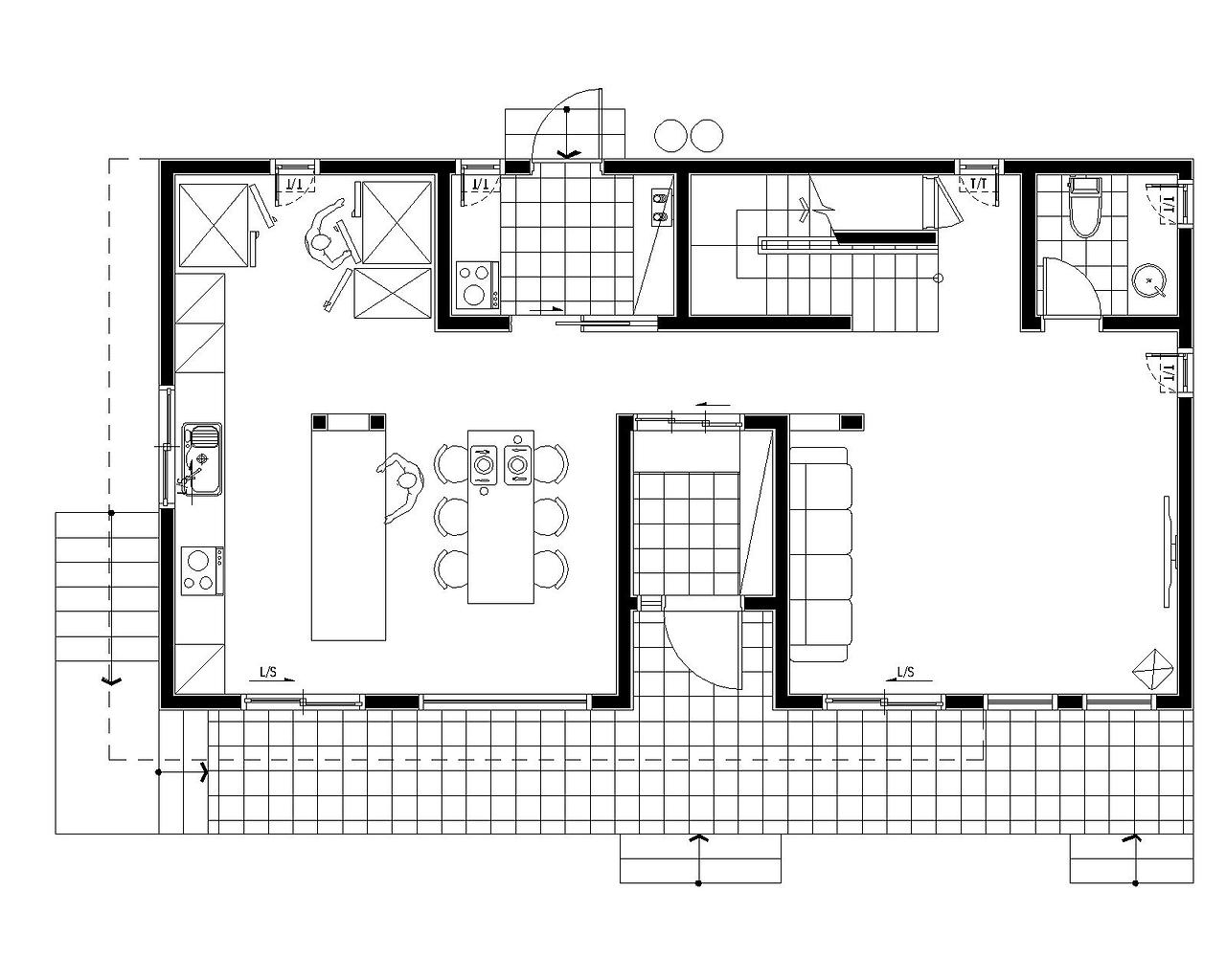
층별로 영역성을 구분 지어준 주택입니다. 좁은 땅에 작은 건폐율이 적용되었을 경우 무리하게 한 층에 많은 실을 넣는 것은 비추천입니다. 선택과 집중을 해야지만 각 공간별로 쓸모 있는 공간이 탄생할 수 있습니다. 우선 1층의 공용공간은 말 그래도 공용공간으로 집중을 하는 것입니다. 거실과 주방, 식당에 영역성을 확보해 준 뒤 2층부터는 침실과 다용도실, 3층은 자녀의 공간 등으로 각 층으로서 동선 및 공간의 영역성을 정리해 주는 것입니다. 이러한 공간배치가 어색할 수도 있습니다. 하지만 20평 초반대의 바닥 구성을 가져가는 경우라면 이번 주택처럼 공간 설계를 진행해야만 실제로 지어졌을 때 원하는 공간감이 나올 것입니다.


SPEC

공법 : 경량목구조(공학용목재 보강)

설계, 시공 : 홈트리오(주) / 상담문의 : 1522-4279

ARTIST : 건축가 정다운, 임성재, 이동혁

홈페이지 : http://hometrio.kr/

지붕마감재 : 아스팔트슁글, 리얼징크 / 외벽 마감재 : 모노롱벽돌 / 포인트자재 : 모노롱타일, 리얼징크

실내벽마감재 : 도장마감, 실크벽지 / 실내바닥마감재 : 이건 강마루, 포세린 타일

창호재 : 이건 알루미늄 3중 시스템창호

건축면적 : 240.82㎡(1층 : 80.28㎡, 2층 : 80.27㎡, 3층 : 80.27㎡)

예상 총 건축비 : 657,000,000원(부가세 포함, 산재보험료 포함 / 설계비, 인허가비, 구조계산 설계비 별도)

설계비 : 18,250,000원(부가세 포함) / 인허가비 : 7,300,000원(부가세 포함)

구조계산 설계비 : 7,300,000원(부가세 포함) / 인테리어 설계비 : 10,950,000원(부가세 포함)

*건축비 외 부대비용 : 대지구입비, 가구(싱크대, 신발장, 붙박이장), 기반시설 인입(수도, 전기, 가스 등), 토목공사, 조경비 등


Floor Plan

1층.jpg 1층 평면도
2층.jpg 2층 평면도
3층.jpg 3층 평면도

<외관>

0.메인 메인컷.jpg
HC058-5750.jpg
HC058-5794.jpg
HC058-5797.jpg
HC058-5798.jpg
HC058-5810.jpg
HC058-5820.jpg
HC058-5892.jpg
HC058-5909.jpg
HC058-6006.jpg
HC058-6088.jpg
HC058-6100.jpg
HC058-6104.jpg

<현관>

HC058-5808.jpg
HC058-6011.jpg

<1층 거실>

HC058-5910.jpg
HC058-5928.jpg
HC058-5941.jpg
HC058-5942.jpg
HC058-5945.jpg
HC058-5947.jpg
HC058-5948.jpg
HC058-5958.jpg

<주방>

HC058-5950.jpg
HC058-5952.jpg
HC058-5954.jpg
HC058-5955.jpg
HC058-5959.jpg
HC058-5961.jpg
HC058-5962.jpg
HC058-5966.jpg
HC058-5967.jpg
HC058-6109.jpg

<1층 화장실>

HC058-5971.jpg
HC058-5974.jpg

<1층 계단실>

HC058-5933.jpg
HC058-5936.jpg
HC058-5978.jpg
HC058-5979.jpg

<2층 거실>

HC058-5786.jpg
HC058-5984.jpg
HC058-5985.jpg

<2층 방>

HC058-5991.jpg
HC058-6017.jpg

<2층 드레스룸>

HC058-5997.jpg

<2층 화장실>

HC058-6002.jpg
HC058-6024.jpg
HC058-6025.jpg

<2층 다용도실>

HC058-5999.jpg

<2층 계단실>

HC058-5987.jpg
HC058-6028.jpg
HC058-6030.jpg

<3층 거실>

HC058-6034.jpg
HC058-6035.jpg
HC058-6060.jpg
HC058-6063.jpg
HC058-6070.jpg
HC058-6072.jpg

<3층 방1>

HC058-6048.jpg

<3층 방1 화장실>

HC058-6037.jpg
HC058-6040.jpg
HC058-6041.jpg

<3층 방2>

HC058-6054.jpg
HC058-6055.jpg
HC058-6056.jpg

<3층 화장실>

HC058-6066.jpg
HC058-6068.jpg

<건축가 사진>

HC058-5922.jpg (좌측부터) 정다운 건축가, 임성재 건축가, 이동혁 건축가

이동혁 건축가 : 도심형 단독주택 택지의 한계점을 뛰어넘은 주택으로 설계가 되었다 자부합니다. 도심형 택지의 한계성은 바로 좁은 대지면적에 있는데요. 건폐율이 그나마 높은 곳은 괜찮지만 20% 정도의 대지에서는 생각보다 원하는 공간을 설계하기가 여간 까다로운 것이 아닙니다. 이번 주택의 경우 지역 조례에 따라 5%가 더 늘어난 건폐율 25%의 대지였는데요. 이러한 대지에서는 넣고 빼고의 느낌으로 설계하는 것이 아니라 내가 찾아먹을 수 있는 최대의 면적을 모두 찾아먹으면서 설계해야 됩니다. 안 그래도 좁은 1층 면적인데 어설프게 모양낸다고 면적을 낭비해버리면 정말로 애매한 공간으로 집이 탄생할 수도 있거든요. 건축주님의 라이프스타일에 맞추어 요소들을 넣어주고, 각 층별로 활동에 대한 영역성을 명확하게 부여해주어 모든 공간이 알찬 공간 구성으로 설계가 완료될 수 있었습니다.


정다운 건축가 : 요즘 외장 트렌드는 색을 빼주고 하나의 마감으로 집을 디자인하는 것이 추세입니다. 옛날에는 각 공간과 분리되는 부위별로 다른 외장재를 사용해 볼륨감을 드러내 주고자 하는 것이 유행이었는데, 그 시점을 지나 오히려 단순하고 깨끗한 느낌을 집에 넣어주고자 하는 분위기가 형성되어 있습니다. 젊은 건축가의 한 사람으로서 개인적인 방향성을 정한다고 하면, 저도 깔끔하고 정돈된 느낌의 외장 디자인이 질리지도 않고 고급스러움을 느끼게 해 준다고 이야기드리고 싶습니다.


임성재 건축가 : 3층 이상의 건물은 목조 공법으로는 안됩니다. 무조건 철근콘크리트 공법으로 진행해야 하며, 간혹 목조로도 된다고 우기시는 분들이 계신데, 지금 당장은 문제가 없어 보일 뿐 장기적으로 보았을 때는 목조 부재가 처지거나 휘어질 수밖에 없습니다. 3층 이상을 원하시는 분들은 목조가 아닌 철근콘크리트 공법으로 해야 한다는 거 잊지 마세요. 아! 그리고 지하주차장을 목조로 한다고 말도 안 되는 이야기를 하시는 분들이 계세요. 지하는 습이 엄청 많은 공간입니다. 아무리 방수를 잘한다고 해도 목조는 썩을 수밖에 없습니다. 새로운 공법이 나왔다고, 그리고 새로운 특허가 나왔다고 목조로 지하에 골조를 만드시는 분들이 계신데 말도 안 되는 이야기니 제발 정상적인 방법으로 좀 진행해 주세요. 꼭 이런 분들이 나중에 자기는 아무것도 몰랐으니 공사업체 보고 사기라고 우기시는데 모르고 하신 것도 잘못입니다. 꼭 공부 많이 하시고 확신이 들었을 때 일을 진행하세요.


※모든 저작권은 홈트리오(주)에게 있습니다. 최근 무단으로 디자인과 설계 평면도를 복제해 마치 본인들이 한 것인 듯 홍보하는 업체들이 있는데 법적 책임을 물을 수 있다는 점 고지드립니다.

홈트리오 조직 계열도.jpg
프로필 통합본.jpg (좌측부터) 이동혁 건축가, 정다운 건축가, 임성재 건축가

[집이라는 본질적인 가치에 집중하다.]

Architecture Team : 홈트리오(주)

대표번호 : 1522-4279

홈페이지 : http://hometrio.kr/

KakaoTalk_20191210_164551850.jpg
KakaoTalk_20200521_090546896.jpg
img.jpg