2.2 150평 남양주 포스힐:PH150

PART 2. February-젊은 전원주택 트렌드 5

by 이동혁 건축가
KakaoTalk_20200521_090546896.jpg

스타 건축가 3인방의 집짓기 제안

제목 : 젊은 전원주택 트렌드 5

-아이들과 함께하는 행복한 집짓기-


저자 : 이동혁, 임성재, 정다운


PART 2. February


이월 두 번째. 150평 남양주 포스힐:PH150


※모든 저작권은 홈트리오(주)에게 있습니다. 최근 무단으로 디자인과 설계 평면도를 복제해 마치 본인들이 한 것인 듯 홍보하는 업체들이 있는데 법적 책임을 물을 수 있다는 점 고지 드립니다.


STORY


: 남양주 포스힐 프로젝트.

도심형 프리미엄 단독주택에 맞는 디자인으로 설계가 완료되었습니다.

이건창호의 3중 시스템창호가 기본 적용되었으며, 라임스톤 석재 마감이 전 면을 감싸 안아 더욱 고급스러움을 배가 될 수 있도록 했습니다.


지하주차장 포함 실 건축면적이 150평에 달하는 대규모를 자랑하는 단독주택이며, 도심형 단독주택에서 누릴 수 있는 모든 요소를 품고 태어난 주택입니다.

압도적인 디자인에 그동안 보아오지 못했던 프리미엄급 인테리어 마감. 지금 시작합니다.


도심형 단독주택의 경우 건폐율과 용적률을 한계선까지 모두 채우는 것이 일반적입니다. 그 이유는 간단해요. 땅 자체가 비싸기 때문에 어설프게 남겨서 시공하는 것이 아닌 꽉 채워서 그 가치를 맥스로 채우는 것이에요.


처음 공간 조닝을 할 때에도 법규 테두리 안에서 이격거리를 제외하고 건폐율적으로 1층에 앉힐 수 있는 최대의 공간을 우선 배정해 줍니다. 그다음 그 안에서 현관 위치를 잡고, 코어 부분인 계단실 위치를 잡습니다.


현관과 코어 부분의 배치가 잡히면 의외로 나머지 공간들은 자연스럽게 자리를 잡는데요. 그 이유는 남향에 배치되어야 할 실과, 해를 받지 않고 북쪽으로 가도 되는 실들이 이미 구분되어 있기 때문이에요. 침실을 북향으로 놓지는 않거든요.


고급 단독주택의 매력은 집을 진입하는 첫 공간인 지하주차장에서부터 시작됩니다. 지하주차장이 어두울 것이라는 생각은 금물. 요즘 짓는 집들은 지하공간이 오히려 더 화려해요. 집의 첫인상을 결정하는 공간이다 보니 설계적으로나 비용적으로나 힘을 많이 주거든요. 간접조명부터 시작해서 벽 마감까지. 아마 단순 평당 건축비로 환산한다면 지상층의 방보다 더 많은 비용이 들어가는 부위일 거예요.


대형 평수의 주택을 디자인할 때 외벽 마감재를 생각보다 심도 있게 고민합니다. 그 이유는 가벼운 느낌이 아닌 묵직하면서 깔끔한 느낌을 넣어주어야 하거든요. 규모가 있다 보니 너무 가벼운 느낌의 마감재를 사용하면 붕 떠 보이는 느낌이 들어요. 그래서 가급적 석재 위주의 마감자재를 선정하고, 어설프게 포인트를 넣는 것이 아닌 하나의 자재를 전체면에 입혀주려고 합니다. 하나의 자재만 사용하면 심심할 것 같다고 생각하시는 분들이 계신데요. 절대 그렇지 않습니다. 소형 주택에서는 하나의 자재만 사용하면 매스 자체가 작아서 걱정하시는 부분처럼 조금 심심하고 창고처럼 보일 수 있는 단점이 있습니다.


하지만 규모가 받쳐준다면 그런 느낌은 아예 들지 않을 거예요. 오히려 고급스러운 느낌이 배가되는 느낌일 것입니다.


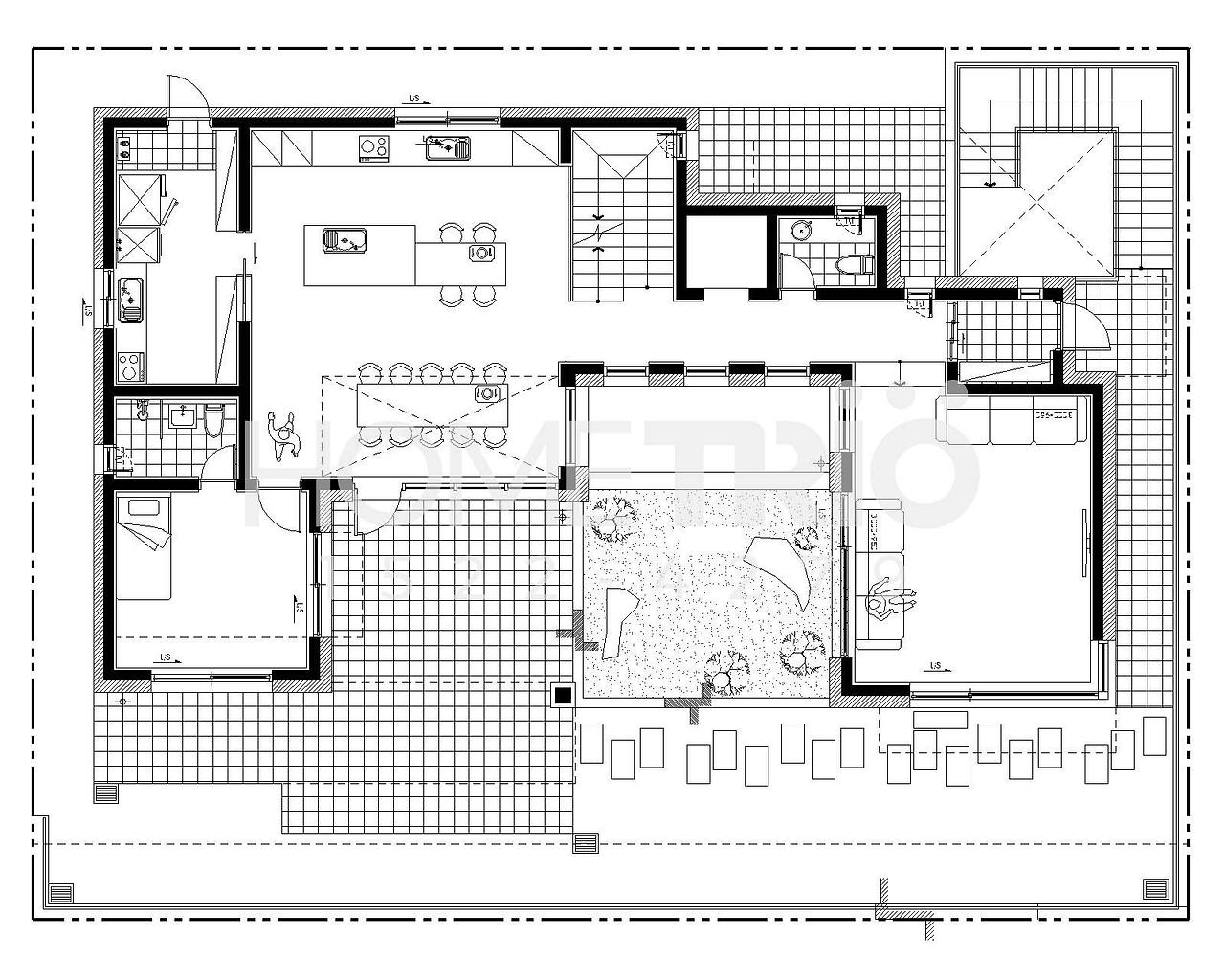
평면을 좀 살펴볼게요. 철근콘크리트 주택이기 때문에 기둥의 간격은 제약이 없습니다. 원하는 만큼 스팬 길이를 가져갈 수 있어요. 지하부터 올라오는 동선이기 때문에 계단실과 현관이 우측에 배치되어 있습니다. 손님을 우선 맞이하는 거실 공간을 현관 바로 앞에 구성해 주었으며, 갤러리형 복도를 통해 주방과 식당 공간으로 연결될 수 있도록 설계했습니다. 작은 주택에서는 복도 공간이 데드 스페이스라고 불리지만, 대형 평수에서는 오히려 이 집의 아이덴티티를 부각해 줄 수 있는 공간으로 탈바꿈하게 됩니다. 그 이유는 이러한 공간들이 중정이라는 테마와 연결되면 고급스러운 독특한 공간으로 변모하거든요.


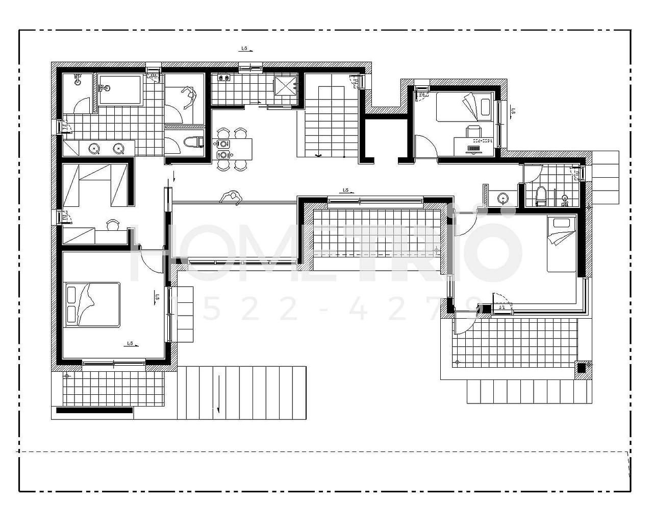
1층이 공용공간 위주로 구성되었다면, 2층은 완전히 독립적인 프라이빗한 공간으로 형성됩니다. 가족만을 위한 공간이라고 생각하면 좋을 것 같고, 단순 방만을 구성하는 것이 아닌 방과 수납, 편의 공간들이 함께 구성됩니다. 그리고 개인적으로 욕심나는 공간들도 2층에 구성이 됩니다.


지하부터 공간이 형성되기 때문에 약 3층의 단독주택 공간을 사용하는 것인데요. 결코 작지 않습니다. 정말 내부에서 길을 잃어버린다는 말이 나올 정도로 넓은 공간의 주택입니다.


이번 주택을 설계하면서 많은 감사함을 느꼈습니다. 홈트리오를 믿고 맡겨주신 건축주님께 이 자리를 빌려 감사인사를 정합니다.


#남양주포스힐 #북위례단독주택 #고급단독주택 #프리미엄주택 #랜드마크

남양주-투시도.jpg


공법 : 철근콘크리트(RC)

설계, 시공 : 홈트리오(주) / 상담문의 : 1522-4279

ARTIST : 건축가 정다운, 임성재, 이동혁

홈페이지 : http://hometrio.kr/

지붕마감재 : 리얼징크 / 외벽 마감재 : 라임스톤 / 포인트자재 : 라임스톤, 리얼징크

실내벽마감재 : 도장마감, 원목합판, 실크벽지 / 실내바닥마감재 : 이건 원목마루, 폴리싱타일, 테라조스톤

창호재 : 이건 알루미늄 3중 시스템창호

건축면적 : 497.77㎡(지하1층 : 221.56㎡, 지상1층 : 144.18㎡, 지상2층 : 132.03㎡)

예상 총 건축비 : 1,520,000,000원(부가세 포함, 산재보험료 포함 / 설계비, 인허가비, 구조계산 설계비 별도)

설계비 : 37,500,000원(부가세 포함) / 인허가비 : 15,000,000원(부가세 포함)

구조계산 설계비 : 15,000,000원(부가세 포함) / 인테리어 설계비 : 22,500,000원(부가세 포함)

*건축비 외 부대비용 : 대지구입비, 가구(싱크대, 신발장, 붙박이장), 기반시설 인입(수도, 전기, 가스 등), 토목공사, 조경비 등


0. 지하1층.jpg 지하주차장 평면도
1층.jpg 1층 평면도
2층.jpg 2층 평면도


이동혁 건축가 : 압도적인 포스로 설계된 이번 주택. 도심지의 좋은 땅에 꿈꾸던 주택을 설계하고 시공하는 기회를 얻었다는 것은, 건축가의 한 사람으로서 정말 복 받은 일이라고 생각합니다. 건축과를 졸업했다고 다 설계를 하는 것도 아니고, 내가 설계한 집을 시공까지 본다는 것은 전체 건축가들 중 5%도 안될 거예요. 그만큼 선택받고 운을 가지고 태어나야 가능한 일입니다. 이번 주택을 설계하면서 다양한 건축설계기법들과 재미난 아이디어들을 곳곳에 넣어주었습니다. 건축주의 입장과 건축가의 입장은 항상 다릅니다. 하지만 이번 주택에서는 건축주님이 저희들을 100% 믿고 맡겨주셨어요. 그래서인지 저희들이 보았을 때 가장 '홈트리오'다운 감성과 느낌을 담아 탄생된 것 같습니다.

정다운 건축가 : 1년에 30채 한정 프로젝트를 진행하면서 주력으로 하는 평수대는 50~60평 사이 대의 주택입니다. 그중 5채 정도를 100평이 넘어가는 대형 프로젝트로 수주를 하는데요. 평수가 큰 주택들은 일반적인 주택의 동선 및 구성과는 아예 다르게 진행됩니다. 정석적인 공간 구성이 100평이 넘어가는 주택들에서는 해당이 잘 안 되거든요. 공간들의 스케일도 다를뿐더러 방에 들어가는 요소들조차도 완전히 다르게 계획됩니다. 시작점이 '각 방에서 필요한 요소들이 무엇이냐?'가 아닌 공용공간을 중심으로 넓게 조닝을 진행하고, 건축주가 원하는 감성과 디자인적인 부분들을 하나씩 잡아나갑니다. 침실이 중요한 것이 아니라 각 공간들의 콘셉트와 부여하고 싶은 분위기를 디테일하게 잡고 넘어간다고 생각하시면 편할 것 같습니다. 주거라는 단어를 넘어서서 하나의 작품을 만든다고 생각하고 설계를 진행하는 것 같아요. 건축비 단위로 완전히 다르게 진행되다 보니 건축주님 품의에 걸맞은 자재와 마감으로 설계를 진행시킵니다.

임성재 건축가 : 100평이 넘어가는 주택에서 의외로 가장 중요한 공간을 뽑는다면 거실이나 주방이 아닌, 지하주차장을 뽑을 수 있습니다. 주차를 하고 집에 올라오는 이 부분이 집의 첫인상을 좌지우지하거든요. 그래서 이 공간에 대한 인테리어도 힘을 많이 주어서 설계합니다. 단순히 철근콘크리트 박스만을 생각하시고 마감을 안 해도 된다고 생각하시는 분들이 계신데, 그렇게 마감 안 하고 사용하시는 분들은 거의 없습니다. 오히려 간접조명 및 석재 마감으로 더욱 고급스러움을 추구하시는 분들이 많으세요. 손님을 집에 초대하여도 처음 맞이하는 공간이 지하주차장 공간이다 보니 더욱 신경들을 쓰시는 것 같아요. 지하는 생활공간보다는 창고 및 수납용의 공간으로 활용하시는 것이 좋습니다. 아무래도 해가 들지 않고 습이 많은 공간이라 오래 거주하는 것은 건강에 좋지 않거든요.



메스1.jpg
메스2.jpg
메스3.jpg
메스4.jpg
남양주-투시도.jpg

zBzoMV9FDsy-AlDtIb6ixXB57WA.jpg

홈트리오 조직 계열도.jpg
프로필 통합본.jpg (좌측부터) 이동혁 건축가, 정다운 건축가, 임성재 건축가

[집이라는 본질적인 가치에 집중하다.]

Architecture Team : 홈트리오(주)

대표번호 : 1522-4279

홈페이지 : http://hometrio.kr/

KakaoTalk_20191210_164551850.jpg
KakaoTalk_20200521_090546896.jpg
img.jpg