PART 9. September-젊은 전원주택 트렌드 5
스타 건축가 3인방의 집짓기 제안
-아이들과 함께하는 행복한 집짓기-
저자 : 이동혁, 임성재, 정다운
PART 9. September
※모든 저작권은 홈트리오(주)에게 있습니다. 최근 무단으로 디자인과 설계 평면도를 복제해 마치 본인들이 한 것인 듯 홍보하는 업체들이 있는데 법적 책임을 물을 수 있다는 점 고지 드립니다.
STORY
: 송파 거여동 북위례 단독주택 필지 내에 지어질 고급 단독주택입니다.
2 가구가 살 수 있는 듀플렉스 타입으로 설계를 진행하였습니다. 백고 벽돌의 깨끗한 느낌과 벽돌이 가지고 있는 수려한 재질감을 집 전체에 입혀주었으며, 벽돌 패턴 마감을 전면에 적용해 주어 볼륨감과 입체감을 파사드 부분에서 느낄 수 있도록 했습니다.
이번 주택은 홈트리오의 북위례 단독주택 5번째 모델로 도심형 단독주택의 트렌드를 선도해 나가는 모델로 설계되었습니다. 저희 홈트리오의 랜드마크 주택모델들이 북위례에 착공되고 있으며, 이번 주택도 북위례에 또라는 바람을 불러일으킬 주택으로 인식될 것이라 기대합니다.
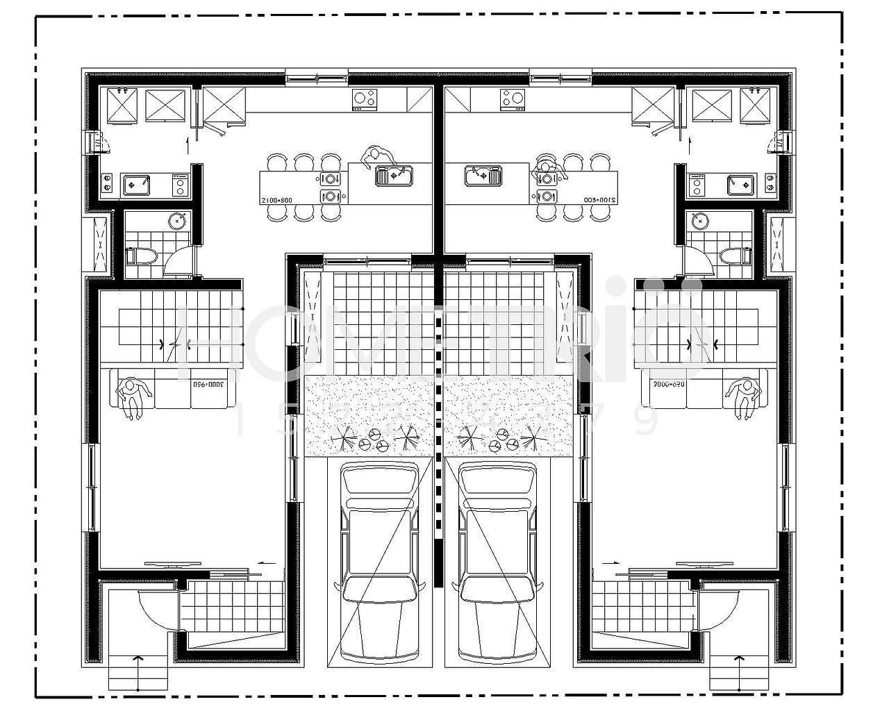
압도적인 웅장함. 100평의 대지에서 뿜어낼 수 있는 최대치의 매스감을 디자인해 주었습니다. 하나의 주택처럼 보이지만 이번 주택은 2개의 세대가 거주할 수 있는 듀플렉스 하우스입니다.
지하층부터 다락까지 총층수로 환산한다면 약 4층 규모와 동일한 형태로 각 세대가 독립적인 공간과 동선 구성으로 생활을 영위할 수 있도록 설계한 주택입니다.
도심형에 맞는 디자인과 현 라이프스타일에 걸맞도록 각 공간 조닝을 진행하였으며, 주차장 및 옥상 등의 공용공간에서도 각 세대가 완벽히 구분될 수 있는 영역성을 갖추어 놓았습니다.
앞선 북위례 도심형 단독주택 설계 안에서는 층별 분리 및 공간들을 자연스럽게 섞이게 만드는 설계 방법을 적용했었다면, 이번 주택에서는 완벽하게 진입로 부분인 현관부터 진입 라인이 구분될 수 있도록 계획했습니다.
하나의 건물이지만 완벽히 두 개의 건물로서 인지될 수 있도록 하였으며, 겹쳐지는 부분이 하나도 없기 때문에 독립적인 생활이 가능합니다.
송파구 거여동의 북위례 단독주택 필지는 밝은 화이트톤의 외장재만 사용할 수 있도록 심의가 걸려있습니다. 아마 이번 필지 외에도 새롭게 생겨나고 있는 도심형 단독주택 필지들은 '디자인 조례'라고 해서 지붕의 경사도와 외장 색상, 조경에 이르기까지 생각보다 많은 부분을 디자인 테두리 안에서 관리하고 있습니다.
특별한 이유는 아니고 무분별 한 난개발을 막고 하나의 통일된 주택단지의 느낌을 영위하고자 한 목적이기 때문에 나쁘다고만은 생각하지 않습니다. 한때는 개인의 개성을 너무 강제한다는 목소리도 있었지만, 규제가 안되었던 단지들의 잘못된 사례들로 인해 이미 우리들은 적절한 통제가 필요하다는 것에는 공감을 하고 있습니다.
어설프게 놔두는 게 제일 나쁩니다. 차라리 강제하려면 완벽한 기준 라인으로 통제하는 것이 마을을 하나의 분위기로 통합시키는데 훨씬 좋습니다.
벽돌을 외장재로 사용한다는 것은 벽돌이 가지는 묵직한 무게감과 돌 질감을 겉으로 표현해 낸다는 것에 있습니다. 벽돌이 가지는 오묘한 매력이 존재하거든요. 패널이나 사이딩류에서는 느끼지 못하는 돌 질감 자체의 매력이라고나 할까요.
이번 주택에서는 파사드 정면 부분에 힘을 좀 많이 썼습니다. 단조로움을 피하고 패턴 조합을 통해 유니크한 전면부를 완성시켜 주었습니다. 아마 입체감 면에서는 이 단지 내에서 원탑일 것이라 생각합니다.
북위례 단독주택 필지는 박공지붕까지는 아니어도 경사지붕의 일정 부분 존재해야 합니다. 모두 옥상을 만들어버리면 집의 디자인이 단순해지기 때문에 디자인 조례로 이 부분을 강제해 놓은 것입니다. 저희들은 개인적으로 경사지붕을 좋아하기 때문에 '불'보다는 '호'쪽으로 더 인식하고 있습니다.
도심형 주택에서는 마당을 구성하기 매우 어렵습니다. 마당을 구성하려면 일정 부분 건축을 하지 않아야 하는데, 땅값이 워낙 비싸다 보니 건폐율과 용적률을 최대한 채워서 설계하는 것이 일반적입니다. 하나는 주인이 살고, 나머지 하나는 세를 주는 것이 일반적인데요. 면적이 작으면 그만큼 전세금을 덜 받기 때문에 대부분 건축물을 줄이는 결정은 잘 안 하시죠.
그래서 주차공간이 거의 마당의 역할을 합니다. 차가 세워져 있을 때는 어쩔 수 없지만 차가 없을 때는 이 공간이 마당을 대신하는 것이죠.
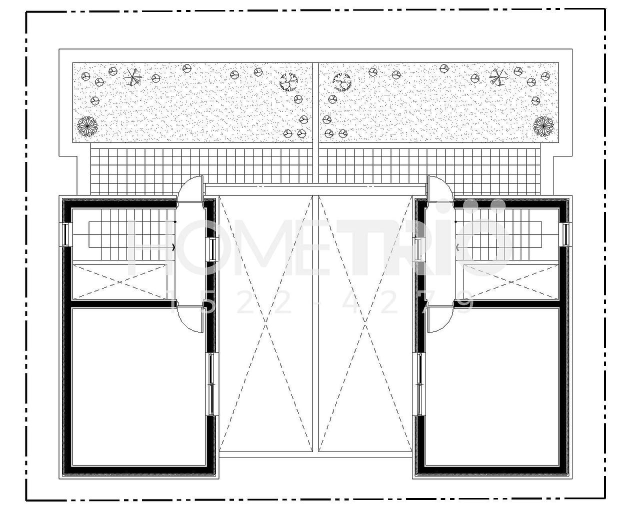
1층 마당의 역할을 대부분 옥상에서 해소됩니다. 크지는 않지만 충분히 바비큐 정도의 야외 활동을 영위할 정도의 공간은 됩니다. 마당 넓은 집 살려면 도심에서 살면 안 돼요. 경기도권으로 나가셔야 되며, 최소한 150평 정도 되는 땅은 사야 마당이 형성될 수 있습니다.
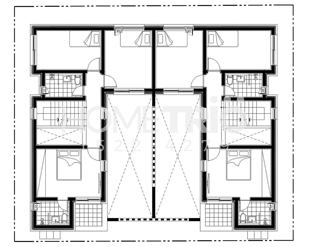
이번 주택을 설계할 때 각 층별로 공간의 영역성을 확보해 주었습니다. 지하는 취미공간 목적으로 공간을 설계했으며, 1층은 거실 및 주방을 배치해 공용공간으로서 역할을 할 수 있도록 하였습니다. 2층은 프라이빗한 침실로 구성, 그리고 다락으로 방을 하나 더 구성해 창고 및 다목적 공간으로 활용할 수 있도록 하였습니다.
100평이 넘는 공간을 한 가족이 다 쓴다면 좋겠지만 우리의 현실은 그렇게 녹록지 않죠. 주인세대는 조금 인테리어에 돈을 투자하고, 세를 주는 곳은 조금 다운그레이드하여 예산을 맞추는 것이 좋습니다.
북위례 단독주택 필지에서 벌써 5번째 설계가 완료되었습니다. 저희들이 파악하기로는 홈트리오가 가장 많은 계약을 이루어 낸 것 같은데요. 건축주님들의 니즈를 잘 반영할 수 있는 랜드마크적인 건축물로 완성을 시킬 테니 끝까지 눈여겨봐 주셨으면 좋겠습니다.
스크린골프장을 품고 태어난 이번 듀플렉스 하우스. 북위례 단독주택 필지 내에서 랜드마크적인 독보적 주택이 될 것이라 믿어 의심치 않습니다.
#북위례단독주택 #송파거여동 #듀플렉스하우스 #스크린골프장 #나만의집만들기
공법 : 철근콘크리트조
설계, 시공 : 홈트리오(주) / 상담문의 : 1522-4279
ARTIST : 건축가 정다운, 임성재, 이동혁
홈페이지 : http://hometrio.kr/
지붕마감재 : 리얼징크, 평지붕마감 / 외벽 마감재 : 백고벽돌 / 포인트자재 : 백고벽돌 패턴마감
실내벽마감재 : 도장마감 / 실내바닥마감재 : 원목마루, 포세린타일
창호재 : 이건 알루미늄 3중 시스템창호
건축면적 : 509.21㎡ (지하1층 : 147.8㎡, 지상1층 : 148.95㎡, 지상2층 : 138.58㎡, 다락 : 73.88㎡)
예상 총 건축비 : 1,699,000,000원(부가세 포함, 산재보험료 포함 / 설계비, 인허가비, 구조계산 설계비 별도)
설계비 : 46,200,000원(부가세 포함) / 인허가비 : 15,400,000원(부가세 포함)
구조계산 설계비 : 15,400,000원(부가세 포함) / 인테리어 설계비 : 23,100,000원(부가세 포함)
*건축비 외 부대비용 : 대지구입비, 가구(싱크대, 신발장, 붙박이장), 기반시설 인입(수도, 전기, 가스 등), 토목공사, 조경비 등
이동혁 건축가 : 하나의 집처럼 보이지만 완벽히 좌·우를 공간적으로 분리시킨 단독주택입니다. 세를 주기 위한 목적보다는 자매나, 형재, 또는 부모님과 함께 거주하는 주택으로 설계가 진행되었습니다. 각각의 공간에서 생활하되, 옥상과 1층 주차장 쪽에서 만날 수 있는 접점을 만들어 주었으며, 정면부 도로에서 집 안에 보이지 않게 하기 위해 창을 서로 마주 보는 안쪽으로 메인 배치해 주었습니다. 땅에서 가진 최대한의 면적을 다 찾아먹은 설계 방법이기 때문에 집이 매우 커 보입니다. 다른 북위례 단독주택 설계안보다 커 보이는 이유는 주차장을 한쪽으로 몰아서 집을 지은 것이 아닌 가운데에 배치하고, 그 가운데 주차장 부분에 가벽을 세워 파사드의 정면 부분이 전체 건물로 인식될 수 있도록 했기 때문입니다.
정다운 건축가 : 벽돌로 패턴을 넣는 방법은 단조로운 디자인적 한계를 벗어나는 방법 중 하나입니다. 같은 벽돌 재질이라도 하더라도 볼륨감을 자유롭게 줄 수 있으며, 이 집에 유니크한 포인트를 별도의 포인트 자재를 사용하지 않더라도 줄 수 있습니다. 다만 시공비가 조금 늘어나기 때문에 그 점은 예산 잡으실 때 고려하셔야 하며, 패턴의 종류가 이번 주택처럼 튀어나오게 하는 입체감 스타일과, 중간의 가벽처럼 공간을 뚫는 방법으로 음영이 지게 하는 스타일 등. 다양하게 존재하기 때문에 집을 디자인하실 때 다양한 패턴에 대해서 고려하신 후 제일 이 집의 분위기와 감성을 담아낼 수 있는 방법으로 선택하시기 바랍니다.
임성재 건축가 : 지하공간은 습이 많이 때문에 주생활 공간으로는 적합하지 않습니다. 이번 주택처럼 취미공간 및 다목적 공간 정도로 활용하시는 것이 좋습니다. 이번 주택은 간이주방을 배치하여 운동을 하면서 가볍게 '바'스타일로 음료를 즐길 수 있도록 공간을 구성해 주었습니다. 각각의 계단실을 통해 지하로 내려오기 때문에 서로의 프라이버시를 지켜줄 수 있으며, 1층 거실과 다르게 조용히 나만의 힐링을 즐길 수 있는 남자의 취향저격 공간이라 할 수 있을 것 같습니다. 지하실은 특히 여름에 결로가 심하게 일어납니다. 지상과의 습도 차이가 벽에서 발생하기 때문에 가급적 나무로 된 가구 등은 배치하지 마시고, 최대한 심플하게 구성해 놓는 게 좋습니다. 그리고 벽은 당연히 2중 벽체구조로 진행합니다. 물이 벽에서 스며든다는 것을 기정 사실화해 놓고 2중 벽을 구성하는 것입니다. 물은 막을 수가 없기 때문에 트렌치를 바닥에 만들어 배수를 해 주는 방법이 현명합니다.