[더농부 전원주택6]아파트 설계 벗어나 자유롭게 설계해

홈트리오(주)-임성재 건축가, 이동혁 건축가, 정다운 건축가

by 이동혁 건축가

제목 : [더농부 전원주택6]아파트 설계와 평면으로 전원주택을 지으면 재미없어...자유롭게 구상하라 / 디자인 바이 홈트리오

양양-투시도.jfif


STORY: 양양의 랜드마크를 그리다



집을 짓는 꿈. 그 꿈이란 단어를 만족시키기 위한 노력.


바다의 매력을 물씬 느낄 수 있는 곳에 위치한 대지. 그 대지 위에 양양이라는 지역의 랜드마크를 그리기 위한 프로젝트가 시작되었습니다. 서울에서 먼 거리에 위치하고 그동안 주택이라는 집 짓기가 타 지역에 비해 관심도가 떨어졌던 지역이다 보니 현재까지 지어진 주택들의 디자인은 클래식 또는 북유럽식의 기와가 올라간 디자인이 대부분이었습니다.


집을 짓는 연령층도 노후에 짓는 분들과 세컨드 하우스로 작게 짓는 분들의 층이 대부분이다 보니 모던하면서 디자인된 느낌의 주택은 찾아보기 힘든 곳이었습니다.


"어떻게 지어야 양양이라는 지역에서 보기 드문 멋진 집을 완성시킬 수 있을까?"


HC015-2157r.jpg


또한 서울이나 경기도 지역처럼 많은 건축비를 들여 지을 수 있는 상황이 아니었기에 한정된 예산안에서 독특한 느낌의 디자인을 넣어줄 수 있을까? 에 대한 고민이 컸습니다. 한정된 예산안에서 많은 것을 넣어주기보다는 정말로 건축주님이 원하는 부분들을 특화시키기 시작했고, 외장재에 대한 비용을 철저히 통재하는 한편 평면 자체에서 볼륨감이 느껴질 수 있는 입체 패턴의 모양을 잡아나가기 시작했습니다.

아무래도 4면 어디에서 보더라도 입체적인 볼륨감과 매스 감을 느끼기 위해서는 매스 자체가 많이 분절되고 지붕의 경사 라인이 쪼개져야 한다고 생각했습니다. 정면에서 보았을 때 박스형의 모던한 느낌을 줄 수 있도록 지붕을 뒤쪽으로 감추고 2층 가족실 부분을 앞쪽으로 돌출시켜 1층의 포치 공간이 자연스럽게 뒤쪽으로 구성될 수 있게 하였습니다.


HC015-2174r.jpg


이 집의 가장 큰 매력은 주방 공간과 거실 공간 앞쪽으로 펼쳐지는 데크와 파고라 부분입니다. 단순히 벽이 있어야 활동공간이라고 생각하시는 분들이 계신데 벽이 없고 뚫려 있더라도 얼마든지 활동 가능한 공간이라는 것을 보여주는 공간이 바로 이 파고라 부분입니다.

주방에서 요리를 하고 큰 통창을 통해 외부로 나가면 단단한 느낌의 석재 데크가 존재하고 비를 막아주는 파고라 부분 아래에서 따스한 봄날 가든파티를 즐길 수 있는 다목적 공간. 아마 제가 더 설명하지 않더라도 이 공간의 활용도가 얼마나 높은 지는 바로 깨달으실 것입니다.

설계를 진행하면서 답답함 자체를 없애주는 공간 구성을 많이 진행하였으며, 현관에 진입했을 때 거실부터 주방까지 오픈된 대공간의 시각은 극대화된 개방감을 느끼게 해 줄 것입니다. 외장재 부분에서 금액을 아끼고 내부 화장실과 주방의 싱크대에서 힘을 줄 수 있도록 방향성을 잡았으며, 너무 화려한 느낌보다는 수수하지만 깨끗하고 심플하고 정돈된 느낌의 집을 탄생시키고자 노력하였습니다.


HC015-2283r.jpg


SPEC: 전원주택 정보

-공법 : 경량 목구조

-시공 : 홈트리오(주) / 상담문의 : 1522-4279

-ARTIST : 건축가 정다운, 임성재, 이동혁

-홈페이지 : http://hometrio.kr/

-지붕마감재 : 아스팔트슁글 / 외벽 마감재 : 스타코플렉스+테라코트 플렉시텍스 / 포인트자재 : 루나우드, 파벽돌

-실내벽마감재 : 실크벽지/ 실내바닥마감재 : 강마루, 폴리싱타일

-창호재 : 미국식 3중 시스템창호

-건축면적 : 147.92㎡(1층 : 94.89㎡, 2층 : 53.03㎡)

-예상 총 건축비 : 298,000,000원(부가세 포함, 산재보험료 포함 / 설계비, 인허가비, 구조계산 설계비 별도)

-설계비 : 6,750,000원(부가세 포함) / 인허가비 : 4,500,000원(부가세 포함)

-구조계산 설계비 : 4,500,000원(부가세 포함) / 인테리어 설계비 : 4,500,000원(부가세 포함)

*건축비 외 부대비용 : 대지구입비, 가구(싱크대, 신발장, 붙박이장), 기반시설 인입(수도, 전기, 가스 등), 토목공사, 조경비 등




HC015-2240r.jpg
HC015-2224r.jpg
HC015-2227r.jpg
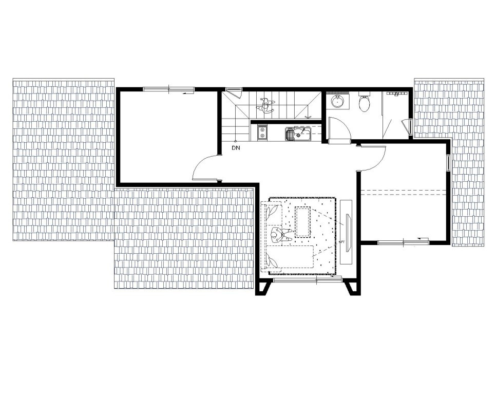
1층.jpg 1층 평면도
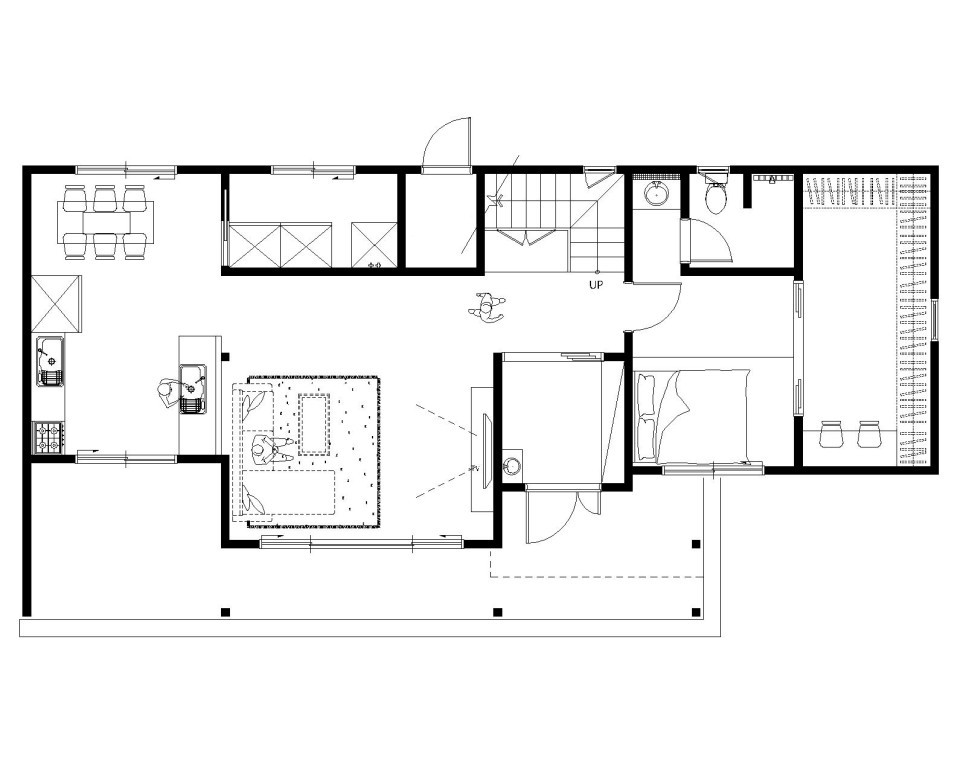
2층.jpg 2층 평면도
FLOOR PLAN: 이렇게 지었습니다


-이동혁 건축가 : 안방보다 큰 드레스룸. 거실보다 큰 주방 공간. 그리고 넓은 데크와 파사드 공간. 일반적인 주택설계와는 다른 방향성을 가지고 설계된 주택입니다. 전원주택은 아파트와는 다르게 나와 우리 가족의 라이프스타일에 맞추어 설계가 될 수 있습니다. 획일화된 평면이 아닌 내가 가장 많이 사용하는 공간과 꼭 필요로 하는 공간 위주로 평면이 구성되고 동선이 짜인다는 뜻입니다. 아파트 평면에서 시작하지 않으셔도 되세요. 정말 자유롭게 공간을 구성하시길 바랍니다.


-정다운 건축가 : 1층뿐만 아니라 2층에도 티브이를 보고 책을 읽을 수 있는 가족실 공간을 별도로 구성해 놓았습니다. 단순히 방에서 생활하는 방향성에서 벗어나 전체 공간을 활용 가능할 수 있는 2층 공간을 계획했습니다. 침실은 잠을 자기 위한 부분과 공부를 위한 공간이 주 역할입니다. 하지만 잠시나마 머리를 식히고 기분을 전환할 수 있는 공간이 필요할 것입니다. 이러한 공간은 1층의 파사드 공간이나 2층의 가족실처럼 영역성을 환기시켜줄 수 있는 공간을 배치함으로써 해결할 수 있습니다.


-임성재 건축가 : 디자인 안을 잡을 때 많은 고민이 있었습니다. 모던하면서 그동안 양양에서 보지 못한 느낌의 집을 만들어야 했기 때문입니다. 다양한 레벨의 매스를 만들고 지붕의 경사와 기울기를 섞어 쓰면서 자연스럽게 볼륨감을 극대화시킬 수 있게 디자인하였으며, 특별한 외장재를 사용하지 않더라도 루나 우드와 스타코플렉스의 색 조합만으로 유니크한 입면을 완성시켰습니다. 외부 디자인이 고민이신가요? 특히 모던한 스타일을 원하시는 분들은 이번 주택 디자인을 잘 참고하시길 바라겠습니다.


HC015-2180r.jpg
HC015-2178r.jpg
HC015-2188r.jpg


※위 글과 사진은 이동혁·임성재·정다운 홈트리오 공동대표가 쓴 <젊은 전원주택 트렌드 2>의 일부입니다. 세명의 공동대표들은 2019년 1월부터 최신 트렌드에 맞춘 전원주택 모델을 매달 발표해왔습니다. 건축비, 상세 평면도, 면적 개요, 실제 사진까지 담아 '나만의 전원주택'을 원하는 예비 건축주들에게 가이드라인을 제시해줍니다.


전원주택 트렌드 책 구매 링크 : https://search.shopping.naver.com/book/catalog/32476108627



글·사진=이동혁·임성재·정다운 홈트리오 공동대표

정리=더농부


%ED%94%84%EB%A1%9C%ED%95%84(%EA%B8%80_%EC%B2%A8%EB%B6%80).JPG?type=w966

홈트리오 조직 계열도.jpg
6.jpg (좌측부터) 홈트리오(주) 정다운 건축가, 임성재 건축가, 이동혁 건축가

[집이라는 본질적인 가치에 집중하다.]

Architecture Team : 홈트리오(주)

대표번호 : 1522-4279

홈페이지 : http://hometrio.kr/

네이버 프리미엄 구독 : https://contents.premium.naver.com/hometrio/home

KakaoTalk_20191210_164551850.jpg
KakaoTalk_20200521_090546896.jpg
img.jpg

<홈트리오 집짓기 영상>


1. 홈트리오 완공주택 - 전남 순천 50평 목조주택 완공 둘러보기(전원주택 집짓기)

https://www.youtube.com/watch?v=xONUa-8sUbA&list=PLIpsbWPaay95I-_T5JGIv4Mp3-HeatJnl

2. 홈트리오 완공주택 - 53평 충남 금산 전원주택 톺아보기(전원주택 집짓기)

https://www.youtube.com/watch?v=3I7pEJ5a4WA&list=PLIpsbWPaay95I-_T5JGIv4Mp3-HeatJnl&index=2

3. 56평 충남 논산 홈트리오 완공주택 톺아보기 - 전원주택 집짓기

https://www.youtube.com/watch?v=A-p9DW9xlac&list=PLIpsbWPaay95I-_T5JGIv4Mp3-HeatJnl&index=3

4. 44평 강원 양양 홈트리오 완공주택 톺아보기 - 전원주택 집짓기

https://www.youtube.com/watch?v=rsy2ld3DSFE&list=PLIpsbWPaay95I-_T5JGIv4Mp3-HeatJnl&index=45.

5. 일산 풍동 애니아트힐즈 73평 목조 단독주택 완공 톺아보기(전원주택 집짓기)

https://www.youtube.com/watch?v=fjQlAE2hloU&list=PLIpsbWPaay95I-_T5JGIv4Mp3-HeatJnl&index=5

6. 경북 상주 52평 목조 전원주택 완공 톺아보기(전원주택 집짓기)

https://www.youtube.com/watch?v=haAsuLN21pQ&list=PLIpsbWPaay95I-_T5JGIv4Mp3-HeatJnl&index=6

7. 완주 삼례읍 76평 목조 전원주택 완공 톺아보기(전원주택 집짓기)

https://www.youtube.com/watch?v=PH10Z8J_jgc&list=PLIpsbWPaay95I-_T5JGIv4Mp3-HeatJnl&index=7

8. 세종시 장군면 57평 목조 전원주택 완공 톺아보기(전원주택 집짓기)

https://www.youtube.com/watch?v=WleLIuA1ccA&list=PLIpsbWPaay95I-_T5JGIv4Mp3-HeatJnl&index=8

9. 세종시 도담동 56평 목조 단독주택 완공 톺아보기(전원주택 집짓기)

https://www.youtube.com/watch?v=fXDoVHCridA&list=PLIpsbWPaay95I-_T5JGIv4Mp3-HeatJnl&index=13

10. 일산 풍동 애니아트힐즈 67평 도심형 단독주택 완공 톺아보기(전원주택 집짓기)

https://www.youtube.com/watch?v=X8RMQBBaSYc&list=PLIpsbWPaay95I-_T5JGIv4Mp3-HeatJnl&index=25