[더농부 전원주택7]내장재 돈 쓰지 말고 좋은 가구사라

홈트리오(주)-임성재 건축가, 이동혁 건축가, 정다운 건축가

by 이동혁 건축가
강화-대산리투시도-야경.jpg
STORY: 푸른 하늘빛을 머금다

강화도. 섬이라는 특수성.


그 아름다운 공간에서 전원생활을 이어나간다는 것. 새로움의 시작이자 활력을 얻는 시발점. 어떠한 집으로 이 토지를 채울까 많은 고민을 했습니다. 자연경관을 해치지 않으면서 원래부터 그 자리에 있었던 듯한 느낌의 집.


무던하면서 본인의 색깔을 스스로 빛낼 수 있는 집. 하얀 무명옷에 단 하나의 포인트만을 준 듯한 그러한 느낌의 집. 이번 주택은 그러한 느낌을 내포한 주택으로 설계 시작하였습니다. 잡지나 유명인 분들의 집을 가끔 보면 정말 휘양 찬란하고 온갖 고급 자재들로 마감되어있고... 솔직히 부럽습니다. 좋은 것을 보고 "저거 안 좋아요"라고 하는 것은 거짓말이겠죠. 이게 솔직한 답변일 거예요.


문제는 우리들의 현실은 좋은 것, 그리고 비싼 것들만을 사용해 집을 지을 수 없다는 것이겠죠. 적정선에서 가성비 높은 자재들을 이용해 우리 집을 완성시키는 것. 어찌 보면 실용주의 건축가의 한 사람으로서 이 문제들을 풀기 위해 건축을 하고 있는지 모르겠습니다. 어떤 분이 저에게 그러더라고요.




HC024-3982r.jpg


"우리 집을 너무 좋게는 말고 중급으로 지어주세요."

어려워요. 건축주님의 원하는 중급의 기준이 무엇인지 모르겠어요. 죄송합니다. 그래서 보통 첫 번째 상담의 경우 계약 미팅이 아닌 공부의 시간으로 진행됩니다. 건축주님의 머릿속에 혼재되어 떠돌아다니는 정보들을 한 곳으로 모으고 현재 가진 예산으로는 택도 없다는 살벌한 현실을 깨닫게 하는 시간을 2시간 정도 가지게 됩니다.

"죄송합니다. 나중에 당황하시는 것보다는 지금 알고 가시는 게 속 편하세요."

집을 공짜로 지어주는 사람은 이 세상에 존재하지 않습니다. 아무런 마진을 남기지 않고 건축주님의 집을 지어주는 천사 같은 사람도 정말 죄송하지만 존재하지 않습니다. 적정 마진은 어떠한 사람들이든 보게 되어있고 정확한 가격에 계약된 대로 시공만 해줘도 이 사람은 잘하고 착한 사람이라고 생각합니다.

맞아요. 우리는 현실을 깨닫고 현실에 맞게 집을 지어야 합니다.

"저 집은 왜 저렇게 지었나 몰라? 나 같으면 절대로 저렇게 안 지어!"

"나는 해외 풀빌라처럼 창 크게 내고 디자이너블 하게 기하학적 디자인으로 집 지을 거야"


HC024-4026r.jpg


올라가고 있습니다. 쭉쭉쭉~. 여러분도 들리시죠? 건축비 올라가는 소리.

보통 집을 짓는다라고 하면 부자가 아닌 이상 '시장가'라는 집짓기 비용 안에서 집을 완성시킵니다. '시장가'라는 평균치는요 나뿐만 아니라 정말 많은 사람들이 이 정도는 괜찮은 집이야라고 생각하고 지은 후 만들어진 평균값입니다. 다시 말해 어느 정도 가성비도 있고 검증된 형태의 집 영역이라고 표현할 수 있겠네요.

저는 조언합니다.

"욕심내지 않고 비워내도 충분히 좋은 집이 될 수 있습니다."

"외관에 너무 치중하지 않아도 됩니다. 남에게 잘 보일 이유는 없으니까요."

"차라리 돈을 아끼세요. 그리고 여유자금으로 가지고 계세요."

"저 돈 많이 벌게 안 해주셔도 돼요. 외벽에 무언갈 덜 붙여서 건축비 다운시키세요."

"내장재에 돈 많이 안 쓰셔도 돼요. 벽지 해도 충분하고 강마루 해도 충분해요. 차라리 좋은 가구를 사서 사용하세요."


HC024-3971r.jpg


SPEC: 전원주택 정보

-공법 : 경량 목구조

-시공 : 홈트리오(주) / 상담문의 : 1522-4279

-ARTIST : 건축가 정다운, 임성재, 이동혁

-홈페이지 : http://hometrio.kr/

-지붕마감재 : 아스팔트슁글 / 외벽 마감재 : 스타코플렉스 / 포인트자재 : 파벽돌

-실내벽마감재 : 실크벽지/ 실내바닥마감재 : 강마루

-창호재 : 미국식 3중 시스템창호

-건축면적 : 133.37㎡(1층 : 72.76㎡, 2층 : 60.61㎡)

-예상 총 건축비 : 222,000,000원(부가세 포함, 산재보험료 포함 / 설계비, 인허가비, 구조계산 설계비 별도)

-설계비 : 6,000,000원(부가세 포함) / 인허가비 : 4,000,000원(부가세 포함)

-구조계산 설계비 : 4,000,000원(부가세 포함) / 인테리어 설계비 : 4,000,000원(부가세 포함)

*건축비 외 부대비용 : 대지구입비, 가구(싱크대, 신발장, 붙박이장), 기반시설 인입(수도, 전기, 가스 등), 토목공사, 조경비 등


HC024-3928r.jpg
HC024-3930r.jpg
HC024-3933r.jpg
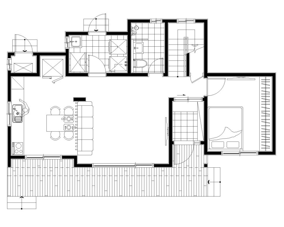
1층_평면도.jpg 1층 평면도
2층_평면도.jpg 2층 평면도


FLOOR PLAN: 이렇게 지었습니다


-이동혁 건축가 : 두 자녀를 둔 4인 가족 집. 자녀가 커서 조금 있으면 분가해야 하는 집은 이번 주택 평면을 잘 보시면 좋습니다. 2층 방 부분을 폴딩도어 형식으로 가벽을 구성해 놓았으며, 자녀가 거주할 동안에는 폴딩도어를 닫아 구분해 공간을 사용하고 추후 분가했을 경우에는 폴딩도어를 접어 넓은 다목적 공간으로 사용할 수 있습니다. 소음 때문에 걱정하시는 분들도 계신데 그럴 경우 무리하게 벽을 치기보다는 커튼 등의 액세서리로 커버할 수 있습니다. 공간의 확장성. 그리고 다양한 용도로서의 활용. 이번 주택은 그러한 요구조건을 만족시킨 주택 사례라고 이야기드리고 싶습니다.


-정다운 건축가 : 1층 하단부는 벽돌을 포인트로 넣어 무게감을 잡아주고, 2층은 화이트톤의 스타코플렉스를 적용하여 답답하지 않고 깨끗한 느낌의 집 디자인을 완성시켰습니다. 집 외벽 오염에 대해 걱정하시는 분들이 많습니다. 하지만 저희들이 시공한 집을 1년 뒤에 다시 갔을 때 걱정하시는 것만큼 심한 오염은 거의 없었습니다. 왜 그럴까요? 저는 딱 1가지 이유를 알고 있습니다. 바로 '처마'입니다. 처마가 없는 집은 어떠한 외장재를 가져다 붙이던 오염은 피할 수 없습니다. 하지만 디자인적으로 조금만 양보하고 처마를 15cm 이상만 만들어 준다면 오염 없이 외벽을 항상 깨끗하게 유지할 수 있습니다. 디자인은 솔직히 취향적인 부분이 큽니다. 하지만 취향을 조금만 양보하면 깨끗하게 외벽을 가질 수 있는데 계속 취향만 고집하실 건가요?


-임성재 건축가 : 30평~40평 초반대의 주택. 거기에 2층 주택이라고 하면 솔직히 엄청 크다고만은 할 수 없습니다. 중형 평수는 60평 이상이 되어야 이야기할 수 있고 그 이하의 경우 소형평수의 주택으로 구분됩니다. 이 평형대의 주택을 설계할 때 가장 중요점으로 생각하는 부분이 현관에 들어왔을 때 가시적으로 느껴지는 개방감입니다. 넓고 시원하게 살려고 전원주택을 지었는데 집에 들어오자마자 답답한 기운이 느껴진다면 집 지은 것을 후회하겠죠. 그래서 현관을 들어왔을 때 거실과 주방을 최대한 하나의 공간으로 구성해 10평 정도의 탁 트인 공간을 제공하고자 노력합니다. 주방을 안 보이게 하고 싶으신 분들도 계신데 개방감과, 영역성 이 두 가지 중에 하나를 선택해야 한다면 저는 개방감을 많이 추천하는 편입니다. 기억하세요. 전원주택 설계를 할 때는 개방감을 주는 공간 구성이 제일 첫 번째라는 것을요.


HC024-3886r.jpg
HC024-3888r.jpg
HC024-3891r.jpg
HC024-3983r.jpg


※위 글과 사진은 이동혁·임성재·정다운 홈트리오 공동대표가 쓴 <젊은 전원주택 트렌드 2>의 일부입니다. 세명의 공동대표들은 2019년 1월부터 최신 트렌드에 맞춘 전원주택 모델을 매달 발표해왔습니다. 건축비, 상세 평면도, 면적 개요, 실제 사진까지 담아 '나만의 전원주택'을 원하는 예비 건축주들에게 가이드라인을 제시해줍니다.


전원주택 트렌드 책 구매 링크 : https://search.shopping.naver.com/book/catalog/32476108627



글·사진=이동혁·임성재·정다운 홈트리오 공동대표

정리=더농부


%ED%94%84%EB%A1%9C%ED%95%84(%EA%B8%80_%EC%B2%A8%EB%B6%80).JPG?type=w966

홈트리오 조직 계열도.jpg
6.jpg (좌측부터) 홈트리오(주) 정다운 건축가, 임성재 건축가, 이동혁 건축가

[집이라는 본질적인 가치에 집중하다.]

Architecture Team : 홈트리오(주)

대표번호 : 1522-4279

홈페이지 : http://hometrio.kr/

네이버 프리미엄 구독 : https://contents.premium.naver.com/hometrio/home

KakaoTalk_20191210_164551850.jpg
KakaoTalk_20200521_090546896.jpg
img.jpg

<홈트리오 집짓기 영상>


1. 홈트리오 완공주택 - 전남 순천 50평 목조주택 완공 둘러보기(전원주택 집짓기)

https://www.youtube.com/watch?v=xONUa-8sUbA&list=PLIpsbWPaay95I-_T5JGIv4Mp3-HeatJnl

2. 홈트리오 완공주택 - 53평 충남 금산 전원주택 톺아보기(전원주택 집짓기)

https://www.youtube.com/watch?v=3I7pEJ5a4WA&list=PLIpsbWPaay95I-_T5JGIv4Mp3-HeatJnl&index=2

3. 56평 충남 논산 홈트리오 완공주택 톺아보기 - 전원주택 집짓기

https://www.youtube.com/watch?v=A-p9DW9xlac&list=PLIpsbWPaay95I-_T5JGIv4Mp3-HeatJnl&index=3

4. 44평 강원 양양 홈트리오 완공주택 톺아보기 - 전원주택 집짓기

https://www.youtube.com/watch?v=rsy2ld3DSFE&list=PLIpsbWPaay95I-_T5JGIv4Mp3-HeatJnl&index=45.

5. 일산 풍동 애니아트힐즈 73평 목조 단독주택 완공 톺아보기(전원주택 집짓기)

https://www.youtube.com/watch?v=fjQlAE2hloU&list=PLIpsbWPaay95I-_T5JGIv4Mp3-HeatJnl&index=5

6. 경북 상주 52평 목조 전원주택 완공 톺아보기(전원주택 집짓기)

https://www.youtube.com/watch?v=haAsuLN21pQ&list=PLIpsbWPaay95I-_T5JGIv4Mp3-HeatJnl&index=6

7. 완주 삼례읍 76평 목조 전원주택 완공 톺아보기(전원주택 집짓기)

https://www.youtube.com/watch?v=PH10Z8J_jgc&list=PLIpsbWPaay95I-_T5JGIv4Mp3-HeatJnl&index=7

8. 세종시 장군면 57평 목조 전원주택 완공 톺아보기(전원주택 집짓기)

https://www.youtube.com/watch?v=WleLIuA1ccA&list=PLIpsbWPaay95I-_T5JGIv4Mp3-HeatJnl&index=8

9. 세종시 도담동 56평 목조 단독주택 완공 톺아보기(전원주택 집짓기)

https://www.youtube.com/watch?v=fXDoVHCridA&list=PLIpsbWPaay95I-_T5JGIv4Mp3-HeatJnl&index=13

10. 일산 풍동 애니아트힐즈 67평 도심형 단독주택 완공 톺아보기(전원주택 집짓기)

https://www.youtube.com/watch?v=X8RMQBBaSYc&list=PLIpsbWPaay95I-_T5JGIv4Mp3-HeatJnl&index=25