[더농부 전원주택9]차 한잔의 여유를 즐기는 전원주택

홈트리오(주)-임성재 건축가, 이동혁 건축가, 정다운 건축가

by 이동혁 건축가

제목 : [더농부 전원주택9]차 한잔의 여유를 즐기는 전원주택

고령_주택_수정.jpg


STORY: 차 한잔의 여유



"박공지붕도 싫고 외쪽지붕도 싫고, 비싼 외장재를 사용하지 않더라도 유니크한 디자인을 만들어 낼 수 없을까?" 하는 고민에서 시작된 프로젝트. 기획모델이기에 시도해 볼 수 있었던 주택 설계안으로 볼륨감과 입체감만으로도 충분히 집이 빛날 수 있다는 것을 보여주고자 한 주택 사례입니다.


모던 스타일은 박스형에 뒤쪽으로 외쪽지붕 디자인을 해야 되고, 북유럽 스타일은 모임지붕 또는 박공지붕에 안정적으로 기와를 올려야 된다는 정석적인 생각이 어느 순간 제 머릿속을 지배했던 것 같습니다. 100채가 넘은 집을 설계하고 시공하다 보니 자연스럽게 생긴 고정관념. 솔직히 이게 고정관념 인지도 모르고 설계를 했더랍니다.


고정관념이 신념으로 바뀌고 그 신념이 아집으로 바뀌는 순간. "아! 이게 정말로 정답인가?"라는 의문을 가지게 했습니다. 당연히 설계에 정답은 없죠. 하자가 안 생기는 설계의 방향성을 있을 수 있어도 집은 무조건 이래야 한다는 것은 정확히 말해 고정관념이 맞습니다. 제한된 법규도 존재하지 않고 다양한 아이디어를 시도해 볼 수 있는 기획설계인데 저도 모르게 자꾸 제약적인 조건을 도입해 한정적으로만 설계했던 것 같습니다.


hc002_0025.jpg

이번 주택에서는 그 제약을 많이 벗어나 보고자 했습니다. 무조건 비싼 외장재를 써야 유니크해 보이고 고급스러워 보인다는 생각을 탈피해보고자 했으며, 4면 어디에서 보더라도 입체감과 볼륨감이 유지될 수 있는 디자인을 만들어 보고자 했습니다.


일반적으로 설계할 때 포치 및 발코니 등에 많은 공간을 할애하지 않습니다. 이유는 간단합니다. 시공비가 많이 들어가니까요. 내부 공간이 아닌 어찌 보면 처마의 연장선상에 있는 포치 부분에는 대부분 건축주님들이 돈을 들이기 싫어합니다. 문제는 저 또한 많은 비용적 부담을 느끼기 때문에 예산이 넘어간다 싶으면 제일 먼저 이 부분을 삭제합니다.


하지만 입체감이라는 뜻에는 전면부에 입체감을 줄 수 있는 무언가가 튀어나와 있다는 것을 뜻하는데요. 이번 주택에서는 바로 이 부분을 강조하기 위해 2층 발코니와 1층 포치 부분에 많은 공간을 배정하여 특별한 포인트적 자재를 사용하지 않더라도 볼륨감 및 유니크함이 강조될 수 있게 하였습니다.

hc002Panorama2.jpg

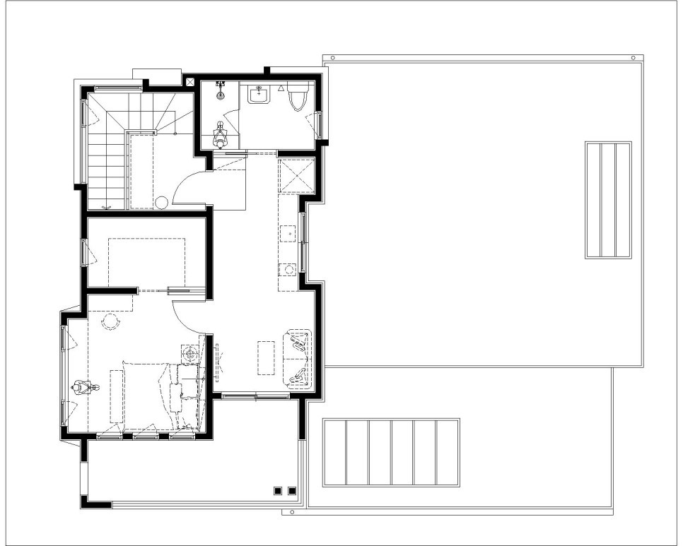
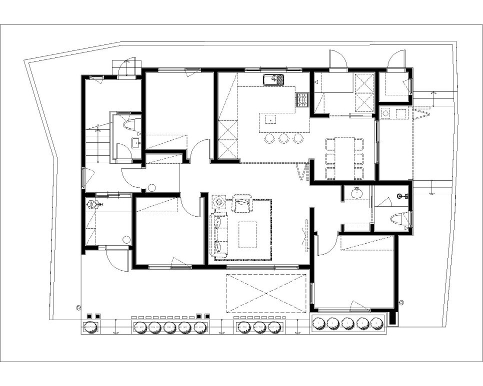
이번 주택에서는 평면도 독특합니다. 방은 총 4개로 구성하되, 안방을 2층으로 올려 2층을 온전히 안방 존으로 모든 공간을 활용할 수 있게 하였습니다. 프라이빗한 공간을 만듬에 있어 가장 효과적인 방법은 층을 완전히 분리해 버리는 것입니다. 다리가 아프다는 이유로 2층을 꺼려하시는 분들이 계신데 젊은 나이 때라고 한다면 이번 층간 분리 방법을 적용해 보시는 것도 나쁘지 않습니다.


각 공간들을 보면 특히 거실과 주방, 식당 공간들이 각자의 공간을 가지고 영역성을 펼치고 있는 것을 볼 수 있는데 55평이라는 큰 평수대의 주택으로 설계되었기 때문에 공간을 분리해 주어도 답답함을 느끼지 않을 것입니다. 30평형대에서는 이렇게 설계하면 답답해서 못 사니 소형평수대를 고민 중이신 분들은 이번 주택 설계를 참고하시면 안 됩니다.

hc002_0017bw.jpg


SPEC: 전원주택 정보



-공법 : 경량 목구조

-시공 : 홈트리오(주) / 상담문의 : 1522-4279

-ARTIST : 건축가 정다운, 임성재, 이동혁

-홈페이지 : http://hometrio.kr/

-지붕마감재 : 리얼징크 / 외벽 마감재 : 스타코플렉스 / 포인트 자재 : 세라믹 사이딩, 인조석

-실내 벽 마감재 : 실크벽지/ 실내 바닥마감재 : 강마루

-창호재 : 미국식 3중 시스템창호

-건축면적 : 182.27㎡(1층 : 122.17㎡, 2층 : 60.10㎡)

-예상 총 건축비 : 348,000,000원(부가세 포함, 산재보험료 포함 / 설계비, 인허가비, 구조계산 설계비 별도)

-설계비 : 8,250,000원(부가세 포함) / 인허가비 : 5,500,000원(부가세 포함)

-구조계산 설계비 : 5,500,000원(부가세 포함) / 인테리어 설계비 : 5,500,000원(부가세 포함)

*건축비 외 부대비용 : 대지구입비, 가구(싱크대, 신발장, 붙박이장), 기반시설 인입(수도, 전기, 가스 등), 토목공사, 조경비 등


hc002_01703.jpg
hc002_01705.jpg
hc002_01710.jpg
[포맷변환]다운로드.jpg
1층.jpg 1층 평면도
2층.jpg 2층 평면도


FLOOR PLAN: 이렇게 지었습니다


-이동혁 건축가 : 드디어 해보고 싶었던 설계안을 해 보았습니다. 2층을 완전한 안방 존으로 프라이빗한 공간을 만들어 내는 것. 그동안 건축주님들이 계단을 오르내리기 힘들다는 이유로 적용하기 어려워했는데 기획모델인지라 과감히 적용해 보았습니다. 젊은 분들이라면 이번 주택 평면 꼭 한번 시도해 보았으면 좋겠습니다. 프라이빗한 공간을 만드는 가장 완벽한 방법은 이번 주택처럼 층간 분리를 해 완벽하게 시각적으로 차단하는 것입니다.


-정다운 건축가 : 이번 주택에 사용된 외장재 포인트는 크게 2가지입니다. 붙이는 방식의 인조석과 세라믹 사이딩. 톤은 무채색 그레이 톤으로 맞추되 인조석은 두 가지 타입의 재질로 적용하였고, 세라믹 사이딩은 어두운 그레이 계열의 한 가지 재료를 사용하였습니다. 색감은 맞추되 각 부위별로 재질감이 다른 포인트 자재를 사용하여 가까이서 보던, 멀리서보던 각 면이 독특한 개성을 가지게 하고 싶었습니다. 이번 주택처럼 재질이 다른 자재들만 혼합 사용해도 훨씬 입체감이 느껴지는 주택을 만들 수 있으며, 가볍지 않고 무게감 있는 분위기를 동시에 가져갈 수 있습니다.


-임성재 건축가 : 지붕재에 대한 고민들이 많으실 것입니다. 솔직히 지붕에 적용할 수 있는 마감자재는 딱 3가지로 압축됩니다. 아스팔트 슁글, 리얼징크, 기와. 여러분들의 집은 이 세 가지 중 하나로 적용될 것입니다. 지붕재를 고르는 것은 다양한 조건들이 있긴 하지만 저는 이렇게 이야기드리고 싶습니다. "예산에 맞추되, 예산이 오버될 일이 발생되면 무리하지 말고 무채색의 어두운 계열의 아스팔트 슁글로 가세요." 리얼징크나 기와는 싸지 않습니다. 보통 40평대 주택에 기와 올리면 기와 시공비만 2천만 원 초반대가 발생됩니다. 절대로 적은 금액이 아니지요. 많이들 지붕재가 방수와 단열을 커버한다고 생각하는데 절대 그렇지 않습니다. 방수층과 단열층은 별도로 존재하며, 지붕재는 오로지 디자인적 마감으로만 올리는 것입니다. 각 자재의 두께와 강도에 따라 성능은 달라질 수 있지만 여러분들은 기억하셔야 합니다. 지붕재의 선택은 오로지 디자인적 취향이라는 것을 말입니다.


hc002_01750.jpg
hc002_01806.jpg
hc002_01813.jpg
hc002_01817.jpg


※위 글과 사진은 이동혁·임성재·정다운 홈트리오 공동대표가 쓴 <젊은 전원주택 트렌드 2>의 일부입니다. 세명의 공동대표들은 2019년 1월부터 최신 트렌드에 맞춘 전원주택 모델을 매달 발표해왔습니다. 건축비, 상세 평면도, 면적 개요, 실제 사진까지 담아 '나만의 전원주택'을 원하는 예비 건축주들에게 가이드라인을 제시해줍니다.


전원주택 트렌드 책 구매 링크 : https://search.shopping.naver.com/book/catalog/32476108627



글·사진=이동혁·임성재·정다운 홈트리오 공동대표

정리=더농부


%ED%94%84%EB%A1%9C%ED%95%84(%EA%B8%80_%EC%B2%A8%EB%B6%80).JPG?type=w966

홈트리오 조직 계열도.jpg
6.jpg (좌측부터) 홈트리오(주) 정다운 건축가, 임성재 건축가, 이동혁 건축가

[집이라는 본질적인 가치에 집중하다.]

Architecture Team : 홈트리오(주)

대표번호 : 1522-4279

홈페이지 : http://hometrio.kr/

네이버 프리미엄 구독 : https://contents.premium.naver.com/hometrio/home

KakaoTalk_20191210_164551850.jpg
KakaoTalk_20200521_090546896.jpg
img.jpg

<홈트리오 집짓기 영상>


1. 홈트리오 완공주택 - 전남 순천 50평 목조주택 완공 둘러보기(전원주택 집짓기)

https://www.youtube.com/watch?v=xONUa-8sUbA&list=PLIpsbWPaay95I-_T5JGIv4Mp3-HeatJnl

2. 홈트리오 완공주택 - 53평 충남 금산 전원주택 톺아보기(전원주택 집짓기)

https://www.youtube.com/watch?v=3I7pEJ5a4WA&list=PLIpsbWPaay95I-_T5JGIv4Mp3-HeatJnl&index=2

3. 56평 충남 논산 홈트리오 완공주택 톺아보기 - 전원주택 집짓기

https://www.youtube.com/watch?v=A-p9DW9xlac&list=PLIpsbWPaay95I-_T5JGIv4Mp3-HeatJnl&index=3

4. 44평 강원 양양 홈트리오 완공주택 톺아보기 - 전원주택 집짓기

https://www.youtube.com/watch?v=rsy2ld3DSFE&list=PLIpsbWPaay95I-_T5JGIv4Mp3-HeatJnl&index=45.

5. 일산 풍동 애니아트힐즈 73평 목조 단독주택 완공 톺아보기(전원주택 집짓기)

https://www.youtube.com/watch?v=fjQlAE2hloU&list=PLIpsbWPaay95I-_T5JGIv4Mp3-HeatJnl&index=5

6. 경북 상주 52평 목조 전원주택 완공 톺아보기(전원주택 집짓기)

https://www.youtube.com/watch?v=haAsuLN21pQ&list=PLIpsbWPaay95I-_T5JGIv4Mp3-HeatJnl&index=6

7. 완주 삼례읍 76평 목조 전원주택 완공 톺아보기(전원주택 집짓기)

https://www.youtube.com/watch?v=PH10Z8J_jgc&list=PLIpsbWPaay95I-_T5JGIv4Mp3-HeatJnl&index=7

8. 세종시 장군면 57평 목조 전원주택 완공 톺아보기(전원주택 집짓기)

https://www.youtube.com/watch?v=WleLIuA1ccA&list=PLIpsbWPaay95I-_T5JGIv4Mp3-HeatJnl&index=8

9. 세종시 도담동 56평 목조 단독주택 완공 톺아보기(전원주택 집짓기)

https://www.youtube.com/watch?v=fXDoVHCridA&list=PLIpsbWPaay95I-_T5JGIv4Mp3-HeatJnl&index=13

10. 일산 풍동 애니아트힐즈 67평 도심형 단독주택 완공 톺아보기(전원주택 집짓기)

https://www.youtube.com/watch?v=X8RMQBBaSYc&list=PLIpsbWPaay95I-_T5JGIv4Mp3-HeatJnl&index=25