[더농부 전원주택17]47평 4인가족 '가성비 갑'주택

홈트리오(주)-임성재 건축가, 이동혁 건축가, 정다운 건축가

by 이동혁 건축가

제목 : [더농부 전원주택17]47평 4인가족 '가성비 갑'주택

HC029-4764r.jpg


햇살이 창에 다다를 때 그 따스함이 온전히 집 안에 전해지는 집. 2층의 안정감 있는 디자인에 2면의 외쪽지붕을 적용해 모던하면서도 클래식함이 공존하는 집으로 태어났습니다.


STORY : '햇살 따스한 집' 47평 양산시 전원주택
물금-투시도-야경.jfif
물금-투시도-야경.jfif

하나로 오픈된 거실과 주방. 그리고 4인 가족이 머무르기에 충분한 3개의 방. 좁지 않고 넓은 방으로 구성해 자녀들이 성장해 어른이 되더라도 불편함 없이 사용할 수 있도록 설계하였으며, 2개의 화장실을 배치해 출근 및 등교에도 무리 없는 사용이 가능하도록 했습니다. 2층에 별도의 드레스룸을 구성해 주었으며, 이는 부족한 수납공간을 대체할 수 있도록 배려한 것입니다.


이번 주택 외부 디자인을 계획할 때 어느 한쪽으로 치우친 스타일이 아닌 한국에 맞는 가장 최적화된 이미지를 갖고자 하였습니다. 아무래도 디자인이라고 하는 것이 취향적인 부분에 많이 치우치는 부분이다 보니 저희들이 디자인한 안들이 마음에 안 드실 수도 있을 거라 생각합니다. 하지만 방향성이라고 하죠.

물금-투시도.jfif

항상 이야기하는 '가성비' 주택. 그리고 4인 가족이 생활하기에 불편함이 없는 주택. 마지막으로 특별하지는 않지만 눈길이 가는 예쁜 주택. 저희들이 생각하는 이 방향성으로 설계를 진행하며, 이번 주택도 그 방향성의 결에 따라 만들어진 주택이라고 생각해 주셨으면 좋겠습니다.


이번 주택의 특이한 점을 꼽자면 코어 부분이라 할 수 있습니다. 일반적으로 가운데에 위치하는 현관 및 계단실이 좌측으로 치우쳐 계획이 되었습니다.


특별히 문제가 있었던 것은 아니고 코어를 통해 공용공간과 프라이빗 공간을 나누어 줄 것이냐, 아니면 현관을 들어왔을 때 탁 트인 개방감을 극대화할 것이냐에 대한 옵션적인 부분이라 설명드리고 싶습니다.

HC029-0118r.jpg

이번 주택처럼 코어 부분을 한쪽으로 계획했을 경우 현관을 진입했을 때 거실과 주방, 안방 라인까지 이어지는 압도적인 개방감 라인은 같은 평형대에서는 느낄 수 없는 공간감일 것입니다.


집을 설계하는 기법 중 '중정'이라는 부분이 있습니다. 여러분들이 아시고 계신 중정은 아마도 집 안쪽에 4면이 감싸고 있는 모습일 텐데요. 꼭 4면이 다 감싸져 있어야 그 느낌이 나는 것은 아닙니다. 이번 주택처럼 3면이 벽이고 앞 데크 쪽은 뚫려있어도 충분히 중정의 아늑한 느낌은 가져갈 수 있습니다.

HC029-DJI0116-0031031r.png


테이블을 놓고 가든파티하기 딱 좋은 장소이며, 남의 이목을 신경 쓰지 않도록 시각적 차단이 자연스럽게 이루어지니 이보다 더 좋을 순 없을 것입니다.


특별하지는 않지만 눈길이 가는 집. 튼튼하고 따뜻한 집. 이번 주택은 그러한 집이라고 설명드리고 싶습니다.


SPEC : 전원주택 정보



-공법 : 경량 목구조

-시공 : 홈트리오(주) / 상담문의 : 1522-4279

-ARTIST : 건축가 정다운, 임성재, 이동혁

-홈페이지 : http://hometrio.kr/

-지붕마감재 : 아스팔트 슁글 / 외벽 마감재 : 스타코플렉스 / 포인트 자재 : 파벽돌

-실내 벽 마감재 : 실크벽지/ 실내 바닥마감재 : 강마루

-창호재 : 이건 알루미늄 3중 시스템창호

-건축면적 : 154.63㎡(1층 : 89.76㎡, 2층 : 64.87㎡)

-예상 총 건축비 : 329,000,000원(부가세 포함, 산재보험료 포함 / 설계비, 인허가비, 구조계산 설계비 별도)

-설계비 : 11,750,000원(부가세 포함) / 인허가비 : 4,700,000원(부가세 포함)

-구조계산 설계비 : 4,700,000원(부가세 포함) / 인테리어 설계비 : 7,050,000원(부가세 포함)

*건축비 외 부대비용 : 대지구입비, 가구(싱크대, 신발장, 붙박이장), 기반시설 인입(수도, 전기, 가스 등), 토목공사, 조경비 등


HC029-4779r.jpg
HC029-4785r.jpg
HC029-4799r.jpg
HC029-4842r.jpg
HC029-4861r.jpg
HC029-4923r.jpg
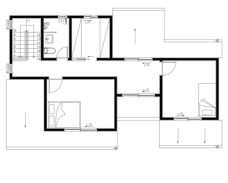
1층.jpg 1층 평면도
2층.jpg 2층 평면도

※위 글과 사진은 이동혁·임성재·정다운 홈트리오 공동대표가 쓴 <젊은 전원주택 트렌드 3>의 일부입니다. 세명의 공동대표들은 2020년 1월부터 최신 트렌드에 맞춘 전원주택 모델을 매달 발표해왔습니다. 건축비, 상세 평면도, 면적 개요, 실제 사진까지 담아 '나만의 전원주택'을 원하는 예비 건축주들에게 가이드라인을 제시해줍니다.


전원주택 트렌드 책 구매 링크 : https://product.kyobobook.co.kr/detail/S000001836099



글·사진=이동혁·임성재·정다운 홈트리오 공동대표

정리=더농부


%ED%94%84%EB%A1%9C%ED%95%84(%EA%B8%80_%EC%B2%A8%EB%B6%80).JPG?type=w966

홈트리오 조직 계열도.jpg
6.jpg (좌측부터) 홈트리오(주) 정다운 건축가, 임성재 건축가, 이동혁 건축가

[집이라는 본질적인 가치에 집중하다.]

Architecture Team : 홈트리오(주)

대표번호 : 1522-4279

홈페이지 : http://hometrio.kr/

네이버 프리미엄 구독 : https://contents.premium.naver.com/hometrio/home

KakaoTalk_20191210_164551850.jpg
KakaoTalk_20200521_090546896.jpg
img.jpg