#6. 일본 '심플함 속 매력이 빛나는' 전원주택

일본 전원주택 트렌드 #6 - TRIM / APOLLO

by 이동혁 건축가

http://spacemillion.kr <-일본 전원주택 사례 많은 곳은 '스페이스 밀리언 ai'

아직도 헤매고 있어.jpg

제목 : #6. 일본 '심플함 속 매력이 빛나는' 전원주택

소제목 : 일본 전원주택 트렌드 #6 - TRIM / APOLLO Architects & Associates + Satoshi Kurosaki


*구독 버튼은 필수인 것 다들 아시죠^^

SLIDE_15.jpg

SPEC


면적 : 194㎡

구분 : 단독주택

스타일 : 한국&아시아, 미니멀&심플, 유니크&믹스매치, 모던

사용자 : 신혼부부, 아기가 있는 집, 취학자녀가 있는 집

예상건축비 : 667,000,000원

공법 : 철근콘크리트

층수 : 2층

방/화장실 개수 : 6개/2개

외장 마감재 : 우드, 벽돌

지붕 마감재 : 평기와

상세정보 : https://spacemillion.kr/design/65b0d1c217051d3913efa221


STORY


TRIM

건축가 : APOLLO Architects & Associates

출처 : 아키데일리(https://www.archdaily.com/872427/trim-apollo-architects-and-associates?ad_source=search&ad_medium=projects_tab)



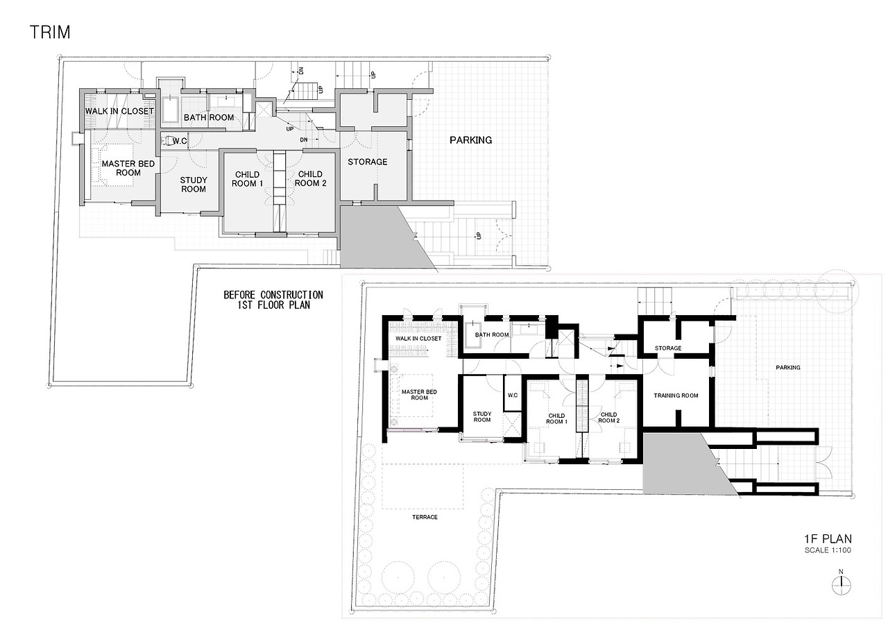
Floor Plan

TRIM_plan_1f-001.jpg
TRIM_plan_2f-001.jpg

<사진>

SLIDE_15.jpg
TRIM_03.jpg
TRIM_07.jpg
TRIM_08.jpg
TRIM_11.jpg
TRIM_12.jpg
TRIM_13.jpg
TRIM_18.jpg
TRIM_21.jpg
TRIM_22.jpg
TRIM_23.jpg
TRIM_25.jpg
TRIM_28.jpg
TRIM_31.jpg

건축도면 다운로드 아카이브(스페이스밀리언 ai) : https://spacemillion.kr/

스페이스밀리언 ai.jpg