#12. 일본 '프라이빗 중정을 갖다' 전원주택 트렌드

일본 전원주택 트렌드 #12 - Wave House / APOLLO

by 이동혁 건축가

http://spacemillion.kr <-일본 전원주택 사례 많은 곳은 '스페이스 밀리언 ai'

아직도 헤매고 있어.jpg



제목 : #12. 일본 '프라이빗 중정을 갖다' 전원주택 트렌드

소제목 : 일본 전원주택 트렌드 #12 - Wave House / APOLLO Architects & Associates + Satoshi Kurosaki


*구독 버튼은 필수인 것 다들 아시죠^^

GRIGIO_13_flower.jpg

SPEC


면적 : 122㎡

구분 : 단독주택

스타일 : 모던 | 미니멀&심플 | 유니크&믹스매치

사용자 : 싱글라이프 | 신혼부부 | 노후주택

예상건축비 : 444,000,000원

공법 : 철근콘크리트

층수 : 2층

방/화장실 개수 : 3개/2개

외장 마감재 : 스타코, 페인트

지붕 마감재 : 평지붕마감

상세정보 : https://spacemillion.kr/design/65b1bafefe7e2d2d6f482b31


STORY


Wave House

건축가 : APOLLO Architects & Associates

출처 : 아키데일리(https://www.archdaily.com/610778/wave-house-apollo-architects-and-associates?ad_source=search&ad_medium=projects_tab)



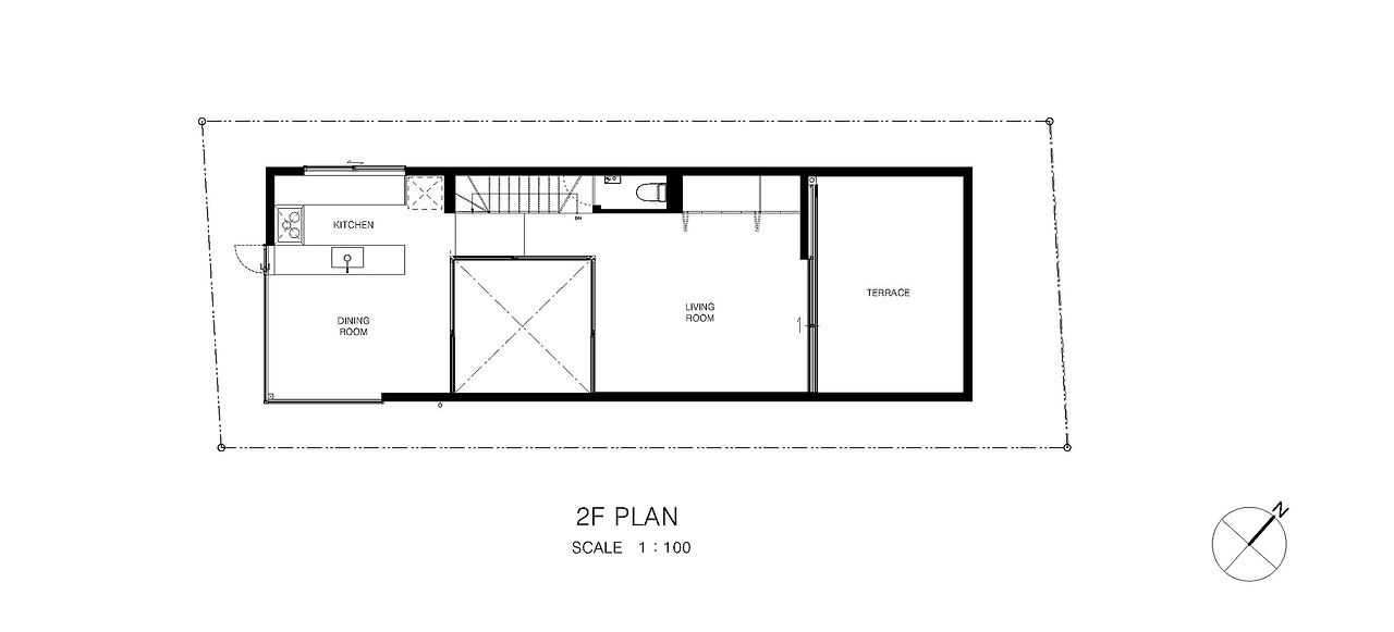
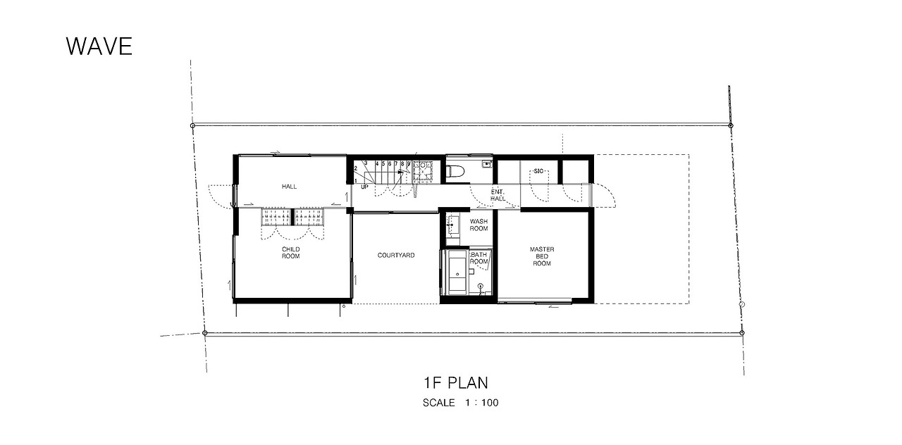
Floor Plan

1.jpg
2.jpg

<사진>

GRIGIO_13_flower.jpg
PORTADA_WAVE_09.jpg
WAVE_03.jpg
WAVE_08.jpg
WAVE_10.jpg
WAVE_11.jpg
WAVE_15.jpg
WAVE_24.jpg
WAVE_25.jpg
WAVE_28.jpg
WAVE_29.jpg
WAVE_31.jpg

건축도면 다운로드 아카이브(스페이스밀리언 ai) : https://spacemillion.kr/

스페이스밀리언 ai.jpg