#11. 일본 '빛과 노출콘크리트' 전원주택 트렌드

일본 전원주택 트렌드 #11 - Grigio / APOLLO

by 이동혁 건축가

http://spacemillion.kr <-일본 전원주택 사례 많은 곳은 '스페이스 밀리언 ai'

아직도 헤매고 있어.jpg

제목 : #11. 일본 '빛과 노출콘크리트' 전원주택 트렌드

소제목 : 일본 전원주택 트렌드 #11 - Grigio / APOLLO Architects & Associates + Satoshi Kurosaki


*구독 버튼은 필수인 것 다들 아시죠^^

GRIGIO_03.jpg

SPEC


면적 : 247㎡

구분 : 단독주택

스타일 : 모던 | 미니멀&심플 | 유니크&믹스매치

사용자 : 싱글라이프 | 신혼부부 | 아기가있는집 | 노후주택

예상건축비 : 825,000,000원

공법 : 철근콘크리트

층수 : 2층

방/화장실 개수 : 2개/2개

외장 마감재 : 노출

지붕 마감재 : 평지붕마감

상세정보 : https://spacemillion.kr/design/65b1b8bc9e6565d651d0b1be


STORY


Grigio

건축가 : APOLLO Architects &amp; Associates

출처 : 아키데일리(https://www.archdaily.com/771351/grigio-apollo-architects-and-associates?ad_source=search&ad_medium=projects_tab)



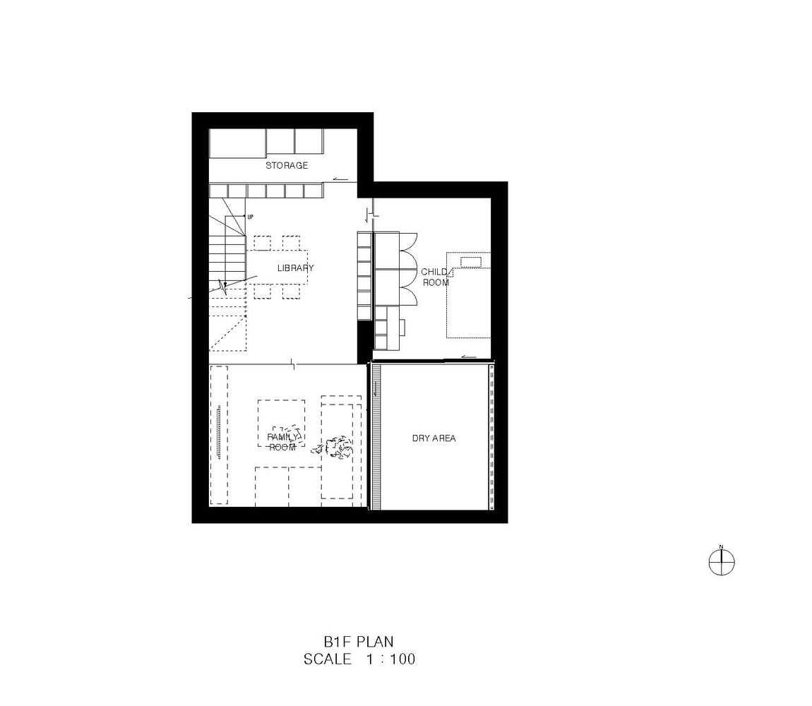
Floor Plan

0.b1.jpg
1f.jpg
2f.jpg
3. Roof_Plan.jpg

<사진>

GRIGIO_03.jpg
GRIGIO_06.jpg
GRIGIO_09_flower.jpg
GRIGIO_11.jpg
GRIGIO_13_flower.jpg
GRIGIO_19.jpg
GRIGIO_23_flower.jpg
GRIGIO_28.jpg
GRIGIO_32.jpg
GRIGIO_34.jpg
GRIGIO_35.jpg

건축도면 다운로드 아카이브(스페이스밀리언 ai) : https://spacemillion.kr/

스페이스밀리언 ai.jpg