#10. 일본 '빛과 나무의 노래' 전원주택 트렌드

일본 전원주택 트렌드 #10 - NORD / APOLLO

by 이동혁 건축가

http://spacemillion.kr <-일본 전원주택 사례 많은 곳은 '스페이스 밀리언 ai'

아직도 헤매고 있어.jpg

제목 : #10. 일본 '빛과 나무의 노래' 전원주택 트렌드

소제목 : 일본 전원주택 트렌드 #10 - NORD / APOLLO Architects & Associates + Satoshi Kurosaki


*구독 버튼은 필수인 것 다들 아시죠^^

NORD_03.jpg

SPEC


면적 : 204㎡

구분 : 단독주택

스타일 : 모던 | 클래식&엔틱 | 한국&아시아

사용자 : 신혼부부 | 아기가있는집 | 노후주택

예상건축비 : 549,000,000원

공법 : 중목구조

층수 : 2층

방/화장실 개수 : 2개/1개

외장 마감재 : 페인트, 우드

지붕 마감재 : 평기와

상세정보 : https://spacemillion.kr/design/65b1b7a4b3dcccfd39d5d2c6


STORY


NORD

건축가 : APOLLO Architects &amp; Associates

출처 : 아키데일리(https://www.archdaily.com/771430/nord-apollo-architects-and-associates?ad_source=search&ad_medium=projects_tab)



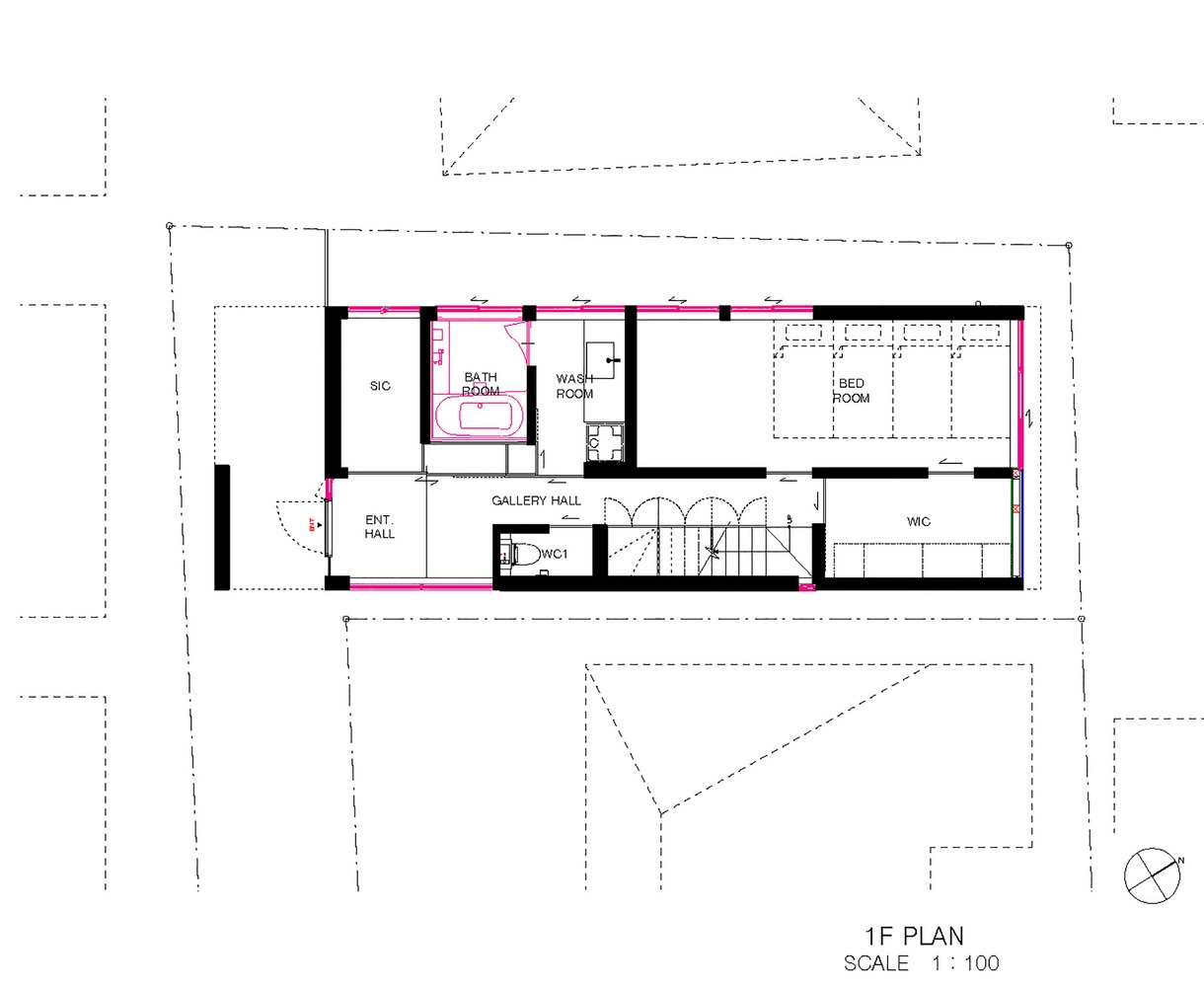
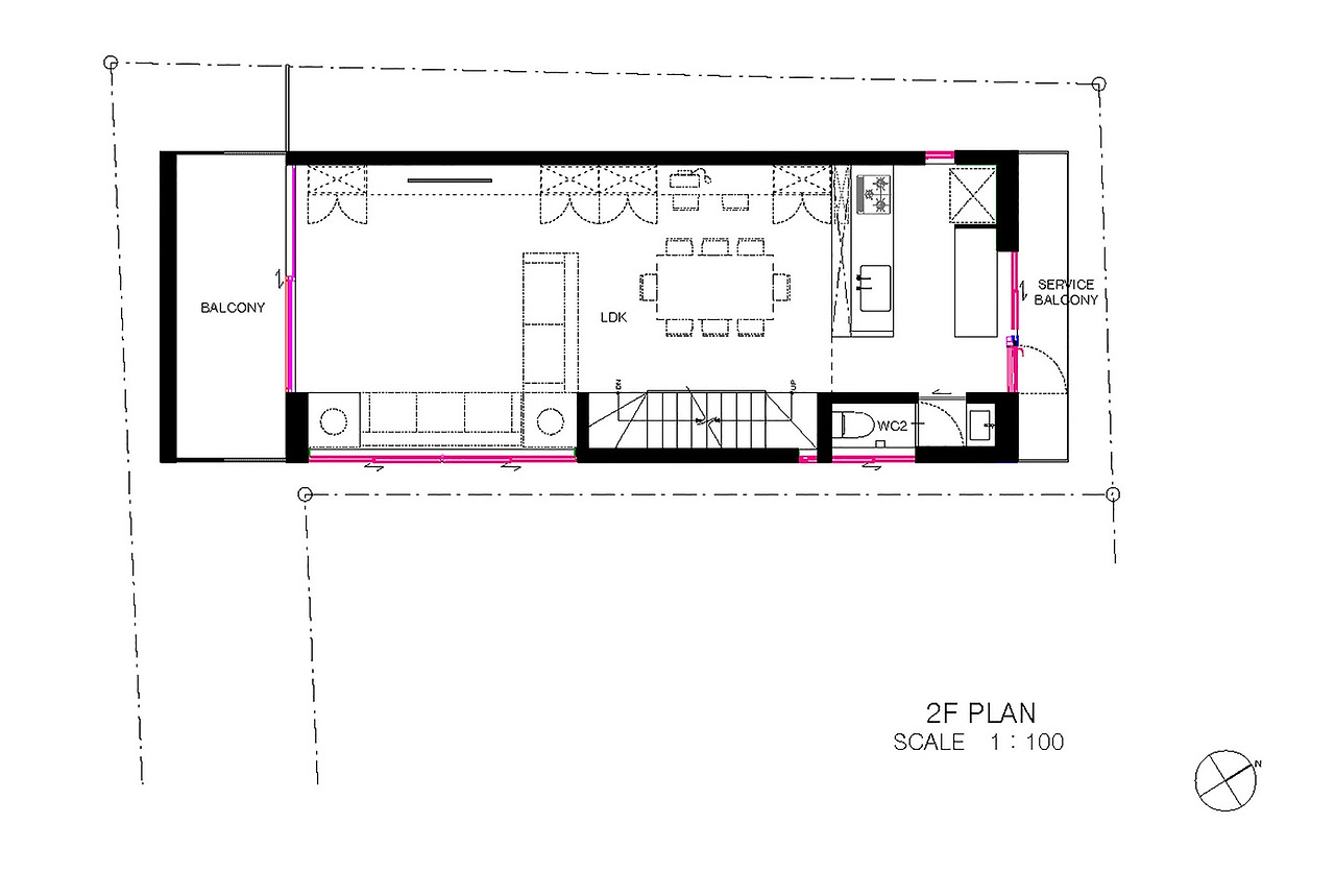
Floor Plan

1.jpg
2.jpg

<사진>

ARK_14.jpg
NORD_03.jpg
NORD_04.jpg
NORD_09.jpg
NORD_12.jpg
NORD_13.jpg
NORD_22.jpg
NORD_25.jpg
NORD_29.jpg

건축도면 다운로드 아카이브(스페이스밀리언 ai) : https://spacemillion.kr/

스페이스밀리언 ai.jpg