#19. 일본 '바닷가 앞 집' 전원주택 트렌드

일본 전원주택 트렌드 #19 - Slash / APOLO

by 이동혁 건축가

http://spacemillion.kr <-일본 전원주택 사례 많은 곳은 '스페이스 밀리언 ai'

아직도 헤매고 있어.jpg



제목 : #19. 일본 '바닷가 앞 집' 전원주택 트렌드

소제목 : 일본 전원주택 트렌드 #19 - Slash / APOLLO Architects & Associates + Satoshi Kurosaki


*구독 버튼은 필수인 것 다들 아시죠^^

ALLEY_21.jpg

SPEC


면적 : 121㎡

구분 : 단독주택

스타일 : 모던 | 클래식&엔틱 | 하이브리드 | 유니크&믹스매치

사용자 : 싱글라이프 | 신혼부부 | 노후주택

예상건축비 : 396,000,000원

공법 : 철근콘크리트

층수 : 1

방/화장실 개수 : 5개/2개

외장 마감재 : 평지붕마감

지붕 마감재 : 노출, 우드

상세정보 : https://spacemillion.kr/design/65b1d3d81316f69584f8b59a


STORY


Slash

건축가 : APOLLO Architects &Associates

출처 : 아키데일리(https://www.archdaily.com/428835/slash-apollo-architects-and-associates?ad_source=search&ad_medium=projects_tab)



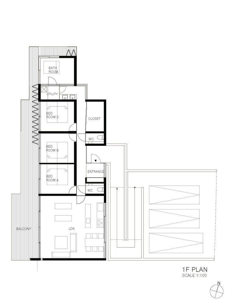
Floor Plan

plan.jpg

<사진>

ALLEY_21.jpg
SLASH_03.jpg
SLASH_04.jpg
SLASH_06.jpg
SLASH_07.jpg
SLASH_08.jpg
SLASH_09.jpg
SLASH_10.jpg
SLASH_11.jpg
SLASH_12.jpg
SLASH_13.jpg
SLASH_15.jpg
SLASH_16.jpg
SLASH_17.jpg
SLASH_18.jpg
SLASH_21.jpg
SLASH_22.jpg
SLASH_23.jpg
SLASH_26.jpg
SLASH_27.jpg
SLASH_28.jpg
SLASH_29.jpg

건축도면 다운로드 아카이브(스페이스밀리언 ai) : https://spacemillion.kr/

스페이스밀리언 ai.jpg