#21. 일본 '모던함의 매력' 전원주택 트렌드

일본 전원주택 트렌드 #21 - TEPE / APOLO

by 이동혁 건축가

http://spacemillion.kr <-일본 전원주택 사례 많은 곳은 '스페이스 밀리언 ai'

아직도 헤매고 있어.jpg



제목 : #21. 일본 '모던함의 매력' 전원주택 트렌드

소제목 : 일본 전원주택 트렌드 #21 - TEPE / APOLLO Architects & Associates + Satoshi Kurosaki


*구독 버튼은 필수인 것 다들 아시죠^^

ARROW_13.jpg

SPEC


면적 : 109㎡

구분 : 단독주택

스타일 : 모던 | 하이브리드 | 유니크&믹스매치 | 미니멀&심플

사용자 : 싱글라이프 | 신혼부부 | 아기가있는집 | 취학자녀가 있는 집

예상건축비 : 352,000,000원

공법 : 철근콘크리트

층수 : 2층

방/화장실 개수 : 2개/1개

외장 마감재 : 징크, 노출

지붕 마감재 : 평지붕마감

상세정보 : https://spacemillion.kr/design/65b1d63b1dcc3e37f93337c5


STORY


TEPE

건축가 : APOLLO Architects &Associates

출처 : 아키데일리(https://www.archdaily.com/396547/tepe-apollo-architects-and-associates?ad_source=search&ad_medium=projects_tab)



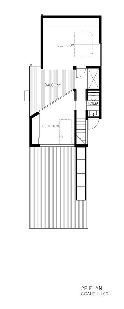
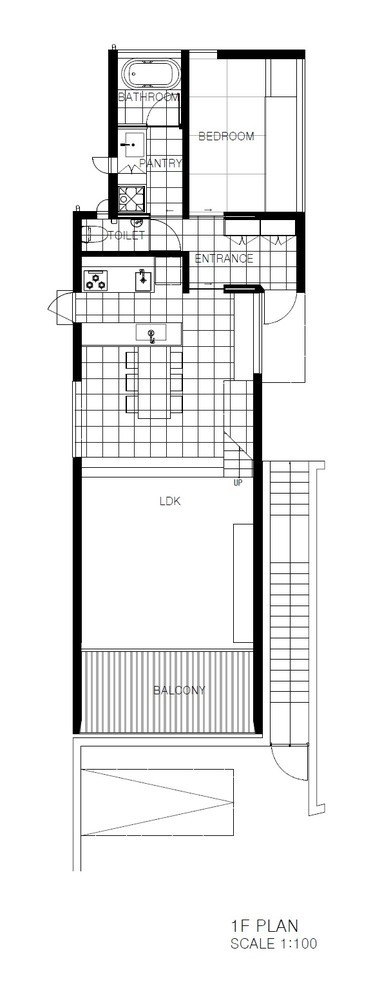
Floor Plan

plan.jpg
plan2.jpg

<사진>

ARROW_13.jpg
TEPE_01.jpg
TEPE_04.jpg
TEPE_05.jpg
TEPE_06.jpg
TEPE_07.jpg
TEPE_08.jpg
TEPE_09.jpg
TEPE_10.jpg
TEPE_11.jpg
TEPE_12.jpg
TEPE_13.jpg
TEPE_14.jpg
TEPE_15.jpg
TEPE_17.jpg
TEPE_18.jpg
TEPE_19.jpg
TEPE_21.jpg
TEPE_24.jpg
TEPE_26.jpg
TEPE_29.jpg

건축도면 다운로드 아카이브(스페이스밀리언 ai) : https://spacemillion.kr/

스페이스밀리언 ai.jpg

<오늘의 팁> 글 : 이동혁 건축가


1.6 가장 당황스러운 문의는 무엇인가요?


가장 당황스러운 문의는 두 가지 정도로 이야기할 수 있을 것 같아요.

첫 번째는 '평당 얼마예요?', 두 번째는 '가설계 그려와 봐요.'입니다.


아마 집을 짓고자 준비하고 계신 분들 중에는 위의 이야기를 이미 하신 분들도 계실 것이고, 아니란 것을 알기 때문에 물어보고 싶어도 마음속으로만 삭히신 분들도 계실 것입니다.


이번 글에서는 위의 내용을 건축가 입장에서 이야기드려 볼게요.


"평당 얼마예요?"

묻지도 따지지도 않고, 그리고 어떠한 집을 짓고 싶은지도 말하지 않은 채 우리들은 '평당 얼마?'만 외치고 다닙니다. 솔직히 저희들은 그 마음을 이해합니다. 정확한 설계도면이 있으면 물량을 뽑아 견적 의뢰라도 하면 되는데, 그러한 상황이 아닌 단순 시작을 해야 하나 말아야 하나의 고민 사이에 있는 분들이 위의 질문을 많이 하십니다.


이해는 하지만 저 질문으로는 절대로 원하는 답을 얻어낼 수 없습니다.

그래서 전화상 문의로 평당 얼마 인지 문의 오면 참 당황스럽습니다. 차라리 시간 내서 한 번 상담받으러 오면 자세한 내용과 어떠한 것을 준비하면 되는지를 이야기드리면 되는데, 저렇게 평당 얼마만 물어보면 저희도 대충 대략적인 금액만 알려드릴 수밖에 없거든요.


저희들은 알고 있습니다. 저렇게 물어오시는 분들은 백 이면 백 집 안 짓습니다. 정말로 집을 짓고자 하시는 분들은 저 질문이 얼마나 무지한 질문인지를 잘 알고 있기 때문에 절대로 저 질문하지 않습니다.


예를 들면 냉장고 사러 가서 브랜드 및 용량, 디자인 등 아무것도 따지지 않고 '냉장고 얼마예요?'라고 질문하는 것과 같습니다.


좀 직설적으로 이야기하면, 스스로 무지하다는 것을 이야기하는 것과 같습니다.


최근에 상담에서 이런 일이 있었습니다.

"아 됐고, 그냥 평당 얼마인지만 알려줘요. 한 가구는 세 줄 꺼고, 고급 말고 중간 정도 수준으로 지을 거예요."


하...

이해는 해 드릴게요. 문제는 이런 문의는 저희가 계약 안 해 드려요. 다른 곳 알아보셔도 무방합니다.


사람마다 느끼는 품질 및 수준의 차이가 분명히 존재합니다. 정말로 금액이 알고 싶다 하시면 설계도면 먼저 그리세요. 그게 정답이에요.


아! 이것도 있네요. 박람회 다니면서 평당 단가 물어보고 다시시는 분들 계세요. 매년 가셔 봤자 원하는 답 안 나온답니다. 차라리 설계도면이라도 들고 가세요. 그러면 희박한 확률이라도 있지만, 그렇지 않다면 시간낭비일 뿐일 거예요.


이번 시간 이후 평당 얼마인지 물어보는 질문 설마 안 하시겠죠?

하지 마세요. 차라리 설계비 얼마인지 물어보고, 본인지 잡고 있는 예산이 맞는지 틀린 지를 물어보는 것이 더 정확할 것입니다.


두 번째는 '가설계 그려와 봐요.'입니다.


이게 제일 심각합니다. 80년대에는 어떻게 했는지 모르지만 현 2022년도에는 가설계라는 단어는 없습니다. 돈에 업자가 일을 따 내기 위해 대충 선만 그려서 오는 것을 말하는 것인지는 모르지만 저희들은 가설계를 진행하지 않고 있습니다.


어떠한 집을 원하는지도 모르고 어느 브랜드에 제품을 사용해야 하는지도 결정되지 않은 상황에서 그려지는 도면은 의미가 없다 생각합니다.


특히 건축법규를 해석한 후 도면을 그리는 것이 아닌 아무 도면이나 땅에 앉혀서 가설계라고 제시하는 것은 그림일 뿐 도면이라 부르지 않습니다.


꼭 10통의 문의 중에 1통은 이런 가설계 문의가 옵니다. 이번 자리를 빌려 말씀드립니다. 저희 가설계 안 합니다. 제발 이런 문의하지 마세요. 저희 직원들도 당황합니다. 심지어 이런 분들이 꼭 더 당당합니다. 너무 당당하게 우리 집 지어보려면 가설계 그려오라고 밑도 끝도 없이 말을 던지니 어이없어서 당황하는 것이죠.


저희 포트폴리오는 300개가 넘게 홈페이지에 올라가 있습니다. 심지어 건축비 및 상세 도면들도 모두 올려놓았으니 어려움 없이 검토가 가능하실 거예요.


저희의 도움이 정말로 필요하신 분들이 저희에게 오셨으면 좋겠어요. 빌라나 상업적 집장사의 건물을 원하시면 저희에게 안 오셔도 되세요. 저희 말고도 그러한 집 짓고자 하시는 분들 많으실 거거든요.


저희들은 그런 집을 짓는 회사가 아닙니다. 배불렀다고 할 수도 있지만 저희들은 저희가 제일 잘하는 것을 잘 짓고자 노력합니다.


단순 지어서 파는 것이 아닌 정말로 행복하게 살 수 있는 그런 집. 그런 집을 짓고 싶답니다.