오늘의집/45평 양평 배리어프리(2024 전원주택)

2024 월간 홈트리오 100 - 006번째

by 이동혁 건축가

http://spacemillion.kr

스페이스밀리언 배너.jpg

2024 월간 홈트리오 100 - 006번째 / 오늘의 집 / 45평 양평 배리어프리(2024 전원주택)


※모든 저작권은 홈트리오(주), 듀밀리언에게 있습니다. 최근 무단으로 디자인과 설계 평면도를 복제해 마치 본인들이 한 것인 듯 홍보하는 업체들이 있는데 법적 책임을 물을 수 있다는 점 고지드립니다.

양평-투시도.jpg

STORY


: 선선한 바람이 부는 곳. 시원한 바람이 온몸을 감싸 안고, 편안한 기운으로 마음을 안정시켜주는 공간. 우리는 그러한 곳을 ‘고향집’이라고 부르기로 했습니다.

좋은 터. 그리고 행복한 기운이 땅에 흐르는 곳.

그 좋은 곳에 설계된 주택이 바로 이번 양평 주택입니다.


모던한 감성과 클래식한 감성을 모두 안고 태어난 주택이며, 안정감 있는 비율 디자인으로 보고만 있어도 편안함이 스며드는 주택이랍니다.

행복한 기억과 추억을 가득 안고 태어난 집. 항상 따뜻한 온기가 맴도는 집으로 기억되길 바랍니다.


이번 주택은 배리어프리 설계 기법이 적용된 주택입니다. 휠체어를 타고 내·외부를 편안히 지나다닐 수 있도록 복도 폭 및 공간을 확보해 주었으며, 문턱들을 없애주어 움직이기에 불편함이 없도록 했습니다.


유니버셜 디자인이라고 하는 건축설계를 적극 적용했으며, 공간들마다 건축주님의 라이프스타일에 최적화된 공간들로 인식될 수 있도록 고려를 하였습니다.


유니버셜 디자인과 좀 더 깊숙이 들어가서 배리어프리 주택 설계를 한 주택을 거의 못 보셨을 거예요. 정확히 하는 곳도 없고 요청하시는 분들도 많이 않았거든요. 무장애 건축을 하기 위해서는 사용자에 대한 이해가 필수입니다. 어떠한 활동반경과 라이프스타일을 가지고 있는지 우선 파악 후에 건축설계가 이루어져야 합니다.


사람마다 가지고 있는 생활상이 다릅니다. 그리고 집을 인지하는 방향성도 각기 다릅니다. 이것을 파악해야 그다음 공간을 만들어 낼 수 있습니다.


공간의 면적, 복도의 폭, 그리고 가구의 맞춤까지. 이번 주택은 배리어프리 계획의 가장 근본적은 부분부터 설계가 되었다고 이야기드릴 수 있을 것 같습니다.


외관 디자인은 밝은 분위기를 자아낼 수 있도록 신경 썼습니다. 어두운 느낌이 느껴져서는 안 됩니다. 어떠한 공간에 들어가든 밝은 채광과 긍정적인 기운이 감돌 수 있어야 합니다.


집이라는 단순 매개채로만 본다면 심플해 보일 수도 있지만, 이 집은 분명 건축주님에게 특화되어있는 공간들로 설계가 되었습니다.


1층은 휠체어 생활을 하시는 어머님을 위한 맞춤 공간으로 계획을 진행했으며, 가구 등도 휠체어 높이에 맞게 설정하여 맞춤 제작하였습니다.


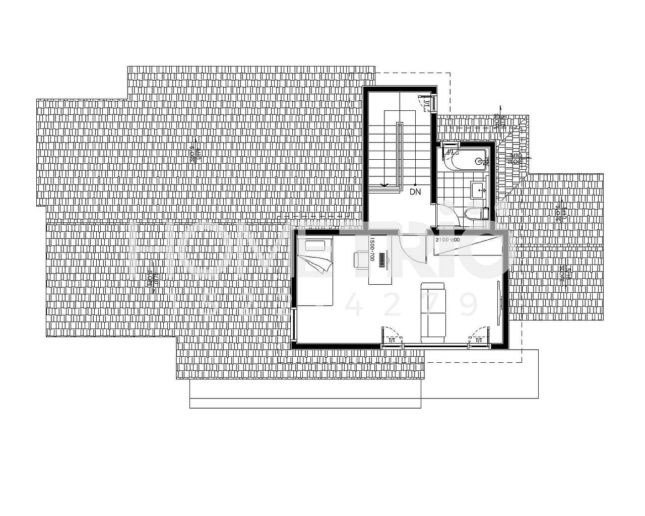
2층은 아드님을 위한 독립적인 공간으로 구성했습니다. 원룸 형태의 구성을 계획했으며, 침실 및 작업실을 겸용할 수 있도록 일반적인 방보다 크게 공간을 구성해 주었습니다.


목조주택으로 설계한 주택이기 때문에 추위에 대해서 강합니다. 그리고 모든 창을 3중 시스템창호에 로이유리를 안과 밖으로 2장 시공했기 때문에 일반 창보다 훨씬 따뜻한 단열성을 가집니다.


타 주택보다 많은 정성을 들여 설계를 한 주택입니다. 이 주택에서 항상 행복한 일들만 가득하길 바라며, 긍정적인 기운이 풍성하게 뿜어져 나오는 집으로 기억되길 바랍니다.


#양평전원주택 #배리어프리 #예쁜전원주택 #박공지붕 #여자감성

양평-투시도.jpg

공법 : 철근콘트리트

설계, 시공 : 듀밀리언(주), 홈트리오(주) / 상담문의 : sunsutu@hanmail.net(대표번호 : 1522-1035 / 문자상담 : 010-6889-9770 / 문의가 너무 많아 전화가 안 될 수 있습니다. 문자로 내용 남겨주시면 늦더라도 상담드릴께요.^^)

ARTIST : 건축가 이동혁, 임성재

포트폴리오 : https://brunch.co.kr/@sunsutu

건축도면 다운로드 아카이브(스페이스밀리언) : https://spacemillion.kr/

지붕마감재 : 아스팔트슁글 / 외벽 마감재 : 스타코플렉스 / 포인트자재 : 파벽돌

실내벽마감재 : 실크벽지 / 실내바닥마감재 : 이건 강마루

창호재 : 이건 알루미늄 3중 시스템창호

건축면적 : 150.34㎡(1층 : 113.49㎡, 2층 : 36.85㎡)

예상 총 건축비 : 351,000,000원(부가세 포함, 산재보험료 포함 / 설계비, 인허가비, 구조계산 설계비 별도)

설계비 : 11,250,000원(부가세 포함) / 인허가비 : 4,500,000원(부가세 포함)

구조계산 설계비 : 4,500,000원(부가세 포함) / 인테리어 설계비 : 6,750,000원(부가세 포함)

*건축비 외 부대비용 : 대지구입비, 가구(싱크대, 신발장, 붙박이장), 기반시설 인입(수도, 전기, 가스 등), 토목공사, 조경비 등


*건축비 기준은 24년 05월 17일 기준 금액입니다.


1f.jpg 1층 평면도
2f.jpg 2층 평면도


이동혁 건축가 : 집이라는 기본에 충실하게 설계한 주택입니다. 깔끔하고 정돈된 느낌. 결코 과하지 않고 정갈한 분위기로 집 전체를 설계하였습니다. 보고만 있어도 마음이 깨끗해지는 느낌. 그레이톤의 지붕 색상과 화이트톤의 외벽 색상의 조합으로 무던하지만 우하함이 풍겨 나오는 집으로 탄생을 시켰습니다. 목조주택을 설계할 때에는 지붕의 경사도가 매우 중요합니다. 어떠한 말을 해도 누수를 방지하기 위한 경사지붕은 필수입니다. 그리고 목조주택에서 옥상 사용이라니요? 말도 안 되는 소리. 무조건 지붕으로 잘 덮어주시기 바랍니다. 집은 비 안 새고 따뜻하기만 하면 90% 이상의 만족도를 얻을 수 있습니다. 소소한 하자들은 건축주님들도 고치면서 살아가십니다. 다만 비 새면 답 없어요. 그냥 뜯고 다시 하는 것 밖에 없기 때문에 대공사 범위에 들어갑니다. 유지관리가 편하고 하자가 작은 집으로 설계하세요. 그것이 맞아요.


임성재 건축가 : 휠체어를 타고 집 안을 돌아다니기 위해서는 통로 폭을 확보하는 문제가 가장 중요합니다. 1미터 이상의 폭을 확보해야 움직이기에 편하며, 이에 따라 주방 공간 및 화장실 공간들도 건축주님의 활동반경에 맞추어 계획해 주어야 합니다. 이번 주택에서 눈여겨볼 점은 싱크대 부분입니다. 싱크대의 기본 높이대로 가구를 제작하면 안 됩니다. 휠체어에 앉아서도 충분히 요리를 할 수 있도록 높이를 맞춤으로 제작해야 하며, 휠체어 다리 부분은 깊게 파서 다리가 들어갈 수 있도록 계획해 놓아야 합니다. 배리어프리 계획은 무장애 계획입니다. 그 어떤 누구도 움직임에 있어서 불편함을 느끼면 안 됩니다. 특히 휠체어를 타고 생활한다면 더더욱 방해받지 않는 움직임이 필수입니다. 이번 주택은 그러한 방향성을 기반으로 설계가 이루어졌습니다. 배리어프리주택. 추후 시공 디테일한 부분까지도 공유해드릴 테니 많은 아이디어와 계획안들을 참고하시면 좋을 것 같습니다.


양평-투시도.jpg
메스1.jpg
메스2.jpg
메스3.jpg
메스4.jpg
양평-투시도.jpg

https://spacemillion.kr/

스페이스밀리언 배너.jpg

[집이라는 본질적인 가치에 집중하다.]

설계, 시공 : 홈트리오(주), 듀밀리언(주)

상담문의 : sunsutu@hanmail.net(대표번호 : 1522-1035 / 문자상담 : 010-6889-9770 / 문의가 너무 많아 전화가 안 될 수 있습니다. 문자로 내용 남겨주시면 늦더라도 상담드릴게요.^^)

ARTIST : 건축가 이동혁, 임성재

포트폴리오 : https://brunch.co.kr/@sunsutu

건축도면 다운로드 아카이브(스페이스밀리언) : https://spacemillion.kr/

스페이스밀리언 ai.jpg