오늘의집/42평 전원주택 '바닷가 앞 집'

2024 월간 홈트리오 100 - 013번째

by 이동혁 건축가

http://spacemillion.kr

스페이스밀리언 배너.jpg

2024 월간 홈트리오 100 - 013번째 / 오늘의 집 / 42평 전원주택 '바닷가 앞 집'(2024 전원주택)


※모든 저작권은 홈트리오(주), 듀밀리언에게 있습니다. 최근 무단으로 디자인과 설계 평면도를 복제해 마치 본인들이 한 것인 듯 홍보하는 업체들이 있는데 법적 책임을 물을 수 있다는 점 고지드립니다.

양양-투시도.jpg

STORY


: 마음의 여유.

도심을 벗어나 한가로운 바닷 마을 앞에서 즐기는 커피 한잔.

이번 주택은 양양의 탁 트인 바다 앞에서 지어질 주택으로, 고즈넉하게 내려앉은 처마와 화이트톤 외벽이 주는 차분한 감성이 매력적인 집입니다.


뛰어난 단열성과 가성비 높은 건축비는 이 집의 장점이라 칭할 수 있으며, 큰 포인트 없이도 창 자체가 포인트가 되는 신비로운 설계요소들로 탄생한 주택입니다.


여유로움이라는 감성을 품고 태어난 집.

이번 주택은 양양이라는 바다 마을이 떠오르는 그러한 여유로운 감성의 집으로 설계된 주택이랍니다.


현 주택 시장 상황을 살펴보면 집을 가진 자가 죄가 되는 시대라고 볼 수 있는데요. 3년 전만 해도 '욜로'라는 열풍이 불면서 도심의 집을 떠나 시골로, 농촌으로 세컨드 하우스를 지어 나가는 분들이 많았었습니다.

월간 홈트리오가 '전원주택 트렌드'라는 제목의 책으로 벌써 5년째 쓰이고 있다 보니 시대의 흐름을 집에 담아서 발표하게 된 것 같아요.


저도 3년 전 썼던 책을 다시 들여다보면 마치 역사책처럼 "아 이 연도에는 이러한 사회적 문제가 있었고, 우리들이 어떠한 고민들을 하고 있었구나!"라는 것을 알게 됩니다. 그만큼 지금의 이 글도 현 사회상을 담아 적고 있는 역사 기록쯤 되지 않을까 조심스럽게 생각해 봅니다.


저희들이 설계하고 시공한 집을 쭉 세 보니 약 250채 정도 되는 것 같아요. 10년이라는 시간 동안 정말 많이 짓기는 했네요. 본격적인 글과 책을 기록하기 시작한 지가 5년이니, 만약 전원주택에 대한 역사와 사회상을 알고 싶으신 분들이 계시다면 '젊은 전원주택 트렌드'를 1권부터 쭉 읽어나가시면 좋을 것 같습니다. 정말 집의 설계안들이 그 상황을 대변하고 있거든요.


건축비가 코로나19를 거치면서 정말 많이 올랐습니다. 그 결과가 주택 디자인에 나타나고 있는 것 같아요. 2021년도 초만 해도 건자재비 및 장비대가 저렴한 편이었는데 1년 사이 두 개 가까이 비용이 올라버렸습니다. 철근 가격의 경우 3배 이상 올랐으니 말 다했죠. 해가 지나면 내려간다고 이야기하는 사람들이 있는데 생각이 있게 말하는 것인지 모르겠어요. 업계 사람들은 다 알아요. 해가 넘어가면 인건비는 무조건 올라가고 장비대 및 운영비용도 모두 올라간다는 것을요. 잘해야 현상 유지예요. 절대로 떨어지는 일 없습니다. 10년을 이 시장에서 일을 해왔는데 떨어진 적을 본 적이 없어요.


큰 틀에서는 건축이지만 세부적으로 들어가 보면 유통구조를 띄고 있어요. 건자재들은 모두 유통 마진을 포함하여 대리점에서 판매하거든요. 기름값과 같아요. 전 세계적으로 기름값이 떨어져도 우리가 현실적으로 와닿는 부분은 미미하게 떨어져요. 그 이유는 유통구조 때문입니다. 건축도 엄청 얽혀 있는 유통구조망 때문에 쉽게 떨어지지 않아요. 그런데 신기하게 올라갈 때는 쭉 올라간다는 말도 안 되는 현실.


저희들 홈트리오의 시그니처 디자인이 존재하죠. 그것은 바로 화이트톤 외벽에 박공지붕이 고즈넉하게 올라가고, 블랙 프레임의 큰 통장 디자인. 많은 분들이 '원래부터 이렇게 집이 생겼었나(?)'라고 생각하지만 10년 전 주택 디자인들 봐보세요. 통나무 주택 및 황토주택, 조립식 패널 주택 등 정말 말도 안 되는 디자인의 시장이었습니다.


고퀄리티의 가성비 높은 집을 짓고자 한 저희들이 하나씩 개선해 나가면서 목조주택 시장을 형성해 나갔으며, 그 결과 올드한 느낌을 지우고 젊은 느낌의 감성을 가진 전원주택을 탄생시킬 수 있었던 것 같아요.


이번 주택도 저희 홈트리오의 특색을 가장 잘 입고 태어난 주택이라 평 할 수 있을 것 같습니다.


평면이 좀 독특해요. 솔직히 저희들의 주택들의 도면이 타 회사에 비해 많이 유니크하다 할 수 있습니다. 기성화 된 느낌을 벗어나고 건축주님만의 집을 짓고자 설계 때 많이 노력하거든요. 그 생각과 마음이 집에 담겨서 탄생하는 것 같습니다.


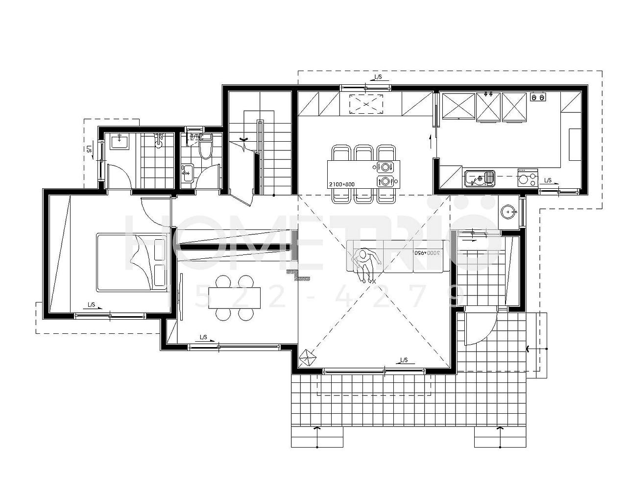
넓은 거실과 주방, 그런데 메인 주방이 안에 숨겨져 있어요. 식당 공간을 거실과 연계하고 주방을 안쪽으로 숨겨주면서, 손님을 맞이했을 때 깔끔한 오픈 공간을 만날 수 있게 설계하였습니다. 거실, TV 보는 공간, 식당, 주방을 한 공간의 느낌이지만 시각적으로 차단되게 계획하여, 각 공간의 영역성을 지켜주되 시각적으로 답답함이 없는 공간을 만들고자 노력했습니다.


아! 하나가 빠졌네요. 거실 위의 오픈 천장. 압도적인 개방감. 전원주택만이 가질 수 있는 시각적 개방감을 극대화시켜주었으며, 거실 전면부의 통창을 통해 앞마당과의 동선적 연계성도 확보해 주었습니다.


#양양전원주택 #예쁜전원주택 #꿈꾸던집 #고즈넉한감성 #넓은주방이매력

양양-투시도.jpg

공법 : 경량목구조

설계, 시공 : 듀밀리언(주), 홈트리오(주) / 상담문의 : sunsutu@hanmail.net(대표번호 : 1522-1035 / 문자상담 : 010-6889-9770 / 문의가 너무 많아 전화가 안 될 수 있습니다. 문자로 내용 남겨주시면 늦더라도 상담드릴께요.^^)

ARTIST : 건축가 이동혁, 임성재

포트폴리오 : https://brunch.co.kr/@sunsutu

건축도면 다운로드 아카이브(스페이스밀리언) : https://spacemillion.kr/

지붕마감재 : 아스팔트슁글 / 외벽 마감재 : 스타코플렉스 / 포인트자재 : 파벽돌

실내벽마감재 : 실크벽지 / 실내바닥마감재 : 이건 강마루

창호재 : 이건 알루미늄 3중 시스템창호

건축면적 : 138.30㎡(1층 : 100.34㎡, 2층 : 37.96㎡)

예상 총 건축비 : 312,000,000원(부가세 포함, 산재보험료 포함 / 설계비, 인허가비, 구조계산 설계비 별도)

설계비 : 10,500,000원(부가세 포함) / 인허가비 : 4,200,000원(부가세 포함)

구조계산 설계비 : 4,200,000원(부가세 포함) / 인테리어 설계비 : 6,300,000원(부가세 포함)


*건축비 외 부대비용 : 대지구입비, 가구(싱크대, 신발장, 붙박이장), 기반시설 인입(수도, 전기, 가스 등), 토목공사, 조경비 등


*건축비 기준은 24년 06월 03일 기준 금액입니다.


1.jpg 1층 평면도
2.jpg 2층 평면도


이동혁 건축가 : 깨끗함이 전해주는 맑음의 기운. 집을 설계하고 지을 때도 항상 생각하는 것이, 이 집의 첫인상이 어둡거나 음침한 것이 아닌 밝고 경쾌한 기운이었으면 한다는 것입니다. 새 집인데 오래된 느낌이나 음습한 느낌이면 좋겠어요? 당연히 안 좋죠. 집은 밝은 분위기에 항상 웃음이 끊이지 않는 그러한 집으로 탄생해야 한다는 것이 저의 지론입니다. 그래서 항상 외벽톤을 밝은 느낌으로 색상을 정합니다. 포인트 파벽돌이라고 해서 어두운 느낌이라기보다는 클래식함이 공존하는 따뜻한 주황빛이라고 생각하시면 더 좋을 것 같습니다. 창문에 대해서 말들이 많아요. 춥다고 창 작게 할 거면 전원주택에 대한 매력을 전혀 모르시는 것입니다. 전원주택의 매력 첫 번째는 개방감이고, 두 번째도 개방감이고, 세 번째도 개방감입니다. 답답하게 살려고 아파트 벗어나 전원주택으로 온 것이 아니라는 것을 꼭 기억하시고 설계하세요.


임성재 건축가 : 4인 가족 주택 중 가장 실내 공간이 베스트라고 생각합니다. 각 공간의 목적성이 명확하고, 어설프게 공간을 구분한 것이 아닌 확실하게 면적을 배정해 주었습니다. 그러다 보니 현관을 진입했을 때 느끼는 가시성이 엄청 넓어요. 거실과 주방을 하나의 원 스페이스로 구성하고, 오픈 천장을 옵션으로 넣어준 뒤 거기에 데크까지 이어지는 시각을 열어주어 압도적인 개방감을 만들었습니다. 다용도실은 이번 주택처럼 확실하게 구성하면 좋습니다. 어차피 요리를 해야 하는 공간이라면 어설프게 1~2평은 너무 작아요. 냉장고 및 메인주방의 역할까지 할 수 있도록 확실히 넓혀 주는 것이 중요합니다.



메스1.jpg
메스2.jpg
메스3.jpg
메스4.jpg
양양-투시도.jpg
양양-투시도-야경.jpg

https://spacemillion.kr/

스페이스밀리언 배너.jpg

[집이라는 본질적인 가치에 집중하다.]

설계, 시공 : 홈트리오(주), 듀밀리언(주)

상담문의 : sunsutu@hanmail.net(대표번호 : 1522-1035 / 문자상담 : 010-6889-9770 / 문의가 너무 많아 전화가 안 될 수 있습니다. 문자로 내용 남겨주시면 늦더라도 상담드릴게요.^^)

ARTIST : 건축가 이동혁, 임성재

포트폴리오 : https://brunch.co.kr/@sunsutu

건축도면 다운로드 아카이브(스페이스밀리언) : https://spacemillion.kr/

스페이스밀리언 ai.jpg