brunch

'55평 여유있는 노후를 보내다' 고령 전원주택

살고 싶은 전원주택 시리즈 #71 - 이동혁건축가

by 이동혁 건축가

http://spacemillion.kr <-ai 스페이스 밀리언

https://dewmillion.kr/ <-듀밀리언 종합건설

스페이스밀리언 배너.jpg

제목 : '55평 여유있는 노후를 보내다' 고령 전원주택 (전원주택 짓기)

소제목 : 살고 싶은 전원주택 시리즈 #71 - 이동혁건축가


*구독 버튼은 필수인 것 다들 아시죠^^

[크기변환]IMG_5139.jpg

SPEC


공법 : 경량목구조

설계, 시공 : 듀밀리언(주), 홈트리오(주) / 상담문의 : sunsutu@hanmail.net(대표번호 : 1522-1035 / 문자상담 : 010-6889-9770 / 문의가 너무 많아 전화가 안 될 수 있습니다. 문자로 내용 남겨주시면 늦더라도 상담드릴께요.^^)

ARTIST : 건축가 이동혁, 임성재

홈페이지

: http://spacemillion.kr <-ai 스페이스 밀리언

: https://dewmillion.kr/ <-듀밀리언 종합건설

지붕마감재 : 아스팔트슁글 / 외벽 마감재 : 스타코플렉스 / 포인트자재 : 파벽돌, 루나우드

실내벽마감재 : 실크벽지 / 실내바닥마감재 : 이건 강마루

창호재 : PVC 3중 시스템창호

건축면적 : 182.27㎡(1층 : 122.17㎡, 2층 : 60.10㎡)

예상 총 건축비 : 412,500,000원(부가세 포함, 산재보험료 포함 / 설계비, 인허가비, 구조계산 설계비 별도)

설계비 : 13,750,000원(부가세 포함) / 인허가비 : 5,500,000원(부가세 포함)

구조계산 설계비 : 5,500,000원(부가세 포함) / 인테리어 설계비 : 8,250,000원(부가세 포함)

*건축비 외 부대비용 : 대지구입비, 가구(싱크대, 신발장, 붙박이장), 기반시설 인입(수도, 전기, 가스 등), 토목공사, 조경비 등

*건축비 기준은 24년 6월 17일 기준 금액입니다.


STORY


"박공지붕도 싫고 외쪽지붕도 싫고, 비싼 외장재를 사용하지 않더라도 유니크한 디자인을 만들어 낼 수 없을까?" 하는 고민에서 시작된 프로젝트. 기획모델이기에 시도해 볼 수 있었던 주택 설계안으로 볼륨감과 입체감만으로도 충분히 집이 빛날 수 있다는 것을 보여주고자 한 주택 사례입니다.


모던 스타일은 박스형에 뒤쪽으로 외쪽지붕 디자인을 해야 되고, 북유럽 스타일은 모임지붕 또는 박공지붕에 안정적으로 기와를 올려야 된다는 정석적인 생각이 어느 순간 제 머릿속을 지배했던 것 같습니다.


100채가 넘은 집을 설계하고 시공하다 보니 자연스럽게 생긴 고정관념. 솔직히 이게 고정관념 인지도 모르고 설계를 했더랍니다.


고정관념이 신념으로 바뀌고 그 신념이 아집으로 바뀌는 순간. "아! 이게 정말로 정답인가?"라는 의문을 가지게 했습니다.


당연히 설계에 정답은 없죠. 하자가 안 생기는 설계의 방향성을 있을 수 있어도 집은 무조건 이래야 한다는 것은 정확히 말해 고정관념이 맞습니다.


제한된 법규도 존재하지 않고 다양한 아이디어를 시도해 볼 수 있는 기획설계인데 저도 모르게 자꾸 제약적인 조건을 도입해 한정적으로만 설계했던 것 같습니다.


이번 주택에서는 그 제약을 많이 벗어나 보고자 했습니다. 무조건 비싼 외장재를 써야 유니크해 보이고 고급스러워 보인다는 생각을 탈피해보고자 했으며, 4면 어디에서 보더라도 입체감과 볼륨감이 유지될 수 있는 디자인을 만들어 보고자 했습니다.


일반적으로 설계할 때 포치 및 발코니 등에 많은 공간을 할애하지 않습니다. 이유는 간단합니다. 시공비가 많이 들어가니까요. 내부 공간이 아닌 어찌 보면 처마의 연장선상에 있는 포치 부분에는 대부분 건축주님들이 돈을 들이기 싫어합니다. 문제는 저 또한 많은 비용적 부담을 느끼기 때문에 예산이 넘어간다 싶으면 제일 먼저 이 부분을 삭제합니다.


하지만 입체감이라는 뜻에는 전면부에 입체감을 줄 수 있는 무언가가 튀어나와 있다는 것을 뜻하는데요. 이번 주택에서는 바로 이 부분을 강조하기 위해 2층 발코니와 1층 포치 부분에 많은 공간을 배정하여 특별한 포인트적 자재를 사용하지 않더라도 볼륨감 및 유니크함이 강조될 수 있게 하였습니다.


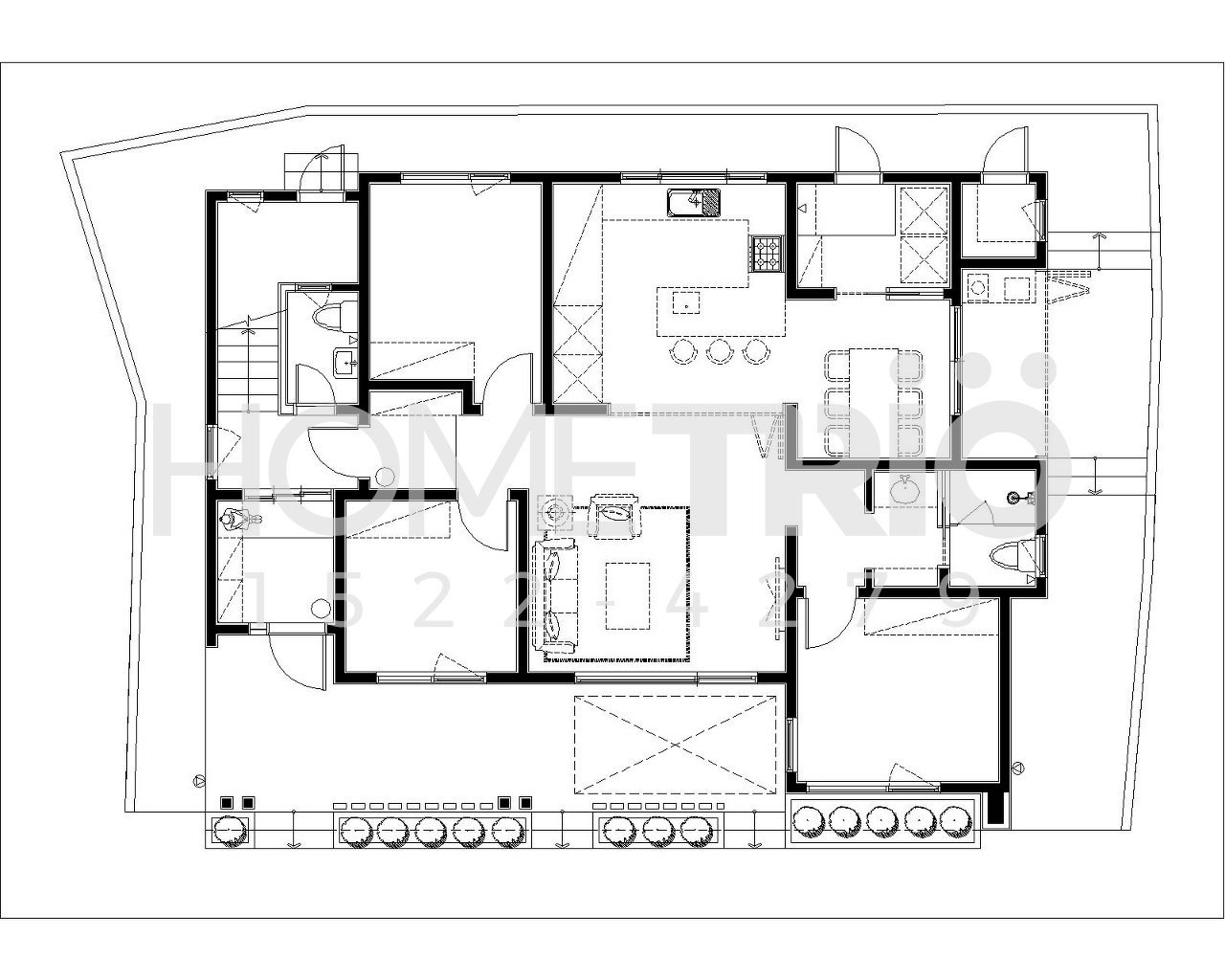
이번 주택에서는 평면도 독특합니다. 방은 총 4개로 구성하되, 안방을 2층으로 올려 2층을 온전히 안방 존으로 모든 공간을 활용할 수 있게 하였습니다. 프라이빗한 공간을 만듬에 있어 가장 효과적인 방법은 층을 완전히 분리해 버리는 것입니다. 다리가 아프다는 이유로 2층을 꺼려하시는 분들이 계신데 젊은 나이 때라고 한다면 이번 층간 분리 방법을 적용해 보시는 것도 나쁘지 않습니다.


각 공간들을 보면 특히 거실과 주방, 식당 공간들이 각자의 공간을 가지고 영역성을 펼치고 있는 것을 볼 수 있는데 55평이라는 큰 평수대의 주택으로 설계되었기 때문에 공간을 분리해 주어도 답답함을 느끼지 않을 것입니다. 30평형대에서는 이렇게 설계하면 답답해서 못 사니 소형평수대를 고민 중이신 분들은 이번 주택 설계를 참고하시면 안 됩니다.


Floor Plan

다운로드-(1).jpg 1층 평면도
다운로드-(2).jpg 2층 평면도


이동혁 건축가 : 드디어 해보고 싶었던 설계안을 해 보았습니다. 2층을 완전한 안방 존으로 프라이빗한 공간을 만들어 내는 것. 그동안 건축주님들이 계단을 오르내리기 힘들다는 이유로 적용하기 어려워했는데 기획모델인지라 과감히 적용해 보았습니다. 젊은 분들이라면 이번 주택 평면 꼭 한번 시도해 보았으면 좋겠습니다. 프라이빗한 공간을 만드는 가장 완벽한 방법은 이번 주택처럼 층간 분리를 해 완벽하게 시각적으로 차단하는 것입니다.


지붕재에 대한 고민들이 많으실 것입니다. 솔직히 지붕에 적용할 수 있는 마감자재는 딱 3가지로 압축됩니다. 아스팔트 슁글, 리얼징크, 기와. 여러분들의 집은 이 세 가지 중 하나로 적용될 것입니다. 지붕재를 고르는 것은 다양한 조건들이 있긴 하지만 저는 이렇게 이야기드리고 싶습니다. "예산에 맞추되, 예산이 오버될 일이 발생되면 무리하지 말고 무채색의 어두운 계열의 아스팔트 슁글로 가세요." 리얼징크나 기와는 싸지 않습니다. 보통 40평대 주택에 기와 올리면 기와 시공비만 2천만 원 초반대가 발생됩니다. 절대로 적은 금액이 아니지요. 많이들 지붕재가 방수와 단열을 커버한다고 생각하는데 절대 그렇지 않습니다. 방수층과 단열층은 별도로 존재하며, 지붕재는 오로지 디자인적 마감으로만 올리는 것입니다. 각 자재의 두께와 강도에 따라 성능은 달라질 수 있지만 여러분들은 기억하셔야 합니다. 지붕재의 선택은 오로지 디자인적 취향이라는 것을 말입니다.


임성재 건축가 : 이번 주택에 사용된 외장재 포인트는 크게 2가지입니다. 붙이는 방식의 인조석과 세라믹 사이딩. 톤은 무채색 그레이 톤으로 맞추되 인조석은 두 가지 타입의 재질로 적용하였고, 세라믹 사이딩은 어두운 그레이 계열의 한 가지 재료를 사용하였습니다. 색감은 맞추되 각 부위별로 재질감이 다른 포인트 자재를 사용하여 가까이서 보던, 멀리서보던 각 면이 독특한 개성을 가지게 하고 싶었습니다. 이번 주택처럼 재질이 다른 자재들만 혼합 사용해도 훨씬 입체감이 느껴지는 주택을 만들 수 있으며, 가볍지 않고 무게감 있는 분위기를 동시에 가져갈 수 있습니다.




<외관>

hc002_0017.jpg
hc002_0017bw.jpg
hc002_0019.jpg
hc002_0019_bw.jpg
hc002_0025.jpg
hc002_01641.jpg
hc002_01643.jpg
hc002_01648.jpg
hc002_01658.jpg
hc002_01666.jpg
hc002_01668.jpg
hc002_01672.jpg
hc002_01674.jpg
hc002_01676.jpg
hc002_01677.jpg
hc002_01679.jpg
hc002_01680.jpg
hc002_01689.jpg
hc002_01691.jpg
hc002_01692.jpg
hc002_01693.jpg
hc002_01694.jpg
hc002_01695.jpg
hc002_01698.jpg
hc002_01699.jpg
hc002_01702.jpg
hc002_01703.jpg
hc002_01705.jpg
hc002_01706.jpg
hc002_01708.jpg
hc002_01709.jpg
hc002_01710.jpg
hc002_01711.jpg
hc002_01712.jpg
hc002_01713.jpg
hc002_01715.jpg
hc002_01717.jpg
hc002_01718.jpg
hc002_01720.jpg
hc002_01722.jpg
hc002_01724.jpg
hc002_01725.jpg
hc002_01726.jpg
hc002_01728.jpg
hc002_1728.jpg
hc002_01729.jpg
hc002_1729.jpg
hc002_01730.jpg
hc002_1730.jpg
hc002_01734.jpg
hc002_01737.jpg
hc002_01738.jpg
hc002_01739.jpg
hc002_01740.jpg
hc002_01742.jpg
hc002_01744.jpg
hc002_01745.jpg
hc002_01747.jpg
hc002_01750.jpg
hc002_01751.jpg
hc002_01752.jpg
hc002_01753.jpg
hc002_01756.jpg
hc002_01759.jpg
hc002_01760.jpg
hc002_01762.jpg
hc002_01764.jpg
hc002_01766.jpg
hc002_01767.jpg
hc002_01768.jpg
hc002_01769.jpg
hc002_01770.jpg
hc002_01772.jpg
hc002_01773.jpg
hc002_01774.jpg
hc002_01776.jpg
hc002_01777.jpg
hc002_01778.jpg
hc002_01779.jpg
hc002_01781.jpg
hc002_01782.jpg
hc002_01783.jpg
hc002_01785.jpg
hc002_01787.jpg
hc002_01788.jpg
hc002_01790.jpg
hc002_01791.jpg
hc002_01792.jpg
hc002_01793.jpg
hc002_01794.jpg
hc002_01795.jpg
hc002_01796.jpg
hc002_01798.jpg
hc002_01801.jpg
hc002_01802.jpg
hc002_01805.jpg
hc002_01806.jpg
hc002_01808.jpg
hc002_01810.jpg
hc002_01812.jpg
hc002_01813.jpg
hc002_01814.jpg
hc002_01817.jpg
hc002_01818.jpg
hc002_01820.jpg
hc002_01821.jpg
hc002_01823.jpg
hc002_01824.jpg
hc002_01826.jpg
hc002_01828.jpg
hc002_01829.jpg
hc002_01830.jpg
hc002_01831.jpg
hc002_01833.jpg
hc002_01834.jpg
hc002_01835.jpg
hc002_01836.jpg
hc002_01840.jpg
hc002_01841.jpg
hc002_01843.jpg
hc002_01845.jpg
hc002_01846.jpg
hc002_01848.jpg
hc002_01849.jpg
hc002_01860.jpg
hc002_01861.jpg
hc002_01862.jpg
hc002_1921.jpg
hc002_1923.jpg
hc002_1924.jpg
hc002_1925.jpg
hc002_1927.jpg
hc002_1928.jpg
hc002_1929.jpg
hc002_1932.jpg
hc002_1937.jpg
hc002_1941.jpg
hc002_1942.jpg
hc002_1947.jpg
hc002_1949.jpg
hc002_1953.jpg
hc002_1955.jpg
hc002_1959.jpg
hc002_1963.jpg
hc002_1965.jpg
hc002_1968.jpg
hc002_1971.jpg
hc002_1972.jpg
hc002_1975.jpg
hc002_5139.jpg
hc002_5144.jpg
hc002_5147.jpg
hc002_5148.jpg
hc002_5152.jpg
hc002_5155.jpg
hc002_5158.jpg
hc002_5159.jpg
hc002_5160.jpg
hc002Panorama2.jpg

https://spacemillion.kr/

스페이스밀리언 배너.jpg

[집이라는 본질적인 가치에 집중하다.]

설계, 시공 : 홈트리오(주), 듀밀리언(주)

상담문의 : sunsutu@hanmail.net(대표번호 : 1522-1035 / 문자상담 : 010-6889-9770 / 문의가 너무 많아 전화가 안 될 수 있습니다. 문자로 내용 남겨주시면 늦더라도 상담드릴게요.^^)

ARTIST : 건축가 이동혁, 임성재

홈페이지

: http://spacemillion.kr <-ai 스페이스 밀리언

: https://dewmillion.kr/ <-듀밀리언 종합건설

포트폴리오 : https://brunch.co.kr/@sunsutu

스페이스밀리언 ai.jpg


keyword