brunch

36평 '고향집을 지어드렸다' 이천 백사면 전원주택완공

살고 싶은 전원주택 시리즈 #83 - 이동혁건축가

by 이동혁 건축가

제목 : 36평 '고향집을 지어드렸다' 이천 백사면 전원주택 완공 프로젝트 (세컨하우스 짓기)

소제목 : 살고 싶은 전원주택 시리즈 #83 - 이동혁건축가


*구독 버튼은 필수인 것 다들 아시죠^^

[크기변환]HC019-3144.jpg

SPEC


공법 : 경량목구조

설계, 시공 : 듀밀리언(주), 홈트리오(주) / 상담문의 : sunsutu@hanmail.net(대표번호 : 1522-1035 / 문자상담 : 010-6889-9770 / 문의가 너무 많아 전화가 안 될 수 있습니다. 문자로 내용 남겨주시면 늦더라도 상담드릴께요.^^)

ARTIST : 건축가 이동혁, 임성재

듀밀리언 프로필.jpg

홈페이지

: https://dewmillion.kr/ <-듀밀리언 종합건설

지붕마감재 : 아스팔트슁글 / 외벽 마감재 : 스타코플렉스 / 포인트자재 : 파벽돌

실내벽마감재 : 실크벽지 / 실내바닥마감재 : 이건 강마루

창호재 : PVC 3중 시스템창호

건축면적 : 118.08㎡(1층 : 118.08㎡)

예상 총 건축비 : 234,000,000원(부가세 포함, 산재보험료 포함 / 설계비, 인허가비, 구조계산 설계비 별도)

설계비 : 9,000,000원(부가세 포함) / 인허가비 : 3,600,000원(부가세 포함)

구조계산 설계비 : 3,600,000원(부가세 포함) / 인테리어 설계비 : 5,400,000원(부가세 포함)

*건축비 외 부대비용 : 대지구입비, 가구(싱크대, 신발장, 붙박이장), 기반시설 인입(수도, 전기, 가스 등), 토목공사, 조경비 등

*건축비 기준은 24년 08월 08일 기준 금액입니다.


STORY


부모님을 위한 고향집을 선물하다.


이천시 백사면에 단층 36평 주택을 짓는 프로젝트. 많은 비용이 아닌 정해진 예산 안에서 너무 화려하지도 초라하지도 않은, 무던하면서도 매력적인 고향집을 짓는 일. 이번 프로젝트를 진행하면서 집이라는 것이 무엇인지에 대한 본질적인 부분을 다시 검토하게 된 계기였습니다.


집을 설계하고 시공하면서 참 많은 생각을 하게 됩니다. 어떻게 해야 돈 덜 들이고 높은 품질의 집을 지을 수 있을까? 솔직히 돈 들인 만큼 더 좋은 자재를 사용할 수 있으니 당연히 돈 더 들인 만큼 좋은 집이 나오긴 합니다.


하지만 '적정선'이라는 단어가 있듯이 너무 예산을 오버하면서까지 비싼 자재들을 선정할 이유는 없습니다.

상담을 하면서 참 안타까운 것이 가성비 좋은 중소기업의 제품을 사용해도 충분한데, 굳이 고가의 브랜드 자재를 무조건 사용해야 한다고 우길 때입니다. 상담 시 정확한 금액을 산정하기는 어려워도 대략적인 어바웃 견적은 저희 머릿속에 그려집니다. 예를 들면 예산은 2억으로 잡아놓은 뒤 꼭 이 예산안에서 집을 지어야 한다고 이야기해 놓고 자재들은 최고급만 고르는 말도 안 되는 현상. 원하는 대로 해드리면 예산 분명히 말했는데 왜 오버되게 설계했냐고 뭐라고 하시고, 말리면 왜 하고 싶은데로 못하게 하냐고 혼내시고. 참 어렵죠.


저는 이렇게 이야기드리고 싶어요. 특히 고향집. 부모님 집을 지어드리는 분들은 무조건 '가성비'라는 단어를 끝까지 유지하면서 집을 지으세요. 분명히 설계하다 보면 좋은 브랜드와 비싼 자재들이 눈에 들어오기 마련이에요. 하지만 가성비 높은 제품들이 품질이 절대로 떨어지는 것이 아니에요. 디자인적이나 손잡이 부분 등이 조금 덜 예쁠 뿐. 모두 시험성적서가 있는 제품들이기 때문에 사용상 불편함은 없습니다.


"예산이 충분한가요?"

"돈 걱정 없이 설계해도 상관없나요?"


절대 그렇지 않겠죠?(웃음)


현실적으로 그리고 내 마음에 드는 집이 아닌 부모님이 마음에 드는 집으로 짓길 바라겠습니다.



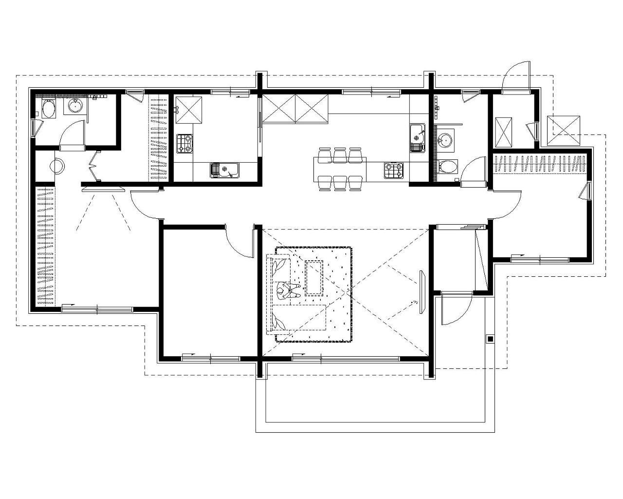
Floor Plan


t9JjpUHZ2ejLiVSGyxJhOXwKbP0.jpg 1층 평면도

이동혁 건축가 : 고향집에 돈을 많이 들이는 것도 좋지만 가성비 있게 간결한 느낌으로 짓는 것이 더 좋은 방향이라고 생각합니다. 대신 단열과 방수는 완벽해야겠지요. 창문은 당연히 3중 시스템 창호를 적용하고 단열도 2중 단열로 완벽하게 잡아주었습니다. 실내는 심플함 그 자체. 어지럽게 하지 마세요. 밝은 느낌으로만 톤을 유지하면 그것이 최고의 인테리어라고 말할 수 있습니다.


공장에서 만들어와서 조립하는 프리패브가 한참 유행 중인데요. 장점만을 부각해서 그렇지 문제는 새로 현장에서 짓는 것과 공장에서 지어 조립하는 것과의 금액차이가 거의 없어요. 이게 문제예요. 내 마음대로 짓지도 못하는데 금액은 심지어 비쌈! 이것저것 따져보고 결정하세요. 저희들에게도 많은 조언과 문의가 오는데요. 아직은 프리패브가 정답이라고 말할 수는 없을 것 같아요. 공장형 프리패브가 앉착할려면 지금 금액에서, 특히 신축 대비 60% 대까지는 금액이 내려와야 할만하다고 할 수 있을 것 같아요. 신축과 금액이 비슷하다? 글쎄요. 저라면 그냥 신축으로 지을 것 같아요.


임성재 건축가 : 단층주택을 짓는다면 이번 주택처럼 짓는 것이 가장 좋습니다. 금액도 2억 초반대에 부가세까지 포함된 금액으로 완공시킬 수 있기 때문에 가성비 최고의 모델이라고 할 수 있겠네요. 외장재는 말 그대로 '미'적인 부분으로만 작용합니다. 외장재 다 날아가도 단열과 방수 상관없습니다. 저희가 그렇게 설계하고 시공했으니까요. 예산이 부족하다면 무조건 외장재부터 비용 줄이세요. 욕심낼 거 다 내면서 집 어차피 못 짓습니다. 특히 고향집을 짓는다? 무조건 가성비 쪽으로 방향성을 잡으세요. 그것이 정답입니다.




HC019-3138r.jpg
HC019-3141r.jpg
HC019-3150r.jpg
HC019-0207r.jpg
HC019-3153r.jpg
HC019-3154r.jpg
HC019-3156r.jpg
HC019-3157r.jpg
HC019-3158r.jpg
HC019-3159r.jpg
HC019-3161r.jpg
HC019-3163r.jpg
HC019-3164r.jpg
HC019-3168r.jpg
HC019-3170r.jpg
HC019-3171r.jpg
HC019-3172r.jpg
HC019-3175r.jpg
HC019-3176r.jpg
HC019-3177r.jpg
HC019-3179r.jpg
HC019-3181r.jpg
HC019-3182r.jpg
HC019-3183r.jpg
HC019-3185r.jpg
HC019-3186r.jpg
HC019-3191r.jpg
HC019-3192r.jpg
HC019-3194r.jpg
HC019-3196r.jpg
HC019-3198r.jpg
HC019-3199r.jpg
HC019-3201r.jpg
HC019-3203r.jpg
HC019-3204r.jpg
HC019-3205r.jpg
HC019-3207r.jpg
HC019-3214r.jpg
HC019-3216r.jpg
HC019-3217r.jpg
HC019-3218r.jpg
HC019-3219r.jpg
HC019-3247r.jpg

[집이라는 본질적인 가치에 집중하다.]

설계, 시공 : 홈트리오(주), 듀밀리언(주)

상담문의 : sunsutu@hanmail.net(대표번호 : 1522-1035 / 문자상담 : 010-6889-9770 / 문의가 너무 많아 전화가 안 될 수 있습니다. 문자로 내용 남겨주시면 늦더라도 상담드릴게요.^^)

ARTIST : 건축가 이동혁, 임성재

듀밀리언 프로필.jpg

홈페이지

: http://spacemillion.kr <-ai 스페이스 밀리언

: https://dewmillion.kr/ <-듀밀리언 종합건설

스페이스밀리언 ai.jpg


keyword