brunch

31평 '엄마를 위한 고향집' 공주 전원주택 프로젝트

살고 싶은 전원주택 시리즈 #84 - 이동혁건축가

by 이동혁 건축가

제목 : 31평 '엄마를 위한 고향집' 공주 전원주택 완공 프로젝트 (세컨하우스 짓기)

소제목 : 살고 싶은 전원주택 시리즈 #84 - 이동혁건축가


*구독 버튼은 필수인 것 다들 아시죠^^

[크기변환]HC020-3272.jpg

SPEC


공법 : 경량목구조

설계, 시공 : 듀밀리언(주), 홈트리오(주) / 상담문의 : sunsutu@hanmail.net(대표번호 : 1522-1035 / 문자상담 : 010-6889-9770 / 문의가 너무 많아 전화가 안 될 수 있습니다. 문자로 내용 남겨주시면 늦더라도 상담드릴께요.^^)

ARTIST : 건축가 이동혁, 임성재

듀밀리언 프로필.jpg

홈페이지

: https://dewmillion.kr/ <-듀밀리언 종합건설

지붕마감재 : 아스팔트슁글 / 외벽 마감재 : 스타코플렉스 / 포인트자재 : 파벽돌

실내벽마감재 : 실크벽지 / 실내바닥마감재 : 이건 강마루

창호재 : PVC 3중 시스템창호

건축면적 : 102.81㎡(1층 : 102.81㎡)

예상 총 건축비 : 210,000,000원(부가세 포함, 산재보험료 포함 / 설계비, 인허가비, 구조계산 설계비 별도)

설계비 : 7,750,000원(부가세 포함) / 인허가비 : 3,100,000원(부가세 포함)

구조계산 설계비 : 3,100,000원(부가세 포함) / 인테리어 설계비 : 4,650,000원(부가세 포함)

*건축비 외 부대비용 : 대지구입비, 가구(싱크대, 신발장, 붙박이장), 기반시설 인입(수도, 전기, 가스 등), 토목공사, 조경비 등

*건축비 기준은 24년 08월 19일 기준 금액입니다.


STORY


고생하신 부모님을 위해 지어 드리는 집.


단층이면서 30평형의 아담한 주택. 작지만 알찬 주택으로 기획된 이번 모델은 실재 충남 공주에 지어질 주택이기도 합니다.


단층이라고 하면 시골집을 먼저 떠올리시는 분들이 계신데 이번 주택 외관을 보시면 전혀 그러한 느낌이 드시지 않을 것입니다.


단층이지만 지붕의 디자인을 다양하게 적용해 큰 비용을 들이지 않더라도 안정감 있고 예쁜 전원주택을 만들어 낼 수 있으며, 덤으로 충분한 벤트 공간이 확보됨에 따라 여름에는 시원하고 겨울에는 따뜻한 집이 되었습니다.


집을 설계하고 계획하다 보면 많은 분들께서 좋다고 하는 외장재니 공법이니, 인테리어니 하는 등의 정말 다양한 요소들을 들고 오십니다. 문제는 그것이 틀렸다기보다는 비용을 아예 생각 안 하고 들고 오신다는 것에 있습니다.


전 어떤 것도 하고 싶고 저것도 하고 싶고 친구 집 보니 저거 좋다고 하던데 저것도 적용해야 할 것 같고...

이해는 하는데요. 문제는 항상 비용이...


집을 처음 왜 짓고 싶어 했는지에 대한 물음 앞에 다시 스셔야 합니다. 과하게 짓는 것이 아닌 정말로 내가 꼭 필요한 한 가지를 넣어서 가성비 있게 짓는 집.


저희 홈트리오는 바로 그러한 집에서 설계적인 모토를 시작합니다.


균형미와 아름다움. 거기에 비안 새고 따뜻한 집. 가장 기본이 되는 모델로서 완성된 이번 주택은 부모님 집 또는 세컨드 하우스를 생각하시는 모든 분들께 귀감이 될만한 주택이 되지 않을까 생각해 봅니다.



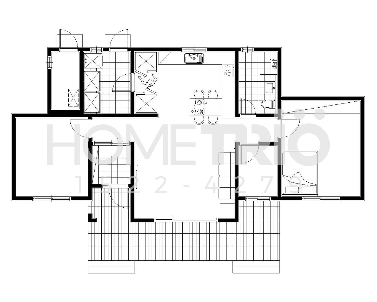
Floor Plan

enOpE6f8p_FQ8uLmEyd3v10wpP0.jpg 1층 평면도

이동혁 건축가 : 엄마를 위한 고향집. 엄마라는 단어만으로도 가슴이 먹먹해지는 건 저만 그런가요.^^;; 특히 저희 건축주님들 중에는 30% 이상이 고향집을 짓고자 오시는 분들입니다. 화려하지는 않지만 튼튼하고 집이라는 기본적인 조건을 완벽히 충족시킨 주택. 솔직히 저희들이 유명해진 계기가 바로 거기에 있거든요. 디자인보다 엔지니어링 쪽을 더 강조하는 회사가 바로 저희예요. 비 안 새고 따뜻한 집. 한국에서 그러한 집을 가장 잘 짓는 회사는 저희라고 자신 있게 이야기드릴 수 있습니다.^^


임성재 건축가 : 단 30평 초반대에서는 어설프게 방을 3개 만들 바에는 이번 주택처럼 과감히 방을 2개만 만드세요. 대신 거실과 주방을 크게 가져가고 손님들이 많이 왔을 때 거실에서 다 같이 모여 놀 수 있게 공간을 만드는 것이 좋습니다. 다들 머릿속으로는 생각하는데 막상 집을 짓고자 설계하기 시작하면 억지로 방을 3개 만드시는 분들이 많거든요. 기억하세요. 30평형대 에서는 방이 2개, 그리고 거실과 주방을 크게 하는 것이 정답이라는 것을요.

공거실이 조금 좁다고 느껴지시나요? 그렇다면 이번 주택에서 적용한 거실 오픈천장 옵션을 적용해 보세요. 층고만 높게 구성되는 것만으로도 집의 분위기와 공간의 크기가 다르게 느껴진답니다. 화려하게 그리고 많은 돈을 들여야만 집이 고급이 되는 것이 아닙니다. 기본은 충실하되 가성비 있게 지어도 충분히 고급스러움을 만들어 낼 수 있습니다. 실용주의 건축을 하는 저희들을 동종업계에서는 싫어합니다. 악플 다는 사람의 99%는 다 동종업계 사람들이에요. 건축비를 공개하고 집에 돈들이지 말라고 맨날 이야기하니 얼마나 싫겠어요. 그런데 어떡합니까. 저희들의 말이 정답인데요. 집은 돈 적게 들이고 가성비 있게 짓는 게 최고입니다. 아! 비 안 새고 따뜻한 것은 당연히 챙겨가야죠. 솔직히 이 두 가지를 못 지키는 회사가 대부분이다 보니 자연스럽게 저희들의 이름값이 올라가게 되었다는 뒷이야기도 슬며시 전해드립니다.^^


HC020-0222r.jpg
HC020-0227r.jpg
HC020-3272r.jpg
HC020-3283r.jpg
HC020-3285r.jpg
HC020-3288r.jpg
HC020-3289r.jpg
HC020-3290r.jpg
HC020-3291r.jpg
HC020-3292r.jpg
HC020-3293r.jpg
HC020-3294r.jpg
HC020-3295r.jpg
HC020-3298r.jpg
HC020-3301r.jpg
HC020-3302r.jpg
HC020-3303r.jpg
HC020-3305r.jpg
HC020-3307r.jpg
HC020-3308r.jpg
HC020-3309r.jpg
HC020-3310r.jpg
HC020-3311r.jpg
HC020-3312r.jpg
HC020-3313r.jpg
HC020-3314r.jpg
HC020-3316r.jpg
HC020-3317r.jpg
HC020-3320r.jpg
HC020-3322r.jpg
HC020-3323r.jpg
HC020-3324r.jpg
HC020-3325r.jpg
HC020-3326r.jpg
HC020-3329r.jpg
HC020-3331r.jpg
HC020-3346r.jpg
HC020-3340r.jpg

[집이라는 본질적인 가치에 집중하다.]

설계, 시공 : 홈트리오(주), 듀밀리언(주)

상담문의 : sunsutu@hanmail.net(대표번호 : 1522-1035 / 문자상담 : 010-6889-9770 / 문의가 너무 많아 전화가 안 될 수 있습니다. 문자로 내용 남겨주시면 늦더라도 상담드릴게요.^^)

ARTIST : 건축가 이동혁, 임성재

듀밀리언 프로필.jpg

홈페이지

: http://spacemillion.kr <-ai 스페이스 밀리언

: https://dewmillion.kr/ <-듀밀리언 종합건설

스페이스밀리언 ai.jpg


keyword