brunch

43평 '홍천의 겨울맞이' 홍천군 전원주택

살고 싶은 전원주택 시리즈 #94 - 이동혁건축가

by 이동혁 건축가

제목 : 43평 '홍천의 겨울맞이' 홍천군 전원주택 완공 프로젝트 (전원주택 짓기 프로젝트)

소제목 : 살고 싶은 전원주택 시리즈 #94 - 이동혁건축가


*구독 버튼은 필수인 것 다들 아시죠^^

다운로드.jfif

SPEC


공법 : 경량목구조

설계, 시공 : 듀밀리언(주), 홈트리오(주) / 상담문의 : sunsutu@hanmail.net(대표번호 : 1522-1035 / 문자상담 : 010-6889-9770 / 문의가 너무 많아 전화가 안 될 수 있습니다. 문자로 내용 남겨주시면 늦더라도 상담드릴께요.^^)

ARTIST : 건축가 이동혁, 임성재

듀밀리언 프로필.jpg

홈페이지

: https://dewmillion.kr/ <-듀밀리언 종합건설

지붕마감재 : 아스팔트슁글 / 외벽 마감재 : 스타코플렉스 / 포인트자재 : 파벽돌

실내벽마감재 : 실크벽지 / 실내바닥마감재 : 이건 강마루

창호재 : PVC 3중 시스템창호

건축면적 : 142.94㎡(1층 : 99.85㎡, 2층 : 43.09㎡)

예상 총 건축비 : 313,900,000원(부가세 포함, 산재보험료 포함 / 설계비, 인허가비, 구조계산 설계비 별도)

설계비 : 10,750,000원(부가세 포함) / 인허가비 : 4,300,000원(부가세 포함)

구조계산 설계비 : 4,300,000원(부가세 포함) / 인테리어 설계비 : 6,450,000원(부가세 포함)

*건축비 외 부대비용 : 대지구입비, 가구(싱크대, 신발장, 붙박이장), 기반시설 인입(수도, 전기, 가스 등), 토목공사, 조경비 등

*건축비 기준은 24년 11월 18일 기준 금액입니다.


STORY


해가 지고 조용한 가운데, 풀벌레 소리가 내 귓가에 들려오면 그 고요함이 생각보다 좋게 느껴질 때가 있습니다.

그냥 그 자체의 모든 것이 너무 좋고 내 마음에 와 닿을 때 느끼는 감정. 뭐라 말로 표현하기 어렵네요. 전원주택이 가진 가장 큰 장점은 나만의 공간에 오롯이 나만을 위한 감정선을 조용히 즐길 수 있다는 것에 있습니다. 너무 시끄러운 세상. 그 세상을 잠시 벗어나 조용한 곳에서 풀벌레 소리를 들으며 힐링한다는 것. 어떠세요? 이 집에서 같이 힐링해 보시는 건.


이번 주택의 평면을 구성할 때 건축주님의 요청에 따라 각 공간별 영역성을 확실히 구분할 수 있도록 동선을 계획했습니다. 일반적으로 구성되는 거실, 주방 원 스페이스 개방 형식이 아닌 현관을 중심으로, 그리고 문을 설치해 완벽하게 공간이 차단될 수 있도록 설계를 진행하였습니다.


이렇게 구분하면 시각적인 개방감은 다소 떨어질 수는 있어도 건축주님이 원하셨던 공간별 차단과 특히 손님들이 왔을 때 주방 쪽 문만 닫으면 각 공간의 프라이버시가 완벽하게 차단될 수 있다는 장점이 있습니다.

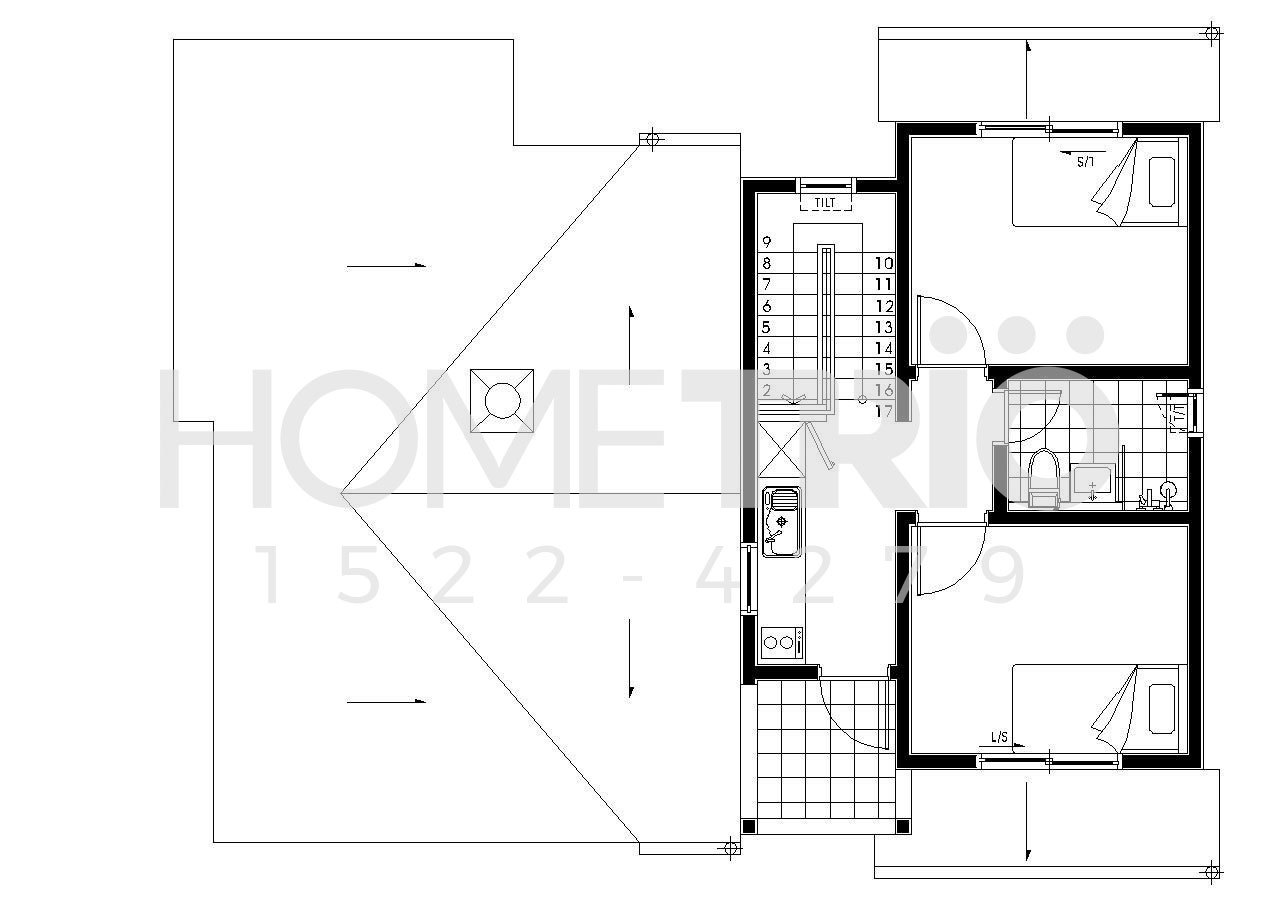
2층은 꼭 필요한 공간인 화장실, 가족실, 방 2개를 구상하였으며, 1평 정도의 발코니를 통해 외부의 환경을 즐길 수 있도록 공간 구성했습니다.


2층에 대해서 많은 욕심을 내시는 분들이 계신데 예산이 넉넉하다면 모를까 빠듯한 분들의 경우 너무 넓게 구성하시려고 욕심 부리시기보다는 이번 주택처럼 꼭 필요한 공간만을 구성해 낭비되는 공간이 없도록 설계하시는 것이 중요합니다.


입면 디자인의 전체적인 느낌은 클래식입니다. 다만 너무 단조로운 느낌을 없애주기 위해 거실 쪽 지붕 형태에 디자인을 입혀주었으며, 외쪽지붕과 박공지붕을 혼합 적용하여 집 자체가 개성을 가지고 태어날 수 있도록 하였습니다. 스타코플렉스 기본 마감에 톤 조절을 일부 주어 포인트로 사용하고, 거실 부분은 파벽돌을 붙여 무게감을 잡아주는 동시에 포인트로서 이 집이 빛날 수 있도록 해 주었습니다.


석재 데크는 이제 말 안 해도 다들 아실 거라 생각됩니다. 점차 목재데크를 설치하는 비율이 줄어들고 있고 유지관리측면에 높은 석재를 데크재로 설치하는 비중이 높아지고 있습니다. 초기 설치비는 평당 30만 원 이상 비싸긴 하지만 10년 이상 놓고 본다면 유지관리 측면과 활용도 면에서는 석재 데크가 높은 효율을 자랑한다고 할 수 있습니다. 콘크리트 기초에 석재판을 깔아 마감하는 방식으로 다양한 재질의 석재판이 존재하기 때문에 취향에 맞추어 시공하시면 되십니다.


마지막으로 전원주택 집 짓기는 많은 공부를 요구합니다. '알아서 지어주세요', '대충 얼마예요?', '고급 말고 중급으로 지을 거니 견적 내주세요'.


이러한 질문을 하시는 분들의 마음은 알겠지만 어차피 이렇게 질문해서는 답 안 나옵니다. 내 머릿속에 존재하는 이미지를 구체화시키는 단계라 설계단계입니다. 설계도 없으면 죽었다 깨어나도 건축비 안 나온다고 생각하시면 됩니다. 왜 안 알려주냐고 하시는 분들이 계신데 어떻게 지을지 알려줘야 견적을 내드리죠. ㅠㅠ


그만 고민하시고 설계부터 진행하세요. 꼭 저희들에게 진행 안 하셔도 되세요. 마음에 맞는 건축가와 설계도를 그리셔야 그다음 시공을 논할 수 있습니다. 답답하고 무섭더라도 집 짓기의 첫 단추는 설계입니다. 설계하시고 그다음 시공을 고민하세요.



Floor Plan

다운로드-(1).jpg 1층 평면도
다운로드-(2).jpg 2층 평면도

이동혁 건축가 : 공간을 설계할 때 불편함을 줄일 수 있는 가이드라인은 존재해도 정답은 존재하지 않습니다. 그 이유는 모든 사람들이 살아가는 라이프스타일 자체가 모두 다르기 때문입니다. 활동량도 다를뿐더러 생활상도 완전히 다릅니다. 다른 사람의 집은 항상 말하듯 참고만 하면 되며, 그곳에 너무 빠져서 분석을 하는 것은 생각보다 무의미합니다. 내 마음에 드는 집은 내 땅에 맞게 다시 설계해야지만 완벽하게 내 마음에 드는 집으로 완성되며, 남에 집을 보고 이거는 마음에 안 들고 저것도 이상하고... 백날 말해 무엇하겠습니까. 그 집은 내 집이 아닌데요. 제 말 뜻을 아시겠죠? 그만 남에 집 평가하세요. 이제는 내 집을 설계해야 할 때입니다.

이번 주택의 평면은 조금 독특합니다. 공간적으로 주방과 거실을 완전히 분리시켰습니다. 개방감 측면에서는 분명 막히는 부분이 존재하지만 영역성으로서 본다면 각 공간의 프라이버시를 완벽하게 지켜주었다고 할 수 있습니다. 이렇게 설계를 하면 사장님과 사모님의 활동 공간이 침해를 받지 않고 각 공간을 사용할 수 있게 됩니다. 또 하나의 장점은 손님이 많은 집의 경우 공간을 통해 분리된 영역성으로 인해 손님을 받더라도 거실을 제외한 나머지 공간은 자연적으로 공간적 차단되는 효과를 누릴 수 있습니다.


임성재 건축가 : 입면을 구성할 때 지붕을 생각보다 많이 신경 씁니다. 지붕을 어떻게 구성하느냐에 따라 집의 스타일이 완전히 바뀌기 때문입니다. 쉽게 말해 사람의 헤어스타일에 따라 분위기가 바뀌는 것처럼 집의 분위기도 달라진다고 생각해주셨으면 합니다. 이번 주택은 전체적인 느낌의 클래식한 느낌으로 진행했지만 너무 단조로운 느낌이 있어 그것을 벗어나기 위해 외쪽 경사지붕을 한쪽 매스에 적용해주어 조금은 개성이 있는 디자인으로 탄생을 시킨 주택입니다. 디자인적인 부분에서는 호불호가 존재할 수 있기에 이 집의 건축주님의 취향에 맞게 설계했다고 생각해주시면 될 것 같습니다.


HC032-6053r.jpg
HC032-6063r.jpg
HC032-6071r.jpg
HC032-6077r.jpg
HC032-6132r.jpg
HC032-6133r.jpg
HC032-6134r.jpg
HC032-6135r.jpg
HC032-6136r.jpg
HC032-6137r.jpg
HC032-6139r.jpg
HC032-6140r.jpg
HC032-6142r.jpg
HC032-6144r.jpg
HC032-6146r.jpg
HC032-6147r.jpg
HC032-6148r.jpg
HC032-6149r.jpg
HC032-6151r.jpg
HC032-6153r.jpg
HC032-6157r.jpg
HC032-6158r.jpg
HC032-6161r.jpg
HC032-6164r.jpg
HC032-6165r.jpg
HC032-6168r.jpg
HC032-6169r.jpg
HC032-6171r.jpg
HC032-6173r.jpg
HC032-6174r.jpg
HC032-6176r.jpg
HC032-6177r.jpg
HC032-6180r.jpg
HC032-6182r.jpg
HC032-6185r.jpg
HC032-6187r.jpg
HC032-6190r.jpg
HC032-6196r.jpg
HC032-6197r.jpg
HC032-6202r.jpg
HC032-6204r.jpg
HC032-6205r.jpg
HC032-6206r.jpg
HC032-6207r.jpg
HC032-6209r.jpg
HC032-6215r.jpg
HC032-6217r.jpg
HC032-6219r.jpg
HC032-6226r.jpg
HC032-6228r.jpg
HC032-6230r.jpg
HC032-6233r.jpg
HC032-6234r.jpg
HC032-6235r.jpg
HC032-6237r.jpg
HC032-6238r.jpg
HC032-6244r.jpg
HC032-6246r.jpg
HC032-6251r.jpg
HC032-6253r.jpg
HC032-6254r.jpg
HC032-6255r.jpg
HC032-6256r.jpg
HC032-6257r.jpg
HC032-6258r.jpg
HC032-6261r.jpg
HC032-6273r.jpg
HC032-6278r.jpg
HC032-6279r.jpg
HC032-6282r.jpg



[집이라는 본질적인 가치에 집중하다.]

설계, 시공 : 홈트리오(주), 듀밀리언(주)

상담문의 : sunsutu@hanmail.net(대표번호 : 1522-1035 / 문자상담 : 010-6889-9770 / 문의가 너무 많아 전화가 안 될 수 있습니다. 문자로 내용 남겨주시면 늦더라도 상담드릴게요.^^)

ARTIST : 건축가 이동혁, 임성재

듀밀리언 프로필.jpg

홈페이지

: https://dewmillion.kr/ <-듀밀리언 종합건설

: http://spacemillion.kr <-ai 스페이스 밀리언

스페이스밀리언 ai.jpg


keyword