brunch

58평 '캠핑을 벗어나 집을 지었다' 부여군 전원주택

살고 싶은 전원주택 시리즈 #93 - 이동혁건축가

by 이동혁 건축가

제목 : 58평 '캠핑을 벗어나 집을 지었다' 부여군 전원주택 완공 프로젝트 (전원주택 짓기 프로젝트)

소제목 : 살고 싶은 전원주택 시리즈 #93 - 이동혁건축가


*구독 버튼은 필수인 것 다들 아시죠^^

[크기변환]HC031-5833.jpg

SPEC


공법 : 경량목구조

설계, 시공 : 듀밀리언(주), 홈트리오(주) / 상담문의 : sunsutu@hanmail.net(대표번호 : 1522-1035 / 문자상담 : 010-6889-9770 / 문의가 너무 많아 전화가 안 될 수 있습니다. 문자로 내용 남겨주시면 늦더라도 상담드릴께요.^^)

ARTIST : 건축가 이동혁, 임성재

듀밀리언 프로필.jpg

홈페이지

: https://dewmillion.kr/ <-듀밀리언 종합건설

지붕마감재 : 아스팔트슁글 / 외벽 마감재 : 스타코플렉스 / 포인트자재 : 세라믹사이딩

실내벽마감재 : 실크벽지 / 실내바닥마감재 : 이건 강마루

창호재 : 이건 알루미늄 3중 시스템창호

건축면적 : 191.44㎡(1층 : 118.62㎡, 2층 : 72.82㎡)

예상 총 건축비 : 435,000,000원(부가세 포함, 산재보험료 포함 / 설계비, 인허가비, 구조계산 설계비 별도)

설계비 : 14,500,000원(부가세 포함) / 인허가비 : 5,800,000원(부가세 포함)

구조계산 설계비 : 5,800,000원(부가세 포함) / 인테리어 설계비 : 8,700,000원(부가세 포함)

*건축비 외 부대비용 : 대지구입비, 가구(싱크대, 신발장, 붙박이장), 기반시설 인입(수도, 전기, 가스 등), 토목공사, 조경비 등

*건축비 기준은 24년 11월 04일 기준 금액입니다.


STORY


'쉬고 싶은 마음'

현대인들이라면 정신없이 달려온 일상을 벗어나 주말이라도 편히 쉬고 싶은 마음을 다들 가지고 계시죠.

'전원주택'이라는 매개체와 '힐링'이라는 단어가 만나면서 한적한 곳에 집을 지어 살고 싶다는 이야기가 더욱 많이 들리게 된 것 같습니다.


이번 주택은 월간홈트리오 6월호 두 번째 모델로 발표되었던 모델이며, 힐링 라이프 열풍에 맞추어 넓고 쾌적한 집으로 설계가 되었습니다.


모던하면서 웅장한 매스 감을 뽐낼 수 있는 주택으로 디자인되었는데요. 58평이라는 실내 면적의 크기만큼 전체적인 볼륨감이 30평형대보다 크게 매스 구성되며, 정면 부분의 포치와 2층 발코니의 매스 디자인으로 입체감뿐만 아니라 규모감을 같이 가져갈 수 있는 주택이라 평하고 싶습니다.


디자인을 먼저 살펴보면 항상 그렇듯 안정적인 모임지붕을 기반으로 모던한 느낌을 동시에 느낄 수 있도록 하였으며, 입면은 박스형으로 보이되 숨겨진 외쪽지붕을 후면부로 기울기 줘 전체적인 디자인적 밸런스를 유지될 수 있게 하였습니다. 너무 다양한 지붕 경사가 조합되다 보면 혼잡스러운 느낌을 줄 수 있는데 메인 지붕을 제외하고는 숨겨진 지붕라인으로 구성하여 안정감 있는 입면을 만들어 주었다고 생각해 주시면 될 것 같습니다.

평면을 살펴보면 1층에 독특하게 방이 2개 구성된 것을 볼 수 있습니다. 일반적인 좁은 대지에서는 찾아보기 힘든 구성입니다. 그 이유는 1층에 이 정도의 면적을 앉힐 수가 없거든요.


일반적으로 거실과 주방을 넓게 구성하고 그 나머지 공간에 화장실 및 방을 구성하는 형식이라 건폐율이 받쳐주지 않는다면 1층에 방 2개는 구성이 어렵습니다.

땅이 크던, 아니면 건폐율이 크던 둘 중 하나는 만족해야 이번 주택 설계도처럼 배치가 될 수 있습니다.


창호에 대한 이야기를 안 할 수 없어요. 미국식이냐 독일식이냐는 최근에 논란이 거의 없다고 볼 수 있습니다. 이미 다들 알고 계시기 때문이겠죠. 다만 PVC냐 알루미늄이냐로 이야기가 많은 것으로 알고 있습니다. 간단히 설명드리면 저희 홈트리오는 2020년 현재 이건 브랜드의 알루미늄 창호를 선 추천드리고 있습니다. 다른 이유는 없습니다. 그동안 금액 때문에 비싸서 못 썼던 것이지 내구성이 좋은 것은 다들 알고 계셨던 부분이니까요.

이건 대리점을 직접 운영하면서 중간 마진을 제외시켰기 때문에 PVC 대비 크게 오르지 않은 가격으로 적용이 가능해졌습니다. 이번 모델도 당연히 기본 이건 알루미늄 3중 시스템 창호가 적용되었습니다. 모든 창호가 동일 스펙으로 진행되었습니다. 단열에 있어서는 더 이상 보강이 어려운 한계치까지 끌어올렸다고 생각해 주셔도 좋을 것 같습니다.


마지막으로 전원주택이 더 이상 시골에 짓는 집이라고 해서 촌스럽게 짓는 시대는 끝이 났다고 생각합니다. 저희뿐만 아니라 타 업체에서도 주택 디자인에 많이 신경 쓰고 있으며, 노후한 이미지는 거의 없어졌다고 해도 무방할 정도입니다.


"일생에 단 한번 짓는 나만의 집. 그리고 우리 가족만을 위한 집. 이제는 젊고 트렌디한 디자인으로 지어보시는 건 어떠신지요?"



Floor Plan

다운로드-(1).jpg 1층 평면도
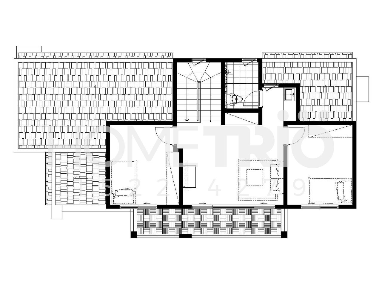
다운로드-(2).jpg 2층 평면도

이동혁 건축가 : 1층이 36평 정도로 매우 큰 면적으로 배치가 되었습니다. 일반적인 땅에서는 앉힐 수 없는 면적이기도 합니다. 보통 100평 땅에 건폐율이 40% 정도는 나와야 이 정도 규모로 앉힐 수 있습니다. 보시면 넓은 거실과 주방이 형성되고 다용도실도 충분한 수납이 가능하도록 설계가 되어있습니다. 또한 방도 2개나 배치되어 1층만 보더라도 충분히 1 가구가 살 수 있는 공간설계로 만들어진 것을 확인할 수 있습니다. 이는 36평이라는 면적이 받쳐주었기 때문에 이 정도의 구성이 나온 것이고, 30평 정도의 면적을 1층에 배치한다면 방은 1개 정도가 적당하다는 것을 인지할 수 있으실 것입니다. 방은 보통 3~4평 정도로 구성이 됩니다.

30평 형대와 40평형대의 평면을 비교해 보면 가장 큰 특징은 주방에서 나타납니다. 식당이라는 공간과 다용도실이라는 공간이 넓게 구성되고 평면 자체에서 답답함이라는 공간이 사라지게 됩니다. 30평형대에서는 시원한 느낌의 공간이 배치되기는 어렵습니다. 차라리 단층이라면 모를까 2층으로 30평 형대를 구성한다면 식당 공간과 다용도실 공간은 거의 없다고 보셔도 무방합니다. 꼭 주방 공간을 넓게 만들어야 한다면 방법이 있긴 합니다. 방의 개수를 줄이시면 됩니다.


임성재 건축가 : 포치와 발코니는 입면 디자인을 할 때 많은 디자인적 요소를 담당하게 됩니다. 이번 주택처럼 포치와 발코니의 볼륨감만으로도 집이 더 커 보이는 효과를 누릴 수 있고, 이 공간을 어떻게 활용하느냐에 따라 아파트에서 느껴보지 못한 전원주택만의 장점을 가져갈 수 있을 것입니다. 다만 2층 발코니의 경우 누수에 대한 위험성 때문에 꼭 지붕을 덮어주어야 한다는 것을 인지하셔야 하며, 예산이 된다면 창을 달아주는 것이 좋습니다.


HC031-5808r.jpg
HC031-5811r.jpg


HC031-6000r.jpg
HC031-6001r.jpg
HC031-6004r.jpg


HC031-5835r.jpg
HC031-5836r.jpg
HC031-5838r.jpg
HC031-5840r.jpg
HC031-5842r.jpg
HC031-5844r.jpg
HC031-5847r.jpg
HC031-5850r.jpg
HC031-5853r.jpg
HC031-5854r.jpg
HC031-5856r.jpg
HC031-5859r.jpg
HC031-5860r.jpg
HC031-5862r.jpg
HC031-5863r.jpg
HC031-5865r.jpg
HC031-5867r.jpg
HC031-5868r.jpg
HC031-5870r.jpg
HC031-5871r.jpg
HC031-5873r.jpg
HC031-5875r.jpg
HC031-5879r.jpg
HC031-5882r.jpg
HC031-5883r.jpg
HC031-5886r.jpg
HC031-5888r.jpg
HC031-5890r.jpg
HC031-5892r.jpg
HC031-5894r.jpg
HC031-5896r.jpg
HC031-5897r.jpg
HC031-5899r.jpg
HC031-5903r.jpg
HC031-5905r.jpg
HC031-5906r.jpg
HC031-5907r.jpg
HC031-5910r.jpg
HC031-5911r.jpg
HC031-5915r.jpg
HC031-5917r.jpg
HC031-5919r.jpg
HC031-5920r.jpg
HC031-5922r.jpg
HC031-5927r.jpg
HC031-5928r.jpg
HC031-5930r.jpg
HC031-5931r.jpg
HC031-5932r.jpg
HC031-5933r.jpg
HC031-5935r.jpg
HC031-5937r.jpg
HC031-5939r.jpg
HC031-5940r.jpg
HC031-5943r.jpg
HC031-5945r.jpg
HC031-5947r.jpg
HC031-5948r.jpg
HC031-5949r.jpg
HC031-5953r.jpg
HC031-5954r.jpg
HC031-5955r.jpg
HC031-5957r.jpg
HC031-5958r.jpg
HC031-5959r.jpg
HC031-5961r.jpg
HC031-5962r.jpg
HC031-5964r.jpg
HC031-5967r.jpg
HC031-5969r.jpg
HC031-5970r.jpg
HC031-5973r.jpg
HC031-5974r.jpg
HC031-5976r.jpg
HC031-5978r.jpg
HC031-5981r.jpg
HC031-5983r.jpg
HC031-5985r.jpg
HC031-5987r.jpg
HC031-5988r.jpg
HC031-5991r.jpg
HC031-5993r.jpg
HC031-5996r.jpg
HC031-5998r.jpg
HC031-5999r.jpg

[집이라는 본질적인 가치에 집중하다.]

설계, 시공 : 홈트리오(주), 듀밀리언(주)

상담문의 : sunsutu@hanmail.net(대표번호 : 1522-1035 / 문자상담 : 010-6889-9770 / 문의가 너무 많아 전화가 안 될 수 있습니다. 문자로 내용 남겨주시면 늦더라도 상담드릴게요.^^)

ARTIST : 건축가 이동혁, 임성재

듀밀리언 프로필.jpg

홈페이지

: https://dewmillion.kr/ <-듀밀리언 종합건설

: http://spacemillion.kr <-ai 스페이스 밀리언

스페이스밀리언 ai.jpg


keyword