brunch

39평 '드디어 지은 고향집' 안동시 전원주택

살고 싶은 전원주택 시리즈 #92 - 이동혁건축가

by 이동혁 건축가

제목 : 39평 '드디어 지은 고향집' 안동시 전원주택 완공 프로젝트 (전원주택 짓기 프로젝트)

소제목 : 살고 싶은 전원주택 시리즈 #92 - 이동혁건축가


*구독 버튼은 필수인 것 다들 아시죠^^

[크기변환]HC030-0155.jpg

SPEC


공법 : 경량목구조

설계, 시공 : 듀밀리언(주), 홈트리오(주) / 상담문의 : sunsutu@hanmail.net(대표번호 : 1522-1035 / 문자상담 : 010-6889-9770 / 문의가 너무 많아 전화가 안 될 수 있습니다. 문자로 내용 남겨주시면 늦더라도 상담드릴께요.^^)

ARTIST : 건축가 이동혁, 임성재

듀밀리언 프로필.jpg

홈페이지

: https://dewmillion.kr/ <-듀밀리언 종합건설

지붕마감재 : 아스팔트슁글 / 외벽 마감재 : 스타코플렉스 / 포인트자재 : 파벽돌

실내벽마감재 : 실크벽지 / 실내바닥마감재 : 이건 강마루

창호재 : PVC 3중 시스템창호

건축면적 : 128.09㎡(1층 : 95.70㎡, 2층 : 32.39㎡)

예상 총 건축비 : 289,000,000원(부가세 포함, 산재보험료 포함 / 설계비, 인허가비, 구조계산 설계비 별도)

설계비 : 9,750,000원(부가세 포함) / 인허가비 : 3,900,000원(부가세 포함)

구조계산 설계비 : 3,900,000원(부가세 포함) / 인테리어 설계비 : 5,850,000원(부가세 포함)

*건축비 외 부대비용 : 대지구입비, 가구(싱크대, 신발장, 붙박이장), 기반시설 인입(수도, 전기, 가스 등), 토목공사, 조경비 등

*건축비 기준은 23년 10월 30일 기준 금액입니다.


STORY


깨끗한 느낌이라는 것이 바로 이런 느낌일까요. 군더더기 없는 디자인에 화이트톤 스타코플렉스 마감으로 정말 예쁘다는 말이 절로 나오는 집으로 완성이 된 주택입니다.


모든 사람들이 로망이죠. 화이트 한 느낌의 짓는다는 것. 하지만 우리의 현실은 자꾸만 오염에 대한 걱정 때문에 어두운 계열을 선택하는 쪽으로 결정이 이동합니다.

밝은 계열의 마감재를 사용한 집과 어두운 계열의 마감재를 사용한 집이 나란히 있을 때 취향적인 부분이 조금 존재하겠지만 전문가인 제가 보았을 때에는 화이트 한 집이 훨씬 커 보이고 예뻐 보입니다. 아무래도 밝은 느낌이 주는 분위기가 어두운 것보다는 우위에 있기 때문일 거예요.


외부 디자인을 할 때 가장 많이 고민하시는 것이 눈물자국이라고 부르는 오염입니다. 어떠한 외장재를 사용하던 오염을 완전히 없앨 수는 없답니다. 다만 돌이나 어두운 계열의 마감재로 외장재를 사용할 경우 눈에 덜 띄는 효과를 얻을 수는 있겠지요.

우리들은 왜 눈물자국 및 오염이 생기는지 원인을 파악해 보아야 합니다. 많이들 그냥 화이트 계열로 밝게 마감했으니 오염이 더 잘 발생한다 생각하지만 절대 그렇지 않습니다. 충분히 오염에 대한 부분을 막을 수 있고, 그 기간을 늦출 수 있답니다.


답은 생각보다 쉽답니다. 저희 집들을 보면 처마라는 부분이 대부분 존재합니다. 눈물자국이 발생하는 이유는 처마가 없이 지붕면과 벽면이 맞닿았을 경우 지붕에 있는 먼지들이 빗물을 타고 벽면으로 흘러내리기 때문입니다. 이 부분만 방지할 수 있다면 눈물자국에 생기는 것을 막을 수 있겠지요.


다만 모던한 느낌을 내야 하는 집에서는 처마라는 부분이 생기는 순간 클래식한 느낌으로 변모하는 상황이 발생할 거예요. 이러한 상황에서는 내가 디자인을 조금 더 중요하게 생각하는지, 아니면 유지관리적인 측면을 더 중요하게 생각하는지를 판단한 후 최종 결정을 내리시면 되세요. 여러분들이 기억할 것은 처마가 없는 집의 경우에는 눈물자국은 무조건 생긴다는 것이에요. 설계 디자인 단계에서 이러한 부분을 잡아주지 않는다면 오염에 대한 부분은 외장재에 대한 책임이 아닌 건축주님 본인의 책임이라는 것. 이제는 왜 생기는지 아셨으니 방지할 것인지 아니면 디자인을 더 챙길 것인지 생각해 보시면 된답니다.


이번 주택을 설계하면서 건축주님과 가장 많이 고민한 부분이 1층 평면 부분이었습니다. 도심에서 전원생활로 가족이 모두 이사를 오는 상황이었기 때문에 불편함 없이 현 라이프스타일을 그대로 즐기면서 전원이라는 테마를 부가적으로 얹혀주어야 하는 상황이었습니다.


아파트와 전원생활의 가장 큰 차이점은 개방감에 있습니다. 현관을 들어왔을 때 아파트 구조처럼 복도 및 답답함을 먼저 마주하는 것이 아니라 일단 탁 트인 개방감과 펜트하우스처럼 느껴지는 공간에 대한 시각적 인지는 이 공간에 생활하는 그 자체만으로도 또 다른 행복감을 전해줄 수 있거든요.


첫 설계 방향보다 1층 평면의 공간이 조금 늘어났습니다. 가장 큰 이유는 방 개수에 있습니다. 일반적으로 안방 하나만 1층에 구성하는 방향에서 무리하더라도 방을 2개 넣어주는 안으로 설계를 진행하였으며, 2층이라는 공간은 오롯이 자녀가 혼자만의 독자적인 공간감을 가져갈 수 있도록 하였습니다.


거실 층고를 올리는 오픈 천장에 대한 부분에서 많은 취향적 갈림이 존재하는 것을 알고 있습니다. 한국은 온돌문화가 기본입니다. 아무리 바닥난방을 해도 층고가 높을 경우 위로 따뜻한 공기가 올라가 버리기 때문에 1층은 항상 냉한 기운이 돌 수밖에 없습니다. 이를 해결하기 위해서는 무조건 공기를 데울 수 있는 보조난방기기를 가지고 가야 합니다. 우리나라에서는 벽난로가 대표적이며, 장작을 땔 것인지 아니면 펠릿 벽난로처럼 연료를 넣어 사용할 것이지 결정하셔야 합니다.


최근에 1층 공용화장실을 설계할 때 분리형 배치를 많이 사용하고 있습니다. 아파트처럼 통합으로 변기, 세면기, 샤워기가 같은 공간에 있는 것이 아닌 이 3가지를 모두 분리하여 배치하는 것인데요. 면적이 조금 더 들어간다는 단점이 있지만 호텔느낌의 분위기를 자아낼 수 있다는 점과 각 공간을 한 사람이 아닌 2명 이상의 사람이 동시에 사용할 수 있다는 장점이 있습니다.


마지막으로 목조주택은 단열에 있어서는 가장 뛰어난 성능을 보이지만 반대로 누수에 대해 가장 취약한 면모를 보입니다. 그렇기 때문에 누수에 대한 부분을 애초에 방지할 수 있는 설계를 제안해야 합니다. 간혹 목조주택을 철근콘크리트 주택처럼 설계하시는 분들이 계신데 1년은 버틸지 몰라도 그 이후에는 누수에 대한 위험성을 계속해서 안고 가야 합니다. 옥상은 사용불가, 2층 발코니도 가급적이면 창문을 달아주는 것이 좋고 지붕은 필수. 마지막으로 화장실 부분은 시트 방수로 완벽 방수 진행할 것.


집은 비안 새고 따뜻하면 잘 지어진 것이라 판단합니다. 기본을 지키는 것. 디자인에 너무 빠져 기본을 어기는 설계는 절대 하시면 안 된답니다.



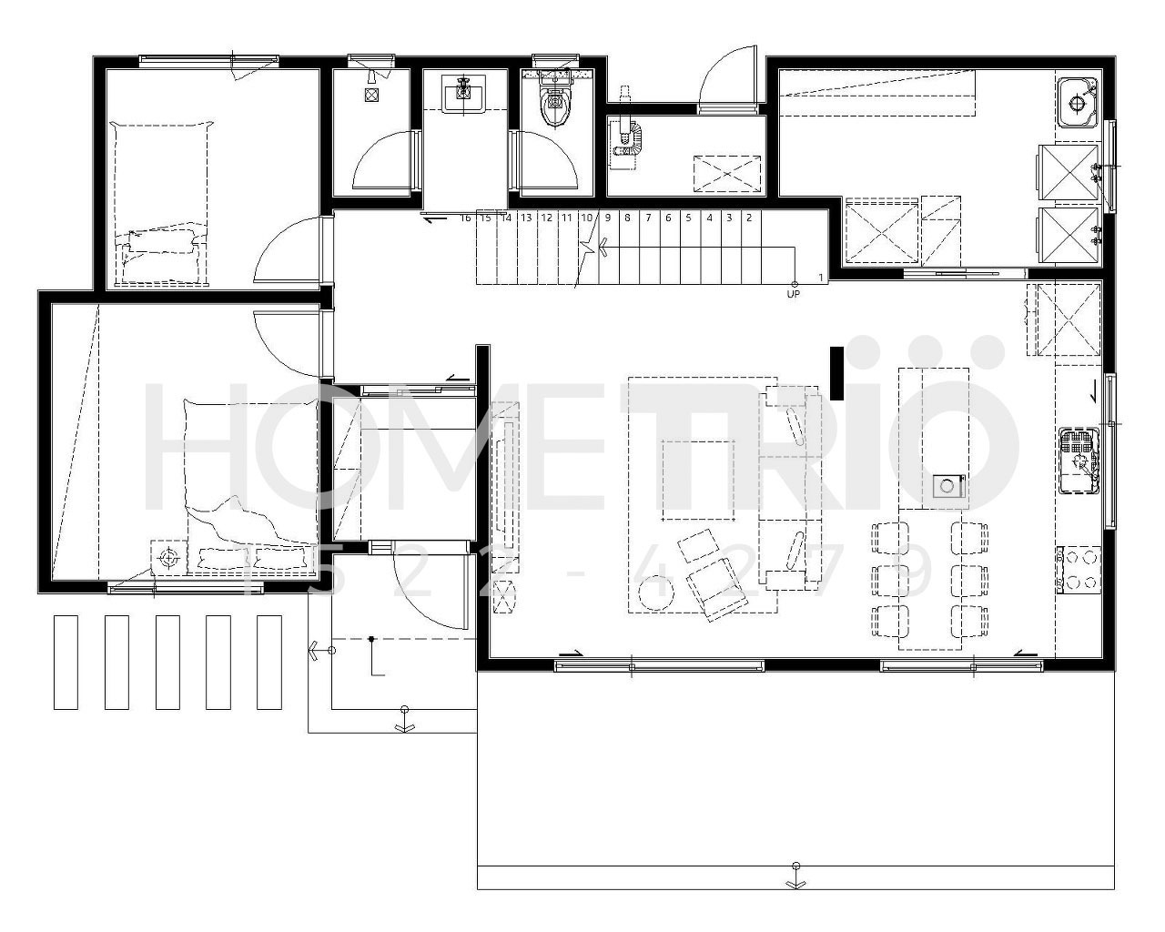
Floor Plan


다운로드 (1).jpg 1층 평면도
다운로드 (2).jpg 2층 평면도

이동혁 건축가 : 이번 주택의 1층 화장실을 보면 독특한 구조로 되어있는 것을 볼 수 있습니다. 샤워장, 세면대, 화장실이 모두 분리된 구조로 공간을 만들어 놓았는데요. 보통 이 구조는 주택에서는 잘 사용하지 않고 호텔이나 리조트 등의 숙박시설에서 많이 사용되던 방식이었습니다. 이 공간배치가 그동안 많이 사용되지 않았던 가장 큰 이유는 면적에 있습니다. 보통 주택 화장실은 콤펙트 하게 구성해서 공간을 줄이는 방식이 많이 적용되는데 이렇게 공간을 구획해서 분할하게 되면 공간이 넓어질 수밖에 없거든요. 하지만 면적이 늘어나는 만큼 장점도 존재하겠지요. 가장 큰 장점은 각 공간을 따로 관리할 수 있다는 점이 있으며, 한 사람만이 점유하는 것이 아닌 각 공간별로 각자의 사람이 동시에 사용할 수 있다는 장점이 존재합니다.

1층에 방이 두 개 배치된 주택을 오랜만에 보셨을 거예요. 대지의 건폐율 부분 때문에 대부분 주방과 거실 등의 공용공간을 1층에 배치하고 방을 2층에 올리는 것이 일반적인데, 이번 주택은 거의 30평 정도의 공간을 1층에 배치할 수 있어 방을 두 개 넣을 수 있는 공간이 나왔습니다. 이 집은 드레스룸 등의 서브 공간 등은 모두 없애주고 방과 공용공간에 면적을 집중한 집이라고 할 수 있습니다. 맞다 틀렸다를 구분하기보다는 이 집은 건축주님의 라이프스타일에 맞춘 집이라고 생각해 주셨으면 좋겠습니다.


임성재 건축가 : 주방 부분의 공간이 압도적으로 넓습니다. 아마 이 평수대의 집 중에 가장 큰 주방 면적을 가졌다고 해도 무방합니다. 주방과 아일랜드 식탁, 그리고 다용도실까지. 일반적인 주방의 면적은 아니고요 정말로 건축주님의 라이프스타일에 맞춘 공간 구성이라고 할 수 있습니다. 몇 개의 냉장고가 들어갈지, 식탁은 몇 인용이 들어갈지, 세탁기는 어떠한 제품을 쓸지 등을 설계 미팅 때 협의하여 그에 맞는 평면을 구성했다고 보시면 될 것 같습니다.


HC030-5793r.jpg
HC030-5798r.jpg
HC030-0154r.jpg


HC030-5527r.jpg
HC030-5532r.jpg
HC030-5537r.jpg
HC030-5540r.jpg
HC030-5543r.jpg
HC030-5545r.jpg
HC030-5547r.jpg
HC030-5548r.jpg
HC030-5554r.jpg
HC030-5555r.jpg
HC030-5558r.jpg
HC030-5559r.jpg
HC030-5560r.jpg
HC030-5563r.jpg
HC030-5568r.jpg
HC030-5571r.jpg
HC030-5573r.jpg
HC030-5576r.jpg
HC030-5579r.jpg
HC030-5581r.jpg
HC030-5583r.jpg
HC030-5585r.jpg
HC030-5588r.jpg
HC030-5591r.jpg
HC030-5593r.jpg
HC030-5594r.jpg
HC030-5598r.jpg
HC030-5600r.jpg
HC030-5602r.jpg
HC030-5605r.jpg
HC030-5608r.jpg
HC030-5613r.jpg
HC030-5616r.jpg
HC030-5617r.jpg
HC030-5618r.jpg
HC030-5621r.jpg
HC030-5625r.jpg
HC030-5626r.jpg
HC030-5627r.jpg
HC030-5628r.jpg
HC030-5630r.jpg
HC030-5631r.jpg
HC030-5633r.jpg
HC030-5638r.jpg
HC030-5643r.jpg
HC030-5648r.jpg
HC030-5652r.jpg
HC030-5655r.jpg
HC030-5656r.jpg
HC030-5663r.jpg
HC030-5664r.jpg
HC030-5668r.jpg

[집이라는 본질적인 가치에 집중하다.]

설계, 시공 : 홈트리오(주), 듀밀리언(주)

상담문의 : sunsutu@hanmail.net(대표번호 : 1522-1035 / 문자상담 : 010-6889-9770 / 문의가 너무 많아 전화가 안 될 수 있습니다. 문자로 내용 남겨주시면 늦더라도 상담드릴게요.^^)

ARTIST : 건축가 이동혁, 임성재

듀밀리언 프로필.jpg

홈페이지

: https://dewmillion.kr/ <-듀밀리언 종합건설

: http://spacemillion.kr <-ai 스페이스 밀리언

스페이스밀리언 ai.jpg


keyword