brunch

47평 '올 겨울은 전원주택에서' 양산시 전원주택

살고 싶은 전원주택 시리즈 #91 - 이동혁건축가

by 이동혁 건축가

제목 : 47평 '올 겨울은 전원주택에서' 양산시 전원주택 완공 프로젝트 (전원주택 짓기 프로젝트)

소제목 : 살고 싶은 전원주택 시리즈 #91 - 이동혁건축가


*구독 버튼은 필수인 것 다들 아시죠^^

[크기변환]HC029-0118.jpg

SPEC


공법 : 경량목구조

설계, 시공 : 듀밀리언(주), 홈트리오(주) / 상담문의 : sunsutu@hanmail.net(대표번호 : 1522-1035 / 문자상담 : 010-6889-9770 / 문의가 너무 많아 전화가 안 될 수 있습니다. 문자로 내용 남겨주시면 늦더라도 상담드릴께요.^^)

ARTIST : 건축가 이동혁, 임성재

듀밀리언 프로필.jpg

홈페이지

: https://dewmillion.kr/ <-듀밀리언 종합건설

지붕마감재 : 아스팔트슁글 / 외벽 마감재 : 스타코플렉스 / 포인트자재 : 파벽돌

실내벽마감재 : 실크벽지 / 실내바닥마감재 : 이건 강마루

창호재 : PVC 3중 시스템창호

건축면적 : 154.63㎡(1층 : 89.76㎡, 2층 : 64.87㎡)

예상 총 건축비 : 357,200,000원(부가세 포함, 산재보험료 포함 / 설계비, 인허가비, 구조계산 설계비 별도)

설계비 : 11,750,000원(부가세 포함) / 인허가비 : 4,700,000원(부가세 포함)

구조계산 설계비 : 4,700,000원(부가세 포함) / 인테리어 설계비 : 7,050,000원(부가세 포함)

*건축비 외 부대비용 : 대지구입비, 가구(싱크대, 신발장, 붙박이장), 기반시설 인입(수도, 전기, 가스 등), 토목공사, 조경비 등

*건축비 기준은 24년 10월 21일 기준 금액입니다.


STORY


따뜻한 햇살 아래 모닝커피를 한 잔 마시는 기분.

아파트 생활을 하면서 일에 치이고 육아에 치이고 정신없이 살다가 전원생활을 시작하니 "아 이게 여유구나"라는 것을 느낍니다.


내 손에 쥔 것들을 놓치면 큰일 날 것 같은 기분. 하지만 때로는 손에 움켜쥐고 있는 것들을 놓는 용기도 필요하답니다. 아파트 열풍을 지나 전원주택으로 다시 떠나기 시작하는 현시대에 '왜?'라는 질문을 우리 스스로 던져볼 필요가 있을 것 같습니다.


이번 프로젝트는 경남 양산의 도심형 단독주택 필지 내에 지어진 주택 프로젝트입니다. 기반시설 및 도로가 잘 닦여 있고, 'KTX 역사'와도 가까운 곳에 위치해 도심형 아파트에서 누릴 수 있는 인프라를 다 누리면서 지내실 수 있는 정말 건축가가 좋아하는 땅에서 이 프로젝트는 시작이 되었습니다.


설계의 시작은 건축주님의 땅을 방문하는 것부터 시작이 됩니다. 주변 환경을 생각하고 도로 및 기반시설을 체크하고... 그리고 가장 중요한 것이 있는데요. 지적도에서는 보이지 않는 옆 집과의 공간 배치도 꼭 검토를 해야 합니다. 처음에는 빈 땅으로 다 시작을 했지만 나중에는 결국 다 집이 지어질 땅들이기 때문에 너무 붙여서도 안되고, 내가 원하는 마당과 조망권 등을 고루고루 검토해서 집을 앉혀야 합니다.


도심형 단독주택의 경우 가장 애매한 부분이 조망권입니다. 대부분 건축법이 2층 내외로 층수를 제안하고 있어 다 지어졌을 경우 결국에는 시각이 가려질 수밖에 없거든요.

많은 분들이 혼동하시는 것들 중의 하나가 내 앞마당에서 저 멀리 좋은 조망권이 훤히 보여야 한다는 생각으로 집을 지으시는데, 거실에서 바라보는 제1 조망권은 내 앞마당이지 절대로 저 멀리에 있는 산이나, 바다가 아니랍니다. 어차피 안 되는 생각은 빨리 정리하시는 것이 정신건강에 좋답니다.


주차장과 현관 위치를 잡고, 최대한 앞마당을 확보할 수 있는 공간배치를 하여 설계 초안을 잡습니다. 그다음 건축주님이 원하는 요소들을 넣어준 뒤, 데드 스페이스 및 낭비되는 공간이 없는지 살펴봅니다.


"건축주님께 완벽한 집이란 무엇일까요?"

정답이 정해져 있는 것이라면 이렇게 무조건 해야 합니다라고 이야기드리겠지만 건축에는 답은 존재하지 않습니다. 이 땅에 걸려있는 건축법규 안에서 내가 원하는, 그리고 내 가족이 원하는 집을 최대한 맞춰 지으면 그것이 건축주님께 완벽한 집일 것입니다.


남의 집에 대해서 너무 많은 검토를 하시는 분들이 계신데, 내가 원하는 요소들을 가져와 내 집을 설계할 때 아이디어 차원에서 적용을 해야지 너무 그곳에 빠져서 그 평면만 바라보고 있는다면 결국에는 원하는 집이 아닌 이도 저도 아닌 집의 평면이 나오게 될 거예요.


한정된 건축비 예산안에서 내가 원하는 것을 최대한 담을 수 있게 방향을 잡는 것이 좋습니다.


1층에서 이 집만이 가지는 독특한 공간이 존재하는데요. 그것은 거실과 안방 사이에 존재하는 중정공간이에요. 많은 분들이 4면이 감싸져 있어야지만 중정이라고 생각하시는데 그렇지 않습니다. 한 곳이 터져 있어도 시각적으로 차단되고 둘러싸인 느낌을 가져갈 수 있다면 그 자체로 중정의 효과를 누릴 수 있습니다.


이 집은 자녀들을 위한 공간을 많이 만들어 놓았어요. 지금 당장 같이 살고 있지는 않지만 명절 때 놀러 오면 충분히 쉴 수 있도록 2층 공간을 구성했고, 가족실 및 발코니 등도 같이 구성해 주어 2층에만 있어도 답답하지 않고 하루 종일 생활할 수 있는 공간을 만들어 주었습니다.


주요한 모든 실들이 전부 남향의 채광을 받을 수 있게 설계했습니다. 전원주택을 설계하면서 가장 피해야 할 단 한 가지를 꼽는다면 '어두운 공간' 만드는 것을 주의해야 한다는 것이에요. 항상 밝고 긍정적인 기운이 온 집에 퍼져있도록 해야 합니다. 그러기 위해서는 남향의 햇볕을 받을 수 있도록 공간 구성해야 하며, 창들을 크게 구성해 불을 켜고 있지 않더라도 항시 밝은 공간으로 느껴질 수 있도록 설계해야 합니다.


마지막으로 외부 디자인에 대해서 간략이 설명드리면, 외장을 꾸미는 비용을 초반에 정해놓으시는 것이 좋습니다. 그 예산을 잡은 뒤 그 비용에 맡게 외부 디자인을 진행하시면 되고, 너무 과하다 싶을 때는 일부 포인트 정도만 적용하여 예산이 오버되지 않게 하는 것이 좋습니다. 무조건 벽면 전체를 다 벽돌로 감싸는 게 정답이 아니라는 것을 설명드리고 싶습니다. 정해진 예산 안에서 진행하세요. 무리하지 마세요. 그래도 예쁜 집 충분히 만들 수 있답니다.


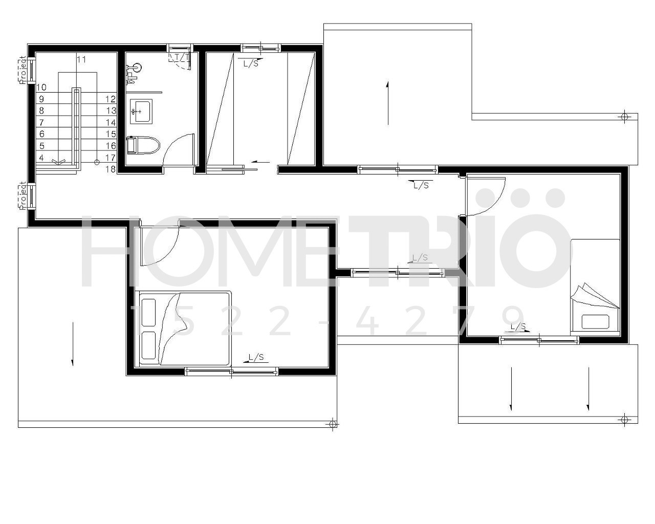
Floor Plan


다운로드 (1).jpg 1층 평면도
다운로드 (2).jpg 2층 평면도

이동혁 건축가 : 과하지 않고 정돈된 느낌의 가성비 주택을 지으려면 이 집처럼 짓는 것이 좋습니다. 디자인, 단열, 인테리어 등 모든 것을 가지고 탄생했지만 합리적인 가격에서 시공이 완료되었거든요. 물론 사람의 취향이 모두 다르기 때문에 이것이 정답이라고 하기는 어렵지만 저희 건축가들의 시선에서 보았을 때는 딱 이 정도의 금액대로 집을 짓는 것이 가장 합리적인 선택이라고 생각합니다. 건축주님이 저희 홈트리오의 집 짓는 방향성과 색깔을 잘 이해해 주셔서 이렇게 저희 색이 잘 묻어나는 집이 탄생한 것 같습니다.

다른 곳에 돈을 안 써도 창문에는 돈을 좀 쓰셔야 합니다. 조금이 아니네요. 제일 많은 돈을 투자하세요. 그래도 후회 안 해요. 좋은 가구들은 사시면서 이상하리만큼 창문에는 대부분의 건축주님들이 냉소적이더라고요. 창을 좋은 브랜드와 3중 시스템창호로 하면 단열에 대해서는 더 이상 걱정 안 해도 되는데, 싼 거를 시공해 놓고 단열을 걱정하는 상황이라니. 건축가로서는 잘 이해가 안 되는 부분입니다. 저희들은 어차피 이건창호 밖에 사용 안 하니 문제가 없지만 아직도 지방에서는 브랜드 없는 제품들을 시공하더라고요. 심지어 시스템창호도 아닌 발코니 창호를 쓰는 집도... 더 이상 말 안 할래요. 창호 꼭 좋은 거 쓰세요. 그래야 집 짓고 후회 안 합니다.


임성재 건축가 : 넓은 공간이 좋다면 공간을 많이 분리하고 벽을 세우는 것보다는 거실과 주방을 하나의 공간으로 합치는 것이 좋습니다. 주방이 무조건 거실과 분리되어야 한다는 분들이 아니라면 40평형대에서 이 집의 공용공간을 가장 넓게 사용할 수 있는 설계 기법이라 설명드리고 싶습니다. 일단 현관을 들어왔을 때 내 시각에 담기는 첫 번째 공간 이미지가 이 집의 전체 공간감을 좌지우지합니다. 현관에서 마주하는 거실과 주방 공간이 좁아버리면 2층이 아무리 넓다 하더라도 이 집은 좁은 집으로 인식됩니다. 그래서 첫 메인 공용공간은 가급적 콤팩트하게 구성하기보다는 내가 생각하는 공간보다 좀 더 넓게 구성해 놓는 것이 좋습니다. 좁게 살려고 전원주택 온 거 아니잖아요. 넓게 넓게 사세요.


0.메인 HC029-0118.jpg
HC029-4742.jpg
HC029-4746.jpg
HC029-4755.jpg
HC029-4760.jpg
HC029-4764.jpg
HC029-4767.jpg
HC029-4775.jpg
HC029-4837.jpg
HC029-DJI0115-0524824.png
HC029-DJI0116-0031031.png

<현관>

HC029-4778.jpg
HC029-4779.jpg
HC029-4780.jpg
HC029-4781.jpg
HC029-4913.jpg
HC029-4914.jpg
HC029-4930.jpg

<거실>

HC029-4784.jpg
HC029-4785.jpg
HC029-4786.jpg
HC029-4787.jpg
HC029-4790.jpg
HC029-4792.jpg
HC029-4793.jpg
HC029-4795.jpg
HC029-4819.jpg
HC029-4821.jpg
HC029-4824.jpg
HC029-4922.jpg
HC029-4923.jpg
HC029-4925.jpg
HC029-4926.jpg
HC029-4936.jpg

<주방>

HC029-4796.jpg
HC029-4797.jpg
HC029-4798.jpg
HC029-4799.jpg
HC029-4802.jpg
HC029-4804.jpg
HC029-4805.jpg
HC029-4807.jpg
HC029-4808.jpg
HC029-4815.jpg
HC029-4817.jpg
HC029-4917.jpg
HC029-4919.jpg
HC029-4921.jpg

<다용도실>

HC029-4810.jpg
HC029-4812.jpg
HC029-4933.jpg

<1층 방>

HC029-4938.jpg
HC029-4943.jpg
HC029-4945.jpg
HC029-4946.jpg
HC029-4948.jpg
HC029-4950.jpg

<화장실1>

HC029-4826.jpg
HC029-4830.jpg
HC029-4831.jpg
HC029-4832.jpg
HC029-4836.jpg

<화장실2>

HC029-4860.jpg
HC029-4861.jpg
HC029-4862.jpg
HC029-4864.jpg
HC029-4865.jpg
HC029-4868.jpg

<계단실>

HC029-4840.jpg
HC029-4842.jpg
HC029-4845.jpg
HC029-4848.jpg
HC029-4854.jpg
HC029-4857.jpg
HC029-4858.jpg
HC029-4906.jpg
HC029-4910.jpg
HC029-4911.jpg
HC029-4912.jpg

<2층 거실>

HC029-4879.jpg
HC029-4888.jpg
HC029-4894.jpg
HC029-4896.jpg

<2층 방1>

HC029-4869.jpg
HC029-4872.jpg
HC029-4873.jpg
HC029-4875.jpg
HC029-4877.jpg

<2층 방2>

HC029-4902.jpg
HC029-4903.jpg
HC029-4905.jpg

<2층 방3>

HC029-4880.jpg
HC029-4883.jpg
HC029-4885.jpg
HC029-4886.jpg
HC029-4887.jpg

<베란다>

HC029-4891.jpg
HC029-4898.jpg
HC029-4899.jpg

[집이라는 본질적인 가치에 집중하다.]

설계, 시공 : 홈트리오(주), 듀밀리언(주)

상담문의 : sunsutu@hanmail.net(대표번호 : 1522-1035 / 문자상담 : 010-6889-9770 / 문의가 너무 많아 전화가 안 될 수 있습니다. 문자로 내용 남겨주시면 늦더라도 상담드릴게요.^^)

ARTIST : 건축가 이동혁, 임성재

듀밀리언 프로필.jpg

홈페이지

: http://spacemillion.kr <-ai 스페이스 밀리언

: https://dewmillion.kr/ <-듀밀리언 종합건설

스페이스밀리언 ai.jpg


keyword