#77 '벚꽃 필 무렵' 강원 고성 30평 전원주택

#77 강원 고성군 토성면 RC 모던 스타일 30평 설계 사례

by 이동혁 건축가

제목 : #77 '벚꽃 필 무렵' 강원 고성 30평 전원주택

소제목 : #77 강원 고성군 토성면 RC 모던 스타일 30평 설계 사례


출발


안녕하세요. 이동혁 건축가 입니다.^^

벌써 3월이 끝나버렸어요. ㅠㅠ 흑흑 시간이 너무 빠르게 흘러가는 것 같아 슬프네요.

4월에는 벚꽃 축제가 기다리고 있는 거 다들 아시죠?^^ 집을 짓기 위해 많이 지쳐있으실 텐데 한 번쯤은 가족들과 산책을 하면서 다시 기운을 얻길 바라겠습니다.^^

오늘은 오랜만에 철근콘크리트 주택을 이야기드리고자 합니다. 역시 철근콘크리트 주택은 모던함이 더욱 부각되는 느낌을 지울 수가 없네요.^^;

30평이지만 멋진 카페의 느낌을 충분히 느낄 수 있는 전원주택. 지금부터 이야기드리도록 하겠습니다.^^

자 그럼 오늘도 출발해 보겠습니다.

*읽고 난 다음에는 위의 하트 모양 라이킷과 공유 꾹 눌러주세용~^^


HOUSE PLAN

연면적 : 98.53㎡

1층 : 82.35㎡

2층 : 16.18㎡

규모 : 지상 2층

총괄 건축가 : 이동혁, 임성재, 정다운

설계·시공 : 홈트리오(주)

대표번호 :1522-4279

Homepage : http://hometrio.kr

이동혁건축가TV : http://tv.naver.com/sunsutu1

예상 총 건축비 : 210,000,000원(부가세 포함)

설계비 및 인허가비 : 7,500,000(부가세 포함)

*건축비 외 부대비용 : 대지구입비, 가구(싱크대, 신발장, 붙박이장), 기반시설 인입(수도, 전기, 가스 등), 토목공사, 조경비 등


SPEC

공법 : 기초-철근콘크리트 / 1층, 2층 구조-철근콘크리트

지붕마감재 : 평지붕 마감

외벽마감재 : 고벽돌st 파벽돌, 노출콘크리트

외벽포인트자재 : 고벽돌st 파벽돌

실내벽마감재 : 실크벽지

실내바닥마감재 : 강마루

창호재 : LG 2중 ZIN 윈도우 플러스(외부 블랙랩핑)

단열재 : 외단열 비드법 보온판 1종 3호


1층 평면도
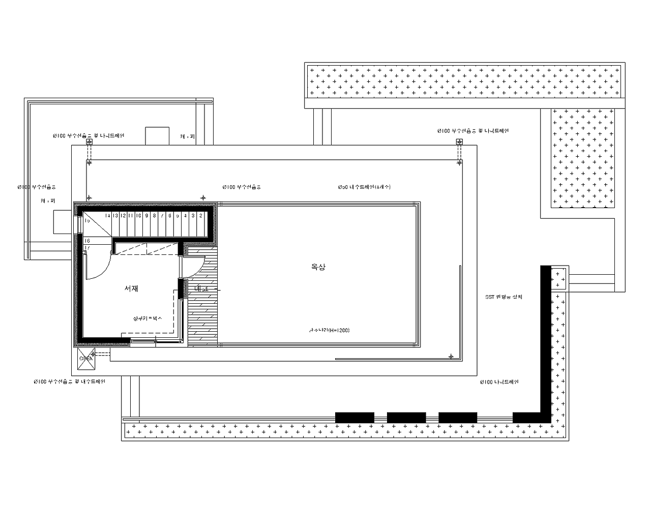
2층 평면도


Q.설계 방향에 대해 설명해주세요.

이번 설계 방향의 테마는 '벚꽃 필 무렵'이라는 콘셉트로 진행하였습니다. 벚꽃이 필 무렵 근사한 분위기의 커피숍에서 차를 마실 때의 기분 좋은 느낌을 집에 담고자 하였으며, 단순한 전원주택의 느낌이 아닌 마치 산속에 있는 커피숍에 앉아 있는 듯한 느낌을 물씬 받을 수 있도록 계획한 사례라 할 수 있습니다.

조금은 유니크한 느낌이 들지 않으시나요?^^;


Q.면적은 얼마나 되는가요?

총 30평(98.53㎡)으로 설계되었으며, 2층으로 구성된 설계 안 입니다. 1층은 24.9평(82.35㎡), 2층은 5.1평(16.18㎡)으로 구성되었으며, 옥상을 활용할 수 있는 설계안으로 계획되어졌습니다.^^


Q.비용은 얼마가 들었나요?

건축비의 경우 210,000,000원이 소요될 것으로 예상됩니다. 부가세가 포함된 가격이며, 순수한 건축비입니다.

설계비는 7,500,000원이 소요되어졌습니다. 이는 부가세 포함 가격이며, 인허가 및 사용승인 비용도 포함된 금액입니다.


Q.철근콘크리트 구조의 경우 옥상 사용이 가능한가요?

목조의 경우 옥상의 사용은 불가능에 가깝습니다. 물론 가능하다고 하는 분들도 계시지만 제 경험상 누수에 대한 위험성이 있기 때문에 목조에서는 옥상 시공을 금지하고 있습니다.

다만 철근콘크리트의 경우 누수에 대한 위험이 상대적으로 적기 때문에 옥상이 꼭 필요한 분들의 경우 공법을 철근콘크리트 공법으로 진행하시길 추천드립니다.^^


Q.주차장 계획은 꼭 해야 하나요?

주차장의 경우 인허가 단계에서 필수로 들어가야 하는 건축 사항입니다.

많은 분들이 준공단계에서 주차장을 만들어 놓았다가 추후 마당으로 그냥 쓰시는 데 사용 자체에는 문제가 없지만 추후 민원이 들어갔을 때에 벌금 및 원상복구 명령이 떨어질 수 있으므로 남의 집에서 주차장을 안 했다고 하여 내 집에도 안 하는 일은 없으셔야 합니다.^^


Q.설계기간 및 시공기간은 얼마나 걸릴까요?

설계기간은 인허가 포함 3달 정도를 잡는 것이 여유로우며, 목조주택 시공기간은 착공일로부터 5개월을 잡는 것이 좋습니다. 사용승인(준공)까지 포함된 기간입니다.


Q.마지막 총평을 한다면?

유니크함이 느껴지는 커피숍 분위기의 전원주택!! 어떠셨나요?^^

잠깐을 머물러도 힐링되는 느낌을 받을 수 있는 곳. 바로 그곳이 이번 주택이지 않을까 조심스럽게 생각해 봅니다.^^;

집을 짓는 것에는 답이 없답니다. 많은 분들이 이미 설계된 사례를 통해 여러 안 들을 그려오시는데요. 물론 설계를 진행할 때 많은 도움이 되지만 이 안을 잡기 위해서 시작도 하기 전에 지쳐버리시는 분들이 계십니다.ㅠㅠ

집은 즐겁게 지어야 한다는 게 저의 생각입니다.^^

너무 스트레스받지 마시고 어려운 것들은 저희에게 일임하시고 즐거운 기억만 가지고 집을 짓길 권해드립니다.

감사합니다.^^

정면도
좌측면도
우측면도
배면도
지붕평면도

도착


30평 강원 고성군 토성면 백촌리에 지어진 전원주택 설계 사례. 어떠셨나요?

철근콘크리트 공법의 매력이 조금은 느껴지시나요?^^ 최근에는 목조주택이 너무 열풍이다 보니 철근콘크리트 주택을 지을 일이 많지 않았는데요. 이번에 설계한 주택의 경우 옥상 및 매스의 무게감이 철근콘크리트 공법을 만나 더욱 빛을 발한 사례인 것 같습니다.

일반적으로 제 설계에는 옥상을 잘 안 만드는데요. 이번 경우에는 철근콘크리트 공법에 시트방수라는 것을 적용하여 최대한 누수에 대한 위험을 잡은 케이스라 할 수 있습니다.

하지만 그래도 목조에는 옥상은 불가합니다.^^ 옥상이 꼭 필요할 경우에는 목조가 아닌 철근콘크리트 공법으로 진행하시길 추천드립니다.

오늘은 여기까지 입니다. 다음 주에는 김난도의 트렌드 플러스라는 라이오 프로그램에 참여하는데요. 좋은 경험이 되지 않을까 생각됩니다.^^ 많이 들어주세용~♡

감사합니다.

*읽고 난 다음에는 위의 하트모양 라이킷과 공유 꾹 눌러주세용~^^


(좌측부터) 정다운 건축가, 임성재 건축가, 이동혁 건축가


설계·시공 : 홈트리오(주) 1522-4279

Homepage : http://hometrio.kr

이동혁건축가TV : http://tv.naver.com/sunsutu1

[집이라는 본질적인 가치에 집중하다.]


글쓴이 : 이동혁 건축가

이메일 : sunsutu@hanmail.net

이동혁건축가TV : http://tv.naver.com/sunsutu1


상담 및 자문[홈트리오(주)]

대표번호 : 1522-4279

이동혁 건축가 : 010-4567-8413

정다운 건축가 : 010-8560-0477

임성재 건축가 : 010-9941-8899



keyword