#81 '도심지 맞춤형 단독주택'50평 철근콘크리트주택

#81 부산 강서구 신호동 RC 모던 스타일 50평 설계 사례

by 이동혁 건축가

안녕하세요. 이동혁 건축가 입니다.^^

드디어 다음 주 '따뜻한 전원주택을 꿈꾸다' 가 출간됩니다.

많은 문의로 어디서 구입할 수 있느냐(?)라는 질문을 많이 받았는데요. 다음 주부터는 전국 서점에서 모두 보실 수 있으니 조금은 편히 구입이 가능하실 것입니다.^^;


오늘은 부산 강서구에 지어질 도심형 단독주택 사례를 이야기드리려고 합니다.


제 브런치에 너무 많은 글을 적다 보니 어떤 구독자님께서 "글은 이제 조금만 적어도 될 것 같아요."라고 이야기해 주셨는데요. ㅠㅠ 이제부터는 정말 필요한 말만 골라서 적도록 하겠습니다.^^;


자 그럼 오늘도 출발해 보겠습니다.^^



부산 주택.jpg

제목 : #81 '도심지 맞춤형 단독주택' 50평 콘크리트주택

소제목 : #81 부산 강서구 신호동 RC 모던 스타일 50평 설계 사례




HOUSE PLAN

연면적 : 164.55㎡

1층 : 79.71㎡

2층 : 84.84㎡

규모 : 지상 2층

총괄 건축가 : 이동혁, 임성재, 정다운

설계·시공 : 홈트리오(주) 1522-4279

Homepage : http://hometrio.kr

이동혁건축가TV : http://tv.naver.com/sunsutu1

예상 총 건축비 : 320,000,000원(부가세 포함)

설계비 및 인허가비 : 12,500,000(부가세 포함)

*건축비 외 부대비용 : 대지구입비, 가구(싱크대, 신발장, 붙박이장), 기반시설 인입(수도, 전기, 가스 등), 토목공사, 조경비 등


SPEC

공법 : 기초-철근콘크리트 / 1층, 2층 구조-철근콘크리트

지붕마감재 : 평지붕마감

외벽마감재 : 사비석

외벽포인트자재 : 사비석, 파벽돌

실내벽마감재 : 실크벽지

실내바닥마감재 : 강마루

창호재 : 엘지 2중 창호 ZIN

단열재 : 부산시 단열 조례에 맞춘 외단열 적용



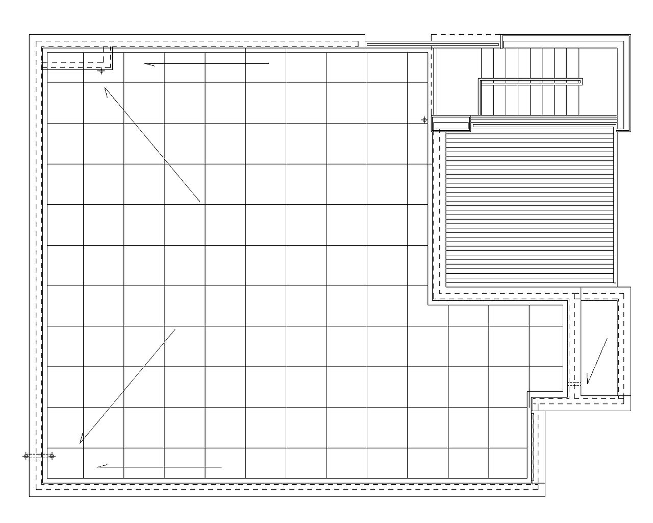
1층평면도.png 1층 평면도


1층 총평 : 땅에 맞춘 박스형 공간안에 2개의 침실과 식당, 거실까지 알차게 구성을 하였다. 일반적인 아파트형을 탈피하고 단독주택만이 가질 수 있는 독특한 구성들을 넣고자 노력하였다.


2층평면도.png 2층 평면도


2층 총평 : 이 집은 2세대가 거주 가능한 집이다. 1층과 2층이 완전히 독립되는 동선을 가지고 있으며, 가족들끼리 살다가 한 세대가 분가하게 되면 세를 주어서 활용할 수도 있게 설계된 집이다.

옥상.png 지붕 평면도


Q. 총평을 한다면?

도심형 단독주택의 경우 땅이 협소하기 때문에 땅 모두를 활용할 수 있는 방안을 설계에 반영해야 합니다. 이번 주택의 경우에도 비싼 땅값을 자랑하는 곳에 지어질 예정이기 때문에 최대한 낭비되는 공간 없이 법규에 맞춰 설계하고자 하였습니다.

외장재는 일반적으로 보지 못했던 사비석이라는 독특한 느낌의 외장재를 사용하였으며, 모던함과 웅장함이 매력적인 주택으로 표현해 내고자 하였습니다.^^

철근콘크리트 공법으로 지어질 예정이기 때문에 옥상까지 활용 가능하며, 모든 공간이 데드 스페이스 없이 알차게 구성된 주택이라 설명드리고 싶습니다.

정면도.png 정면도
배면도.png 좌측면도
좌측.png 우측면도
우측.png 배면도
입면 전체.jpg
투시 1.jpg
투시 2.jpg
투시 3.jpg

도착


50평 부산 강서구 신호동에 지어진 도심형 단독주택 설계 사례. 어떠셨나요?

지금까지 보아왔던 저희들 설계와는 조금 다른 느낌이지 않나요?^^;

아무래도 넓은 땅에 지어지는 전원주택과는 조금 다른 느낌으로 다가왔을 것입니다. 집이란 땅에 따라 변모해야 합니다. 남의 설계를 그냥 가지고 와서 내 땅에 짓는다 한들 그것이 완벽하게 맞아떨어질 수는 없습니다.

이번에 의뢰주신 건축주님께서는 무게감과 추후 집을 팔더라도 환급성이 뛰어날 수 있는 집을 지어달라고 요청하셨습니다.

가장 무난하되 가볍지 않으며, 많은 효용성을 창출할 수 있는 집으로 설계해 드렸으며, 모두가 만족할만한 결과가 나와 담당 건축가로서 뿌듯함을 느낍니다.^^

감사합니다.

*읽고 난 다음에는 위의 하트모양 라이킷과 공유 꾹 눌러주세용~^^


IMG_7463.jpg (좌측부터) 정다운 건축가, 이동혁 건축가, 임성재 건축가


설계·시공 : 홈트리오(주) 1522-4279

Homepage : http://hometrio.kr

이동혁건축가TV : http://tv.naver.com/sunsutu1

[집이라는 본질적인 가치에 집중하다.]


글쓴이 : 이동혁 건축가

이메일 : sunsutu@hanmail.net

책 : '따뜻한 전원주택을 꿈꾸다' 저자(http://www.yes24.com/24/goods/40516450?scode=029)

이동혁건축가TV : http://tv.naver.com/sunsutu1


상담 및 자문[홈트리오 대표]

이동혁 건축가 : 010-4567-8413

정다운 건축가 : 010-8560-0477

임성재 건축가 : 010-9941-8899



keyword