brunch

4. 포.../4.6 지하에 주차박스를 넣고 싶은데 가

4.6 지하에 주차 박스를 넣고 싶은데 가능할까요?

by 이동혁 건축가

순서대로 읽다 보면 완성되는 나의 집

꿈꾸던 전원주택을 짓다

글쓴이 : 이동혁


4. 포크레인 좀 불러와 봐요.(토목공사 편)


4.6 지하에 주차 박스를 넣고 싶은데 가능할까요?


최근 들어 도심형 전원주택이 트렌드로 자리 잡고 있다. 너무 문화권이 형성되지 않은 곳에서 살기에는 부담스럽고 빡빡한 아파트 숲에서 살기에는 답답한 수요층이 도심형 전원주택으로 몰리고 있다.


도심형 전원주택의 장점은 가까운 문화권에 있다. 도심에 형성되어져 있기 때문에 아파트와 동일한 문화적 혜택을 받을 수 있을뿐더러 모든 기반시설이 갖추어져 있다는 최대 장점을 품고 있다.


반대로 단점은 도심지에 형성되어 있기 때문에 땅값이 비싸다. 웬만한 주변 아파트 사는 시세와 거의 동일하게 땅을 구입하거나 더 비싸게 구입해야 하는 경우가 허다하다.


또한 땅 값이 비싸다 보니 땅이 클 수가 없다. 대부분 커봤자 100평 정도라 생각하면 된다. 최근에 LH에서 분양하는 단지들을 보면 도로 포함 80평 전후로 분양되고 있으니 실제로는 엄청 작은 면적을 분양받고 있다고 생각하면 된다. 일반적으로 전원주택을 짓고 앞마당과 주차공간을 확보하려면 150평 전, 후 정도는 있어야 한다.


이렇게 땅이 좁다 보니 조금이나마 남아있던 마당을 최대한 활용할 수 있는 방안에 대해 많이들 고민하신다. 집만 짓고 끝나면 좋으련만 주차공간도 필수로 마련되어야 한다. 그래서 나온 방안이 지하주차 박스이다. 마당을 온전히 다 써야 하니 마당 아래쪽에 주차공간을 만들어 위에 남은 마당을 데드 스페이스 없이 모두 활용하고자 한 것이다.


주차 박스에 대한 말들이 많다. 오늘은 실재 그려졌던 주차 박스 도면을 첨부해 설명을 하도록 하겠다.


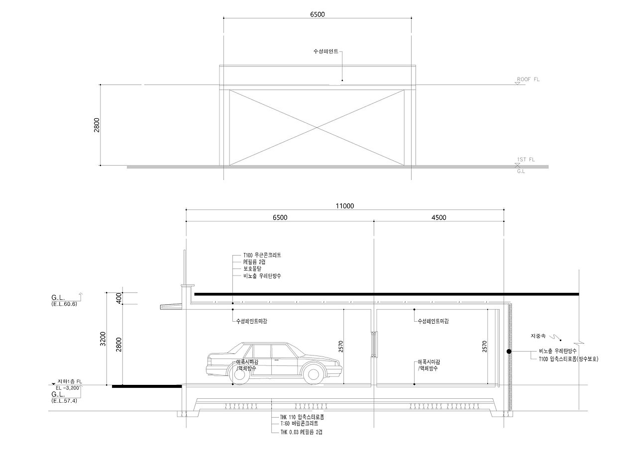
그림 52-지하주차장 단면.jpg

위에 보는 도면은 주차 박스 정면도와 단면도이다. 원래는 치수까지 잘 보여주지 않는데 여러분들이 감을 잡아야 하기 때문에 치수까지 모두 오픈하였다. 주차 박스의 실내 높이는 최소 2800mm 정도 되는 것이 좋다. 요즘 SUV 같은 경우 차가 높기 때문에 2800mm 정도 최소 높이가 되어야 차 윗부분이 닿지 않는다.


보통 바닥 면부터 골조를 치는 부분까지 합하면 3200mm 정도의 높이가 나온다. 다시 말하면 여러분들의 땅이 3200mm 정도의 지하 공간이 나와야 한다는 것을 뜻한다.


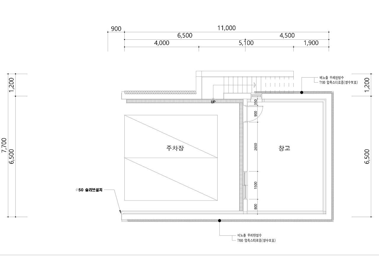
그림 53-지하주차장 평면.jpg

보통 지하주차 박스를 만든다고 하면 2대가 기본이다. 1대를 세우기 위해 이 비싼 비용을 내기에는 아깝기 때문이다. 2대 기준으로 주차 박스를 만들었을 때 치수는 가로 6500mm, 세로 6500mm로 잡는다.


내부 공간은 상황에 따라 다르게 변할 수는 있지만 차가 들어가고 옆으로 사람이 내리는 것까지 생각하면 위의 치수가 나와야 한다고 생각한다. 또한 자동문을 다는 경우가 있는데 이 경우에는 문이 접혀 들어가는 것 까지 생각해야 되기 때문에 주차장 안쪽으로 좀 더 깊은 공간이 필요하다.


대부분 이러한 공간들을 염두에 두지 않고 공간을 만들다 보니 자동문을 달아놓고 그냥 열어놓고 사용하시는 분들이 많다. 전원주택 단지만 가도 차가 끝까지 못 들어가고 차 앞부분이 문 밖을 나와있는 것을 심심치 않게 볼 수 있을 것이다.


지하에 주차 박스를 만드는 비용은 평균 부가세 포함 평당 250만 원 정도 발생한다. 위의 도면에서 창고는 제외하고 주차공간만 만든다고 가정했을 때 약 3000만 원 정도의 공사비용이 발생한다고 보면 된다.


추신 : 정확한 주차 박스 설계를 해야 애물단지로 전락하지 않는다.

그림 54.jpg

(좌측부터) 정다운 건축가, 임성재 건축가, 이동혁 건축가

[집이라는 본질적인 가치에 집중하다.]

Architecture Team : 홈트리오(주)

대표번호 : 1522-4279

위치 : 경기도 성남시 분당구 운중로 141, 경창 빌딩 602호 홈트리오(주)

홈페이지 : http://hometrio.kr/

설계 사례(홈페이지) : http://hometrio.kr/designcase/


글쓴이 : 이동혁 건축가

이메일 : sunsutu@hanmail.net

책 : '따뜻한 전원주택을 꿈꾸다' 저자(http://www.yes24.com/24/goods/40516450?scode=029)

이동혁 건축가 TV : http://tv.naver.com/sunsutu1


상담 및 자문[HOMETRIO 건축가]

이동혁 건축가 : 010-4567-8413

정다운 건축가 : 010-8560-0477

임성재 건축가 : 010-9941-8899




[네이버 TV - 이동혁 건축가 TV]

*글 읽기가 어렵나요? 그럼 이제부터는 영상으로 확인하세요.^^


1. 내 집 짓기의 시작-인트로 : http://tv.naver.com/v/1429784

2. 전원주택 짓기 1차 강연 영상 : http://tv.naver.com/v/1431765

3. 성공의 정석 '꾼' 이동혁 대표 : http://tv.naver.com/v/1434375

4. 전원주택 공법. 무엇으로 지으면 좋을까요? : http://tv.naver.com/v/1436122

5. 전원주택 짓기. 예산 잡는 법! : http://tv.naver.com/v/1446575

6. 전원주택. 왜 품질에 대해 말이 많을까? : http://tv.naver.com/v/1451485

7. 내 집짓기. 언제부터 준비해야 할까요? : http://tv.naver.com/v/1473650

8. 내 땅에 몇 평까지 집을 지을 수 있나요? : http://tv.naver.com/v/1473658

9. 전원주택 지방은 공사비가 더 비싸나요? : http://tv.naver.com/v/1479534

10. 전원주택 AS는 어떻게 진행되고 몇 년까지 보증되나요? : http://tv.naver.com/v/1479537

11. 전원주택 단층과 2층으로 지을 때 비용 차이가 많이 있나요? : http://tv.naver.com/v/1479547

12. 전원주택 성토한 땅에 바로 시공할 수 있나요? : http://tv.naver.com/v/1479558

13. 강화도 이강리 전원주택. 오픈하우스 현장 : http://tv.naver.com/v/1497662

14. 전원주택에 스타코플렉스를 왜 사용하나요? : http://tv.naver.com/v/1599468

15. 전원주택 데크에 대해 알려주세요. : http://tv.naver.com/v/1599480

16. 집짓기 착공 전 준비사항은 어떻게 되나요? : http://tv.naver.com/v/1599505

17. 목조주택에서 가장 많이 나는 하자와 그 빈도는? : http://tv.naver.com/v/1672388

18. 조영구 트렌드 핫이슈. 전원주택 쇼핑몰 : http://tv.naver.com/v/1682435

19. 전원주택 계약 시 속지 않기 위한 방법은? : http://tv.naver.com/v/1684870

20. 전원주택 추가 공사 왜 공사 전에 미리 말하지 않나요? : http://tv.naver.com/v/1688493

21. 강화마루, 강마루, 장판 무엇이 좋나요? : http://tv.naver.com/v/1692136

22. 목조 공법으로도 3층 이상으로 높게 지을 수 있나요? : http://tv.naver.com/v/1698287

23. 목조주택 2층에 시멘트 방통 시공. 목조에 부담을 주지 않나요? : http://tv.naver.com/v/1701955

24. 전원주택 바닥 방통 없이 난방을 할 수 있는 방법이 있나요? : http://tv.naver.com/v/1728947

25. 2억 4천만 원. 경기 광주 전원주택을 소개합니다. : http://tv.naver.com/v/1732431

26. 전원주택. 철근콘크리트가 목조보다 더 튼튼할 텐데도 목조로 집을 짓는 이유가 있나요? : http://tv.naver.com/v/1735979

27. 내 땅에 흙을 마음대로 받아도 되나요? : http://tv.naver.com/v/1739333

28. 지진이 늘어나는데 중목이 아닌 경량 목구조는 약하지 않나요? : http://tv.naver.com/v/1743684

29. 땅이 낮아 성토하고 싶어요. 절차가 어떻게 되나요? : http://tv.naver.com/v/1746299

30. 전원주택. 여름 공사와 겨울 공사 단점은 어떤 게 있을까요? : http://tv.naver.com/v/1759345

31. 전원주택 회사. 정말 안전한 업체인지 확인하고 싶어요. : http://tv.naver.com/v/1766577

32. 목조주택이 몸에 좋다는데 어차피 본드나 벽지도 바르지 않나요? : http://tv.naver.com/v/1817543

33. 전원주택 브랜드 업체들의 이윤이 너무 높지 않나요? : http://tv.naver.com/v/1834510

34. 전원주택 땅을 살려는데 종류가 너무 많아요. 혹시 집을 지을 수 없는 땅도 있나요? : http://tv.naver.com/v/1862326

35. 사람들이 목조주택을 짓게 되는 계기가 있을까요? : http://tv.naver.com/v/1866671

36. 건설업체가 안전한 업체인지 알아보는 법! : http://tv.naver.com/v/1918266

37. 미국식 창호와 독일식 창호의 차이 : http://tv.naver.com/v/1934487

38. 하자이행보증증권에 대해 알아보자 : http://tv.naver.com/v/2011225

39. 제주도에 집 지을 때 주의해야 할 점 : http://tv.naver.com/v/2011251

40. 월간 홈트리오 4월호-NEW 농가주택 표준설계도 : https://www.youtube.com/watch?v=WwZjpLNUiwI&t=273s

41. 월간 홈트리오 4월호②-꿈꾸던 다락방을 갖다 : https://www.youtube.com/watch?v=r1fyjlp4N5Q&t=129s

42. 조립식 소형 전원주택. [kasita]에 대해 알아보자! : https://tv.naver.com/v/3440492

43. 전원주택. 월간 홈트리오 5월호 - 도심형 단독주택을 짓다. : https://tv.naver.com/v/3441024

44. 전원주택에서 비가 오기 전 가장 먼저 확인해야 할 사항 : https://tv.naver.com/v/3506313

45. 전원주택 지으려고 하는데 어디에 물어봐야 할까요? : https://tv.naver.com/v/3571540

46. 전원주택 아스팔트슁글 괜찮나요? : https://tv.naver.com/v/3571580

47. 전원주택 세라믹사이딩 어떤 자재인가요? : https://tv.naver.com/v/3571616



keyword