#88'두 아이를 위한 전원생활'강릉 30평 전원주택

#88 강원 강릉시 향호리 30평 모던 스타일 목조주택 설계 사례

by 이동혁 건축가
강릉투시도1.JPG

제목 : #88 '두 아이를 위한 전원생활' 강릉 30평 전원주택.

소제목 : #88 강원 강릉시 향호리 30평 모던 스타일 목조주택 설계 사례


출발


안녕하세요. 이동혁 건축가 입니다.^^

올 2017년도는 정말 어떻게 시간이 지나갔는지 모를 만큼 빠르게 지나간 것 같네요. 특히 가을 이후의 기억이 거의 없는 걸 보니 정말 바쁘게 지냈던 것 같습니다.

작년보다 올해에 정말 많은 분들께서 사랑과 관심을 보내주셨습니다. 받은 사랑 모두 돌려드릴 수 있도록 항상 초심 잃지 않고 최선을 다하겠습니다.

오늘 소개하여드릴 주택은 강원도 강릉시 향호리에 지어질 30평 전원주택입니다. 점점 주택이 간소화되고 미니멀해지고 있다 보니 이제는 30평 주택도 2층으로 구성을 하고 있습니다.

큰 욕심을 부리지 않는다면 오늘 이야기 드릴 주택처럼 가성비 높은 금액으로 멋진 집을 완성시킬 수 있을 것입니다.^^

자 그럼 오늘도 출발해 보겠습니다.

*읽고 난 다음에는 위의 하트 모양 라이킷과 공유 꾹 눌러주세용~^^


HOUSE PLAN

연면적 : 99.71㎡

1층 : 69.32㎡

2층 : 30.39㎡

규모 : 지상 2층

총괄 건축가 : 이동혁, 임성재, 정다운

설계·시공 : 홈트리오(주)

홈트리오 홈페이지 : http://hometrio.kr/

이동혁건축가TV : http://tv.naver.com/sunsutu1

Architecture Team : 홈트리오 1522-4279

예상 총 건축비 : 158,000,000원(부가세 포함)

설계비 및 인허가비 : 7,500,000(부가세 포함)

*건축비 외 부대비용 : 대지구입비, 가구(싱크대, 신발장, 붙박이장), 기반시설 인입(수도, 전기, 가스 등), 토목공사, 조경비 등


SPEC

공법 : 기초-철근콘크리트 / 1, 2층-목구조

지붕마감재 : 아스팔트슁글

외벽마감재 : 테라코트 플레시텍스

외벽포인트자재 : 파벽돌, 창호 블랙랩핑

실내벽마감재 : 실크벽지

실내바닥마감재 : 강마루

창호재 : 융기 3중 시스템창호

단열재 : 외부벽체(Glasswool Insulation R21HD-15" 나등급)

▷크나우프社 ECOBATT (ECOSE® 특허)

▷HD:저에너지 하우스용 / 15인치(381mm) *동등 제품

: 내부벽체(Glasswool Insulation R19-15" 다등급)

: 천장(Glasswool Insulation R30-15" 다등급)

: 지붕(Glasswool Insulation R37-23" 가등급) ▷ISOVER社에너지세이버

*단열기준은 2016년 7월 1일 자로 변경되는 단열기준법을 적용하여 강화시켜 놓았습니다.

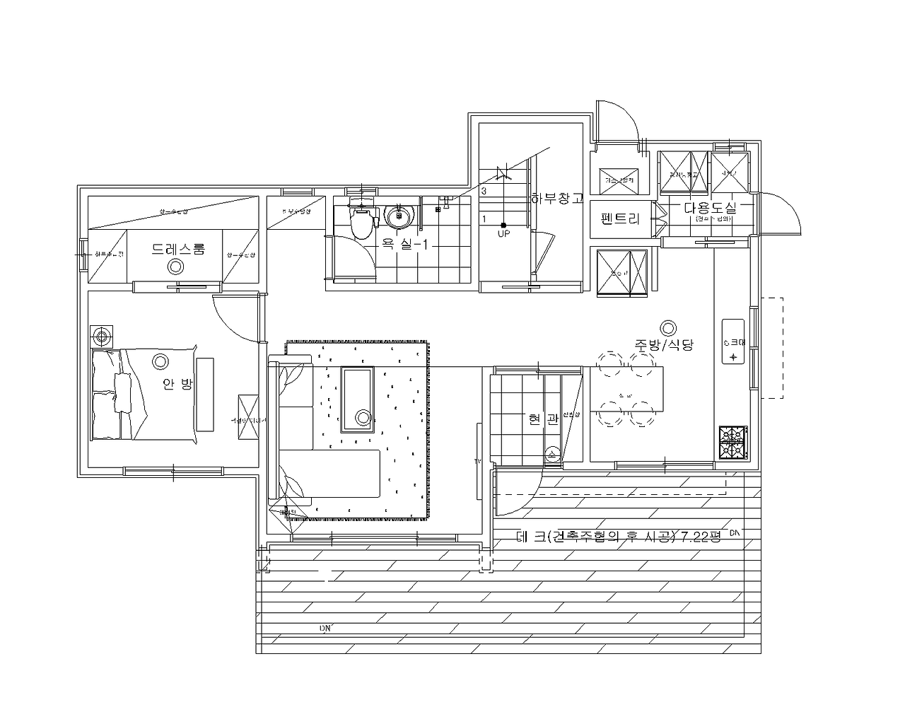
1층.png 1층 평면도

30평형 주택이기 때문에 타 주택보다 거실 공간을 작게 구성하였습니다. 대신 방을 3개로 구성해 자녀들에게 각 방 1개씩을 배정할 수 있도록 하였습니다.

2층.png 2층 평면도

자녀들이 생각했을 때 전원주택의 매력은 2층에 있는 자신만의 방일 것입니다. 공용공간을 작게 구성하는 대신 방을 2층에 두 개 구성하여 자녀들의 요구조건을 만족할 수 있도록 하였습니다.


Q. 설계 방향에 대해 설명해주세요.

이번 설계 방향의 테마는 '두 아이를 위한 전원생활'입니다. 아이들은 원래 마음껏 뛰어놀며 성장하는 것이 당연합니다. 그런데 도심 속 아파트에서는 층간소음 때문에 마음껏 뛰놀지도 못하고 놀이터도 8시 이후에는 소음 때문에 놀지 못하다 보니 부모의 입장에서 많이 속상할 때가 많습니다.

이번 강릉에 지어진 주택은 이러한 아이들을 위해서 지은 주택으로 주변 아파트 시세보다 절반 가격이라는 금액으로 안전하게 지어질 예정입니다.


Q. 면적은 얼마나 되는가요?

총 30평(99.71㎡)으로 설계되었으며, 공용공간을 줄이는 대신 방을 3개 넣어 자녀들에게 각방을 줄 수 있도록 설계되었습니다. 1층은 21평, 1층은 9평으로 구성하였습니다.


Q. 비용은 얼마가 들었나요?

건축비의 경우 158,000,000원이 소요될 것으로 예상됩니다. 부가세가 포함된 가격이며, 순수한 건축비입니다.

설계비는 7,500,000원이 소요되어졌습니다. 이는 부가세 포함 가격이며, 인허가 및 사용승인 비용도 포함된 금액입니다.


Q. 내진설계 적용이 되어있나요?

2017년 12월 1일 자로 모든 건물에 대해서 내진 구조검토가 필수로 이루어지게 되었습니다. 기본적으로 목조는 철근콘크리트 건물 대비 높은 내진 성능을 가지고 있는데 저희들은 주요 골재 부분에 연결 철물(스트롱 타이)을 한번 더 시공해 내진보강을 강하게 적용해 놓았습니다.


Q. 마지막 총평을 한다면?

최근 정말 다양한 외장재가 나오고 있습니다. 국내 개발된 것들도 있지만 대부분은 해외에서 수입되는 자재들입니다. 성능은 좋은 걸 알겠는데 문제는 비용입니다. 아직까지는 해외에서 수입하는 외장재의 경우 국내에 적용하기에 조금 어려운 비용적 문제를 안고 있습니다.

제가 조언드리고 싶은 것은 집을 지을 때 무조건 최고의 자재만 사용해서 짓겠다는 생각을 조금만 버리셨으면 좋겠다는 것입니다. 가성비 높은 자재들이 이미 충분히 나와있고 욕심만 버린다면 얼마든지 저렴한 금액으로 집을 지을 수 있습니다.

이번 사례를 보시면 큰 포인트 비용 없이도 지붕 경사도와 매스 디자인만으로도 멋진 모던 스타일 전원주택이 탄생할 수 있다는 것을 깨달았을 것입니다.^^

정면도.png 정면도
배면도.png 배면도
우측면도.png 좌측면도
좌측면도.png 우측면도
강릉투시도2.JPG
강릉투시도3.JPG


도착


30평 2층 전원주택 어떠셨나요?

가을에 정말 많은 분들께서 설계 의뢰를 주시다 보니 올려드릴 내용이 20개나 쌓여있네요. ㅠㅠ 부지런하게 글을 써야겠습니다.

2017년도 모두 건강히 하시는 일 잘 마무리하시고 2018년도도 행복하고 즐거운 일들만 가득하길 기원하겠습니다.

많은 분들의 사랑과 성원 덕분에 내년 봄 공사가 거의 마무리되었습니다. 내년도에도 항상 노력하고 발전하는 건축가가 되겠습니다.^^

감사합니다.

*읽고 난 다음에는 위의 하트 모양 라이 킷과 공유 꾹 눌러주세요~^^


다운로드 (4).jpg


홈트리오(주) 1522-4279

[집이라는 본질적인 가치에 집중하다.]


글쓴이 : 이동혁 건축가

이메일 : sunsutu@hanmail.net

책 : '따뜻한 전원주택을 꿈꾸다' 저자(http://www.yes24.com/24/goods/40516450?scode=029)

홈트리오 홈페이지 : http://hometrio.kr/

이동혁건축가TV : http://tv.naver.com/sunsutu1


상담 및 자문[홈트리오 CEO]

이동혁 건축가 : 010-4567-8413

정다운 건축가 : 010-8560-0477

임성재 건축가 : 010-9941-8899




[네이버TV - 이동혁건축가TV]

*글 읽기가 어렵나요? 그럼 이제부터는 영상으로 확인하세요.^^


1. 내 집 짓기의 시작-인트로 : http://tv.naver.com/v/1429784

2. 전원주택 짓기 1차 강연 영상 : http://tv.naver.com/v/1431765

3. 성공의 정석 '꾼' 이동혁 대표 : http://tv.naver.com/v/1434375

4. 전원주택 공법. 무엇으로 지으면 좋을까요? : http://tv.naver.com/v/1436122

5. 전원주택 짓기. 예산잡는 법! : http://tv.naver.com/v/1446575

6. 전원주택. 왜 품질에 대해 말이 많을까? : http://tv.naver.com/v/1451485

7. 내집짓기. 언제부터 준비해야 할까요? : http://tv.naver.com/v/1473650

8. 내 땅에 몇평까지 집을 지을 수 있나요? : http://tv.naver.com/v/1473658

9. 전원주택 지방은 공사비가 더 비싸나요? : http://tv.naver.com/v/1479534

10. 전원주택 AS는 어떻게 진행되고 몇년까지 보증되나요? : http://tv.naver.com/v/1479537

11. 전원주택 단층과 2층으로 지을 때 비용차이가 많이 있나요? : http://tv.naver.com/v/1479547

12. 전원주택 성토한 땅에 바로 시공할 수 있나요? : http://tv.naver.com/v/1479558

13. 강화도 이강리 전원주택. 꿈애하우징 오픈하우스 현장 : http://tv.naver.com/v/1497662

14. 전원주택에 스타코플렉스를 왜 사용하나요? : http://tv.naver.com/v/1599468

15. 전원주택 데크에 대해 알려주세요. : http://tv.naver.com/v/1599480

16. 집짓기 착공전 준비사항은 어떻게 되나요? : http://tv.naver.com/v/1599505

17. 목조주택에서 가장 많이 나는 하자와 그 빈도는? : http://tv.naver.com/v/1672388

18. 조영구 트랜드 핫 이슈. 전원주택 쇼핑몰 꿈애디자인랩 : http://tv.naver.com/v/1682435

19. 전원주택 계약시 속지 않기 위한 방법은? : http://tv.naver.com/v/1684870

20. 전원주택 추가공사 왜 공사 전에 미리 말하지 않나요? : http://tv.naver.com/v/1688493

21. 강화마루, 강마루, 장판 무엇이 좋나요? : http://tv.naver.com/v/1692136

22. 목조공법으로도 3층 이상으로 높게 지을 수 있나요? : http://tv.naver.com/v/1698287

23. 목조주택 2층에 시멘트 방통시공. 목조에 부담을 주지 않나요? : http://tv.naver.com/v/1701955

24. 전원주택 바닥 방통없이 난방을 할 수 있는 방법이 있나요? : http://tv.naver.com/v/1728947

25. 2억4천만원. 경기 광주 전원주택을 소개합니다. : http://tv.naver.com/v/1732431

26. 전원주택. 철근콘크리트가 목조보다 더 튼튼할텐데도 목조로 집을 짓는 이유가 있나요? : http://tv.naver.com/v/1735979

27. 내 땅에 흙을 마음대로 받아도 되나요? : http://tv.naver.com/v/1739333

28. 지진이 늘어나는데 중목이 아닌 경량 목구조는 약하지 않나요? : http://tv.naver.com/v/1743684

29. 땅이 낮아 성토하고 싶어요. 절차가 어떻게 되나요? : http://tv.naver.com/v/1746299

30. 전원주택. 여름공사와 겨울공사 단점은 어떤게 있을까요? : http://tv.naver.com/v/1759345

31. 전원주택 회사. 정말 안전한 업체인지 확인하고 싶어요. : http://tv.naver.com/v/1766577

32. 목조주택이 몸에 좋다는데 어차피 본드나 벽지도 바르지 않나요? : http://tv.naver.com/v/1817543

33. 전원주택 브랜드업체들의 이윤이 너무 높지 않나요? : http://tv.naver.com/v/1834510

34. 전원주택 땅을 살려는데 종류가 너무 많아요. 혹시 집을 지을 수 없는 땅도 있나요? : http://tv.naver.com/v/1862326

35. 사람들이 목조주택을 짓게 되는 계기가 있을까요? : http://tv.naver.com/v/1866671

36. 건설업체가 안전한 업체인지 알아보는 법! : http://tv.naver.com/v/1918266

37. 미국식 창호와 독일식 창호의 차이 : http://tv.naver.com/v/1934487

38. 하자이행보증증권에 대해 알아보자 : http://tv.naver.com/v/2011225

39. 제주도에 집 지을 때 주의해야 할 점 : http://tv.naver.com/v/2011251

40. 강원 철원 30평 전원주택(완공영상) : http://tv.naver.com/v/2048729

41. 강원 평창 28평 전원주택(완공영상) : http://tv.naver.com/v/2048747

42. 강원 홍성 43평 전원주택(완공영상) : http://tv.naver.com/v/2048754

43. 경기 용인 42평 전원주택(완공영상) : http://tv.naver.com/v/2048768

44. 경기 용인 52평 모던스타일 전원주택(완공영상) : http://tv.naver.com/v/2048785

45. 경남 밀양 28평 북유럽스타일 전원주택(완공영상) : http://tv.naver.com/v/2048794

46. 인천 강화 32평 모던스타일 전원주택(완공영상) : http://tv.naver.com/v/2048803

47. 충남 공주 30평 북유럽스타일 전원주택(완공영상) : http://tv.naver.com/v/2138643

48. 경남 밀양 25평 클래식스타일 전원주택(완공영상) : http://tv.naver.com/v/2167201

49. 강원 태백 34평 북유럽스타일 전원주택(완공영상) : http://tv.naver.com/v/2193601

50. 광주광역시 40평 북유럽스타일 전원주택(완공영상) : http://tv.naver.com/v/2220977

51. 강릉시 36평 모던스타일 전원주택(완공영상) : http://tv.naver.com/v/2469915



keyword