경북 고령 '차 한잔의 여유' 55평 전원주택 완공

#3 홈트리오 시공사례 - 건축비 : 34,800만 원

by 이동혁 건축가

*구독 버튼은 필수인 것 다들 아시죠^^

hc002_0017.jpg
hc002_0017bw.jpg
hc002_0019.jpg
hc002_0019_bw.jpg
hc002_0025.jpg


제목 : 경북 고령 '차 한잔의 여유를 즐기다' 55평 전원주택 완공

소제목 : #3 홈트리오 시공사례 - 건축비 : 34,800만 원

월간 홈트리오 링크 : http://hometrio.kr/portfolio-item/hd55048/


출발


안녕하세요. 이동혁 건축가입니다.^^

경북 고령군 도심에 홈트리오 전원주택이 완공되었습니다.

신축 건물보다 20년 이상 된 주택이 보편화된 지역에 새로운 활력을 불어넣기 위해 건축주님과 협심하여 멋진 모던스타일 전원주택을 대지에 앉히게 되었습니다.

많은 우여곡절을 거친 후 완공이 되어서 그런지 더욱 뿌듯함을 느끼는 프로젝트입니다.^^

55평 규모로 지어진 주택으로 불륨감 넘치는 외관때문에 착공 전부터 정말 많은 문의가 있었던 주택인데요.

지금부터는 말보다는 현장 완공 사진으로 이야기드리겠습니다.^^

자 그럼 오늘도 출발해 보겠습니다.

*읽고 난 다음에는 위의 하트 모양 라이 킷과 공유 꾹 그리고 구독 버튼 눌러주세요~^^


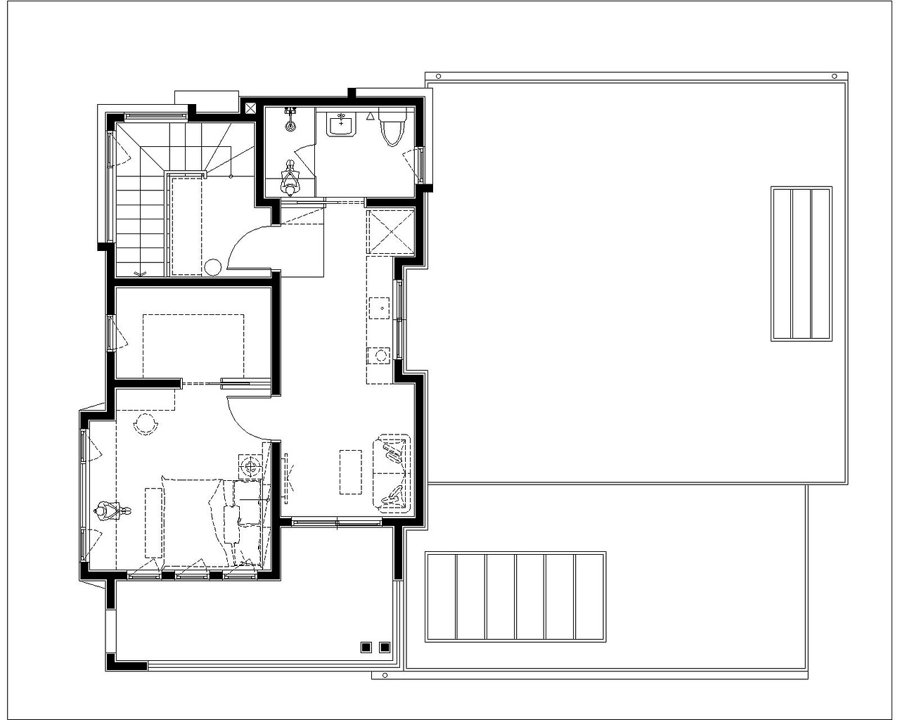
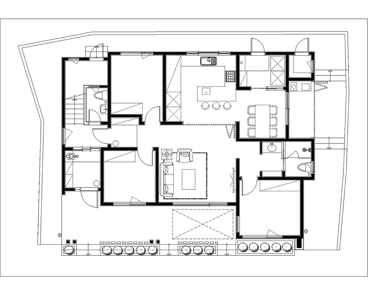
HOUSE PLAN

건축면적 : 182.27㎡

1층 : 122.17㎡

2층 : 60.10㎡

규모 : 지상 2층

공법 : 경량 목구조

총괄 건축가 : 이동혁, 임성재, 정다운


상담 및 자문[홈트리오(주)]

임성재 건축가 : 010-9941-8899

정다운 건축가 : 010-8560-0477

이동혁 건축가 : 010-4567-8413


설계·시공 : 홈트리오(주)

대표번호 : 1522-4279

홈페이지 : http://hometrio.kr/

이동혁건축가TV : http://tv.naver.com/sunsutu1

유튜브 채널 : https://www.youtube.com/channel/UCz1Ukw7b4GXKDtBoR5BDyVQ/about?view_as=subscriber

IMG_4998.jpg (좌측부터) 정다운 건축가, 임성재 건축가, 이동혁 건축가

예상 총 건축비 : 348,000,000원(부가세 포함, 산재보험료 포함 / 설계비, 인허가비, 구조계산 설계비 별도, 인테리어 설계비 별도)

설계비 : 8,250,000원(부가세 포함)

인허가비 : 5,500,000원(부가세 포함)

구조계산 설계비 : 5,500,000원(부가세 포함)

인테리어 설계비 : 5,500,000원(부가세 포함)

*건축비 외 부대비용 : 대지구입비, 가구(싱크대, 신발장, 붙박이장), 기반시설 인입(수도, 전기, 가스 등), 토목공사, 조경비 등


SPEC

공법 : 기초-철근콘크리트 / 1층, 2층 - 경량 목구조

지붕마감재 : 아스팔트 슁글

외벽 마감재 : 스타코플렉스

외벽 포인트 자재 : 파벽돌, 세라믹사이딩, 창호(외부) 블랙랩핑

실내 벽 마감재 : 실크벽지

실내 바닥마감재 : 강마루

창호재 : 미국식 3중 시스템창호(베카 드리움)

단열재 : 외부벽체(Glasswool Insulation R21HD-나 등급)

▷크나우프社 ECOBATT (ECOSE® 특허)

▷HD:저 에너지 하우스용 / 15인치(381mm) *동등 제품

: 내부 벽체(Glasswool Insulation R19-다등급)

: 내부 천장(Glasswool Insulation R30-다등급)

: 지붕(Glasswool Insulation R37-가등급) ▷ISOVER社에너지 세이버

*단열기준은 2016년 7월 1일 자로 변경되는 단열기준법을 적용하여 강화시켜 놓았습니다.


입면 전체.jpg
1층.jpg 1층 평면도
2층.jpg 2층 평면도


hc002_01641.jpg
hc002_01643.jpg
hc002_01648.jpg
hc002_01658.jpg
hc002_01666.jpg
hc002_01668.jpg
hc002_01672.jpg
hc002_01674.jpg
hc002_01676.jpg
hc002_01677.jpg
hc002_01679.jpg
hc002_01680.jpg
hc002_01689.jpg
hc002_01691.jpg
hc002_01692.jpg
hc002_01693.jpg
hc002_01694.jpg
hc002_01695.jpg
hc002_01698.jpg
hc002_01699.jpg
hc002_01702.jpg
hc002_01703.jpg
hc002_01705.jpg
hc002_01706.jpg
hc002_01708.jpg
hc002_01709.jpg
hc002_01710.jpg
hc002_01711.jpg
hc002_01712.jpg
hc002_01713.jpg
hc002_01715.jpg
hc002_01717.jpg
hc002_01718.jpg
hc002_01720.jpg
hc002_01722.jpg
hc002_01724.jpg
hc002_01725.jpg
hc002_01726.jpg
hc002_01728.jpg
hc002_1728.jpg
hc002_01729.jpg
hc002_1729.jpg
hc002_01730.jpg
hc002_1730.jpg
hc002_01734.jpg
hc002_01737.jpg
hc002_01738.jpg
hc002_01739.jpg
hc002_01740.jpg
hc002_01742.jpg
hc002_01744.jpg
hc002_01745.jpg
hc002_01747.jpg
hc002_01750.jpg
hc002_01751.jpg
hc002_01752.jpg
hc002_01753.jpg
hc002_01756.jpg
hc002_01759.jpg
hc002_01760.jpg
hc002_01762.jpg
hc002_01764.jpg
hc002_01766.jpg
hc002_01767.jpg
hc002_01768.jpg
hc002_01769.jpg
hc002_01770.jpg
hc002_01772.jpg
hc002_01773.jpg
hc002_01774.jpg
hc002_01776.jpg
hc002_01777.jpg
hc002_01778.jpg
hc002_01779.jpg
hc002_01781.jpg
hc002_01782.jpg
hc002_01783.jpg
hc002_01785.jpg
hc002_01787.jpg
hc002_01788.jpg
hc002_01790.jpg
hc002_01791.jpg
hc002_01792.jpg
hc002_01793.jpg
hc002_01794.jpg
hc002_01795.jpg
hc002_01796.jpg
hc002_01798.jpg
hc002_01801.jpg
hc002_01802.jpg
hc002_01805.jpg
hc002_01806.jpg
hc002_01808.jpg
hc002_01810.jpg
hc002_01812.jpg
hc002_01813.jpg
hc002_01814.jpg
hc002_01817.jpg
hc002_01818.jpg
hc002_01820.jpg
hc002_01821.jpg
hc002_01823.jpg
hc002_01824.jpg
hc002_01826.jpg
hc002_01828.jpg
hc002_01829.jpg
hc002_01830.jpg
hc002_01831.jpg
hc002_01833.jpg
hc002_01834.jpg
hc002_01835.jpg
hc002_01836.jpg
hc002_01840.jpg
hc002_01841.jpg
hc002_01843.jpg
hc002_01845.jpg
hc002_01846.jpg
hc002_01848.jpg
hc002_01849.jpg
hc002_01860.jpg
hc002_01861.jpg
hc002_01862.jpg
hc002_1921.jpg
hc002_1923.jpg
hc002_1924.jpg
hc002_1925.jpg
hc002_1927.jpg
hc002_1928.jpg
hc002_1929.jpg
hc002_1932.jpg
hc002_1937.jpg
hc002_1941.jpg
hc002_1942.jpg
hc002_1947.jpg
hc002_1949.jpg
hc002_1953.jpg
hc002_1955.jpg
hc002_1959.jpg
hc002_1963.jpg
hc002_1965.jpg
hc002_1968.jpg
hc002_1971.jpg
hc002_1972.jpg
hc002_1975.jpg
hc002_5139.jpg
hc002_5144.jpg
hc002_5147.jpg
hc002_5148.jpg
hc002_5152.jpg
hc002_5155.jpg
hc002_5158.jpg
hc002_5159.jpg
hc002_5160.jpg
hc002Panorama2.jpg
hc002_1918.jpg


도착


경북 고령군에 지어진 전원주택. 어떠셨나요?^^

도심형 전원주택이라고해서 시골집처럼 지어질 줄 알았나요? 항상 말하듯 집이란 정답이 없는 분야이기 때문에 고정관념을 가지고 집을 지을 이유가 없답니다.

이번 고령군에 지어진 단독주택은 처음에는 너무 주변과 어울리지 않고 튀지 않느냐는 이야기를 많이 들었지만 짓고 난 후에는 오히려 어두웠던 동네 분위기를 밝게 밝혀주는 랜드마크적인 요소로 발전되어 도심에 생기를 불어넣어주는 시작점이 되어버렸습니다.

집이란 그런 존재인 것 같습니다. 작은 건축물이지만 그 자체로 또다른 활력을 불어넣어주는 매개체적인 존재.

저희들이 조금 욕심을 부린 부분도 있는데 흔쾌히 받아주신 건축주님께 감사인사를 전하며, 앞으로 가족들과의 행복한 추억만 가득하길 기원하고 바라겠습니다.

감사합니다.^^

*읽고 난 다음에는 위의 하트 모양 라이 킷과 공유 꾹 눌러주세요~^^


(좌측부터) 정다운 건축가, 임성재 건축가, 이동혁 건축가

[집이라는 본질적인 가치에 집중하다.]

Architecture Team : 홈트리오(주)

대표번호 : 1522-4279

홈페이지 : http://hometrio.kr/

설계 사례(홈페이지) : http://hometrio.kr/designcase/



글쓴이 : 이동혁 건축가

이메일 : sunsutu@hanmail.net

책 : '따뜻한 전원주택을 꿈꾸다' 저자(http://www.yes24.com/24/goods/40516450?scode=029) / '꿈꾸던 전원주택을 짓다' 저자(http://www.yes24.com/24/goods/61175737?scode=029)

이동혁 건축가 TV : http://tv.naver.com/sunsutu1


상담 및 자문[HOMETRIO 건축가]

이동혁 건축가 : 010-4567-8413

정다운 건축가 : 010-8560-0477

임성재 건축가 : 010-9941-8899




[네이버 TV - 이동혁 건축가 TV]

*글 읽기가 어렵나요? 그럼 이제부터는 영상으로 확인하세요.^^


1. 내 집 짓기의 시작-인트로 : http://tv.naver.com/v/1429784

2. 전원주택 짓기 1차 강연 영상 : http://tv.naver.com/v/1431765

3. 성공의 정석 '꾼' 이동혁 대표 : http://tv.naver.com/v/1434375

4. 전원주택 공법. 무엇으로 지으면 좋을까요? : http://tv.naver.com/v/1436122

5. 전원주택 짓기. 예산 잡는 법! : http://tv.naver.com/v/1446575

6. 전원주택. 왜 품질에 대해 말이 많을까? : http://tv.naver.com/v/1451485

7. 내 집짓기. 언제부터 준비해야 할까요? : http://tv.naver.com/v/1473650

8. 내 땅에 몇 평까지 집을 지을 수 있나요? : http://tv.naver.com/v/1473658

9. 전원주택 지방은 공사비가 더 비싸나요? : http://tv.naver.com/v/1479534

10. 전원주택 AS는 어떻게 진행되고 몇 년까지 보증되나요? : http://tv.naver.com/v/1479537

11. 전원주택 단층과 2층으로 지을 때 비용 차이가 많이 있나요? : http://tv.naver.com/v/1479547

12. 전원주택 성토한 땅에 바로 시공할 수 있나요? : http://tv.naver.com/v/1479558

13. 강화도 이강리 전원주택. 오픈하우스 현장 : http://tv.naver.com/v/1497662

14. 전원주택에 스타코플렉스를 왜 사용하나요? : http://tv.naver.com/v/1599468

15. 전원주택 데크에 대해 알려주세요. : http://tv.naver.com/v/1599480

16. 집짓기 착공 전 준비사항은 어떻게 되나요? : http://tv.naver.com/v/1599505

17. 목조주택에서 가장 많이 나는 하자와 그 빈도는? : http://tv.naver.com/v/1672388

18. 조영구 트렌드 핫이슈. 전원주택 쇼핑몰 : http://tv.naver.com/v/1682435

19. 전원주택 계약 시 속지 않기 위한 방법은? : http://tv.naver.com/v/1684870

20. 전원주택 추가 공사 왜 공사 전에 미리 말하지 않나요? : http://tv.naver.com/v/1688493

21. 강화마루, 강마루, 장판 무엇이 좋나요? : http://tv.naver.com/v/1692136

22. 목조 공법으로도 3층 이상으로 높게 지을 수 있나요? : http://tv.naver.com/v/1698287

23. 목조주택 2층에 시멘트 방통 시공. 목조에 부담을 주지 않나요? : http://tv.naver.com/v/1701955

24. 전원주택 바닥 방통 없이 난방을 할 수 있는 방법이 있나요? : http://tv.naver.com/v/1728947

25. 2억 4천만 원. 경기 광주 전원주택을 소개합니다. : http://tv.naver.com/v/1732431

26. 전원주택. 철근콘크리트가 목조보다 더 튼튼할 텐데도 목조로 집을 짓는 이유가 있나요? : http://tv.naver.com/v/1735979

27. 내 땅에 흙을 마음대로 받아도 되나요? : http://tv.naver.com/v/1739333

28. 지진이 늘어나는데 중목이 아닌 경량 목구조는 약하지 않나요? : http://tv.naver.com/v/1743684

29. 땅이 낮아 성토하고 싶어요. 절차가 어떻게 되나요? : http://tv.naver.com/v/1746299

30. 전원주택. 여름 공사와 겨울 공사 단점은 어떤 게 있을까요? : http://tv.naver.com/v/1759345

31. 전원주택 회사. 정말 안전한 업체인지 확인하고 싶어요. : http://tv.naver.com/v/1766577

32. 목조주택이 몸에 좋다는데 어차피 본드나 벽지도 바르지 않나요? : http://tv.naver.com/v/1817543

33. 전원주택 브랜드 업체들의 이윤이 너무 높지 않나요? : http://tv.naver.com/v/1834510

34. 전원주택 땅을 살려는데 종류가 너무 많아요. 혹시 집을 지을 수 없는 땅도 있나요? : http://tv.naver.com/v/1862326

35. 사람들이 목조주택을 짓게 되는 계기가 있을까요? : http://tv.naver.com/v/1866671

36. 건설업체가 안전한 업체인지 알아보는 법! : http://tv.naver.com/v/1918266

37. 미국식 창호와 독일식 창호의 차이 : http://tv.naver.com/v/1934487

38. 하자이행보증증권에 대해 알아보자 : http://tv.naver.com/v/2011225

39. 제주도에 집 지을 때 주의해야 할 점 : http://tv.naver.com/v/2011251

40. 월간 홈트리오 4월호-NEW 농가주택 표준설계도 : https://www.youtube.com/watch?v=WwZjpLNUiwI&t=273s

41. 월간 홈트리오 4월호②-꿈꾸던 다락방을 갖다 : https://www.youtube.com/watch?v=r1fyjlp4N5Q&t=129s