'아이에게 다락방을 선물하다' 44평 용인 전원주택

#6 홈트리오 시공사례 - 건축비 : 26,940만 원

by 이동혁 건축가

*구독 버튼은 필수인 것 다들 아시죠^^

HC006-0093.jpg


제목 : '아이에게 다락방을 선물하다' 44평 용인 처인구 전원주택 완공

소제목 : #6 홈트리오 시공사례 - 건축비 : 26,940만 원


출발


안녕하세요. 이동혁 건축가입니다.^^

경기 용인 처인구 김량장동의 '로잔빌리지' 단지에 저희 홈트리오 전원주택이 완공되었습니다. 모던한 외관에 스킵플로어가 적용된 총 3층 구성의 주택 모델로 좁은 땅에 집을 지어야 하는 분들께 많은 아이디어를 제공해 줄 수 있는 모델이라 생각합니다.

용인 로잔빌리지에 저희 홈트리오가 집을 짓는다고 했을 때 주변에 땅을 가진 정말 많은 분들이 문의를 주셨는데요. 그동안에는 간략한 정보만 드렸었는데 진행 중이던 현장이 드디어 완공되어 내, 외부 모든 공간의 사진을 공개합니다.^^

궁금하셨죠?

자 그럼 오늘도 출발해 보겠습니다.

*읽고 난 다음에는 위의 하트 모양 라이 킷과 공유 꾹 그리고 구독 버튼 눌러주세요~^^


HOUSE PLAN

건축면적 : 144.85㎡

1층 : 57.20㎡

2층 : 53.52㎡

다락 : 34.13㎡

규모 : 지상 2층+다락

공법 : 경량 목구조

총괄 건축가 : 이동혁, 임성재, 정다운

설계·시공 : 홈트리오(주)

홈페이지 : http://hometrio.kr/


상담 및 자문[홈트리오(주)]

임성재 건축가 : 010-9941-8899

정다운 건축가 : 010-8560-0477

이동혁 건축가 : 010-4567-8413


설계·시공 : 홈트리오(주)

대표번호 : 1522-4279

홈페이지 : http://hometrio.kr/

이동혁건축가TV : http://tv.naver.com/sunsutu1

유튜브 채널 : https://www.youtube.com/channel/UCz1Ukw7b4GXKDtBoR5BDyVQ/about?view_as=subscriber

HC006-6328.jpg (좌측부터) 이동혁 건축가, 임성재 건축가, 정다운 건축가


예상 총 건축비 : 269,400,000원(부가세 포함, 산재보험료 포함 / 설계비, 인허가비, 구조계산 설계비 별도)

설계비 : 6,600,000원(부가세 포함)

인허가비 : 4,400,000원(부가세 포함)

구조계산 설계비 : 4,400,000원(부가세 포함) *2017년 12월 1일 자부터 의무시행

인테리어 설계비 : 4,400,000원(부가세 포함)

*건축비 외 부대비용 : 대지구입비, 가구(싱크대, 신발장, 붙박이장), 기반시설 인입(수도, 전기, 가스 등), 토목공사, 조경비 등


SPEC

공법 : 기초-철근콘크리트 / 1층, 2층, 다락-경량 목구조

지붕마감재 : 리얼징크

외벽 마감재 : 스타코플렉스

외벽포인트자재 : 세라믹사이딩, 리얼징크, 적삼목사이딩, 파벽돌

실내벽마감재 : 실크벽지

실내바닥마감재 : 강마루

창호재 : 미국식+독일식 3중 시스템창호(위치에 따라 방식 적용)

단열재 : 외부벽체(Glasswool Insulation R21HD-나등급)

▷크나우프社 ECOBATT (ECOSE® 특허)

▷HD:저에너지 하우스용 / 15인치(381mm) *동등 제품

: 내부벽체(Glasswool Insulation R19-다등급)

: 천장(Glasswool Insulation R30-다등급)

: 지붕(Glasswool Insulation R37-가등급) ▷ISOVER社에너지 세이버

*단열기준은 2016년 7월 1일 자로 변경되는 단열기준법을 적용하여 강화시켜 놓았습니다.


1층.jpg 1층 평면도
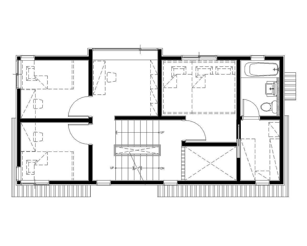
2층.jpg 2층 평면도
3층.jpg 다락 평면도


Q. 설계 방향에 대해 설명해주세요.

이번 설계 방향의 테마는 '아이에게 다락방을 선물하다'입니다.

기존 주택에서 보지 못했던 '스킵플로어'라는 설계기법이 적용된 주택입니다. 좁은 땅에서 오밀조밀한 공간을 만들어 낼 수 있는 기법으로 반층씩 올라가면서 공간을 구성하는 방법입니다.

스킵플로어 형식은 잘못하는 어정쩡한 공간과 좁은 공간이 만들어질 수 있는데 이번 현장은 건축주님과 많은 협의를 거친 끝에 서로 만족할만한 공간으로 설계가 완성되었습니다.

2층 플러스 다락이라는 공간으로 구성되었으며, 좁은 대지인 만큼 최대한 넓은 마당을 구성할 수 있도록 공간배치를 진행하였습니다.^^

이 집의 가장 큰 매력 포인트는 다락이라는 공간 일 것입니다. 아래의 사진에서 보이듯 아이를 위한 재미난 공간들이 이 집에는 만들어져 있습니다.

아이를 위한 집을 구상 중이신가요? 그렇다면 오늘 선보일 용인 전원주택. 꼭 눈여겨보시길 바라겠습니다.^^


Q. 면적은 얼마나 되는가요?

총 44평(144.85㎡)으로 설계된 주택입니다. 1층 57.20㎡, 2층 53.52㎡, 다락 34.13㎡로 구성되었습니다.

스킵플로어 형식으로 반층씩 올라가면서 실들이 구성되어 기존에는 보지 못했던 다양한 공간들이 연출되었습니다.^^


Q. 비용은 얼마가 들었나요?

건축비의 경우 269,400,000원이 소요될 것으로 예상됩니다. 부가세가 포함된 가격이며, 순수한 건축비입니다.

설계비 6,600,000원, 인허가비 4,400,000원, 구조계산 설계비 4,400,000원, 인테리어 설계비 4,400,000원이 소요되었습니다.


Q. 내진설계 적용이 되어있나요?

2017년 12월 1일 자로 모든 건물에 대해서 내진 구조검토가 필수로 이루어지게 되었습니다.

현 월간 홈트리오 기획안은 내진보강이 이루어진 설계안입니다.^^


Q. 위 설계에서 변경이 가능한가요?

당연히 가능합니다. 월간 홈트리오의 설계는 기획설계이며, 꼭 똑같이 지어야 할 이유는 없습니다.^^

건축주님의 땅에 맞게 다시 설계를 진행해 드리므로 너무 걱정하시지 않으셔도 됩니다.


Q. 상담을 받고 싶은데 상담료가 있나요?

그렇지 않습니다. 저희들 회사가 판교에 있습니다. 아래의 전화번호로 미리 일주일 전에 예약하신 후 방문해주시면 되시며, 별도의 상담료를 받지 않고 있습니다.(계약 전 출장 방문상담은 50만 원의 출장비가 있습니다.)

홈트리오 대표번호 : 1522-4279


Q. 마지막 총평을 한다면?

멋지고, 깔끔하고, 세련되고, 재미있고, 젊다.

이번 주택을 통칭하는 5개의 단어입니다.

군더더기 없는 외관에 가성비 높은 건축비. 거기에 재미있는 공간까지. 저희 홈트리오의 색깔을 잘 보여주는 주택 사례라 생각합니다.

젊고 재미있게 짓고 싶으신가요?

그렇다면 꼭 저희를 한번 찾아와 주시기 바랍니다.^^


*해치지 않아요. 하지만 매력에 풍덩 빠질 수 있다는 점.


지금부터는 글이 아닌 사진으로서 용인 전원주택을 소개해 드리겠습니다.^^


HC006-0101.jpg
HC006-0108.jpg
HC006-0116.jpg
HC006-0122.jpg
HC006-6328.jpg
HC006-6243.jpg
HC006-6248.jpg
HC006-6251.jpg
HC006-6254.jpg
HC006-6268.jpg
HC006-6269.jpg
HC006-6270.jpg
HC006-6277.jpg
HC006-6278.jpg
HC006-6281.jpg
HC006-6294.jpg
HC006-6299.jpg
HC006-6330.jpg
HC006-6331.jpg
HC006-6332.jpg
HC006-6335.jpg
HC006-6336.jpg
HC006-6340.jpg
HC006-6341.jpg
HC006-6342.jpg
HC006-6343.jpg
HC006-6344.jpg
HC006-6345.jpg
HC006-6347.jpg
HC006-6350.jpg
HC006-6351.jpg
HC006-6352.jpg
HC006-6354.jpg
HC006-6355.jpg
HC006-6356.jpg
HC006-6359.jpg
HC006-6360.jpg
HC006-6361.jpg
HC006-6364.jpg
HC006-6365.jpg
HC006-6366.jpg
HC006-6369.jpg
HC006-6370.jpg
HC006-6371.jpg
HC006-6373.jpg
HC006-6374.jpg
HC006-6377.jpg
HC006-6379.jpg
HC006-6383.jpg
HC006-6385.jpg
HC006-6387.jpg
HC006-6388.jpg
HC006-6392.jpg
HC006-6395.jpg
HC006-6396.jpg
HC006-6397.jpg
HC006-6398.jpg
HC006-6399.jpg
HC006-6400.jpg
HC006-6402.jpg
HC006-6403.jpg
HC006-6405.jpg
HC006-6406.jpg
HC006-6408.jpg
HC006-6409.jpg
HC006-6410.jpg
HC006-6412.jpg
HC006-6414.jpg
HC006-6416.jpg
HC006-6417.jpg
HC006-6418.jpg
HC006-6420.jpg
HC006-6421.jpg
HC006-6423.jpg
HC006-6425.jpg
HC006-6426.jpg
HC006-6428.jpg
HC006-6429.jpg
HC006-6430.jpg
HC006-6431.jpg
HC006-6434.jpg
HC006-6435.jpg
HC006-6437.jpg
HC006-6438.jpg
HC006-6442.jpg
HC006-6446.jpg
HC006-6447.jpg
HC006-6448.jpg
HC006-6452.jpg
HC006-6455.jpg
HC006-6460.jpg
HC006-0095.jpg
HC006-6318.jpg

도착


경기 용인 처인구 김량장동의 '로잔빌리지' 단지에 지은 전원주택.^^

정말 여러 어려움 속에서 지은 주택이다 보니 감회가 새롭습니다.

한채 한채 집을 완공할 때마다 건축가로서 많은 깨달음을 얻습니다. 건축이라는 분야가 답이 없는 분야이다 보니 어쩔 때는 "아, 정말 이렇게 하는 것이 사는 사람에게 좋은 공간일까?" 고민에 휩싸일 때가 많습니다.

그래도 건축주님들과 같이 이야기하면서 어려운 부분들을 풀어내고 이렇게 멋지게 지어져서 제 앞에 나타날 때는 그 어떠한 것보다도 많은 보람과 즐거움을 주는 것 같습니다.

벌써 11월입니다.

내년 봄 공사 준비 중이신 분들은 설계 열심히 하고들 계신지요? 아직도 시작을 안 했다고요? 항상 이야기하듯 시간이 '금'이랍니다.^^

생각보다 착공을 하기 위해 많은 시간이 필요하니 서둘러서 내년 봄 공사 준비하시길 바라겠습니다.

오늘은 여기까지 입니다. 올해 4채 정도 더 완공 사진을 보여드릴 수 있을 것 같습니다. 다음 완공 현장도 멋진 사진으로 여러분들을 찾아뵙겠습니다.

감사합니다.^^

*읽고 난 다음에는 위의 하트 모양 라이 킷과 공유 꾹 눌러주세요~^^


(좌측부터) 정다운 건축가, 임성재 건축가, 이동혁 건축가

[집이라는 본질적인 가치에 집중하다.]

Architecture Team : 홈트리오(주)

대표번호 : 1522-4279

홈페이지 : http://hometrio.kr/

설계 사례(홈페이지) : http://hometrio.kr/designcase/



글쓴이 : 이동혁 건축가

이메일 : sunsutu@hanmail.net

책 : '따뜻한 전원주택을 꿈꾸다' 저자(http://www.yes24.com/24/goods/40516450?scode=029) / '꿈꾸던 전원주택을 짓다' 저자(http://www.yes24.com/24/goods/61175737?scode=029)

이동혁 건축가 TV : http://tv.naver.com/sunsutu1


상담 및 자문[HOMETRIO 건축가]

이동혁 건축가 : 010-4567-8413

정다운 건축가 : 010-8560-0477

임성재 건축가 : 010-9941-8899




[네이버 TV - 이동혁 건축가 TV]

*글 읽기가 어렵나요? 그럼 이제부터는 영상으로 확인하세요.^^


1. 내 집 짓기의 시작-인트로 : http://tv.naver.com/v/1429784

2. 전원주택 짓기 1차 강연 영상 : http://tv.naver.com/v/1431765

3. 성공의 정석 '꾼' 이동혁 대표 : http://tv.naver.com/v/1434375

4. 전원주택 공법. 무엇으로 지으면 좋을까요? : http://tv.naver.com/v/1436122

5. 전원주택 짓기. 예산 잡는 법! : http://tv.naver.com/v/1446575

6. 전원주택. 왜 품질에 대해 말이 많을까? : http://tv.naver.com/v/1451485

7. 내 집짓기. 언제부터 준비해야 할까요? : http://tv.naver.com/v/1473650

8. 내 땅에 몇 평까지 집을 지을 수 있나요? : http://tv.naver.com/v/1473658

9. 전원주택 지방은 공사비가 더 비싸나요? : http://tv.naver.com/v/1479534

10. 전원주택 AS는 어떻게 진행되고 몇 년까지 보증되나요? : http://tv.naver.com/v/1479537

11. 전원주택 단층과 2층으로 지을 때 비용 차이가 많이 있나요? : http://tv.naver.com/v/1479547

12. 전원주택 성토한 땅에 바로 시공할 수 있나요? : http://tv.naver.com/v/1479558

13. 강화도 이강리 전원주택. 오픈하우스 현장 : http://tv.naver.com/v/1497662

14. 전원주택에 스타코플렉스를 왜 사용하나요? : http://tv.naver.com/v/1599468

15. 전원주택 데크에 대해 알려주세요. : http://tv.naver.com/v/1599480

16. 집짓기 착공 전 준비사항은 어떻게 되나요? : http://tv.naver.com/v/1599505

17. 목조주택에서 가장 많이 나는 하자와 그 빈도는? : http://tv.naver.com/v/1672388

18. 조영구 트렌드 핫이슈. 전원주택 쇼핑몰 : http://tv.naver.com/v/1682435

19. 전원주택 계약 시 속지 않기 위한 방법은? : http://tv.naver.com/v/1684870

20. 전원주택 추가 공사 왜 공사 전에 미리 말하지 않나요? : http://tv.naver.com/v/1688493

21. 강화마루, 강마루, 장판 무엇이 좋나요? : http://tv.naver.com/v/1692136

22. 목조 공법으로도 3층 이상으로 높게 지을 수 있나요? : http://tv.naver.com/v/1698287

23. 목조주택 2층에 시멘트 방통 시공. 목조에 부담을 주지 않나요? : http://tv.naver.com/v/1701955

24. 전원주택 바닥 방통 없이 난방을 할 수 있는 방법이 있나요? : http://tv.naver.com/v/1728947

25. 2억 4천만 원. 경기 광주 전원주택을 소개합니다. : http://tv.naver.com/v/1732431

26. 전원주택. 철근콘크리트가 목조보다 더 튼튼할 텐데도 목조로 집을 짓는 이유가 있나요? : http://tv.naver.com/v/1735979

27. 내 땅에 흙을 마음대로 받아도 되나요? : http://tv.naver.com/v/1739333

28. 지진이 늘어나는데 중목이 아닌 경량 목구조는 약하지 않나요? : http://tv.naver.com/v/1743684

29. 땅이 낮아 성토하고 싶어요. 절차가 어떻게 되나요? : http://tv.naver.com/v/1746299

30. 전원주택. 여름 공사와 겨울 공사 단점은 어떤 게 있을까요? : http://tv.naver.com/v/1759345

31. 전원주택 회사. 정말 안전한 업체인지 확인하고 싶어요. : http://tv.naver.com/v/1766577

32. 목조주택이 몸에 좋다는데 어차피 본드나 벽지도 바르지 않나요? : http://tv.naver.com/v/1817543

33. 전원주택 브랜드 업체들의 이윤이 너무 높지 않나요? : http://tv.naver.com/v/1834510

34. 전원주택 땅을 살려는데 종류가 너무 많아요. 혹시 집을 지을 수 없는 땅도 있나요? : http://tv.naver.com/v/1862326

35. 사람들이 목조주택을 짓게 되는 계기가 있을까요? : http://tv.naver.com/v/1866671

36. 건설업체가 안전한 업체인지 알아보는 법! : http://tv.naver.com/v/1918266

37. 미국식 창호와 독일식 창호의 차이 : http://tv.naver.com/v/1934487

38. 하자이행보증증권에 대해 알아보자 : http://tv.naver.com/v/2011225

39. 제주도에 집 지을 때 주의해야 할 점 : http://tv.naver.com/v/2011251

40. 월간 홈트리오 4월호-NEW 농가주택 표준설계도 : https://www.youtube.com/watch?v=WwZjpLNUiwI&t=273s

41. 월간 홈트리오 4월호②-꿈꾸던 다락방을 갖다 : https://www.youtube.com/watch?v=r1fyjlp4N5Q&t=129s


#전원주택 #홈트리오 #목조주택 #이동혁건축가 #단독주택 #집짓기 #전원주택공법 #월간홈트리오 #house #housing #architenture #housedesign #houses #houseplants #housework #인테리어 #전원주택인테리어 #전원주택라이프 #전원속의내집 #전원주택사진모음 #모던전원주택 #1억전원주택 #예쁜전원주택 #전원주택설계도면 #소형전원주택 #유럽풍전원주택 #전원주택정원꾸미기 #전원주택건축비용 #전원주택시공 #전원주택짓기 #경남전원주택 #월간전원주택 #전원주택평면도 #전원주택설계 #경기도전원주택 #전원주택조경 #전원주택시공업체