'숲과 호흡하는 집' 67평 대전 전원주택 완공

#5 홈트리오 시공사례 - 건축비 : 42,410만 원

by 이동혁 건축가

*구독 버튼은 필수인 것 다들 아시죠^^

hc005__MG_6229.jpg

제목 : '숲과 호흡하는 집' 67평 대전 관저동 전원주택 완공

소제목 : #5 홈트리오 시공사례 - 건축비 : 42,410만 원

홈트리오(본문) 링크 : http://hometrio.kr/portfolio-item/hc67005/


출발


안녕하세요. 이동혁 건축가입니다.^^

대전 서구 관저동의 '파크힐즈' 단지 내 저희 홈트리오 전원주택이 완공되었습니다.

대전 지역 내에서도 가장 많은 고급 전원주택이 많은 곳이 바로 관저동 파크힐즈이죠. 저희들도 건축주님과 정말 많은 설계 협의를 거쳐 최종 완공까지 이르게 되었는데요. 결과물이 모두가 만족할만한 주택으로 탄생되어 건축자로서 그리고 대표로서 뿌듯함을 느낍니다.

이번 주택은 67평이라는 중형대 전원주택으로 계획되었으며, 다양한 공간들을 배치하면서 그동안 소형평수대에서 보지 못했던 재미있는 공간들을 많이 탄생시켰습니다.

대전에 전원주택 열풍이 불면서 정말 많은 문의가 왔었던 이번 대전 관저동 전원주택. 말보다는 직접 보시는 것이 좋겠죠?^^

자 그럼 오늘도 출발해 보겠습니다.

*읽고 난 다음에는 위의 하트 모양 라이 킷과 공유 꾹 그리고 구독 버튼 눌러주세요~^^


HOUSE PLAN

건축면적 : 222.39㎡

1층 : 122.55㎡

2층 : 74.64㎡

다락 : 25.20㎡

규모 : 지상 2층+다락

공법 : 경량 목구조

총괄 건축가 : 이동혁, 임성재, 정다운

설계·시공 : 홈트리오(주)

홈페이지 : http://hometrio.kr/


상담 및 자문[홈트리오(주)]

임성재 건축가 : 010-9941-8899

정다운 건축가 : 010-8560-0477

이동혁 건축가 : 010-4567-8413


설계·시공 : 홈트리오(주)

대표번호 : 1522-4279

홈페이지 : http://hometrio.kr/

이동혁건축가TV : http://tv.naver.com/sunsutu1

유튜브 채널 : https://www.youtube.com/channel/UCz1Ukw7b4GXKDtBoR5BDyVQ/about?view_as=subscriber

hc004_5292.jpg (좌측부터) 정다운 건축가, 임성재 건축가, 이동혁 건축가


예상 총 건축비 : 424,100,000원(부가세 포함, 산재보험료 포함 / 설계비, 인허가비, 구조계산 설계비 별도)

설계비 : 10,050,000원(부가세 포함)

인허가비 : 6,700,000원(부가세 포함)

구조계산 설계비 : 6,700,000원(부가세 포함) *2017년 12월 1일 자부터 의무시행

인테리어 설계비 : 6,700,000원(부가세 포함)

*건축비 외 부대비용 : 대지구입비, 가구(싱크대, 신발장, 붙박이장), 기반시설 인입(수도, 전기, 가스 등), 토목공사, 조경비 등


SPEC

공법 : 기초-철근콘크리트 / 1층, 2층, 다락-경량 목구조

지붕마감재 : 아스팔트 슁글

외벽 마감재 : 스타코플렉스

외벽포인트자재 : 루나우드, 파벽돌, 인조석

실내벽마감재 : 실크벽지

실내바닥마감재 : 강마루

창호재 : 미국식+독일식 3중 시스템창호(위치에 따라 방식 적용)

단열재 : 외부벽체(Glasswool Insulation R21HD-나등급)

▷크나우프社 ECOBATT (ECOSE® 특허)

▷HD:저에너지 하우스용 / 15인치(381mm) *동등 제품

: 내부벽체(Glasswool Insulation R19-다등급)

: 천장(Glasswool Insulation R30-다등급)

: 지붕(Glasswool Insulation R37-가등급) ▷ISOVER社에너지 세이버

*단열기준은 2016년 7월 1일 자로 변경되는 단열기준법을 적용하여 강화시켜 놓았습니다.



설계 사례 링크 : http://hometrio.kr/portfolio-item/hd67046/

56-대전 주택-야경.jpg
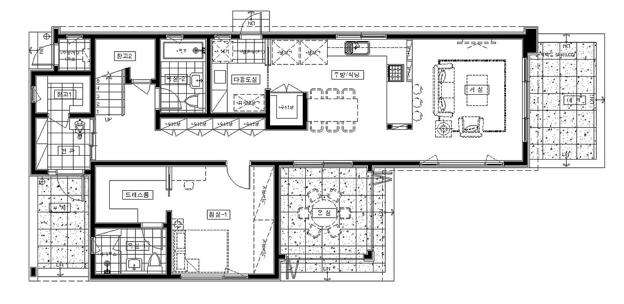
사본 -1층 평면도.jpg 1층 평면도
사본 -2층 평면도.jpg 2층 평면도
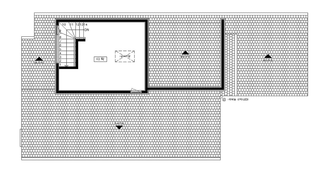
사본 -다락 평면도.jpg 다락 평면도
입면 전체.jpg

Q. 설계 방향에 대해 설명해주세요.

이번 설계 방향의 테마는 '숲과 호흡하는 집'입니다.

자연이라는 테마로 집을 설계 스타트하였습니다. 조경이 앞 뒤로 진행되고 나면 아마 숲 속에 지어진 집의 느낌을 듬뿍 풍기게 될 것입니다^^

공간 자체는 낭비되는 데드 스페이스 없이 알찬 요소들로 꽉꽉 채워 넣어주었으며, 거실 및 주방의 공용공간들은 개방감을 느낄 수 있도록 최대한 오픈되면서 밝은 공간으로 설계하였습니다.


Q. 면적은 얼마나 되는가요?

총 67평(222.39㎡)으로 설계된 주택입니다. 1층 122.55㎡, 2층 74.64㎡, 다락 25.20㎡로 구성되었습니다.

다락까지 포함하면 방은 총 5개가 구성되었으며, 화장실은 3개가 구성되었습니다.

보통 60평 이상 주택에서는 위와 같은 구성으로 실들이 배치되며, 2층에 큰 거실이 들어가냐 안 들어가냐에 따라 방의 개수는 1개가 줄어들 수 있습니다.^^


Q. 비용은 얼마가 들었나요?

건축비의 경우 424,100,000원이 소요될 것으로 예상됩니다. 부가세가 포함된 가격이며, 순수한 건축비입니다.

설계비 10,050,000원, 인허가비 6,700,000원, 구조계산 설계비 6,700,000원, 인테리어 설계비 6,700,000원이 소요되었습니다.


Q. 내진설계 적용이 되어있나요?

2017년 12월 1일 자로 모든 건물에 대해서 내진 구조검토가 필수로 이루어지게 되었습니다.

현 월간 홈트리오 기획안은 내진보강이 이루어진 설계안입니다.^^


Q. 위 설계에서 변경이 가능한가요?

당연히 가능합니다. 월간 홈트리오의 설계는 기획설계이며, 꼭 똑같이 지어야 할 이유는 없습니다.^^

건축주님의 땅에 맞게 다시 설계를 진행해 드리므로 너무 걱정하시지 않으셔도 됩니다.


Q. 상담을 받고 싶은데 상담료가 있나요?

그렇지 않습니다. 저희들 회사가 판교에 있습니다. 아래의 전화번호로 미리 일주일 전에 예약하신 후 방문해주시면 되시며, 별도의 상담료를 받지 않고 있습니다.(계약 전 출장 방문상담은 50만 원의 출장비가 있습니다.)

홈트리오 대표번호 : 1522-4279


Q. 마지막 총평을 한다면?

모던 스타일의 전원주택이 가질 수 있는 장점은 모두 가져가면서 탄생한 주택이랍니다.^^

간결한 선, 거기에 무게감 있는 매스, 마지막으로 환한 햇살을 가득 품을 수 있는 배치와 창문 계획.

저희가 완공 촬영을 하는 내내 주변 주민분들께서 어디서 지었느냐? 누가 설계했느냐? 등등을 물어보셨는데요. 저희 홈트리오의 브랜드 이름값이 아깝지 않도록 마무리까지 잘 하여 입주하실 수 있도록 도와드리겠습니다.

감사하고 또 감사하고 이렇게 멋진 주택을 지을 수 있게 전폭적인 지지를 해 주신 건축주님께 감사인사를 드립니다.^^


hc005__MG_6229.jpg
hc005__MG_6031.jpg
hc005__MG_6036.jpg
hc005__MG_6037.jpg
hc005__MG_6038.jpg
hc005__MG_6040.jpg
hc005__MG_6044.jpg
hc005__MG_6047.jpg
hc005__MG_6048.jpg
hc005__MG_6049.jpg
hc005__MG_6051.jpg
hc005__MG_6061.jpg
hc005__MG_6062.jpg
hc005__MG_6100.jpg
hc005__MG_6102.jpg
hc005__MG_6104.jpg
hc005__MG_6132.jpg
hc005__MG_6133.jpg
hc005__MG_6135.jpg
hc005__MG_6136.jpg
hc005__MG_6137.jpg
hc005__MG_6138.jpg
hc005__MG_6139.jpg
hc005__MG_6141.jpg
hc005__MG_6142.jpg
hc005__MG_6145.jpg
hc005__MG_6146.jpg
hc005__MG_6147.jpg
hc005__MG_6148.jpg
hc005__MG_6149.jpg
hc005__MG_6150.jpg
hc005__MG_6151.jpg
hc005__MG_6152.jpg
hc005__MG_6154.jpg
hc005__MG_6155.jpg
hc005__MG_6156.jpg
hc005__MG_6157.jpg
hc005__MG_6158.jpg
hc005__MG_6128.jpg
hc005__MG_6159.jpg
hc005__MG_6160.jpg
hc005__MG_6162.jpg
hc005__MG_6163.jpg
hc005__MG_6164.jpg
hc005__MG_6165.jpg
hc005__MG_6166.jpg
hc005__MG_6167.jpg
hc005__MG_6168.jpg
hc005__MG_6169.jpg
hc005__MG_6170.jpg
hc005__MG_6171.jpg
hc005__MG_6172.jpg
hc005__MG_6173.jpg
hc005__MG_6174.jpg
hc005__MG_6175.jpg
hc005__MG_6176.jpg
hc005__MG_6177.jpg
hc005__MG_6179.jpg
hc005__MG_6180.jpg
hc005__MG_6181.jpg
hc005__MG_6182.jpg
hc005__MG_6184.jpg
hc005__MG_6186.jpg
hc005__MG_6187.jpg
hc005__MG_6188.jpg
hc005__MG_6190.jpg
hc005__MG_6191.jpg
hc005__MG_6193.jpg
hc005__MG_6194.jpg
hc005__MG_6195.jpg
hc005__MG_6196.jpg
hc005__MG_6198.jpg
hc005__MG_6201.jpg
hc005__MG_6202.jpg
hc005__MG_6204.jpg
hc005__MG_6205.jpg
hc005__MG_6206.jpg
hc005__MG_6207.jpg
hc005__MG_6209.jpg
hc005__MG_6210.jpg
hc005__MG_6213.jpg
hc005__MG_6216.jpg
hc005__MG_6217.jpg
hc005__MG_6221.jpg
hc005__MG_6225.jpg
hc005__MG_6226.jpg
hc005__MG_6230.jpg
hc005__MG_6231.jpg
hc005__MG_6233.jpg
hc005__MG_6234.jpg
hc005__MG_6235.jpg
hc005_DJI_0082.jpg
hc005_DJI_0086.jpg
hc005__MG_6099.jpg (좌측부터)이동혁 건축가, 임성재 건축가, 정다운 건축가


도착


대전 서구 관저동 '파크힐즈' 단지 내 저희 홈트리오 주택이 완공되었네요. 뿌듯함을 넘어 감동이랍니다.^^

저희 홈트리오를 사랑해주시는 이유가 젊은 디자인과 실용적인 공간 구성이라 생각합니다. 젊은 감성을 넣기 위해서 정말 많은 공부와 노력을 하는데요. 이렇게 결과물 자체가 모두가 인정해 줄 수 있는 주택으로 나오니 저희 셋이 껴안고 감격의 눈물을 흘렸답니다.ㅠㅠ

대전에서 정말 많은 주택 문의가 오고 있습니다. 아마 전국에서도 손에 꼽힐 만큼 전원주택 집 짓기에 대한 열풍이 가장 활발한 곳이기 때문일 것입니다.

내년 봄 공사를 준비하고 계신 분들이 많은데 이제는 시간이 많이 남지 않았습니다. 저희 계약 건축주님들의 경우 이미 올 8월부터 설계를 스타트했답니다.

최소 6개월 전에는 스타트해야 부지정리와 설계를 정리하면서 차분히 갈 수 있습니다. 내년 봄 공사는 3월 초부터 진행됩니다. 거의 시작을 할 수 있는 마지노선까지 와 있기 때문에 아직고 고민만 하시고 시작을 못하신 분들은 서둘러서 진행하시길 바라겠습니다.

오늘 완공 주택 소개는 여기까지 입니다. 항상 젊은 감성과 실용적인 공간설계로 여러분들에게 멋지고 좋은 주택 설계로 계속해서 찾아뵙도록 하겠습니다.

감사합니다.^^

*읽고 난 다음에는 위의 하트 모양 라이 킷과 공유 꾹 눌러주세요~^^


(좌측부터) 정다운 건축가, 임성재 건축가, 이동혁 건축가

[집이라는 본질적인 가치에 집중하다.]

Architecture Team : 홈트리오(주)

대표번호 : 1522-4279

홈페이지 : http://hometrio.kr/

설계 사례(홈페이지) : http://hometrio.kr/designcase/



글쓴이 : 이동혁 건축가

이메일 : sunsutu@hanmail.net

책 : '따뜻한 전원주택을 꿈꾸다' 저자(http://www.yes24.com/24/goods/40516450?scode=029) / '꿈꾸던 전원주택을 짓다' 저자(http://www.yes24.com/24/goods/61175737?scode=029)

이동혁 건축가 TV : http://tv.naver.com/sunsutu1


상담 및 자문[HOMETRIO 건축가]

이동혁 건축가 : 010-4567-8413

정다운 건축가 : 010-8560-0477

임성재 건축가 : 010-9941-8899




[네이버 TV - 이동혁 건축가 TV]

*글 읽기가 어렵나요? 그럼 이제부터는 영상으로 확인하세요.^^


1. 내 집 짓기의 시작-인트로 : http://tv.naver.com/v/1429784

2. 전원주택 짓기 1차 강연 영상 : http://tv.naver.com/v/1431765

3. 성공의 정석 '꾼' 이동혁 대표 : http://tv.naver.com/v/1434375

4. 전원주택 공법. 무엇으로 지으면 좋을까요? : http://tv.naver.com/v/1436122

5. 전원주택 짓기. 예산 잡는 법! : http://tv.naver.com/v/1446575

6. 전원주택. 왜 품질에 대해 말이 많을까? : http://tv.naver.com/v/1451485

7. 내 집짓기. 언제부터 준비해야 할까요? : http://tv.naver.com/v/1473650

8. 내 땅에 몇 평까지 집을 지을 수 있나요? : http://tv.naver.com/v/1473658

9. 전원주택 지방은 공사비가 더 비싸나요? : http://tv.naver.com/v/1479534

10. 전원주택 AS는 어떻게 진행되고 몇 년까지 보증되나요? : http://tv.naver.com/v/1479537

11. 전원주택 단층과 2층으로 지을 때 비용 차이가 많이 있나요? : http://tv.naver.com/v/1479547

12. 전원주택 성토한 땅에 바로 시공할 수 있나요? : http://tv.naver.com/v/1479558

13. 강화도 이강리 전원주택. 오픈하우스 현장 : http://tv.naver.com/v/1497662

14. 전원주택에 스타코플렉스를 왜 사용하나요? : http://tv.naver.com/v/1599468

15. 전원주택 데크에 대해 알려주세요. : http://tv.naver.com/v/1599480

16. 집짓기 착공 전 준비사항은 어떻게 되나요? : http://tv.naver.com/v/1599505

17. 목조주택에서 가장 많이 나는 하자와 그 빈도는? : http://tv.naver.com/v/1672388

18. 조영구 트렌드 핫이슈. 전원주택 쇼핑몰 : http://tv.naver.com/v/1682435

19. 전원주택 계약 시 속지 않기 위한 방법은? : http://tv.naver.com/v/1684870

20. 전원주택 추가 공사 왜 공사 전에 미리 말하지 않나요? : http://tv.naver.com/v/1688493

21. 강화마루, 강마루, 장판 무엇이 좋나요? : http://tv.naver.com/v/1692136

22. 목조 공법으로도 3층 이상으로 높게 지을 수 있나요? : http://tv.naver.com/v/1698287

23. 목조주택 2층에 시멘트 방통 시공. 목조에 부담을 주지 않나요? : http://tv.naver.com/v/1701955

24. 전원주택 바닥 방통 없이 난방을 할 수 있는 방법이 있나요? : http://tv.naver.com/v/1728947

25. 2억 4천만 원. 경기 광주 전원주택을 소개합니다. : http://tv.naver.com/v/1732431

26. 전원주택. 철근콘크리트가 목조보다 더 튼튼할 텐데도 목조로 집을 짓는 이유가 있나요? : http://tv.naver.com/v/1735979

27. 내 땅에 흙을 마음대로 받아도 되나요? : http://tv.naver.com/v/1739333

28. 지진이 늘어나는데 중목이 아닌 경량 목구조는 약하지 않나요? : http://tv.naver.com/v/1743684

29. 땅이 낮아 성토하고 싶어요. 절차가 어떻게 되나요? : http://tv.naver.com/v/1746299

30. 전원주택. 여름 공사와 겨울 공사 단점은 어떤 게 있을까요? : http://tv.naver.com/v/1759345

31. 전원주택 회사. 정말 안전한 업체인지 확인하고 싶어요. : http://tv.naver.com/v/1766577

32. 목조주택이 몸에 좋다는데 어차피 본드나 벽지도 바르지 않나요? : http://tv.naver.com/v/1817543

33. 전원주택 브랜드 업체들의 이윤이 너무 높지 않나요? : http://tv.naver.com/v/1834510

34. 전원주택 땅을 살려는데 종류가 너무 많아요. 혹시 집을 지을 수 없는 땅도 있나요? : http://tv.naver.com/v/1862326

35. 사람들이 목조주택을 짓게 되는 계기가 있을까요? : http://tv.naver.com/v/1866671

36. 건설업체가 안전한 업체인지 알아보는 법! : http://tv.naver.com/v/1918266

37. 미국식 창호와 독일식 창호의 차이 : http://tv.naver.com/v/1934487

38. 하자이행보증증권에 대해 알아보자 : http://tv.naver.com/v/2011225

39. 제주도에 집 지을 때 주의해야 할 점 : http://tv.naver.com/v/2011251

40. 월간 홈트리오 4월호-NEW 농가주택 표준설계도 : https://www.youtube.com/watch?v=WwZjpLNUiwI&t=273s

41. 월간 홈트리오 4월호②-꿈꾸던 다락방을 갖다 : https://www.youtube.com/watch?v=r1fyjlp4N5Q&t=129s