30평 3인 가족을 위한 행복집(젊은 전원주택 트렌드)

월간 홈트리오 3월호 ②

by 이동혁 건축가

3월호② - 30평 3인 가족을 위한 행복 집


STORY

: 어느 날인가 상담을 진행하고 있는데 건축주님이 이런 말을 하는 거예요.

"이미 3인 가족이 사회의 대부분을 차지하고 있는데 왜 전원주택은 4인 가족 기준으로만 나오는 거예요? 건축가님이 3인 가족을 위한 집 좀 설계해주세요."

이 말을 듣는 순간 솔직히 머릿속이 멍해지는 기분이었어요.

"아! 왜 당연히 전원주택을 지을 때 4인 가족이 기준이 되어야 하는 것이지?"

저도 모르게 고정관념을 벗어나라고 그렇게 이야기하고 다녔으면서 정작 제 스스로가 어느 틀 안에 갇혀 있는 상황이 벌어졌던 것입니다.

그래서 건축주님과 의기투합해서 30대의 젊은 신혼부부 층이 가성비 높은 금액대로 예쁜 집에 살 수 있는 모델을 만들어보기로 했습니다.

"일단 지나가다 보아도 깨끗하고 청초한 느낌을 주었으면 좋겠고, 당연히 유지관리가 편한 박공지붕 디자인에 모던한 느낌을 가미해 주어야겠다."

3인 가족 중심이기 때문에 방은 2개만 구성하되 자녀의 프라이버시를 위해 층간 분리를 시켜주었고, 현관을 들어섰을 때 작은 면적의 공간이다 보니 오픈 천장 옵션을 통해 개방감을 확보해 주고자 했습니다.

설계를 진행한 입장에서 솔직히 이 집의 가장 큰 장점은 건축비라고 할 수 있겠네요.

평생 이 집에서만 살면 좋겠지만 젊은 분들이기 때문에 추후 아이들의 학군에 따라서 이동할 수 있다는 점을 고려하면 이번에 제안드린 주택의 이미지가 가장 최적화된 모델이지 않을까 생각합니다.

제가 항상 드리는 말이 있죠.

"외장은 최대한 단순하게. 그리고 돈 적게 들일 것!"


#3인가족 #모던스타일 #밝은집 #행복 #오픈천장

1.jpg

SPEC

공법 : 경량 목구조

지붕마감재 : 아스팔트슁글 / 외벽 마감재 : 스타코플렉스 / 포인트자재 : 파벽돌

실내벽마감재 : 실크벽지/ 실내바닥마감재 : 강마루

창호재 : 미국식 3중 시스템창호

건축면적 : 99.51㎡(1층 : 76.85㎡, 2층 : 22.66㎡)

예상 총 건축비 : 163,000,000원(부가세 포함, 산재보험료 포함 / 설계비, 인허가비, 구조계산 설계비 별도)

설계비 : 4,500,000원(부가세 포함) / 인허가비 : 3,000,000원(부가세 포함)

구조계산 설계비 : 3,000,000원(부가세 포함) / 인테리어 설계비 : 3,000,000원(부가세 포함)

*건축비 외 부대비용 : 대지구입비, 가구(싱크대, 신발장, 붙박이장), 기반시설 인입(수도, 전기, 가스 등), 토목공사, 조경비 등

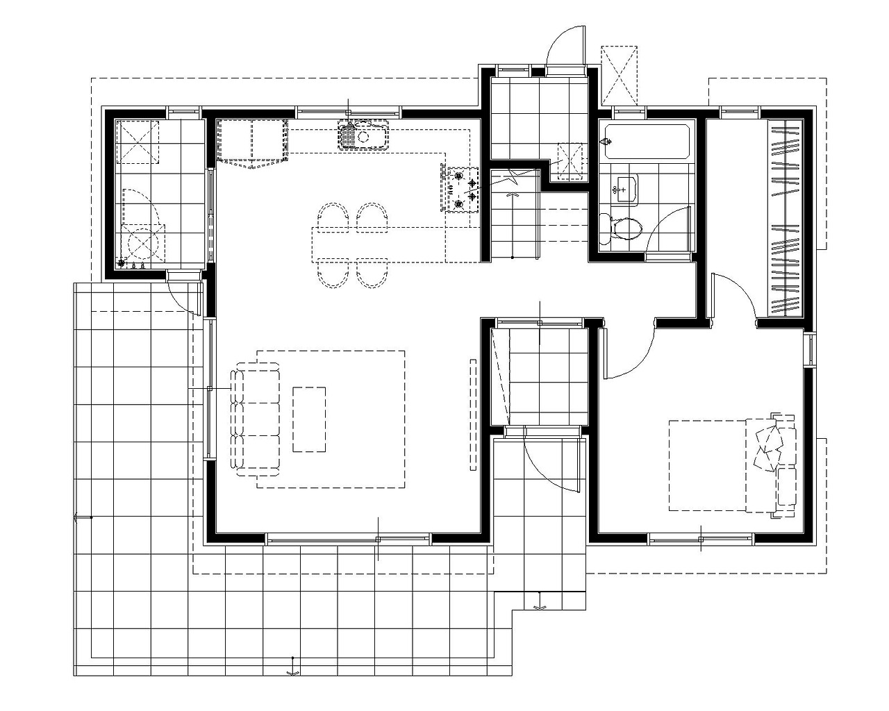
1층 평면도
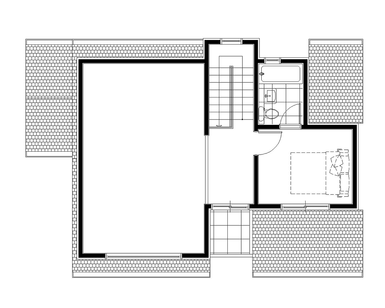
2층 평면도

이동혁 건축가 : 포인트 부분을 자재시키고 지붕의 경사 디자인만으로 독특한 느낌을 구현하게 설계하였어요. 이렇게 할 경우 외장재에 들어가는 포인트 비용이 현저히 줄어들게 되어 남은 비용들을 가구 및 가전제품을 구입하는데 활요할 수 있답니다.

임성재 건축가 : 작은 평수이기 때문에 거실 주방이 답답할 염려가 있었어요. 그래서 1.5층 오픈 천장을 적용해 현관에서 진입했을 때 넓은 개방감을 느낄 수 있게 설계했습니다.

정다운 건축가 : 3인 가족을 위한 주택 설계는 솔직히 전무한 상태였어요. 항상 4인 가족 기준으로만 집이 설계되었었거든요. 이번 모델을 개발하면서 3인 가족에 특화된 평면이 만들어졌고 그에 따라 가성비 높은 금액으로 외관 다지인까지 만들어 냈답니다.