52평 도심형 단독주택을 짓다(젊은 전원주택 트렌드)

월간 홈트리오 5월호 ①

by 이동혁 건축가

5장. 도심에 짓는 단독주택


"여보 층간소음 때문에 죽겠어"

"아 또 뛰나 봐. 어떻게 좀 해봐"


아파트의 가장 큰 문제점 중의 하나가 바로 층간소음이죠. 다른 건 다 몰라도 회사에서 받는 스트레스는 집에서까지 받으니 정말 죽을 지경이에요.


저녁과 주말에는 정말 조용하게 지내고 싶은데.

"여보, 이참에 땅 사서 집 지을까?"


5월호① - 52평 도심형 단독주택을 짓다


STORY

: 조물주 위에 건물주라고 했던가요?

어느 순간 내 건물을 가진다는 것이 꿈이 되어버린 세상이 되어버렸네요.

막연한 집짓기. 어디서부터 시작해야 될지도 모르겠는데 아파트는 싫고, 특별한 목적보다는 우리 가족이 따뜻하게 비 안 새는 집에서 살고 싶은 꿈을 어느 순간 모든 분들이 꾸게 되신 것 같습니다.

작년에 한 방송사에서 서울의 자투리 땅에 협소 주택을 지어 살고 있는 한 가정을 방송하면서 갑자기 도심에 단독주택을 지어 살겠다는 수요가 몰린적이 있습니다.

협소 주택, 땅콩주택 등 이름도 다양하게 이러한 수요들을 반영한 주택들이 탄생하기 시작했는데요. 아무래도 남아있는 자투리 땅에 집을 지어야 하는 문제이다 보니 설계를 어떻게 하느냐에 따라 이 집에 대한 평가가 엇갈리기 시작한 것 같습니다.

자투리 땅이 네모 반듯하게 있을 거라는 생각은 처음부터 버리시는 것이 좋습니다. 말 그대로 자투리 땅이기 때문에 땅은 못생긴 것이 어찌 보면 정상입니다.

특히 사각형으로 분할한 나머지 부분을 자투리 땅으로 구매하시는 분들이 많다 보니 압도적으로 삼각형 모양의 땅이 많이 발생되었고 저희한테 상담 들어오는 내용들도 80% 이상 삼각형 땅이었습니다.

넓고 반듯한 땅에서 짓는 전원주택과 달리 협소한 땅에 짓는 단독주택은 말 그대로 설계의 시작점이 완전히 다릅니다. 내가 원하는 공간을 먼저 구성하는 것이 아닌 땅에 걸려있는 법규를 먼저 해석하고 법적인 제한 테두리를 잘라내고 그 남은 공간에서 주차공간과 계단실, 그리고 실 등을 구성해 나가야 합니다.

가장 애매하게 생각하는 부분이 어쩔 수 없는 삼각형 꼭지 부분인데요. 저희들은 이 부분을 다용도실 및 발코니 등으로 활용하면서 문제가 될 수 있는 부분들을 하나씩 해결해 나갔답니다.

"도심에 자투리 땅을 이용해 우리 가족만의 집을 짓고자 하시나요?"
이번 월간 홈트리오 5월호 첫 번째 모델 눈여겨봐주시길 바랍니다.


#단독주택 #나만의집 #부러움 #건물주 #개인주차장

1.jpg

공법 : 경량 목구조

지붕마감재 : 리얼징크 / 외벽 마감재 : 청고벽돌 / 포인트자재 : 루나우드

실내벽마감재 : 실크벽지/ 실내바닥마감재 : 강마루

창호재 : 미국식 3중 시스템창호

건축면적 : 170.21㎡(1층 : 21.21㎡, 2층 : 75.04㎡, 3층 : 73.96㎡)

예상 총 건축비 : 410,000,000원(부가세 포함, 산재보험료 포함 / 설계비, 인허가비, 구조계산 설계비 별도)

설계비 : 7,800,000원(부가세 포함) / 인허가비 : 5,200,000원(부가세 포함)

구조계산 설계비 : 5,200,000원(부가세 포함) / 인테리어 설계비 : 5,200,000원(부가세 포함)

*건축비 외 부대비용 : 대지구입비, 가구(싱크대, 신발장, 붙박이장), 기반시설 인입(수도, 전기, 가스 등), 토목공사, 조경비 등

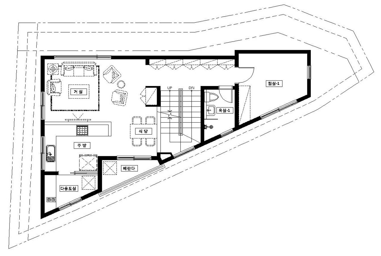
1층 평면도
2층 평면도
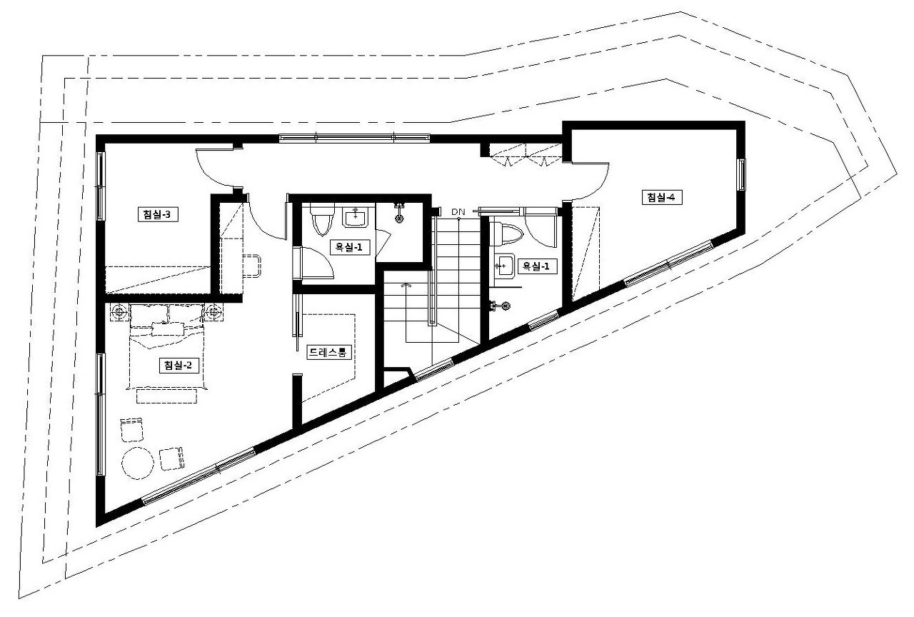
3층 평면도

이동혁 건축가 : 도심형 단독주택의 정석과도 같은 설계라고 할 수 있어요. 삼각형 자투리 땅에 주차장과 4인 가족이 생활하기에 충분한 공간을 만들어 낸다는 것. 어찌 보면 어려운 일일 수도 있긴 하지만 이번 모델처럼 땅에 맞는 설계를 진행한다면 생각지도 못한 멋진 집이 만들어질 거예요.

임성재 건축가 : 1층 공간에 대한 고민이 정말 많았습니다. 어떠한 공간으로 채워 넣을까? 저희 셋이 고민한 끝에 주차대수를 1대 더 늘려 2대를 세울 수 있게 하고 2층은 공용공간으로 3층은 방이 위주인 개인 공간으로 구성하기로 했어요.

정다운 건축가 : 삼각형 땅이기 때문에 공간을 어떻게 나누어 줄 것이냐가 가장 관건이었습니다. 결국에 공간은 사각형 안에 들어가야 되기 때문에 삼각형 나머지 공간들을 방이 아닌 다용도실과 베란다, 그리고 드레스룸 같은 공간으로 배치하여 낭비되는 공간 없이 모든 공간을 찾아먹을 수 있게 설계한 주택입니다.



"집이라는 본질적인 가치를 추구합니다." Design by 홈트리오(주)

keyword