brunch

56평 북유럽의 정취를 닮다(젊은 전원주택 트렌드)

월간 홈트리오 5월호 ③

by 이동혁 건축가

5월호③ - 56평 북유럽의 정취를 닮다


STORY

: 한국만이 가지는 건축 스타일? 어떤 것들이 있을까요?

한국 하면 떠오르는 이미지. 이 질문을 하면 백이면 백 한옥을 이야기할 것입니다. 하지만 전통 한옥을 쉽게 접할 수 있는 시대일까요? 답은 이미 알고 계시겠지만 'NO'가 답이겠지요. 한옥이 대표적인 한국 전통 주택의 양식이지만 쉽게 접하기는 어렵고 오히려 관광지인 한옥마을 가야지만 그 숨결을 느낄 수 있는 시대가 되어버린 지 오래입니다. 그렇다고 80~90년대를 주름잡았단 획일적인 단독주택을 대표적인 이미지로 꼽기에도 문제가 많이 있죠.

2019년 현재 집이란 이미지는 우리에게 있어서는 정말 다양하게 다가오는 시대가 되어버렸습니다. 어떠한 특정 이미지만을 집이라 부르는 것이 아닌 그동안 국내에 없었던 이국적인 이미지도 한국식에 맞게 변형되어 그 나름대로의 랜드마크적인 의미를 부여하고 있는 것이죠.

그나마 국내에서 이국적인 주택 이미지를 이야기했을 때 친근하게 다가오고 많이 접해본 이미지는 주황빛 기와가 올라간 북유럽식 주택일 것입니다. 경상도에 있는 독일마을처럼 전 마을이 통일된 이미지로 아름답게 이국적 단지를 형성시킬 수 있는데요. 모던 스타일은 조금 차갑고 조금은 따뜻하고 무게감 있는 집을 원하시는 분이라면 저는 스페니쉬 기와가 올라간 북유럽식 주택을 권해드리고 싶습니다.

정통 북유럽 전원주택을 설계하기 위해서는 다른 무엇보다도 색감과 라운드 져지는 기둥과 입구 부분이 핵심이라 할 수 있습니다. 또 하나의 포인트는 창문과 창문 옆에 붙어있는 나무문인데 한국에서는 단열적인 부분 때문에 시스템창호를 적용하다 보니 이 부분은 어찌 보면 한국시장에 맞게 조금 변형이 된 부분이라 할 수 있겠네요.

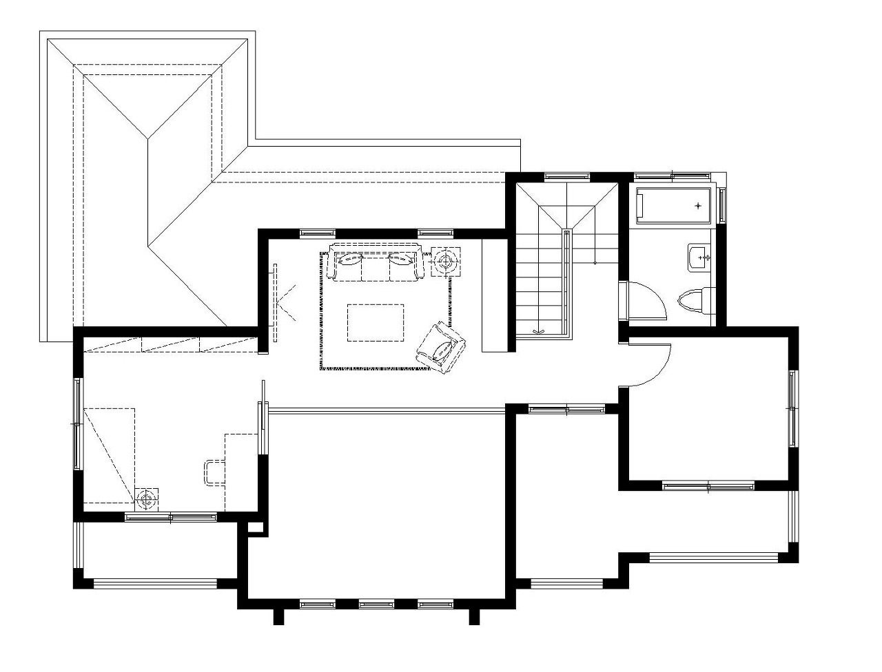
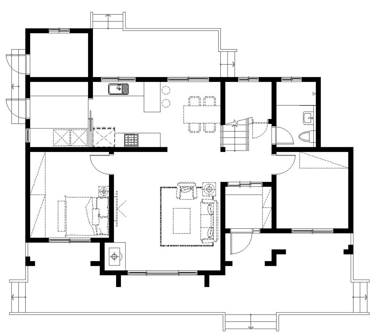
이번 주택을 설계하고 기획할 때 가족 구성원을 6인 가족으로 생각하고 시작했습니다. 부부와 두 자녀, 그리고 할머니, 할아버지 총 3대가 같이 거주한다는 가정하에 프로젝트를 진행하였고 실제 홍천에 똑같이 지은 주택이 완공되기도 했습니다.

오픈 천장이라는 옵션을 적용해 거실 부분의 층고가 2층까지 오픈되게 디자인하였는데요. 다들 아시겠지만 시각적인 개방감은 극대화되지만 반대로 겨울에는 그 공간을 데우는데 시간이 오래 걸리기 때문에 벽난로는 필수로 계획되어야 한답니다.

북유럽의 감성을 집에 담는 일. 그리고 그것을 현실화시키는 일. 어려운 일이지만 한국 환경에 맞는 북유럽식 전원주택을 짓는다는 것. 저희들만의 해석으로 완성된 모델이지만 여러분들의 행복한 첫 전원생활에 충분한 만족감을 줄 수 있는 집으로 선택되었으면 합니다.


#기와집 #스페니쉬기와 #테릴기와 #북유럽 #고급주택

1.jpg

공법 : 경량 목구조

지붕마감재 : 스페니쉬기와 / 외벽 마감재 : 스타코플렉스 / 포인트자재 : 파벽돌

실내벽마감재 : 실크벽지/ 실내바닥마감재 : 강마루

창호재 : 미국식 3중 시스템창호

건축면적 : 185.06㎡(1층 : 113.99㎡, 2층 : 71.07㎡)

예상 총 건축비 : 338,500,000원(부가세 포함, 산재보험료 포함 / 설계비, 인허가비, 구조계산 설계비 별도)

설계비 : 8,250,000원(부가세 포함) / 인허가비 : 5,500,000원(부가세 포함)

구조계산 설계비 : 5,500,000원(부가세 포함) / 인테리어 설계비 : 5,500,000원(부가세 포함)

*건축비 외 부대비용 : 대지구입비, 가구(싱크대, 신발장, 붙박이장), 기반시설 인입(수도, 전기, 가스 등), 토목공사, 조경비 등

1층 평면도
2층 평면도

이동혁 건축가 : '고즈넉하다'라는 단어가 어울리는 주택은 주황빛 기와가 올라간 북유럽 스타일의 전원주택인 것 같습니다. 언제 보아도 그 자리에 있을듯한 든든함과 이국적인 느낌의 분위기가 가져다주는 감성적인 부분. 조금은 안정감 있고 무게감 있는 주택을 원하신다면 스페니쉬 기와가 올라간 북유럽식 전원주택을 한번 지어보시는 것이 어떨지 조심스럽게 추천드려봅니다.

임성재 건축가 : 발코니의 경우 1층에 내려오지 않더라도 외부의 환경을 내 몸으로 맞이할 수 있는 유일한 공간이에요. 창문을 열고 바람을 쐬는 것과 완전히 밖으로 나가 발코니에서 외부 환경과 바람을 맞는 느낌은 완전히 틀리거든요. 너무 넓게 할 필요는 없지만 기회가 되신다면 2층에 발코니를 조금이라도 만들어 보시는 것이 어떨지 제안드려봅니다.

정다운 건축가 : 2층의 가족실은 또 다른 멀티룸이라고 할 수 있습니다. 단순히 잠만 자는 공간들에서 다양한 활동을 같이 겸할 수 있는 공간을 넣어준 것인데요. 1층은 공용공간으로서 역할이 더 크기 때문에 개인적인 취미 활동을 동행하기가 어려운 부분들이 있습니다. 하지만 2층의 경우 프라이버시가 지켜지는 공간이기 때문에 이번 모델처럼 아이들 방 사이에 단순히 복도가 아닌 가족실을 구성해준다면 1층에서 누리지 못했던 또 다른 라이프스타일의 요소들을 새롭게 창출해 낼 수 있을 거라 생각합니다.


"집이라는 본질적인 가치를 추구합니다." Design by 홈트리오(주)

keyword