brunch

39평 알프스의 감성을 담다(젊은 전원주택 트렌드)

월간 홈트리오 8월호 ③

by 이동혁 건축가

8월호③ - 39평 알프스의 감성을 담다


STORY

: 도심을 벗어나 한적한 숲 속으로 들어간다는 것.

어찌 보면 복잡한 생활을 탈피하고 조용히 혼자만의 시간을 즐기는 시간이라 할 수 있습니다.

도심에 짓는 집을 전원주택이라고 하지는 않죠. 도시에 있는 땅의 경우 땅 값이 워낙 비싸기 때문에 그 땅에 조그마한 나만의 집을 짓는다는 것은 오히려 낭비일 수도 있습니다.

작고 조용하고 아담한 나와 아내만을 위한 집. 그러한 집은 도심을 벗어나 한적한 시골로 들어와야지만 가능한 부분이겠죠.

솔직히 도심을 벗어난다는 것은 많은 편의성을 버리는 것과 같습니다. 서울의 경우 차로 10분만 움직여도 백화점부터 터미널, 시장, 마트 등이 모두 존재하죠. 하지만 전원생활을 시작하면 마트에 가기 위해 20분 이상 차로 나와야 하는 경우도 발생합니다.

그래도 도심에서는 느낄 수 없는 그 무언가. 그 무언가를 가지기 위해 전원생활에 도전하는 것 같습니다.

은퇴 후 아내와 나만 살 집이 그렇게 클 필요는 없습니다.

30평대의 단층으로 집을 짓고 아이들이 놀러 왔을 때 쉬다 갈 수 있는 작은 다락방이면 충분할 거예요.

100세 시대이다 보니 늙어가는 느낌을 내고 싶지는 않아요.

집도 넓게 그리고 인테리어도 젊게 하고 싶습니다.

해외여행을 다녀오면서 이국적인 느낌의 집들을 정말 많이 보았어요. 보고만 있어도 힐링이 되는 그러한 집들.

특별한 디자인이 있는 것은 아니지만 무언가 저 집에 살면 행복할 것만 같은 기분이 드는 집.

그러한 집을 원합니다.

포근한 감성과 이국적인 풍경이 집과 잘 어우러지는 그러한 주택.

그동안 꿈꿔왔던 그러한 꿈속의 집을 지금 선보입니다.


#알프스 #감성충만 #우리집 #꿈속의집 #단층전원주택

공법 : 경량 목구조

지붕마감재 : 아스팔트슁글 / 외벽 마감재 : 스타코플렉스 / 포인트자재 : 리얼징크, 루나우드, 파벽돌

실내벽마감재 : 실크벽지/ 실내바닥마감재 : 강마루

창호재 : 미국식 3중 시스템창호

건축면적 : 128.78㎡(1층 : 114.56㎡, 다락 : 14.22㎡)

예상 총 건축비 : 210,000,000원(부가세 포함, 산재보험료 포함 / 설계비, 인허가비, 구조계산 설계비 별도)

설계비 : 5,800,000원(부가세 포함) / 인허가비 : 3,900,000원(부가세 포함)

구조계산 설계비 : 3,900,000원(부가세 포함) / 인테리어 설계비 : 3,900,000원(부가세 포함)

*건축비 외 부대비용 : 대지구입비, 가구(싱크대, 신발장, 붙박이장), 기반시설 인입(수도, 전기, 가스 등), 토목공사, 조경비 등

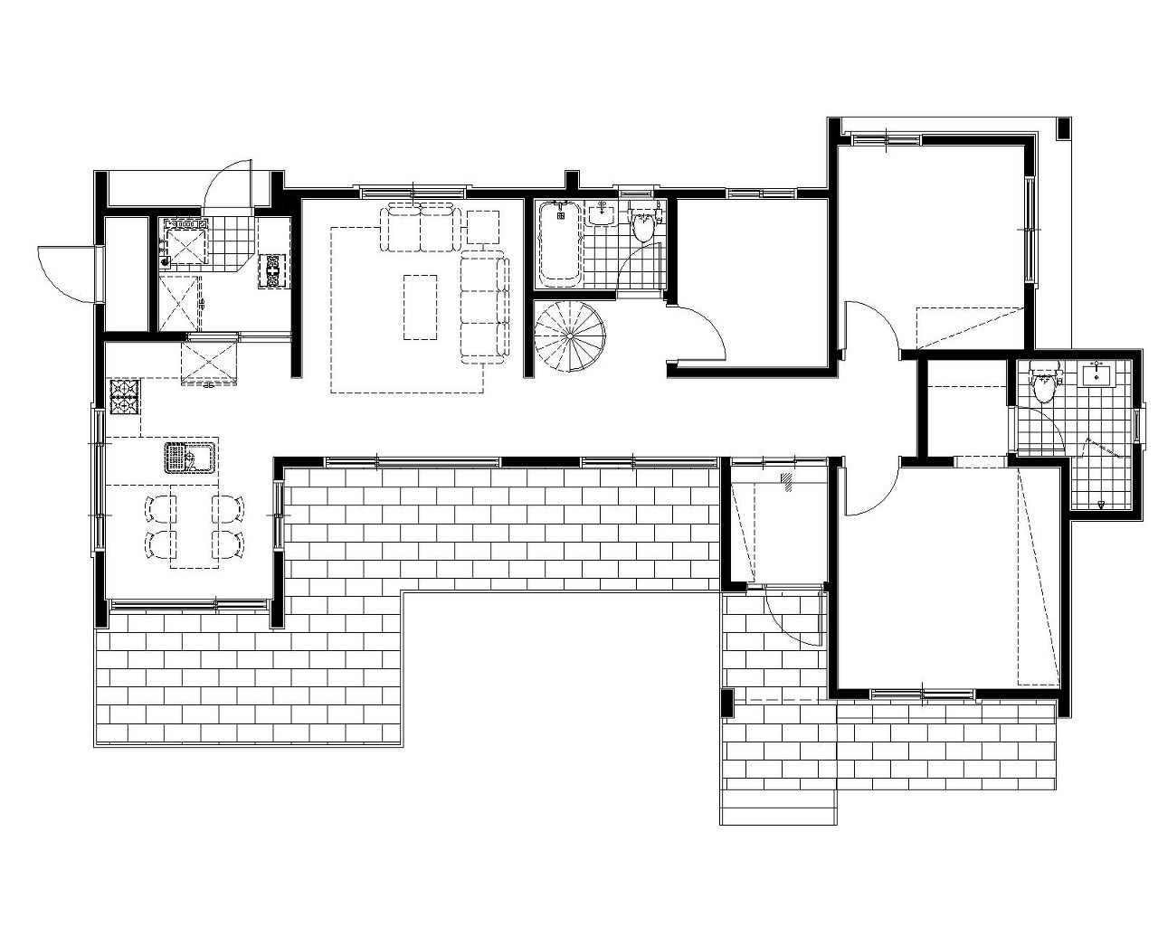
1층 평면도
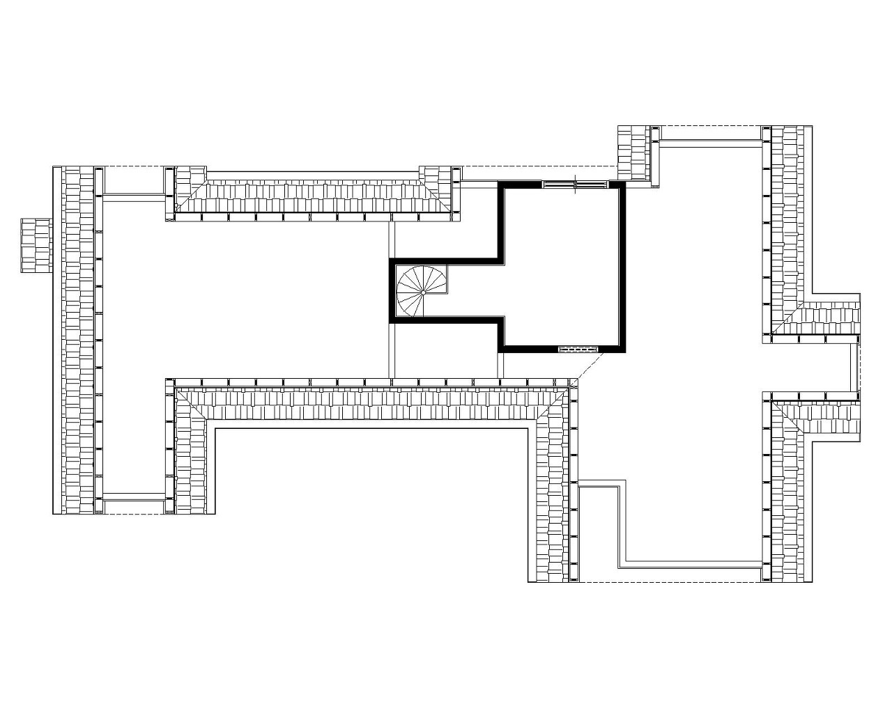
2층 평면도

이동혁 건축가 : 획일적인 배치에서 벗어나고 싶었습니다. 복도라는 매력적인 공간을 죽은 공간이 아닌 살아있는 공간으로 재 탄생시키면서 그동안 보아왔던 주택 평면에서 벗어나 새로운 느낌이 나는 설계를 진행하였습니다. 보통 집 안에 들어왔을 때 거실이라는 공간에서 각 공간들로 뿌려주는 형식이 일반적이었는데요. 이러한 아파트식 구조가 일반화되다 보니 어느 순간 모든 집들의 공간 구성이 비슷비슷하게 만들어지게 될 것 같습니다. 복도를 기준으로 각 공간별로 구획하고 전면 창을 통해 채광과 조망에 대한 부분을 해결한 주택이라 평하고 싶습니다.

임성재 건축가 : 'ㄷ'자형 주택이 흔하지는 않죠. 거실과 방을 복도라는 공간에서 구분하면서 자연스럽게 'ㄷ'자형 배치를 만들어 냈습니다. 전면부 데크를 설치하여 외부로의 동선 확장을 유도하였으며, 다락으로 올라가는 계단실 면적을 줄이기 위해 원형계단을 사용해 안정감과 자리를 적게 차지하는 부분을 만족시켜주었습니다.

정다운 건축가 : 디자인이 항상 고민이에요. 어디서 본듯한 느낌이 들지 않게 새로운 느낌을 담아낸다는 것이 정말 어려운 일입니다. 다행히 평면 자체에서 유니크한 공간이 만들어져 매스 자체에서 볼륨감을 한번 잡아주고, 박공지붕의 경사면과 디자인을 이 집만이 가지는 특징적인 부분으로 부각해 이국적인 느낌이 물씬 풍길 수 있게 완성하였습니다.


"집이라는 본질적인 가치를 추구합니다." Design by 홈트리오(주)

keyword