39평 모던과 사선지붕의 만남(젊은 전원주택 트렌드)

월간 홈트리오 10월호 ②

by 이동혁 건축가

10월호② - 39평 모던과 사선 지붕의 만남


STORY

: 우리나라는 장마시즌이 존재하죠. 다시 말하면 비가 오는 날은 분명히 있다는 것입니다.

상담 오신 분들 중 어느 분께서 이런 질문을 하셨는데요.

"홈트리오는 집 지을 때 어떤 것을 가장 중요하게 생각하세요?"

저는 단 1초도 망설임 없이 방수라고 답변드렸습니다. 집을 지을 때 중요하지 않은 부분은 존재하지 않습니다. 어느 것 하나도 무시할 수 없는 부분이지만 그중에서도 가장 중요한 부분은 바로 방수입니다.

다시 말해 비가 절대로 새서는 안 된다는 것을 뜻합니다.

인테리어나 내부적인 부분은 조금 하자가 생겨도 충분히 보완 가능합니다. 하지만 누수와 관련된 부분은 집 골조까지 다 뜯어야 하는 문제이기 때문에 처음 시공할 때 꼼꼼히 해야지 대충하고 나중에 처리하는 것은 거의 불가능에 가깝기 때문입니다.

집을 지은 후 비 안 새고 따듯하면 80%는 집 잘 지었다는 말이 나옵니다. 대부분 이 기본적인 조건을 만족하지 못하기 때문에 집 잘못 지었다고 이야기하는 것입니다.

예뻐 보이기 위해서, 또는 옥상을 활용하기 위해서 지붕 없는 면적을 만드시는 분들이 계신데 저희들은 확실하게 말씀드릴 수 있습니다.

"언젠가는 비 새는 것 때문에 골치 아프실 거예요."

건설회사에서 보증하는 AS 기간은 2년입니다. 그 이후에는 유상으로 AS가 진행됩니다. 어느 건설업체든지 간에 이 조건은 똑같습니다.

집을 짓는다는 것에는 추후 손이 덜 가게, 다시 말하면 유지보수가 편하고 문제가 안 생기게 짓는 것이 최고입니다.

집은 방수와 단열. 이 두 가지가 핵심이라는 것을 명심하세요.

박공지붕이나 지붕면이 드러나는 디자인은 촌스러움이 동반한다고 생각하시는데 어찌 보면 그것은 그동안 지어져 왔던 시골 스타일의 집들때문일꺼에요. 하지만 지붕이야말로 디자인하게 딱 좋은 부분이랍니다.

이번 모델처럼 외쪽지붕의 경사면의 방향만 달리해도 전혀 다른 느낌의 외관을 느낄 수 있으며, 클래식이 아닌 모던 스타일의 군더더기 없는 집을 탄생시킬 수 있습니다.

외부 마감재를 선택할 때 저희들은 최대한 비우고 덜어내려고 고민합니다. 비싼 외장재를 붙인다고 하여 집이 고급이 되는 것이 아님을 너무 잘 알기 때문입니다.

비워낸 후 그 비워진 부분에 조금의 포인트를 넣어야 포인트 부분이 빛나는 것이지 포인트로 전 집을 디자인한다면 그것은 더 이상 포인트라 부를 수 없게 됩니다.

과하게 보다는 덜어내는 집으로 간결하게. 이번 월간홈트리오 모델은 이러한 조건하에 탄생된 집이랍니다.


#모던스타일 #사선지붕 #유니크함 #다락방 #청순함

공법 : 경량 목구조

지붕마감재 : 리얼징크 / 외벽 마감재 : 스타코플렉스 / 포인트자재 : 루나우드, 파벽돌

실내벽마감재 : 실크벽지/ 실내바닥마감재 : 강마루

창호재 : 미국식 3중 시스템창호

건축면적 : 127.31㎡(1층 : 80.70㎡, 2층 : 46.61㎡)

예상 총 건축비 : 215,400,000원(부가세 포함, 산재보험료 포함 / 설계비, 인허가비, 구조계산 설계비 별도)

설계비 : 5,850,000원(부가세 포함) / 인허가비 : 3,900,000원(부가세 포함)

구조계산 설계비 : 3,900,000원(부가세 포함) / 인테리어 설계비 : 3,900,000원(부가세 포함)

*건축비 외 부대비용 : 대지구입비, 가구(싱크대, 신발장, 붙박이장), 기반시설 인입(수도, 전기, 가스 등), 토목공사, 조경비 등

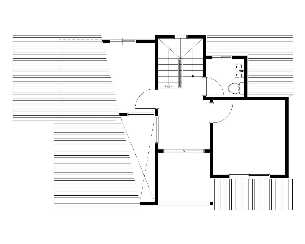
1층 평면도
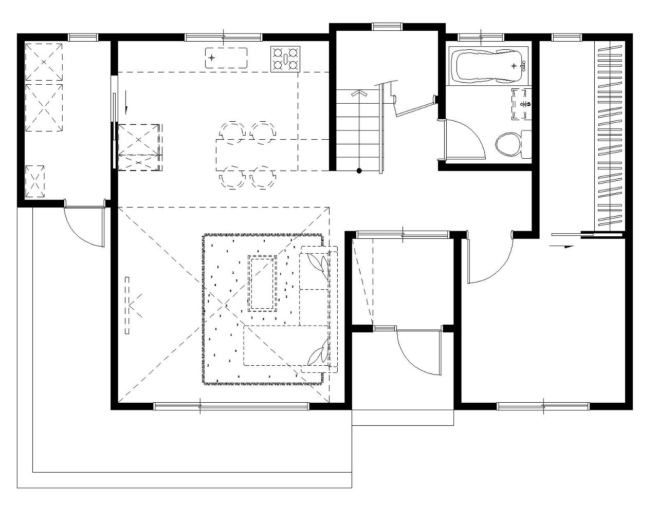
2층 평면도

이동혁 건축가 : 30평형대에서 집이 넓게 보이게 하는 방법 중 최고는 거실과 주방을 하나의 공간으로 합치는 거예요. 구분을 해서 나누어도 되지만 시각적으로 막히게 되면 같은 면적이라도 좁아 보일 수 있거든요. 기억하세요. 현관을 들어왔을 때 넓은 개방감을 느끼고 싶다면 거실과 주방을 하나의 공간으로 만들어 오픈하고, 더 넓게 보이고 싶다면 거실 부분만 오픈 천장을 적용해

임성재 건축가 : 지붕의 경사도는 필수입니다. 지붕의 경사도 때문에 모던함이 사라진다고 생각들 하시지만 이번 모델을 보시면 지붕 디자인만으로도 충분히 유니크한 집 외관을 만들어 낼 수 있다는 것을 확인하실 수 있을 것입니다.

정다운 건축가 : 콤팩트 한 평면구성을 했다가로 할 수 있습니다. 30평형대의 주택에서 데드 스페이스 없이 구성한 평면이라고 볼 수 있습니다. 저희가 설계할 때 가장 주안점으로 두는 것이 외관이 촌스럽지 않을 것. 가격 대비 가성비와 가심비를 느끼게 할 수 있을 것. 마지막으로 낭비되는 공간을 없애 건축비를 다운시켜 드리는 것입니다.


"집이라는 본질적인 가치를 추구합니다." Design by 홈트리오(주)