brunch

30평 아담하고 포근한 집(젊은 전원주택 트렌드)

월간 홈트리오 11월호 ③

by 이동혁 건축가

11월호③ - 30평 아담하고 포근한 집


STORY

: 저희들이 집을 설계할 때 나름의 기준을 정한 후 계약받는데요. 그 기준점을 30평 면적으로 정해놓고 이야기를 드립니다. 최소 마진폭을 맞출 수 있는 면적이 30평이며, 35평 미만의 경우 단층, 2층을 올리고 싶다면 최소 35평 이상을 요청하셔야지만 설계를 시작할 수 있습니다.

그 이유에는 전문가가 생각하는 공간감과 건축주님이 생각하는 공간감의 차이에서 발생하는데요. 대부분 아파트 생활만 하시다 보니 모든 기준이 아파트에 맞추어져 있습니다. 아파트의 경우 계단실도 별도로 있고 층도 분리되지 않았기 때문에 28평만 돼도 충분히 생활할 수 있는 공간이 나옵니다. 하지만 전원주택은 그렇지 않죠. 일단 거실과 주방 부분이 좁으면 안 되기 때문에 커지기 시작합니다. 생각지도 못한 계단실과 보일러실들이 생겨나고 방 사이즈도 아파트의 작은방보다 커지게 됩니다.

하나씩 하나씩 늘려 가다 보면 정작 원하는 면적의 집은 30평 후반대가 되고, 공용공간을 조금 넓게 가지고 가고 싶다 하시는 분들은 대부분 40평을 넘어서게 됩니다.

집 작게 짓고자 하시는 분들은 많지만 실상 정말로 어정쩡한 공간을 원하시는 분들은 없더라고요. 이게 현실일 것입니다.

이번 월간 홈트리오 11월호 세 번째 모델을 기획할 때 정말로 작지만 두 명이서 생활할 수 있는 2층 집을 지어보자라는 목표 아래 설계를 진행했었는데요. 저희들끼리도 설계를 하면서 많이 싸웠습니다. 두 명만 거주할 공간인데 너무 클 필요가 있을까? 건축 비적인 부분도 무시할 수 없는데 면적이 증가되면 자연스레 건축비가 상승되니 생각보다 많은 고민을 했었습니다.

최종 결정은 30평이라는 면적을 선정하되 오픈 천장 등의 옵션을 통해 부족한 개방감을 만족하고 방에 대한 욕심을 버려 2개만 구성해보자가 저희의 해답이었습니다.

외장재는 깔끔한 톤의 화이트 스타코플렉스를 시공하고 모던함 이미지를 주기 위해 지붕을 리얼징크로 시공했습니다. 지붕에 대한 추가 비용이 1000만 원 이상 소요되었지만 누수에 대한 위험성까지 잡을 수 있는 부분이라 이번 기획모델에서는 징크를 과감히 사용하였습니다.

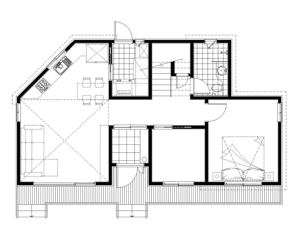
기획은 방을 2개만 구성했지만 실제로는 1층 안방 옆에 있는 드레스룸도 방의 개념이기 때문에 어찌 보면 30평이라는 공간 안에서 방을 3개 구성한 것이 되겠네요.

노후에는 생각보다 요리를 많이 해 드시지 않아 클 필요 없다는 요구조건을 반영하여 작은 주방을 구성했으며, 이 집은 정말로 많은 가족보다는 두 분의 건축주님이 살기에 최적화된 집이라 생각해주셨으면 좋겠습니다.


#아담해요 #2층집 #자연과어울림 #포근함 #엄마품

공법 : 경량 목구조

지붕마감재 : 리얼징크 / 외벽 마감재 : 스타코플렉스 / 포인트자재 : 파벽돌

실내벽마감재 : 실크벽지/ 실내바닥마감재 : 강마루

창호재 : 미국식 3중 시스템창호

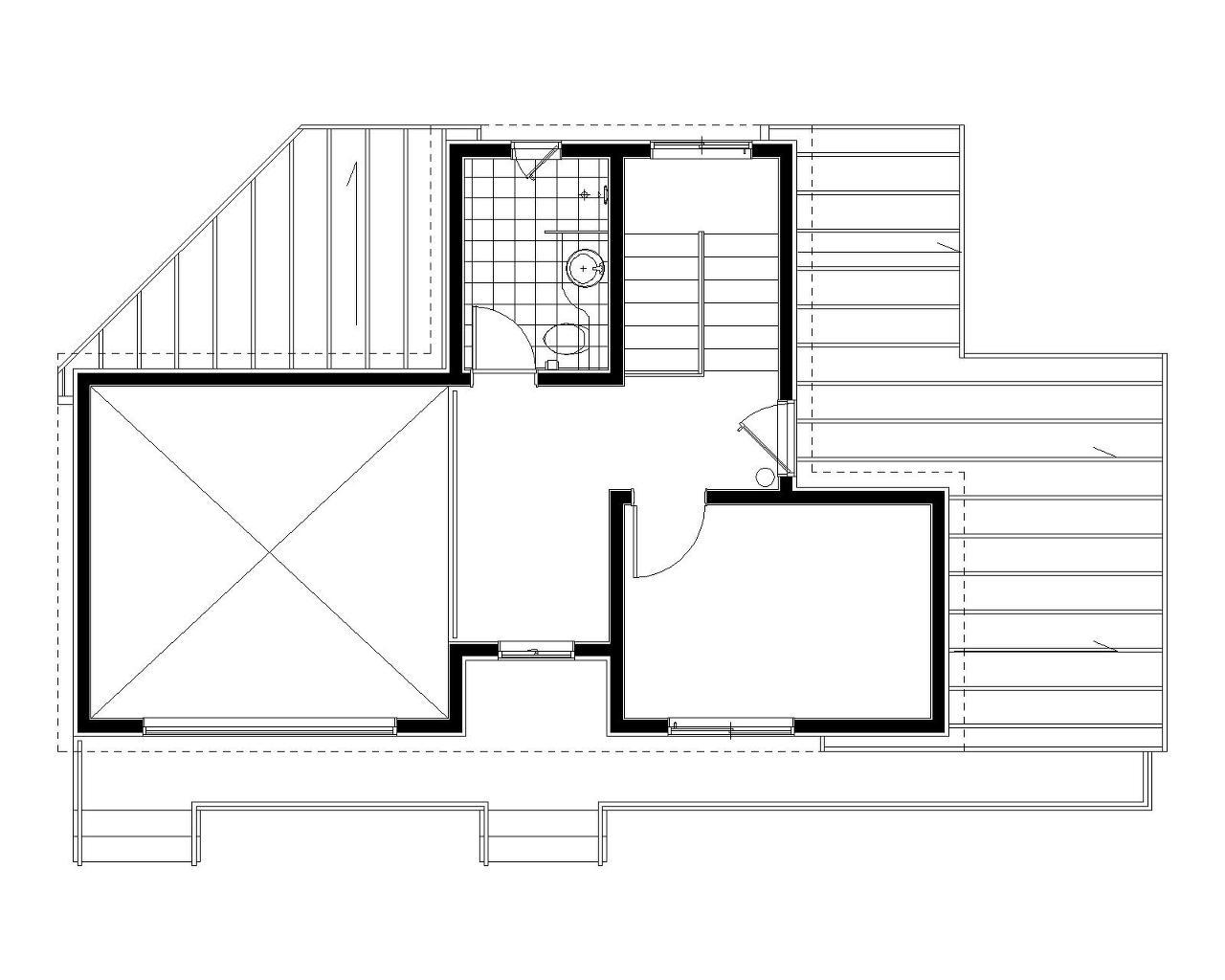
건축면적 : 99.87㎡(1층 : 73.17㎡, 2층 : 26.70㎡)

예상 총 건축비 : 172,000,000원(부가세 포함, 산재보험료 포함 / 설계비, 인허가비, 구조계산 설계비 별도)

설계비 : 4,500,000원(부가세 포함) / 인허가비 : 3,000,000원(부가세 포함)

구조계산 설계비 : 3,000,000원(부가세 포함) / 인테리어 설계비 : 3,000,000원(부가세 포함)

*건축비 외 부대비용 : 대지구입비, 가구(싱크대, 신발장, 붙박이장), 기반시설 인입(수도, 전기, 가스 등), 토목공사, 조경비 등

1층 평면도
2층 평면도

이동혁 건축가 : 징크를 사용하는 이유는 첫 번째는 디자인이고, 두 번째가 누수에 대한 안전성입니다. 징크라 주는 모던함과 차가운 시크함의 느낌은 다른 자재에서 느끼기 힘든 부분이 분명 존재한답니다. 외부를 깔끔하게만 가다 보면 가벼운 이미지를 줄 수 있는데 지붕에 징크라는 재질을 사용해 포인트적인 부분을 준다면 깔끔함과 모던함, 그리고 도시적인 이미지까지 한꺼번에 가지고 갈 수 있습니다. 누수에 대한 안전성은 어찌 보면 덤으로 가져간다고 보시면 됩니다. 누수에 대한 위험성 때문에 굳이 징크로 가실 이유는 없다고 생각하며, 디자인적 요소를 첫 번째로 둔 후 생각하시는 것이 좋다 이야기드리고 싶습니다.

임성재 건축가 : 아담한 집을 원한다면 방에 대한 욕심을 줄이는 것이 좋습니다. 방은 2개만 구성하되 공용공간 비율을 높이고 오픈 천장 같은 옵션들만 더해 개방감과 아기자기함을 함께 가지고 가는 것이 좋습니다.

정다운 건축가 : 창문은 비용이 들더라도 3중 시스템창호를 시공하는 것이 좋으며, 등급은 1등급을 맞추는 것이 좋습니다. 큰 창의 경우 2등급 이상이 나오면 되며, 내부에 블라인드보다는 두꺼운 암막커튼 등을 시공해 인테리어적인 면을 챙기면서 단열을 더 강화할 수 있는 방법을 선택하는 것이 좋습니다.


"집이라는 본질적인 가치를 추구합니다." Design by 홈트리오(주)

keyword