빌라 신축, 서울 다가구주택

다가구주택/60PY/서울시 서초구

by 한글주택
빌라건축,-서울-다가구주택_썸네일.jpg

오늘 소개할 주택은 서울에 시공된 고급 빌라 느낌의 다가구주택입니다. 지하 1층 ~ 지상 3층까지의 규모로 시공되었습니다. 지하실은 조망, 공기순환이 좋지 않다는 점 때문에 많이들 꺼려하시지만 해당 주택은 이러한 부분 모두 극복했다고 하는뎅요 과연 주택 내부는 어떤 모습인지 확인해 보도록 하겠습니다.


고급빌라, 서울 다가구주택 시공
서울 다가구주택_02.jpg

[건축정보]

대지위치 서울특별시 서초구

건축공법 콘크리트

규모 지하 1층 ~ 지상 3층

총 평수 198.82㎡ (60.14PY)

지하1층 82.51㎡ (29.96PY)

지상1층 49.06㎡ (14.84PY)

지상2층 42.10㎡ (12.74PY)

지상3층 27.35㎡ (8.27PY)


고급스러운 외관으로 시공된 서울 다가구주택 완공모습입니다. 외관으로 보아도 느껴지는 것처럼 모든 층 마다 외부와 소통할 수 있는 테라스가 있어 답답함을 찾아볼 수 없을 것 같습니다. 또한 이 주택은 지하 1층은 다가구주택, 지상 1층~ 지상 3층은 건축주님이 거주하실 목적으로 시공하게 되었으며, 지하층의 단점을 극복하기 위하여 계획, 설계하였답니다.

서울 다가구주택_07.jpg


지하 1층
서울 다가구주택_022_지하.jpg
서울 다가구주택_021.jpg

주방과 거실은 동선을 편리하게 하기 위하여 두 공간이 나란히 배치된 모습입니다. 거실은 야외 공기를 얻을 수 있는 데크 옆에 위치하여있고, 주방은 조금 더 안쪽에 위치하여 있으며, 옆쪽으로는 별도의 다용도실을 두었습니다.

지하층의 경우에는 조망이 좋지 않다는 점, 그렇기 때문에 관리를 소홀히 할 경우 곰팡이가 생긴다는 단점이 있습니다. 하지만 이 주택은 데크와 다용도실을 두어 공기의 순환이 잘 이루어짐과 동시에, 지상층보다는 아니지마 충분한 일조량을 받을 수 있도록 하였습니다.


지상 1층
서울 다가구주택_09.jpg
서울 다가구주택_010.jpg

지상 1층은 집 앞으로 야외 데크가 있어 전원생활의 묘미를 느낄 수 있습니다. 그 데크의 창호를 통해 집 내부로 따스한 햇살이 들어오는 모습을 보실 수 있습니다. 거실과 주방은 동선이 짧은 형태로 시공하였습니다.


서울 다가구주택_011.jpg 1층 침실 전경


지상 2층
서울 다가구주택_012.jpg
서울 다가구주택_015.jpg

2층은 작은 거실과 침실이 위치해 있습니다. 작은 거실에는 자녀분이 즐겨 연주하는 피아노가 있으며, 침실은 취향에 맞는 가구들로 배치가 되었습니다.


지상 3층
서울 다가구주택_017.jpg
서울 다가구주택_018.jpg

지상 3층은 조금 더 포근한 느낌으로 연출되었습니다. 외부와 소통할 수 있는 창호 앞에는 독서 또는 티타임을 갖기에 적합하도록 책상을 두었습니다. 해당 주택은 모든 층마다 작은 거실이 있어 모든 층에서 가족들과의 이야기를 나눌 수 있을 것 같습니다.


서울 다가구주택_019.jpg

이 공간에는 큰 옥상 테라스가 있어 서울에 위치한 다가구주택이지만 조금 더 단독생활의 묘미를 느낄 수 있는 것 같습니다. 서울 주변의 경치는 물론이며 따스한 햇살까지도 스며드는 모습이지요. 일반 다가구주택 둘러본다면 찾아보긴 힘든 형태이며, 고급 다가구주택 /빌라에서 찾아볼 수 있는 테라스 형태라고 할 수 있습니다.


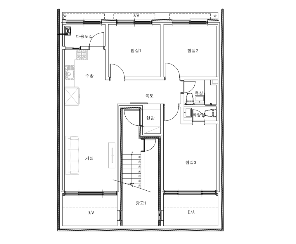
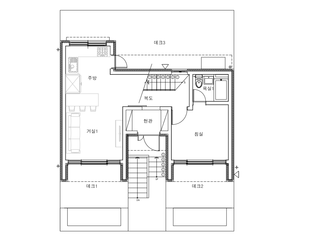
도면
지하1층.png 지하 1층 도면
1층.png 지상 1층 도면
2층.png 지상 2층 도면2
3층.png 지상 3층 도면

오늘은 한글주택에서 시공한 고급 빌라 느낌의 서울 다가구주택을 둘러보았습니다. 지하층은 세입자를 위한 공간으로, 나머지 공간은 건축주님 세대를 위한 공간인데요, 층마다 작은 거실과 외부와 소통할 수 있는 공간이 있어 여러 가족이 머무르지만 프라이버시를 지킬 수 있는 공간으로 구성된 사례입니다.

혹시 고급스러운 느낌의 빌라 다가구주택을 시공하고 싶으시다면 오늘 소개해드린 주택을 참고하시면 좋겠습니다.


3초 상담신청 바로가기

keyword
매거진의 이전글가평 전원주택의 매일 다른 풍경화