두 가족이 사는 듀플렉스 전원주택

목조주택/78PY/경기도 양주시

by 한글주택
목조주택_듀플렉스주택_01.jpg

두 가족이 사는 '듀플렉스'주택 들어보셨나요?

겉으로 보기에는 하나의 집처럼 보여지지만 두 가구가 완벽하게 분리된 형태입니다. 이러한 형태는 가족분들이 가깝게 지내고 싶지만 프라이버시를 완벽하게 지키는 주택을 원할 때. 절친한 사이의 두 가족분들이 함께 시공하는 경우가 많습니다. 하지만 프라이버시가 완벽히 보장되기 때문에 세입자와 지내더라도 전혀 문제되지 않겠지요. 오늘은 듀플렉스 주택의 완공사례를 보여드리려 합니다 : )


두 가족이 사는 프라이빗
듀플렉스 목조주택
듀플렉스_목조주택_02.JPG
듀플렉스_목조주택_03.JPG

[건축정보]

건축공법 목조주택

총평수 256.67㎡ (77.64PY)

왼쪽 집 123.91㎡ (37.48PY)

오른쪽 집 132.72㎡ (40.15PY)


목조주택으로 시공된 이 듀플렉스 주택의 모습입니다. 왼쪽 집, 오른쪽 집으로 나뉘게 되는데요 박공지붕으로 이 두개의 주택이 하나가 되도록 만들어줍니다. 또한 오른쪽집의 2층에는 테라스가 있으며 목재로 마감이 되어 목조주택의 따스한 느낌을 더욱 더 상기시켜줍니다.


왼쪽 집과 오른쪽 집은 30평대 후반, 40평대 로 시공되어 4인 가족이 거주하기에도 아주 넉넉한 공간이라고 할 수 있습니다. 친근함이 느껴지는 듀플렉스 주택 내부를 살펴보실까요?


왼쪽집
듀플렉스_목조주택_왼쪽집_03.JPG

왼쪽집의 거실 전경입니다. 큰 창호가 마당과 바로 연결되는 형태로 집 내부가 굉장히 밝은 느낌입니다. 또한, 목조주택의 느낌을 내부에서도 느낄 수 있도록 천정의 '보'가 눈에 띄는데요, 일반적인 집과는 다르게 특별함을 담고 있는 것 같습니다.


듀플렉스_목조주택_왼쪽집_02.JPG
듀플렉스_목조주택_왼쪽집_05.JPG

현대적인 세련미 보다는 우리에게 친근한 느낌으로 다가오는 인테리어입니다. 또한 현관 중문과, 거실의 문은 투명 유리로 되어 있어 보다 더 넓어보이는 효과를 주어 답답함이 느껴지지 않습니다.


듀플렉스_목조주택_왼쪽집_04.JPG

2층도 1층과 연결되는 디자인입니다. 외부와 소통할 수 있는 포치가 있어 2층도 밝은 느낌을 품고 있습니다.


오른쪽 집
듀플렉스_목조주택_오른쪽집_00.JPG
듀플렉스_목조주택_오른쪽집_01.JPG

오른쪽 집의 1층 전경입니다. 화이트톤 벽지와 우드톤 바닥재, 그리고 천정의 '보'까지 인테리어 요소는 같지만 사뭇 다른 느낌이라는 것이 느껴지시나요? 같은 인테리어 요소라고 하더라도 느낌이 다르게 시공이 가능하답니다. 거실과 주방의 동선은 짧은 형태이며, 계단실 하단부에는 작은 공간이 있어 잘 사용하지 않는 물건을 두어도 좋을 것 같습니다.


듀플렉스_목조주택_오른쪽집_03.JPG

오른쪽집의 2층 전경으로 왼쪽집과 동일하게 테라스가 있어 2층에서도 외부와의 소통을 얼마든지 할 수 있도록 시공하였습니다.


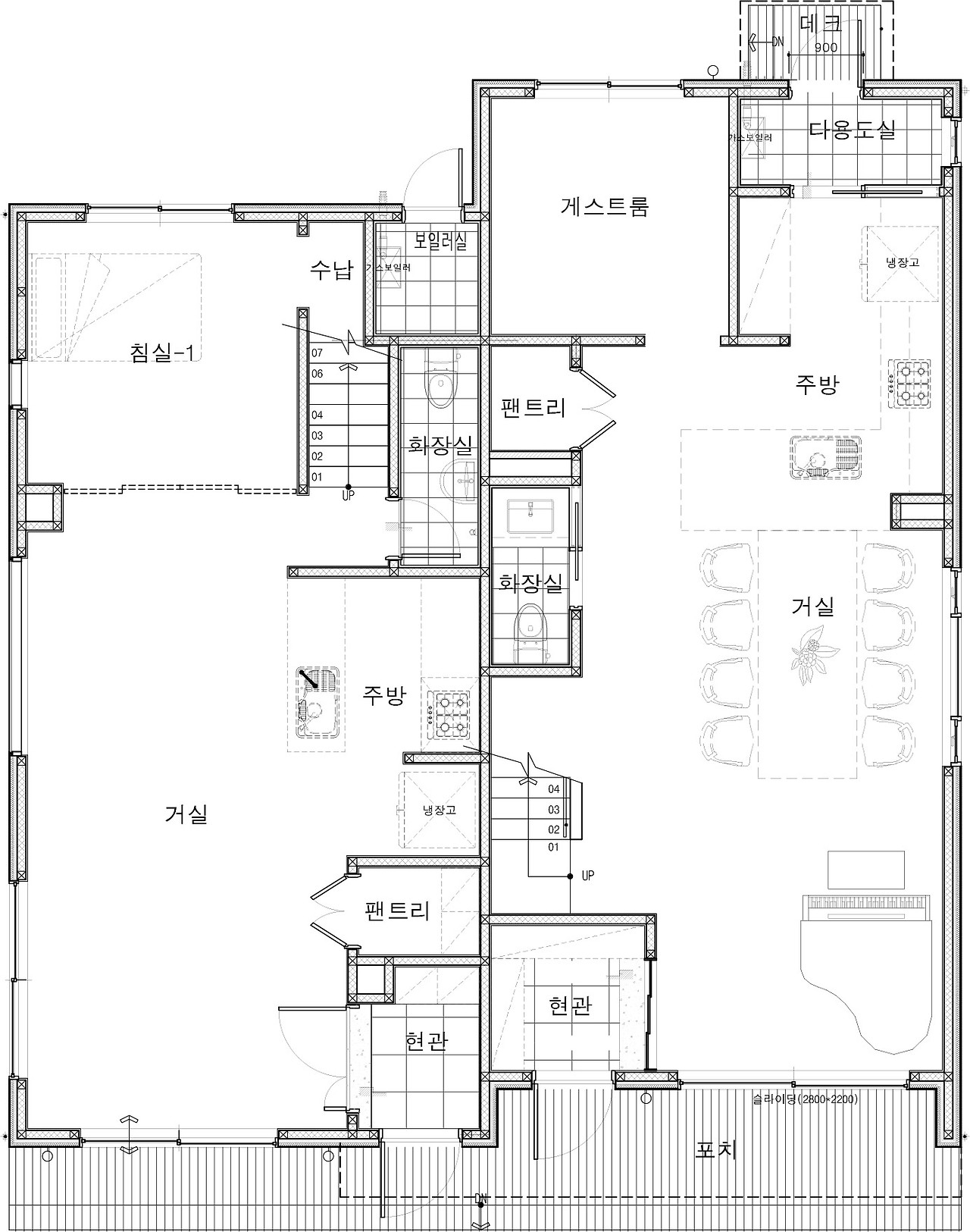
1층도면(왼쪽집, 오른쪽집)
1층.jpg


2층도면(왼쪽집, 오른쪽집)
2층.jpg

오늘은 한글주택에서 시공한 듀플렉스 주택을 소개해 드렸습니다. 하나의 집처럼 보이지만, 두 가구가 공존하는 이 집이 궁금하시다면 무료상담 지금 신청하세요!


무료상담 신청하기

keyword
매거진의 이전글빌라 신축, 서울 다가구주택