입체감이 느껴지는 전원주택

한글주택 Brunch E14 [경상남도 함양]

by 한글주택

Brunch E14

전원주택의 다채로움을 표현할 수 있는 요소들 중 가장먼저 떠오르는 것이 어떤 것인가요? 대부분 외장재를 가장 많이 떠올리실 것 같은데요, 오늘 소개할 주택은 외장재의 사용도 물론이지만, 주택의 형태를 돋보이게하여 입체감이 느껴지는 전원주택을 소개하도록 하겠습니다.


K71A4480.JPG

대지위치 : 경남 함양군

건축공법 : 콘크리트

총 평수 : 134.40㎡ [40.65py]

1층 : 74.40㎡ [22.50py]

2층 : 60.00㎡ [18.15py]


주택이 3개로 나누어진 것 처럼 보여지는 전원주택. 계단식으로 타고 올라가 맨 우측에는 징크로 시공한 모습입니다. 전체적으로 고급스러우면서 입체감이 보여지는데요, 주택에 입체감이 있을 경우, 사실 크게 외장재를 사용하지 않아도 멋스러운 주택 시공이 가능하다는 장점이 있습니다. 하지만 해당주택은 스타코플렉스 컬러의 대비와 징크 마감으로 더욱 고급스러움을 강조한 사례입니다.

K71A4459.JPG
K71A4471.JPG
스타코플렉스 컬러 대비와 징크가 돋보이는 외관의 모습
K71A4513.JPG
K71A4519.JPG
주택의 작은 마당

전원주택의 작은 마당은 아직 잔디가 무성하게 자라지는 않았지만 앞으로 무성하게 자라 파릇파릇한 마당이 완성될 것으로 보여집니다.


K71A4578.JPG
K71A4420.JPG

거실과 주방의 형태는 두 가지로 나누어 집니다. 거실과 주방이 연결되어 있는 형태와, 완전히 구분지어진 형태가 있는데요. 오늘 소개하는 주택은 별도의 공간으로 확실히 구분이 되어져 있는 형태로 시공되었습니다. 거실에 있는 창호를 통해서 마당과 바로 연결이 됨과 동시에 자연조명이 들어와 집이 전체적으로 밝은 느낌이 듭니다.


K71A4412.JPG

거실에서 주방 사이에 있는 복도를 지나면 주방으로 들어설 수 있습니다.


K71A4562.JPG

주방은 수납 공간에 굉장히 많은 신경을 쓴 모습입니다. 조리대 뿐만 아니라 냉장고가 위치한 쪽의 가구도 역시나 수납을 할 수 있는 공간이 마련되어 있는데요, 이러한 공간들은 청결을 유지하기에 편리하여 주부님들께서 굉장히 선호한답니다.


K71A4405.JPG

그리고 2층과 연결되는 계단실은 거실과 주방 사이에 자리하고 있습니다. 짙은 색감의 목재를 사용하여 고급스럽고 차분한 느낌을 줍니다.


K71A4357.JPG

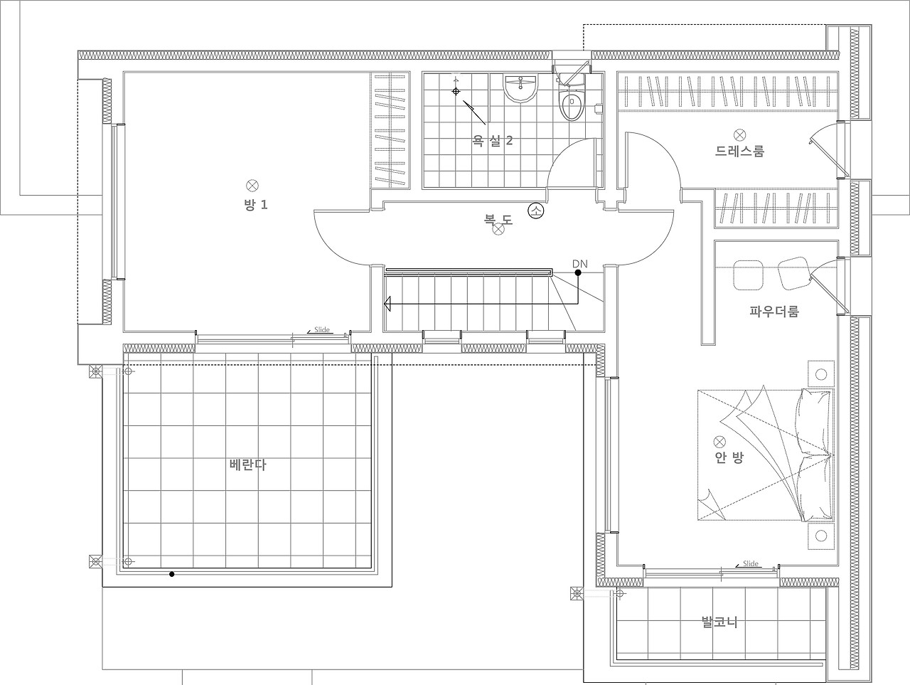
계단실까지 높게 자리하고 있는 창호는 2층까지 밝은 기운을 안겨다 줍니다. 2층에는 안방과 침실 그리고 욕실, 베란다와 발코니가 있습니다.


K71A4304.JPG
K71A4308.JPG


안방은 주택 외관에서 보였던 삼각지붕의 발코니가 있는 곳이 바로 이 안방으로 집 외부 경치를 바라볼 수 있는 공간이기도 합니다. 또한, 파우더룸/드레스룸이 있어 안방에 있어야 할 요소를 모두 갖추고 있습니다.


K71A4621.JPG
K71A4372.JPG

이 공간은 가로형태의 긴 창호가 있는 취미실인데요, 취미실에는 건축주님께서 즐기시는 악기를 마음껏 연주할 수 있는 공간으로 꾸며질 예정입니다.


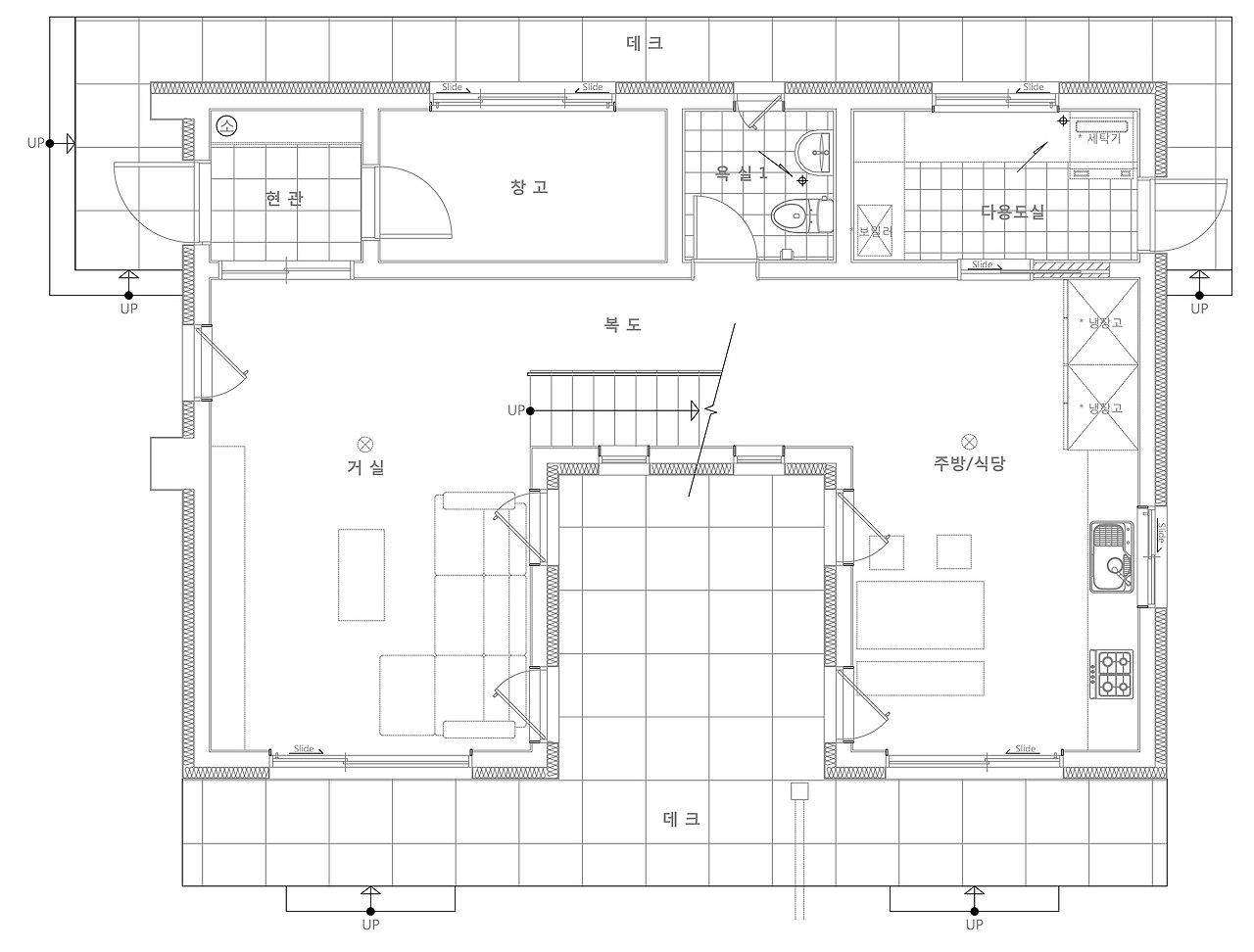
1층_01.jpg
2층_01.jpg
1층 도면 / 2층 도면


오늘은 입체감이 살아있는 경남의 전원주택을 소개해드렸는데요, 어떻게 보셨나요? 단순히 외장재로 다채로운 느낌을 주는 것이 아닌, 주택의 형태와 컬러 대비로 다채로움을 주는 주택이었습니다.


한글주택의 전원주택이 궁금하신가요? 아래 링크를 통해서 무료 건축컨설팅 받아보세요!


건축상담 신청하기 ▶ http://naver.me/FWeou5lW

한글주택 홈페이지 ▶ http://bitly.kr/q5xdNm

한글주택 유튜브 ▶ https://goo.gl/65mdXh

keyword
매거진의 이전글두 가족이 사는 듀플렉스 전원주택