예쁜 상가주택시공으로 수익창출 : )

by 한글주택

상가주택은 수익을 창출하고, 거주공간까지 해결할 수 있기 때문에 건축주님들께서 많이들 문의를 주시곤 하십니다. 또한 직접 상가에서 샵, 음식점을 운영하고 2층은 거주공간으로 활용하여 건물 자체를 건축주님 혼자서 활용하는 경우도 있으며, 모두 세를 주는 경우도 있는데요! 이 경우 모두 건축주님에게 수익을 주기 때문에 상가주택시공 인기가 점점 많아지고 있는 것 같습니다.


상가주택시공, 모던주택_02.jpg

[건축정보]

대지위치 충청북도 진천군

건축용도 근린생활시설/단독주택

건축규모 지상 3층


건축공법 철근콘크리트조

1층 평수 근린생활시설 88.35㎡(26.73PY)

2층 평수 단독주택 99.60㎡(30.13PY)

3층 평수 단독주택 28.67㎡(8.67PY)

총 평수 216.62㎡(65.53PY)


상가주택시공, 모던주택_01.jpg

충척북도 진천군에 시공된 이 예쁜 상가주택은 1층이 상가, 2층과 3층은 하나의 단독주택으로 시공되었습니다. 이러한 형태는 단독주택의 생활을 만끽함과 동시에 1층 상가 주택이 있어 세입자를 들이거나, 직접 커피샵, 음식점 등을 운영하여 보다 많은 수익을 창출할 수 있다는 큰 장점이 있습니다.


하지만 상가주택은 상가에 방문하는 손님들이 보았을 때 매력적인 외관을 갖추고 었어야 보다 더 좋은 상가주택이라고 판단하곤 하는데요, 오늘 소개하는 이 주택의 경우에는 블랙&화이트로 구성되어 모던함이 느껴지는 깔끔, 세련된 외관으로 시공되었습니다.


1층
상가주택시공_1층 도면.png 1층 근생공간

1층 근린생활시설은 두 개의 공간으로 나누어져 있습니다. 이 공간에는 전면에 큰 창이 있어 상가의 내부가 들여다 보여집니다. 또한 내부에는 화장실이 한개씩 자리하고 있습니다. 또한 2층, 3층의 단독주택과는 완벽히 분리된 입구로 진입될 수 있도록 시공하였습니다.


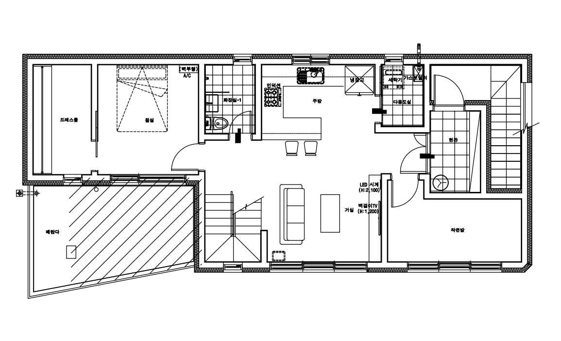
2층
상가주택시공_2층 도면.png 2층 도면
상가주택시공, 모던주택_011.jpg
상가주택시공, 모던주택_010.jpg
상가주택시공, 모던주택_09.jpg

2층의 거실입니다. 주방과 바로 연결되어 있으며, 앞 쪽으로 탁 트인 큰 창호가 자리하고 있어 전체적으로 탁 트여 밝은 느낌을 줍니다. 인테리어는 화이트톤, 밝은 베이지 톤으로 선택하여 깔끔하고 더 넓어보이며, 포인트로 조명, 우드의 느낌을 가미하였습니다. 2층에는 작은방과 드레스룸이 있는 침실로 구성되어 있습니다.


상가주택시공, 모던주택_016.jpg
상가주택시공, 모던주택_017.jpg

침실은 테라스와 바로 연결되고, 공간을 최대한 확보하기 위해 드레스룸과 침실은 미닫이 형태의 투명 유리 문으로 시공하였습니다. 이 침실은 탁 트인 테라스는 물론이며, 드레스룸이 있기 때문에 깔끔한 침실을 유지하기 제격입니다.


3층
상가주택시공_3층 도면.png 3층 도면
상가주택시공, 모던주택_027.jpg
상가주택시공, 모던주택_025.jpg

3층은 건축주님의 온전한 개인공간으로 시공되었습니다. 작은 영화관을 연상케하는 빔 프로젝트가 설치된 공간이 자리하고 있으며, 창호가 있어 공기순환이 원활할 수 있도록 하였습니다.



오늘은 한글주택에서 시공한 예쁜 상가주택 시공사례를 알아보았습니다. 상가주택은 수익을 내면서도 거주를 할 수 있다는 큰 장점이 있는데요, 어떤 식으로 공간을 나누느냐에 따라서 얼마든지 활용할 수 있으니 상가주택시공을 알아보시는 분들께서는 시공전문가와 함께 상의하시는 것이 좋겠습니다.


혹시 한글주택의 전원주택 시공이 궁금하시다면 아래 링크를 통해서 지금 바로 상담 신청해주세요 : )

상담 신청하기

keyword
매거진의 이전글개성이 돋보이는 50평대 단독주택