웅장함이 느껴지는 30평 단독주택

by 한글주택

오늘 소개할 주택은 경상도에 시공된 웅장함이 느껴지는 주택입니다. 실제 평수보다 훨씬 더 웅장함이 느껴지는 외관을 자랑하는데요, 과연 어떤 모습의 외부, 내부로 시공되었는지 자세히 살펴보겠습니다.


웅장함이 느껴지는
30평 단독주택
전원주택시공_8.jpg

[건축정보]

대지위치 경상북도 예천

건축공법 노출 콘크리트

건축규모 2층

총 평수 38.79PY

1층 평수 22.79PY

2층 평수 15.68PY


전원주택시공_8.jpg

주택을 보셨을 때 이 주택이 몇 평처럼 보이셨나요? 이 주택은 경상북도에 약 39평으로 시공된 2층 규모의 노출콘크리트 단독주택입니다. 외관을 보시면 웅장함이 느껴지는 주택이지요. 또한 해당 주택은 한글주택의 본연의 주택 스타일을 담고 있는데요, 2층의 테라스에 한글의 자음 'ㄷ' 를 보시면 한글주택만의 특색있는 주택 외관을 보실 수 있습니다. 또한 이 테라스 부분은 징크와 목재로 시공하여 다채로운 느낌을 주지요.


1층
전원주택시공_10.jpg
전원주택시공_9.jpg

거실과 주방은 간결한 동선으로 셀계/시공했습니다. 아주 큰 형태의 거실과 주방은 아니지만 해당 주택의 평수에 알맞게 데드스페이스 없이 잘 시공되었지요.인테리어는 건축주님의 취향이 담긴 세련된 분위기로 연출되었습니다.


전원주택시공_12.jpg
IMG_2697.jpg

해당 단독주택은 자투리 공간까지 활용하였는데요, 계단의 하단부는 별도의 수납장을 둘 수 있도록 하였으며, 긴 복도는 단순히 복도로 두는 것이 아닌 조명과 액자로 갤러리 느낌을 주었습니다. 분위기 있는 작은 갤러리가 보이시나요?


2층
전원주택시공_15.jpg

2층의 계단실 또한 앞서 보셨던 갤러리 느낌처럼 분위기 있는 느낌으로 시공되었습니다.


전원주택시공_14.jpg
전원주택시공_13.jpg

2층에 오르자마자 보이는 건식/습식 형태의 욕실 그리고 드레스룸/가족실로 활용이 가능한 공간까지 자리하고 있습니다.


전원주택시공_17.jpg
전원주택시공_16.jpg

그리고 침실과 연결된 넓은 야외 테라스, 아늑한 침실이지만 테라스와 바로 연결되어 있어 야외활동, 조망, 공기순환 등에 모두 누리실 수 있겠습니다.


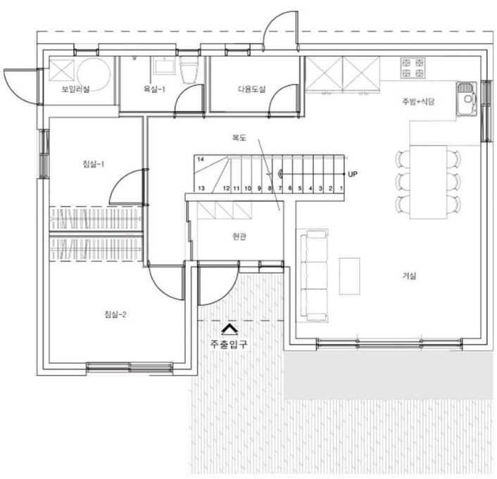
도면
1층 도면.png 1층 도면
2층 도면.png 2층 도면

오늘은 경상도에 시공된 노출콘크리트 주택을 알아보았습니다. 자투리 공간까지 잘 살려내어 건축주님의 취향에 맞는 공간들로만 구성이 된 사례인데요, 혹시 30-40평대 단독주택을 알아보시는 분들이 계시다면 오늘 소개드린 웅장함이 느껴지는 단독주택은 어떠실까요?


상담 신청하러가기

keyword
매거진의 이전글예쁜 상가주택시공으로 수익창출 : )