강화도 시공현장 - 블랙&화이트 모던전원주택

by 한글주택

오늘 소개할 전원주택의 시공현장은 인천 강화도에 위치한 현장입니다. 약 36평 콘크리트 전원주택입니다. 지금은 주택의 모습이 거의 다 갖추어 졌는데요, 설계부터 현재 시공 모습까지 살펴보겠습니다.


■기획설계

[계획정보]
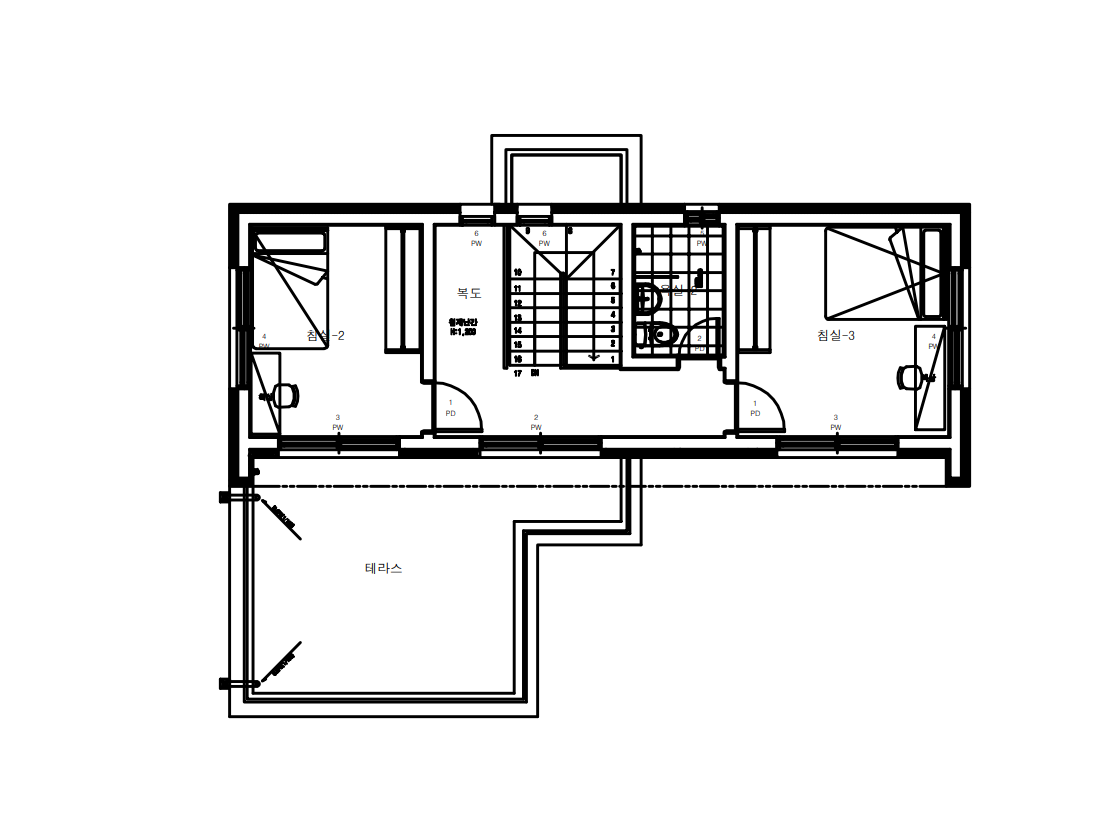
위치 : 인천 강화도 / 공법 : 콘크리트 / 규모 : 2층 / 총 평수 : 118.93㎡ (36PY) / 지상1층 : 70.76㎡ (21.4PY) / 지상2층 : 48.17㎡ (14.57PY)
한글주택 현장라이브_인천_콘크리트_30평_24.png
한글주택 현장라이브_인천_콘크리트_30평_27.png
한글주택 현장라이브_인천_콘크리트_30평_34.png

인천 강화도의 한 대지에 계획된 콘크리트주택 모습입니다. 1층과 2층으로 나누어져 있으며 1층은 앞 데크/마당을 원활하게 사용할 수 있도록 큰 창문을 두었습니다. 1층은 가족공용공간과 침실이 있으며, 2층은 침실 2개와 테라스가 자리하여 건축주님의 생활 패턴에 딱 맞는 주택으로 계획하였습니다.


■현장답사

한글주택 현장라이브_인천_콘크리트_30평_16.jpg
한글주택 현장라이브_인천_콘크리트_30평_15.jpg

착공되기 전 현장답사를 나와 실제로 어떻게 주택이 시공될 것인지 이야기를 나누게 되는데요, 현장 주변 상황파악 자재 진입로 확보 확인, 대지내 경계 말뚝 확인, 상수도, 맨홀 위치 파악 등을 진행하게 됩니다.


■기초작업

한글주택 현장라이브_인천_콘크리트_30평_29.jpg
한글주택 현장라이브_인천_콘크리트_30평_19.jpg
한글주택 현장라이브_인천_콘크리트_30평_20.jpg
한글주택 현장라이브_인천_콘크리트_30평_21.jpg

기초매트리스는 주택을 지지해줄 가장 첫 작업입니다. 매트리스 자체 작업도 진행하괴 되지만 부지 되메우기, 하수 및 우수관로 공사가 진행됩니다.


■골조작업

한글주택 현장라이브_인천_콘크리트_30평_33.jpg
한글주택 현장라이브_인천_콘크리트_30평_32.jpg
한글주택 현장라이브_인천_콘크리트_30평_14.jpg
슬라브 철근조립

주택의 바닥, 천정 슬라브 작업을 진행하게 되었으며 아시바를 설치하여 2층 작업이 진행될 수 있도록 하였습니다. 전체적으로 주택의 윤곽이 잡혀나가는 모습이 보이시지요?


■창호시공

한글주택 현장라이브_인천_콘크리트_30평_6.jpg
한글주택 현장라이브_인천_콘크리트_30평_7.jpg
창호실측
한글주택 현장라이브_인천_콘크리트_30평_51.jpg
한글주택 현장라이브_인천_콘크리트_30평_50.jpg
창호시공 완료

창문이 자리할 공간의 치수를 정확하게 파악하게 됩니다. 창호를 설치하는 것은 약간의 차이가 있겠지만 현재 인천 전원주택 현장은 내부 목공사와 도배장판 작업이 진행될 즈음에 실제로 창호를 시공하게 되었습니다.


■내부공사

한글주택 현장라이브_인천_콘크리트_30평_11.jpg
한글주택 현장라이브_인천_콘크리트_30평_13.jpg
몰탈타설 공사가 진행되었습니다.
한글주택 현장라이브_인천_콘크리트_30평_48.jpg
한글주택 현장라이브_인천_콘크리트_30평_55.jpg
한글주택 현장라이브_인천_콘크리트_30평_39.jpg
내부 목공사

내부 난방 공사 및 몰탈타설, 내부 목공사가 모두 완료되었습니다.



■현재모습

KakaoTalk_20200611_211629927_03.jpg
KakaoTalk_20200611_211629927_10.jpg
KakaoTalk_20200615_173105461_20.jpg
KakaoTalk_20200611_211629927_07.jpg

현장의 현재 모습입니다. 인테리어까지 완료된 내부를 보니 건축주님께서 원하시는 주택 그대로 잘 완성된 것 같은데요! 밝고 깔끔한 내부로 완성되었습니다. 또한, 주택의 외관을 보면 모던전원주택의 느낌이 딱 들어 오래 보아도 질리지 않는 정갈한 느낌의 주택으로 보여집니다.



오늘은 인천 강화도에 위치한 한글주택 시공현장을 다녀왔습니다. 주택을 짓는 과정을 본다는 것은 정말 설렘이 가득한 것 같습니다. 하지만 집을 짓는 과정에는 굉장히 많은 작업들이 진행되는데요, 수 많은 작업 중 하나라도 빠짐없이 전문가가 시공해야지만 하자없는 100년가는 주택을 시공할 수 있습니다. 저희 종합건설 한글주택의 시공 노하우가 궁금하시다면 지금 바로 무료상담 신청하세요!


▶무료상담 신청하러가기◀

keyword
매거진의 이전글일산 전원주택, 노출콘크리트 시공현장