40평 전원주택, 감각적인 외관에 사로잡히다.

한글주택 Brunch E01 [경기도 여주시] 콘크리트주택

by 한글주택

한글주택 Brunch E01


전원주택 시공에 있어서 가장 먼저 보게 되는 것, 가장 먼저 눈길이 닿는 곳은 바로 외관입니다. 외관을 바라 보고 있으면, 내부가 얼마나 멋있을 지 상상하게 되지요. 오늘 소개할 전원주택은 감각적인 외관에 눈길을 사로잡히는 주택이랍니다.



40평 전원주택,

감각적인 외관에 사로잡히다.


[건축정보]

건축공법 철근콘크리트

건축규모 지상 2층

총 평수 42.44py

1층 28.27py

2층 14.18py


네모 반듯한 외관의 벽은 깔끔한 화이트 색상의 스타코플렉스로 시공되었고, 각 공간에 맞는 크고 작은 창문들이 자리하고 있는 모습입니다. 그러면서도 가장 눈에 들어오는 외관 요소들 중 하나는 가벽이라고 할 수 있습니다.


목재로 시공된 이 가벽의 용도는 무엇일까요?

과연 외관 디자인만을 위한 것이라고 생각하실 수 있지만, 거실에서 바라보았을 때 큰 차도가 눈에 들어오기 때문에 조망을 위해 생각한 아이디어 입니다. 감각적인 외관은 물론이며, 조망까지도 완벽하게 사로잡은 주택이라고 할 수 있지요.


40평전원주택_6.jpg

[인테리어 정보]

바닥시공 LG 하우시스 장판 (라이트브라운)

창호 PVC이중창호

계단 미송집성목


거실과 주방의 동선이 자유로은 1층 전경입니다. 큰 창호를 통해서 따사로운 햇살이 집안 곳곳을 밝히고 있는 모습인데요, 아직 가구들이 들어오기 전 이지만 가구들이 배치되면 더욱 따뜻하고, 안락한 모습으로 완성될 것입니다.


40평전원주택_4.jpg 경기도 여주시 40평 / 1층 주방/거실
40평전원주택_8.jpg 경기도 여주시 40평 / 1층 주방

주방 가구들은 네이비 톤으로 시공하여 외관처럼 세련됨을 겸비하고 있는 모습이며, 현대식 주방 요쇼들을 발견하실 수 있지요.


40평전원주택_5.jpg 경기도 여주시 40평 / 1층 전경

깔끔한 화이트톤 벽지와 밝은 브라운 장판, 그리고 세련미가 돋보이는 주방 가구. 이에 더해서 큰 창호를 통해 들어오는 햇살이 조화를 잘 이루는 주택입니다.

40평전원주택_10.jpg
40평전원주택_9.jpg
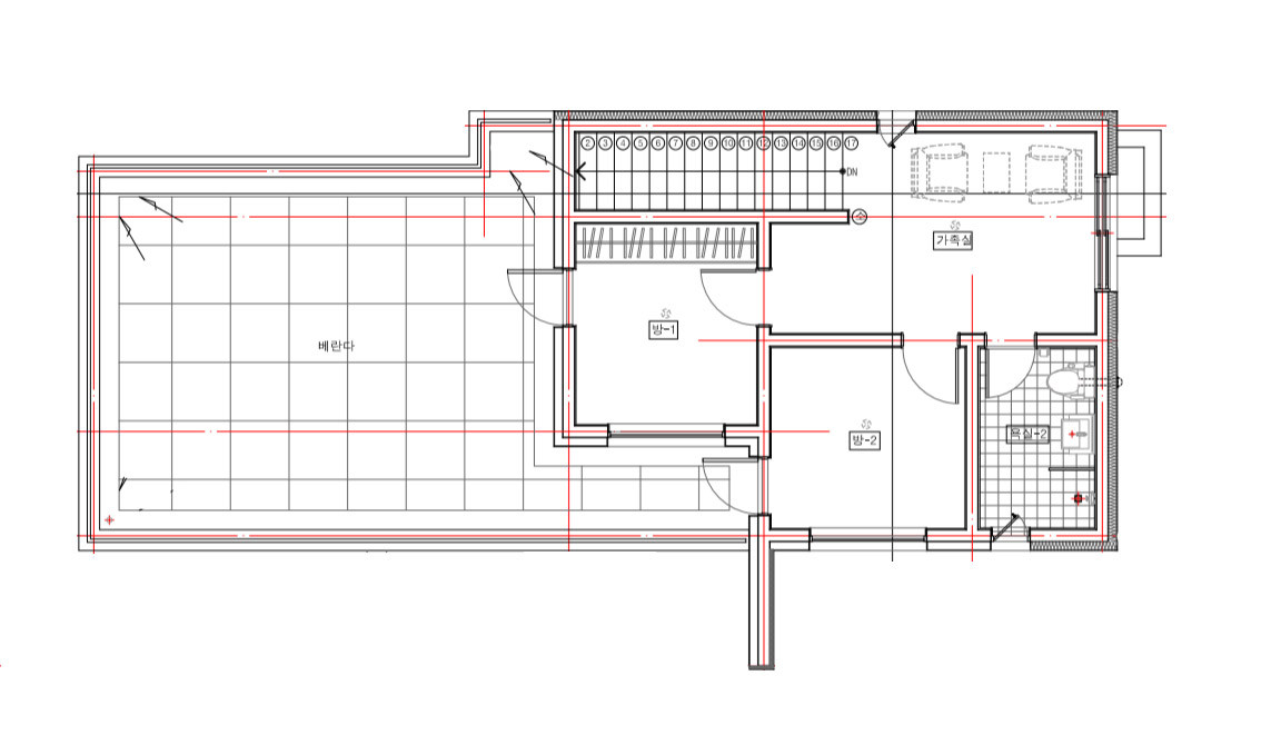
경기도 여주시 40평 / 2층 전경
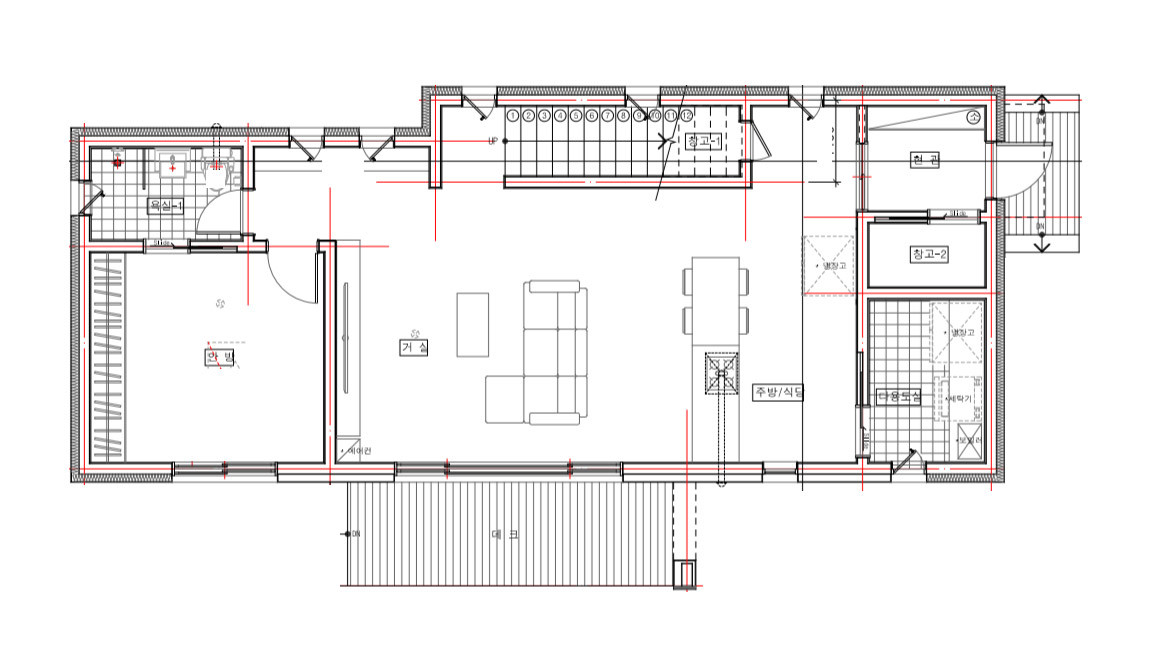
1층-평면도.jpg 1층 도면
2층-평면도.jpg 2층 도면

한글주택의 감각이 느껴지는 전원주택, 잘 둘러보셨나요? 저희 한글주택은 사람 모두가 같은 생각을 할 수 없는 것처럼 집 또한 같은 집이 나올 수 없다고 생각합니다. 사람이 집에 맞추는 것이 아닌, 건축주님에 딱 맞는 주택을 짓고자 노력하고 있습니다.


한글주택의 전원주택이 궁금하신 분들은 아래 링크를 통해서 건축상담 받아보시면 좋겠습니다 : )


건축상담 신청하기 ▶ https://bitly.ws/32LWj


keyword