전원주택견적부터 현장까지 낱낱이 보여드릴게요!

by 한글주택

안녕하세요. 전원주택견적부터 시공까지 확실한 한글주택입니다. 생각보다 전원주택 시공 현장을 궁금해하시는 분들이 많은데요. 전북 군산시에 견고하면서도 웅장한 느낌의 30평대의 전원주택이 시공되었습니다. 해당 주택의 공사 현장과 순서를 보여드리면서 전원주택견적부터 완공까지 궁금증에 대한 해답을 알려드리겠습니다. 노출 콘크리트는 시공 중 거푸집을 떼어낸 면을 그대로 노출하는 형태를 의미합니다. 노출 콘크리트는 공정을 분리하여 시공할 수 없기에 기술적인 테크닉이 매우 중요한 공법입니다. 저희 한글주택에서는 수많은 시공 경험을 바탕으로 더욱 체계적이고 전문적인 시공이 가능합니다. 시공 현장 지금 바로 보여드릴게요!


견고한 느낌의 30평대 노출 콘크리트 전원주택 실제 현장
수정1.jpg
수정2.png 1층 도면
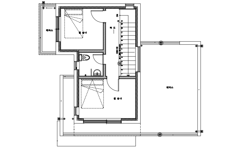
수정3.png 2층 도면


HOUSE PLAN

대지위치 전북 군산시

건축공법 노출 콘크리트

총 평수 120.18㎡ (36.35py)

1층 평수 79.81㎡ (24.14py)

2층 평수 40.37㎡ (12.21py)


전원주택견적 시 고민하는 부분 중 하나는 시공법인데요. 외장재의 종류에 따라서 분위기가 많이 달라지기 때문에 예비 건축주님들께서도 고민을 많이 하십니다. 노출 콘크리트는 박물관 또는 미술관 같은 건축물에 많이 사용했던 공법 중 하나로 고급스러우면서 감각적인 느낌이 연출됩니다.


기초공사
수정6.jpg
수정7.jpg

기초공사에서 집을 지을 수 있도록 땅을 다듬어 주고 주변 정리를 하여 바닥을 만드는 작업을 해야 합니다. 지반의 상태에 따라 주택의 형태가 달라지지 않도록 기초 또한 단단하게 작업하고 집의 테두리를 모양에 맞춰 정확한 위치를 잡는 것에 집중하여 작업합니다.


골조작업
수정4.jpg
수정1.png
수정5.jpg

골조작업은 집의 뼈대를 올리는 것과 같습니다. 단순해 보이지만 복잡하고 어려운 과정이기에 시간 소요도 많이 됩니다. 하나하나 세심하게 기초를 무엇보다 탄탄하게 차곡차곡 쌓는다는 마음으로 시공합니다.


내부 목공사
수정2.png
수정3.png 내장 목공사

골조가 완성되고 콘크리트의 벽체가 세워지면 여기에 설비공사전기공사 등 내부 인테리어 공사가 진행됩니다. 이때부터 집안의 공간 형태가 드러나고 꼼꼼한 시공이 필요합니다.


단열공사
수정4.png
수정5.png 창호 시공

전원주택에서 가장 중요한 요소인 단열의 문제는 단열공사를 어떻게 시공하느냐에 따라서 달라집니다. 창호 시공이 단열에서는 빠질 수 없는데요. 엘지 본사에서 직영 방문하여 숙련도 높은 시공 실력으로 더욱 쾌적한 주거공간을 위해 공사를 진행하고 있습니다.

수정8.jpg 단열재 취부
수정6.png 바닥 단열 작업

단열재는 벽면과 천정에 모두 설치됩니다. 단열공사가 부실하면 눈에 보이지 않는 내부에서 곰팡이가 생기기 시작하고 점점 표면으로 올라오게 됩니다. 시공할 때에는 추후 하자의 문제가 없게끔 틈과 간격이 없도록 꼼꼼하게 메꾸는 것이 중요하고 벽과 벽이 만나는 코너 부분은 ㄱ자의 형태로 완벽하게 시공합니다.


내부 인테리어 공사
수정9.jpg
수정7.png

이때부터 집안의 내부가 예쁜 모습으로 변해가기 시작하는데요. 도배작업 및 내부 타일 작업, 가구공사, 조명 타공 등 내부 인테리어에 관한 작업이 이루어집니다. 이 분야에서는 꽤 경험적이고 전문적인 시공이 필요합니다.


입주청소
수정15.jpg
수정16.jpg

입주 청소는 전원주택시공의 마무리 단계인데요. 잔손 보기 작업도 같이 진행되며 시공 검토를 마칩니다.


외관
수정12.jpg
수정11.jpg

드디어 노출 콘크리트 전원주택이 완성되었습니다. 노출 콘크리트의 매력인 심플한 디자인은 밋밋한 느낌이 들 수도 있는데요. 특별한 포인트가 없는 대신 오래 봐도 질리지 않는 멋스러움과 세련된 느낌을 줍니다. 해당 전원주택의 외관은 목재와의 조합으로 개성 있는 분위기를 연출합니다.


오늘 소개해드린 전북 군산에 있는 전원주택 시공 현장은 어떠셨나요? 전원주택견적부터 끝까지 혼자서 생각하시기보단 구체적인 상담을 통해 해답을 얻어보시는 것도 하나의 방법인 것 같습니다. 콘크리트 주택은 빛과 기후 등 주변 환경에 따라 오묘한 아름다움을 선사합니다. 한글주택에서는 집 짓기의 꿈을 현실로 이뤄드리겠습니다. 자세한 상담은 하단 링크를 통해 가능합니다!

무료상담 신청하기 ▶ https://bit.ly/3lOkCL0


keyword
매거진의 이전글30평 단독주택가격은? 경기도 평택 시공현장 알아보기